Projecten
Producten
Bedrijven
Vacatures
Agenda
Awards
Podcasts
more_horiz
Videos
Magazine
Favorieten
Profiel
Uitloggen
Abonneer je nu op onze nieuwsbrieven!
Abonneren
Nee, bedankt
Ja, denk met me mee rond de
materialisering van mijn project
Producten
Ontvangst - Bedrijfspand Hoffmann Group
Copyright: Peter de Ruig
Trappenhuis - Bedrijfspand Hoffmann Group
Copyright: Peter de Ruig
Gang - Bedrijfspand Hoffmann Group
Copyright: Peter de Ruig
Kantine - Bedrijfspand Hoffmann Group
Copyright: Peter de Ruig
Kantine - Bedrijfspand Hoffmann Group
Copyright: Peter de Ruig
Kantoor - Bedrijfspand Hoffmann Group
Copyright: Peter de Ruig
Kantoor - Bedrijfspand Hoffmann Group
Copyright: Peter de Ruig
Kantoor - Bedrijfspand Hoffmann Group
Copyright: Peter de Ruig
Kantoor - Bedrijfspand Hoffmann Group
Copyright: Peter de Ruig
Kantoor - Bedrijfspand Hoffmann Group
Copyright: Peter de Ruig
Kantoor - Bedrijfspand Hoffmann Group
Copyright: Peter de Ruig
Kantoor - Bedrijfspand Hoffmann Group
Copyright: Peter de Ruig
Kantoor - Bedrijfspand Hoffmann Group
Copyright: Peter de Ruig
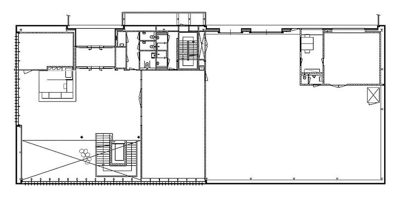
Plattegrond Begane Grond - Bedrijfspand Hoffmann Group
Copyright: Studio Westgeest
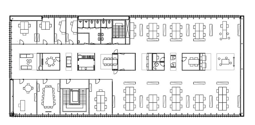
Plattegrond 1ste Verdieping - Bedrijfspand Hoffmann Group
Copyright: Studio Westgeest
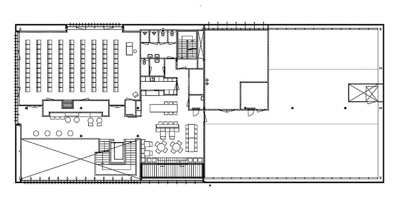
Plattegrond 2de Verdieping - Bedrijfspand Hoffmann Group
Copyright: Studio Westgeest
Producttags
AAN
UIT
Bedrijfspand Hoffmann Group
14 april
0
0
0
0
Ongeveer 4.000 zeer gemotiveerde medewerkers in meer dan 50 landen maken Hoffmann Group tot wat het nu is: Europa’s toonaangevende systeempartner voor kwaliteitsgereedschappen hoofdzakelijk gericht op de maakindustrie.
In december 2020 heeft de vestiging in Nederland een nieuw energieneutraal pand op een bedrijventerrein in Borne betrokken. Het pand, ontworpen door Erwin Kleinsman/StudioDAD, ademt aan alle kanten kwaliteit uit. Studio Westgeest kreeg de opdracht voor het interieurontwerp.
De gedetailleerdheid waar het gebouw door gekenmerkt wordt, heeft Judith Westgeest in haar ontwerp voor de binnenruimte terug laten komen.
In de ontvangstruimte krijgt de bezoeker een warm en welkom gevoel door de licht- en openheid van de balie en het gebruik van kleuraccenten uit het bedrijfslogo. Ook de trap naar boven, die Judith iets heeft laten doortrekken en verbreden, is uitnodigend.
Op de eerste verdieping is een ontspanningsruimte en de vergaderzaal gesitueerd. Deze laatste is door een scheidingswand tot twee ruimtes te verdelen. De verdieping maakt een lichte indruk door het gebruik van veel hout en de kleur wit.
Op de tweede verdieping zijn alle werkplekken langs de ramen gesitueerd. In het midden van de grote ruimte bevinden zich over de hele lengte een pantry, kleine vergaderruimten, multifunctionele werkplekken en stilte-werkplekken. Deze functionele blokken zijn aan de buitenzijde voorzien van antraciet structuur behang. Het antraciet vormt een mooi contrast met het hout aan de binnenzijde van de blokken. Ook is het hout als vlak in de vloer doorgetrokken in de lengterichting van de verdieping, waardoor een visuele verbinding tussen de blokken ontstaat. De combinatie van houten elementen en strakke metalen lijnen in kozijnen en scheidingswanden, zorgt voor een moderne en warme uitstraling.
De Zonweringslamellen die aan de buitenzijde van de gevel zijn bevestigd, zorgen voor een verrassend lichteffect in het interieur.
Stel jezelf kort voor! Dan weet het betreffende bedrijf wie hun brochure gedownload heeft.
Wil je niet bij elke download jouw gegevens in hoeven voeren?
Klik dan hier om in te loggen
. Heb je nog geen account?
Maak dan hier een gratis account aan
.
Voornaam
Achternaam
E-mailadres
Downloaden
Wanneer je brochures downloadt op Architectenweb.nl worden relevante gegevens van jou – zoals jouw naam en e-mailadres – met het betreffende bedrijf gedeeld. Meer hierover lees je in ons
privacybeleid
.
Wanneer je brochures downloadt op Architectenweb.nl worden relevante gegevens van jou – zoals jouw naam en e-mailadres – met het betreffende bedrijf gedeeld. Meer hierover lees je in ons
privacybeleid
.
Brochure
Stel jezelf kort voor! Dan weet het betreffende bedrijf wie hun model gedownload heeft.
Wil je niet bij elke download jouw gegevens in hoeven voeren?
Klik dan hier om in te loggen
.
Heb je nog geen account?
Maak dan hier een gratis account aan
.
Voornaam
Achternaam
E-mailadres
Downloaden
Wanneer je modellen downloadt op Architectenweb.nl worden relevante gegevens van jou – zoals jouw naam en e-mailadres – met het betreffende bedrijf gedeeld. Meer hierover lees je in ons
privacybeleid
.
Locatie
Trefwoorden
vergaderzaal
interieurontwerp
kleuraccenten
kantoor
ergonomische werkplekken
stilte werkplekken
interieurontwerp op maat
vergaderruimte
ontspanningsruimte
Studio Westgeest
Neem contact op
Projectdata
Staat van realisatie
Voltooid
Start ontwerpproces
2019
Start bouw
2020
Oplevering
2020
Ingebruikname
2020
Plaats
Borne
Netto m
2
3000
Meewerkende partijen
Architect
Erwin Kleinsman Architect, Studio DAD
Aannemer
Droste Bouwgroep
Interieurontwerper
Judith Westgeest, namens Studio Westgeest
Projectmanagement
BBD Bouwmanagement B.V.
Interieurbouwer
Kats van Hout
Installateur
Lammerink Installatiegroep
Leveranciers
Overig
eikelenboom,
Tarkett BV
, Arper, ROgin Kantoor en Meubilair Elst,
Vescom B.V.
Neem contact op met
Studio Westgeest
Je bent momenteel niet ingelogd. Hierdoor is het alleen mogelijk om meer informatie per e-mail op te vragen. Wil je liever gebeld worden of documentatie per post ontvangen?
Klik dan hier om in te loggen
.
Heb je nog geen account?
Maak dan hier een gratis account aan
.
Voornaam
Achternaam
E-mailadres
Opmerkingen
Bij iedere aanvraag worden relevante gegevens van jou gedeeld met het betreffende bedrijf. Meer hierover lees je in ons
privacybeleid
.
Ja, denk met me mee rond de
materialisering van mijn project
Meer projecten van Studio Westgeest
Woonhuis, Gemeente Rheden
Studio Westgeest
Vrijstaande woningen Rozenhorst
Studio Westgeest
Hall 11, Rivierduinen Silvolde
Studio Westgeest
Jaren 50 woning, Arnhem
Studio Westgeest
Woonhuis, Gemeente Rheden
Studio Westgeest
Vrijstaande woningen Rozenhorst
Studio Westgeest
Hall 11, Rivierduinen Silvolde
Studio Westgeest
Jaren 50 woning, Arnhem
Studio Westgeest
Toon alles
Gerelateerde producten
DESSO Fields
Een schat aan kleurencombinaties
Tarkett BV
Andere Projecten
Canopy House
Malaysian Timber Council
Pol Heeteren BV
Klöber
Akoestische ventilatieroosters woontoren Magnus
Storax
Klimaatinnovatie in houtbouw: Mandemaat 3
Halton Ventilation Systems
Renovatie parkeergarage De Vest
Triflex bv
Kliniek San Juan de Dios in Madrid
ULMA Architectural Solutions
Vliesgevel screens Netceed kantoorgebouw
Renson
Kantoorinterieur Greenflux Amsterdam
Bureau Fraai
Nieuwbouw kinderdagverblijf Baakenhafen Hamburg
Sempergreen
CPO Vondelstaete Amersfoort: Passief Wonen
Sto Isoned bv
Nieuwbouw Oostvaarders krijgt Gorter op het dak
Gorter Luiken BV
BOW showroom in Amsterdam!
BOW Systems
Ga naar het projecten-overzicht
Voor een optimale gebruikservaring plaatst Architectenweb functionele cookies. Wat de verschillende cookies precies doen leggen we uit in een
overzicht
. Cookies van social media kun je optioneel
aanzetten
.
Akkoord
Instellingen
Annuleren
OK
Sluiten
Doorgaan
Inloggen
Maak een gratis persoonlijk account aan
Feedback
Feedback
Wij horen graag jouw feedback. Laat je reactie achter en eventueel jouw e-mail adres.
Reactie
Verstuur