Projecten
Producten
Bedrijven
Vacatures
Agenda
Awards
Podcasts
more_horiz
Videos
Magazine
Favorieten
Profiel
Uitloggen
Abonneer je nu op onze nieuwsbrieven!
Abonneren
Nee, bedankt
Ja, denk met me mee rond de
materialisering van mijn project
Producten
Copyright: Play-Time
Copyright: Play-Time
Copyright: Play-Time
Copyright: Play-Time
Copyright: Play-Time
Copyright: Play-Time
Copyright: Play-Time
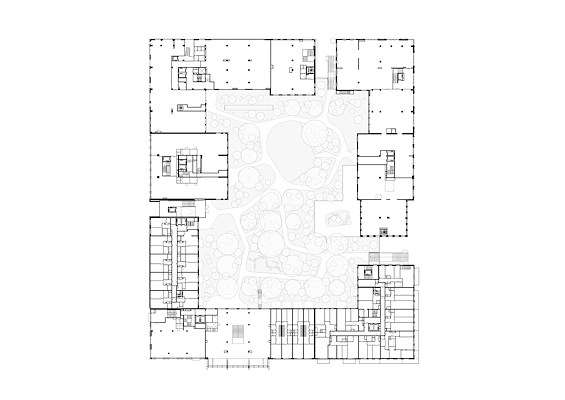
situatie
Copyright: KCAP
Copyright: KCAP
Copyright: KCAP
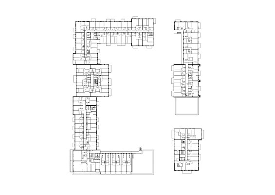
4e verdieping
Copyright: KCAP
7e verdieping
Copyright: KCAP
Langsdoorsnede
Copyright: KCAP
Producttags
AAN
UIT
Merwede – Stadsblok 8 / Grow
5 december 2025
0
0
0
0
Binnen het masterplan van BURA heeft KCAP zowel de stedenbouwkundige uitwerking van 4 stadsblokken, als de architectonische vertaling van een groot stadsblok gerealiseerd: het blok GROW is als gemengd gebouwensemble en als aantrekkelijke woon-, werk- en leisureomgeving, het meest stedelijke blok van de nieuwe wijk.
De belangrijkste ambities van Merwede zijn vertaald in het stadsblok: community, circulair, energiebewust, duurzaam mobiel en natuurinclusief. Deze pijlers komen in alle lagen van het plan terug: van stedenbouw en landschap tot architectuur, van de verdeling van het diverse programmaonderdelen tot het creëren van bijzondere gebouwen en plekken.
KCAP geeft het idee van de ‘Levendige Stadswijk’ vorm met een diverse mix van functies die op elk moment van de dag levendigheid en activiteit genereren. GROW
is met 575 woningen in alle categorieën en ruim 10.000m2 aanvullend divers voorzieningenprogramma een ‘community’ op zichzelf. Hier komen meer dan 1000 mensen te wonen en ruim 400 mensen te werken. GROW bestaat uit een fijnkorrelige gebouwenstructuur met een duidelijk afleesbare opbouw: sokkel, middenstuk en setback met daktuinen van verschillende afmetingen rondom een toegankelijk en doorwaadbaar hof dat als buurtpark functioneert.
Het stadsblok GROW bestaat uit een ensemble van 18 verschillende gebouwen, die door 18 verschillende architecten van de bureaus KCAP, Monk en Studio Nauta zijn vormgegeven. Door uitgesproken architectonische concepten per gebouw te definiëren, kent GROW een rijke architectonische uitstraling met herkenbare gebouwen.
De menselijke maat is leidend voor de uitstraling en ervaring op ooghoogte. Rijk gedetailleerde plinten, herkenbare entrees, zorgvuldige overgangen openbaar-privé en levendige programmering geven identiteit en rijkdom aan de gebouwen en het geheel. De diverse functies die op elk moment van de dag levendigheid en activiteit genereren, resulteren in een dynamische plek waar verschillende functies samen komen en mensen elkaar kunnen ontmoeten.
GROW is als onderdeel van een van duurzaamste wijken van Nederland ook als stadsblok een heel duurzaam gebouwensemble: tijdens het ontwerpproces zijn de verschillende keuzes integraal met elkaar afgewogen om tot een duurzaam ontwerp te komen
.
Aan de hoge ambities van Merwede op het gebied van energieopwekking en -gebruik, materiaalgebruik en circulariteit wordt ruimschoots voldaan.
Een efficiënte opzet met grote overspanningen leidt tot een optimalisatie in constructie en bevordert de flexibiliteit en toekomstbestendigheid. De inzet van circulair beton en circulaire gevelinvullingen resulteren in een zeer lage MPG. Bijzonder is de toepassing van een CO2 tool welke heeft geleidt tot een nadere optimalisatie van duurzaamheidsaspecten
.
Het maaiveld van Merwede wordt autovrij en groen ingericht. Gezonde mobiliteit in de vorm van langzaam verkeer en het gebruik van openbaar vervoer worden gestimuleerd. Daardoor is een zeer lage parkeernorm mogelijk met geconcentreerde parkeervoorzieningen. GROW huisvest een van de parkeerhubs die meerdere blokken bedient.
Het aandeel groen op maaiveld, gevels en daken is gemaximaliseerd. Het door Flux landscape architecture ontworpen buurtpark in het stadsblok is een groene stadsoase van Merwede. Deze aantrekkelijke groene leefomgeving resulteert in een natuur-inclusief plan dat ruimte biedt aan flora en fauna en zo de biodiversiteit van de stad bevordert. Het regenwater wordt opgevangen en als waterbuffer voor het buurtpark en de groene daken gebruikt. Het vasthouden en vertraagd afvoeren van regenwater heeft een verkoelend effect op het stadsblok en verminderd zodoende hittestress.
GROW is daarmee een zeer toekomstbestendig ensemble, een levendige inclusieve plek om in te wonen, te werken en te recreëren, maar ook een klimaatbestendige groene oase.
Stel jezelf kort voor! Dan weet het betreffende bedrijf wie hun model gedownload heeft.
Wil je niet bij elke download jouw gegevens in hoeven voeren?
Klik dan hier om in te loggen
.
Heb je nog geen account?
Maak dan hier een gratis account aan
.
Voornaam
Achternaam
E-mailadres
Downloaden
Wanneer je modellen downloadt op Architectenweb.nl worden relevante gegevens van jou – zoals jouw naam en e-mailadres – met het betreffende bedrijf gedeeld. Meer hierover lees je in ons
privacybeleid
.
Locatie
Trefwoorden
menselijke maat
biodiversiteit
duurzaam
circulair
community
mobiel
natuurinclusief
verdichting
stad op ooghoogte
energiebewust
flexibel
co2 arm
KCAP
Neem contact op
Projectdata
Staat van realisatie
In ontwikkeling
Start ontwerpproces
2020
Start bouw
2025
Plaats
Utrecht
Meewerkende partijen
Architect
www.kcap.eu, www.monkarchitecten.nl, www.studionauta.com
Ontwerpteam
Edward Schuurmans (KCAP), Anja Lübke (KCAP), Bojana Rankovic (KCAP), Bruno Godeiro (KCAP), Edgars Jane (KCAP), Murtada Alkaabi (KCAP), Simon Whittle (KCAP), Santiago Brignardelli (KCAP), Joan Wildenburg (KCAP), Vikto Kekesi (KCAP), Hiltje Huizinga (KCAP), Casper Schuuring (Monk), Charlotte Mulder (Monk), Mart Groenen (Monk), Dorien van der Ven (Monk), Jan Nauta (Studio Nauta), Benjamin Filbey (Studio Nauta), Marcel Berghout (Studio Nauta)
Opdrachtgever
Synchroon B.V.
, AM
Aannemer
Van Wijnen
Constructeur
Van Rossum Raadgevend Ingenieurs
Adviseurs installaties E & W
Techniplan Adviseurs
Stedenbouwkundige
BURA urbanism
Landschapsarchitect
Flux landscape architecture
Visualisaties
Play-Time
Adviseur bouwfysica
Cauberg Huygen
Adviseur akoestiek
Cauberg Huygen
Adviseur brandveiligheid
Cauberg Huygen
Beeldend kunstenaar
Studio Floris Schoonderbeek
Neem contact op met
KCAP
Je bent momenteel niet ingelogd. Hierdoor is het alleen mogelijk om meer informatie per e-mail op te vragen. Wil je liever gebeld worden of documentatie per post ontvangen?
Klik dan hier om in te loggen
.
Heb je nog geen account?
Maak dan hier een gratis account aan
.
Voornaam
Achternaam
E-mailadres
Opmerkingen
Bij iedere aanvraag worden relevante gegevens van jou gedeeld met het betreffende bedrijf. Meer hierover lees je in ons
privacybeleid
.
Ja, denk met me mee rond de
materialisering van mijn project
Meer projecten van KCAP
Stationspostgebouw, Den Haag
KCAP
Droogbak, Amsterdam
KCAP
Noorderhaven, Zutphen
KCAP
The Gustav, Amsterdam
KCAP
HafenCity, Hamburg
KCAP
Stadsbalkon, Groningen
KCAP
Huys Afrika, Amsterdam
KCAP
Stationspostgebouw, Den Haag
KCAP
Droogbak, Amsterdam
KCAP
Noorderhaven, Zutphen
KCAP
The Gustav, Amsterdam
KCAP
HafenCity, Hamburg
KCAP
Stadsbalkon, Groningen
KCAP
Huys Afrika, Amsterdam
KCAP
Toon alles
Andere Projecten
Onderwijsgebouw Aurora, Wageningen
WEBO
Sandwichpanelenwand hygiënische afbouw
Sentho B.V.
Transformeerbare vergaderruimtes in HNK Amsterdam
BREEDVELD mobiele wandsystemen
Complete buiteninrichting kantooromgeving
Falco B.V.
TopAccess Dakluik bij Porsche Service Factory
Staka Dakluiken
Nieuwbouw villa Tegenbosch, Eindhoven, Noord-Braba
van Os Architecten
Moderne villa Alkmaar
BNLA architecten
Appartementencomplex in Purmerend
SSAB Swedish Steel BV
Office Winhov over project Pulse met Archicad
KUBUS | Specialist in Archicad
Nieuwbouw moderne bungalow, Prinsenbeek, Noord-Bra
van Os Architecten
Verbouwing villa Ruitersbos, Breda, Noord-Brabant
van Os Architecten
Nieuwbouw schuurwoning, Oosterhout, Noord-Brabant
van Os Architecten
Ga naar het projecten-overzicht
Voor een optimale gebruikservaring plaatst Architectenweb functionele cookies. Wat de verschillende cookies precies doen leggen we uit in een
overzicht
. Cookies van social media kun je optioneel
aanzetten
.
Akkoord
Instellingen
Annuleren
OK
Sluiten
Doorgaan
Inloggen
Maak een gratis persoonlijk account aan
Feedback
Feedback
Wij horen graag jouw feedback. Laat je reactie achter en eventueel jouw e-mail adres.
Reactie
Verstuur