Projecten
Producten
Bedrijven
Vacatures
Agenda
Awards
Podcasts
more_horiz
Videos
Magazine
Thema's
Favorieten
Profiel
Uitloggen
Producten
interieur 01
Copyright: Max Hart Nibbrig
interieur 02
Copyright: Max Hart Nibbrig
interieur 03
Copyright: Max Hart Nibbrig
detail 01
Copyright: Max Hart Nibbrig
exterieur 01
Copyright: Max Hart Nibbrig
exterieur 02
Copyright: Max Hart Nibbrig
exterieur 03
Copyright: Max Hart Nibbrig
exterieur 04
Copyright: Max Hart Nibbrig
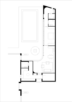
plattegrond
Copyright: Pieter Bedaux
doorsnede gevel
Copyright: Pieter Bedaux
Schets
Copyright: Pieter Bedaux
Producttags
AAN
UIT
Woonhuis Aerdenhout
30 juni
1
0
0
0
Aan een
vintage
jaren-zeventig huis, dat enkele jaren geleden al is verbouwd en verduurzaamd door Pieter Bedaux, is een nieuwe vleugel toegevoegd. Deze uitbreiding maakt het huis geschikt om door drie generaties bewoond te worden: een gezin met kinderen in het huis, en grootouders in de paviljoenachtige vleugel.
Dankzij de nieuwe vleugel biedt het uitgebreide huis niet alleen een comfortabel onderkomen voor drie generaties, maar laat het ook zich ook op een andere wijze bewonen, deels samen, deels apart. Het ontwerp was een zoektocht naar een balans tussen deze gemeenschappelijkheid en privacy. Woning en uitbreiding delen het terras dat voert naar de nieuwe ingang achterom. Lamellen in de gevel van de vleugel richten het uitzicht en beperken de inkijk, en verzekeren op deze manier een zekere beschutting.
De uitbreiding is in houtskeletbouw, net als de woning die oorspronkelijk is ontworpen door Arne Sikkel. Met een oppervlakte van 120 vierkante meter en een hoogte van drie meter heeft de vleugel de maximale omvang die vergunningsvrij kon worden gebouwd.
De vorm van de vleugel is ingegeven door het gebruik van de tuin en het zwembad dat er al was. De terugwijkende gevellijn is bepaald door het gewenste uitzicht op volwassen bomen. Een Japanse esdoorn is toegevoegd voor schaduw op het terras en als markering van de entree.
Het paviljoen is niet alleen de contravorm van de buitenruimte maar tevens een complement van het huis, doordat het dezelfde architectuurtaal spreekt, zij het in iets verfijndere bewoordingen. Net als het huis heeft de vleugel gevels van Western red cedar, glas in donkere kozijnen, en een geprononceerde daklijst. De samenhang tussen tuin en uitbreiding wordt versterkt doordat de Muschelkalk vloer van de woonvleugel zich voortzet in het terras, waardoor binnen buiten wordt en andersom.
Het interieur van de vleugel, een vloeiende aaneenschakeling van vertrekken, is een hedendaagse interpretatie van de jaren-zeventig gezelligheid van het huis. De warme en donkere kleuren van de eikenhouten wanden en het hardhouten lattenplafond geven eenheid en geborgenheid aan de uitbreiding, waarvoor ook het bed, de tafel, alle kasten en de keuken zijn ontworpen, net als de handgrepen op de schuifdeuren. Deze schuifdeuren waarborgen de toegankelijkheid mocht de mobiliteit van de bewoners in de toekomst beperkter worden.
In het houten lattenplafond, een kleine hommage aan het werk van Pieter’s opa Jos. Bedaux, is vrijwel onzichtbaar LED-verlichting opgenomen. Over de volle lengte van de vleugel is een daklicht gemaakt. Door hieronder om en om een lat weg te laten uit het plafond, strijkt het licht gefilterd langs de achterwand. Het zorgvuldig afgestemde licht draagt bij aan de rustige en intieme sfeer van deze woonvleugel, die niet alleen de tuin omarmt maar ook een nieuwe vorm van familiaal samenleven.
Stel jezelf kort voor! Dan weet het betreffende bedrijf wie hun brochure gedownload heeft.
Wil je niet bij elke download jouw gegevens in hoeven voeren?
Klik dan hier om in te loggen
. Heb je nog geen account?
Maak dan hier een gratis account aan
.
Voornaam
Achternaam
E-mailadres
Downloaden
Wanneer je brochures downloadt op Architectenweb.nl worden relevante gegevens van jou – zoals jouw naam en e-mailadres – met het betreffende bedrijf gedeeld. Meer hierover lees je in ons
privacybeleid
.
Wanneer je brochures downloadt op Architectenweb.nl worden relevante gegevens van jou – zoals jouw naam en e-mailadres – met het betreffende bedrijf gedeeld. Meer hierover lees je in ons
privacybeleid
.
Brochure
Stel jezelf kort voor! Dan weet het betreffende bedrijf wie hun model gedownload heeft.
Wil je niet bij elke download jouw gegevens in hoeven voeren?
Klik dan hier om in te loggen
.
Heb je nog geen account?
Maak dan hier een gratis account aan
.
Voornaam
Achternaam
E-mailadres
Downloaden
Wanneer je modellen downloadt op Architectenweb.nl worden relevante gegevens van jou – zoals jouw naam en e-mailadres – met het betreffende bedrijf gedeeld. Meer hierover lees je in ons
privacybeleid
.
Trefwoorden
villa
houtbouw
aerdenhout
aanbouw
pieter bedaux
duurzaam
hout
Pieter Bedaux
Neem contact op
Projectdata
Staat van realisatie
Voltooid
Start ontwerpproces
2021
Start bouw
2022
Oplevering
2024
Ingebruikname
2024
Bruto m
2
120
Netto m
2
90
m
3
396
Meewerkende partijen
Architect
Pieter Bedaux
Interieurarchitect
Pieter Bedaux
Projectarchitect
Pieter Bedaux
Ontwerpteam
Pieter Bedaux, Dennis van Herel
Opdrachtgever
prive
Aannemer
Stano renovatie
Constructeur
AdviesbuRo Coolen
Fotograaf
Max Hart Nibbrig
Leveranciers
Natuursteen
kroon natuursteen
Kozijnen
Reynaers Aluminium Nederland
Neem contact op met
Pieter Bedaux
Je bent momenteel niet ingelogd. Hierdoor is het alleen mogelijk om meer informatie per e-mail op te vragen. Wil je liever gebeld worden of documentatie per post ontvangen?
Klik dan hier om in te loggen
.
Heb je nog geen account?
Maak dan hier een gratis account aan
.
Voornaam
Achternaam
E-mailadres
Opmerkingen
Bij iedere aanvraag worden relevante gegevens van jou gedeeld met het betreffende bedrijf. Meer hierover lees je in ons
privacybeleid
.
Ja, denk met me mee rond de
materialisering van mijn project
Meer projecten van Pieter Bedaux
Woonhuis op atelier Tilburg
Pieter Bedaux
Gerelateerde producten
Aluminium maatwerk met ConceptSystem 77 (CS 77)
Maximale veiligheid en comfort
Reynaers Aluminium Nederland
Andere Projecten
Het Streek Lyceum, Ede
Ector Hoogstad Architecten
Muziekcentrum Gebr. de Nobel, Leiden
Ector Hoogstad Architecten
Gemeentehuis Krimpenerwaard
Ector Hoogstad Architecten
Matrix VII Life Science Incubator, Amsterdam
Ector Hoogstad Architecten
Annie M.G. Schmidtschool, Den Haag
Ector Hoogstad Architecten
Center Court, Geleen
Ector Hoogstad Architecten
Renovatie Luxor Theater met Swisspearl Zenor
Swisspearl Nederland
Boterhalle – akoestiek en duurzaamheid in balans
Merford
Renovatie Gemeentehuis Rheden
Hunter Douglas Architectural
Accoya voor iconisch NEMO-dakterras
Accoya
Theater aan de Parade
Espero B.V.
Verbinding in MFA De Trochset te Jistrum
Troldtekt Benelux
Ga naar het projecten-overzicht
Voor een optimale gebruikservaring plaatst Architectenweb functionele cookies. Wat de verschillende cookies precies doen leggen we uit in een
overzicht
. Cookies van social media kun je optioneel
aanzetten
.
Akkoord
Instellingen
Annuleren
OK
Sluiten
Doorgaan
Inloggen
Maak een gratis persoonlijk account aan
Feedback
Feedback
Wij horen graag jouw feedback. Laat je reactie achter en eventueel jouw e-mail adres.
Reactie
Verstuur