Abonneer je nu op onze nieuwsbrieven!
Abonneren
Nee, bedankt
Ja, denk met me mee rond de
materialisering van mijn project
Producten
Hout bekleding gevel natuur landschap Scouting Buitenzorg Baarn
Copyright: Aiste Rakauskaite
Hout bekleding gevel natuur bos Scouting Buitenzorg Baarn
Copyright: Aiste Rakauskaite
Boskamer houten gevelbekleding Plato Aluminium pui
Copyright: Aiste Rakauskaite
Houten gevelbekleding CLT aluminium kozijn pui groen
Copyright: Aiste Rakauskaite
Hoekkozijn open hoek houten gevelbekleding overstek Scouting Buitenzorg
Copyright: Aiste Rakauskaite
kruisvormig CLT dak in het bos
Copyright: Aiste Rakauskaite
Avond gevel accommodatie houten gevelbekleding
Copyright: Aiste Rakauskaite
Avond gevel accommodatie houten gevelbekleding Scouting Buitenzorg
Copyright: Aiste Rakauskaite
Avond gevel accommodatie houten gevelbekleding Scouting Buitenzorg
Copyright: Aiste Rakauskaite
Avond gevel accommodatie houten gevelbekleding Scouting Buitenzorg
Copyright: Aiste Rakauskaite
Avond gevel accommodatie houten gevelbekleding Scouting Buitenzorg
Copyright: Aiste Rakauskaite
Hoekkozijn open hoek houten gevelbekleding overstek Scouting Buitenzorg
Copyright: Aiste Rakauskaite
Huiskamer CLT aluminium pui schakelbare ruimte
Copyright: Aiste Rakauskaite
Huiskamer CLT aluminium pui schakelbare ruimte zicht op bos en natuur
Copyright: Aiste Rakauskaite
Huiskamer CLT aluminium pui hout kachel biobased
Copyright: Aiste Rakauskaite
Gang slaapkamers CLT aluminium pui zicht op natuur
Copyright: Aiste Rakauskaite
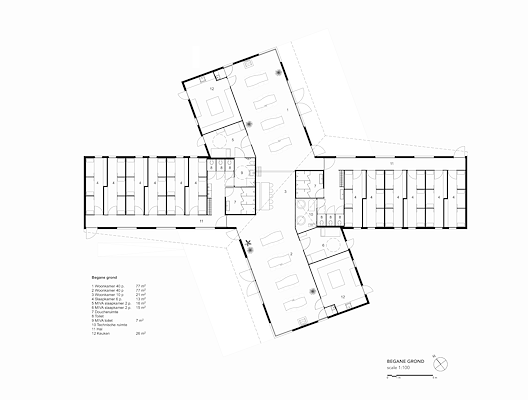
Plattegrond begane grond
Copyright: MOST Architecture + TOMDAVID Architecten
Plattegrond begane grond in context
Copyright: MOST Architecture + TOMDAVID Architecten
ProducttagsAANUIT

Verborgen architectonische parel in bossen Baarn

26 juni 2025
In de bossen van Baarn zijn de ‘Vleermuisgrot’ en ‘de Beverburcht’ geopend. Een nieuwe groepsaccomodatie van Scouting Nederland, ontworpen door MOST Architecture en TomDavid Architecten. Het duurzame bouwwerk biedt groepen jongeren de ruimte om in stijl te overnachten en verblijven middenin de natuur, en die natuur ten volste te beleven.

MOST Architecture en TomDavid Architecten stonden voor een interessante uitdaging toen zij van Scoutcentrum Buitenzorg de opdracht kregen een nieuwe groepsaccomodatie te ontwerpen. Het oude gebouw voldeed niet en werd afgebroken. De wens was om in het nieuwe twee scoutinggroepen tegelijk onder te kunnen brengen: slapen, maar ook koken, wassen, verblijven en activiteiten ontplooien. De uitdaging was hiervoor ruimte te creëren, zonder bomen te kappen. De architecten slaagden daarin door niet één maar twee gebouwen te ontwerpen, die elkaar kruisen. Hierdoor ontstaat een X-vormige plattegrond, die zich voegt naar het bos. De vier vleugels met slaapvertrekken en huiskamers steken als vingers tussen de bomen door. In de ruimte tussen deze vingers ontstaan op natuurlijke wijze ‘boskamers’ die ruimte bieden om buiten activiteiten te ontplooien en het bos ten volste te beleven. 

Duurzame materialen, duurzame bouw
Voor de groepsaccomodatie was een bescheiden budget beschikbaar. Toch is het de architecten gelukt een kwalitatief hoogstaand, solide, duurzaam gebouw neer te zetten, dat nog vele decennia mee kan. Het gebouw bestaat voornamelijk uit glazen puien en wanden van hout. Voor het interieur is Cross Laminated Timber (CLT) gebruikt, voor de buitengevels het duurzame Platowood. Een overstek van 2 meter biedt schaduw en beschutting én zorgt ervoor dat het gebouw ’s zomers koel blijft. Doordat de bouwelementen prefab op locatie zijn geassembleerd, was de bouwtijd zeer kort en de overlast voor de dieren en wandelaars in het bos minimaal. Zonnepanelen en zonnecollectoren zorgen voor verwarming en warm water in het gebouw. Ook hebben beide huiskamers een open haard, die bij gebruik warmte brengen naar de buffervaten. 

Functies en indeling
In het nieuwe Blauwe Vogelhuis kunnen twee groepen van 38 personen verblijven. Er zijn twaalf slaapvertrekken met zes bedden, twee MIVA slaapkamers en een speciale badkamer voor minder valide gasten, twee keukens, twee wasruimtes en één grote verblijfsruimte, die opgedeeld kan worden tot twee huiskamers. De grote verblijfruimte heeft met een hoogte van vier meter een ruimtelijk gevoel. Vanaf dit hoogste punt loopt het dak naar beide zijden af. De slaapkamers zijn juist compact en efficiënt vormgegeven. 

Natuurinclusief vormgegeven
Tussen de dertig meters-hoge bomen valt het Blauwe Vogelhuis niet erg op. Het is bescheiden in vormgeving, bovendien overzie je het gebouw, door zijn X-vorm, nooit in zijn geheel. Het lijkt kleiner dan het is, van welke kant je er ook naar kijkt. En dat was precies de bedoeling van de architecten. Het gebouw past zich aan de natuur aan, en niet andersom.

Stel jezelf kort voor! Dan weet het betreffende bedrijf wie hun model gedownload heeft.
Wil je niet bij elke download jouw gegevens in hoeven voeren?
Klik dan hier om in te loggen.

Heb je nog geen account? Maak dan hier een gratis account aan.
Voornaam
Achternaam
E-mailadres
Downloaden
Wanneer je modellen downloadt op Architectenweb.nl worden relevante gegevens van jou – zoals jouw naam en e-mailadres – met het betreffende bedrijf gedeeld. Meer hierover lees je in ons privacybeleid.

Locatie

Neem contact op met MOST Architecture

Je bent momenteel niet ingelogd. Hierdoor is het alleen mogelijk om meer informatie per e-mail op te vragen. Wil je liever gebeld worden of documentatie per post ontvangen? Klik dan hier om in te loggen.
Heb je nog geen account? Maak dan hier een gratis account aan.
Voornaam
Achternaam
E-mailadres
Opmerkingen
Bij iedere aanvraag worden relevante gegevens van jou gedeeld met het betreffende bedrijf. Meer hierover lees je in ons privacybeleid.
Ja, denk met me mee rond de
materialisering van mijn project

Meer projecten van MOST Architecture

Gerelateerde producten

ATAG Nederland
KUBUS | Specialist in Archicad
SAPA
Reynaers Aluminium Nederland
Jansen
SAB-profiel bv
Aliplast Aluminium Systems
Kingspan Light & Air
ALUCOBOND®
Caparol
Tarkett BV
Kawneer
Grohe Nederland B.V.
Malaysian Timber Council
OCS | Office Cabling Systems
Swisspearl Nederland
Forster Nederland N.V.
VELUX Commercial Benelux B.V.
Sempergreen
Houthandel van Dam
Aluprof Nederland BV
QbiQ Wall Systems
Forbo Flooring
Schüco Nederland
Cedral
Sto Isoned bv
Triflex bv
Gorter Luiken BV
wienerberger
DUCO Ventilation & Sun Control
BEWI IsoBouw
ROCKWOOL B.V.
Mview+
Rockfon (ROCKWOOL B.V.)
Gira Nederland B.V.
Kingspan Geïsoleerde Panelen
GEZE Benelux  B.V.
Renson
Metaglas Groep
ABB | Busch-Jaeger
Jung | Hateha B.V.
Knauf B.V.
Saint-Gobain Glass Benelux
Faay Vianen B.V.
objectflor
Boon Edam Nederland B.V.
Hunter Douglas Architectural
VOLA Nederland BV
Forbo Eurocol Nederland B.V.
EQUITONE gevelpanelen
Holonite B.V.
Tata Steel Colorcoat®
Architectenweb
Over ons
Contact

© 2002 - 2026 Architectenweb BV / Voorwaarden / Privacy / Disclaimer / Sitemap
Annuleren
OK
Sluiten
Doorgaan
Inloggen
Maak een gratis persoonlijk account aan