Projecten
Producten
Bedrijven
Vacatures
Agenda
Awards
Podcasts
more_horiz
Videos
Magazine
Favorieten
Profiel
Uitloggen
Abonneer je nu op onze nieuwsbrieven!
Abonneren
Nee, bedankt
Ja, denk met me mee rond de
materialisering van mijn project
Producten
Copyright: Norbert van Onna
Copyright: Norbert van Onna
Copyright: Norbert van Onna
Copyright: Norbert van Onna
Copyright: Norbert van Onna
Copyright: Norbert van Onna
Copyright: Norbert van Onna
Copyright: Norbert van Onna
Copyright: Norbert van Onna
Copyright: Norbert van Onna
Copyright: Norbert van Onna
Copyright: Norbert van Onna
axonometrie
Copyright: De Bever Architecten
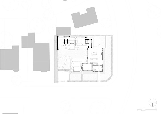
begane grond
Copyright: De Bever Architecten
Producttags
AAN
UIT
Woonhuis IV
27 juni 2025
0
0
0
0
In het centrum van Eindhoven ligt op een hoekkavel in de karakteristieke jaren ‘30 wijk Den Elzent, tegen het natuurlijke landschap van het Dommeldal, het woonhuis IV. Het bestaande hoofdhuis is relatief klein qua opzet. Een uitbreiding waarin extra comfort wordt toegevoegd aan het bestaande huis. De transparante toevoeging aan het woonhuis is een voortzetting van een eerdere exterieur uitbreiding met dunne zwevend betonnen dakrand. Deze overstekken geven een evenwichtig beeld, waardoor de ruimten naadloos in elkaar overlopen, en de tuin een intiem omsloten karakter krijgt.
Belangrijk zijn de zichtlijnen, waardoor afzonderlijke ruimten ontstaan zoals een studie nis, een verlaagd zitgedeelte met brede vensterbanken en hangende openhaard, een transparante doorloop langs het zwembad, naar een logeer-, verblijfsruimte met sanitaire ruimte.
Er is veel aandacht besteed aan een zorgvuldige detaillering, waardoor ruimte wordt bespaard en deze vloeiend in elkaar overlopen. Positionering van daklichten, (gebogen) wanden, traptreden, nissen waarin gordijnen zijn opgeborgen, vloerverwarming en plafondkoeling, akoestische panelen en verlichting zijn naadloos weggewerkt en bepalen daarmee de uitstraling en het karakter van de ruimte.
Stel jezelf kort voor! Dan weet het betreffende bedrijf wie hun brochure gedownload heeft.
Wil je niet bij elke download jouw gegevens in hoeven voeren?
Klik dan hier om in te loggen
. Heb je nog geen account?
Maak dan hier een gratis account aan
.
Voornaam
Achternaam
E-mailadres
Downloaden
Wanneer je brochures downloadt op Architectenweb.nl worden relevante gegevens van jou – zoals jouw naam en e-mailadres – met het betreffende bedrijf gedeeld. Meer hierover lees je in ons
privacybeleid
.
Wanneer je brochures downloadt op Architectenweb.nl worden relevante gegevens van jou – zoals jouw naam en e-mailadres – met het betreffende bedrijf gedeeld. Meer hierover lees je in ons
privacybeleid
.
Brochure
Stel jezelf kort voor! Dan weet het betreffende bedrijf wie hun model gedownload heeft.
Wil je niet bij elke download jouw gegevens in hoeven voeren?
Klik dan hier om in te loggen
.
Heb je nog geen account?
Maak dan hier een gratis account aan
.
Voornaam
Achternaam
E-mailadres
Downloaden
Wanneer je modellen downloadt op Architectenweb.nl worden relevante gegevens van jou – zoals jouw naam en e-mailadres – met het betreffende bedrijf gedeeld. Meer hierover lees je in ons
privacybeleid
.
Trefwoorden
transparantie
transformatie
wonen
De Bever Architecten
Neem contact op
Projectdata
Staat van realisatie
Voltooid
Start bouw
2012
Oplevering
2013
Ingebruikname
2013
Bruto m
2
77
Meewerkende partijen
Architect
De Bever Architecten
Interieurarchitect
De Bever Architecten
Projectarchitect
Stefan de Bever
Ontwerpteam
Stefan de Bever, Heleen van Heel\, Wim Poell, Emilia Seroviec, Thomas van Weert
Opdrachtgever
particulier
Aannemer
BurgtBouw
Constructeur
Archimedes Bouwadvies B.v.
Fotograaf
Norbert van Onna
Projectmanagement
Laride
Leveranciers
Meubilair
PGA-groep
Glasrealisatie
Si-x
Neem contact op met
De Bever Architecten
Je bent momenteel niet ingelogd. Hierdoor is het alleen mogelijk om meer informatie per e-mail op te vragen. Wil je liever gebeld worden of documentatie per post ontvangen?
Klik dan hier om in te loggen
.
Heb je nog geen account?
Maak dan hier een gratis account aan
.
Voornaam
Achternaam
E-mailadres
Opmerkingen
Bij iedere aanvraag worden relevante gegevens van jou gedeeld met het betreffende bedrijf. Meer hierover lees je in ons
privacybeleid
.
Ja, denk met me mee rond de
materialisering van mijn project
Meer projecten van De Bever Architecten
Fashion Tech Farm
De Bever Architecten
Simac
De Bever Architecten
Donna
De Bever Architecten
Fashion Tech Farm
De Bever Architecten
Simac
De Bever Architecten
Donna
De Bever Architecten
Toon alles
Andere Projecten
Nieuwbouwwijk - New Brooklyn
Rodruza B.V.
Tijdloos nieuwbouwproject – Haaksbergen
Joris Ide
JI NatureBlack - Tijdloos design, staalprestaties
Joris Ide
Nieuwbouwcomplex - Elzenhof
Rodruza B.V.
MFC Feanwâlden
KHV Architecten B.V.
Parkeergarage De Caai in Eindhoven
Alucol
Lichtstad Architecten: bouwen aan blijvende ideeën
KUBUS | Specialist in Archicad
Horecapaviljoen Vakantiepark Eigen Wijze
KHV Architecten B.V.
Ontwikkeling Kornputkwartier
KHV Architecten B.V.
IKEA Restaurant, Frankfurt
objectflor
Gevelsteen vormt monumentaal ontwerp
Steenbakkerij Vande Moortel
Nieuw kantoorgebouw
SAPA
Ga naar het projecten-overzicht
Voor een optimale gebruikservaring plaatst Architectenweb functionele cookies. Wat de verschillende cookies precies doen leggen we uit in een
overzicht
. Cookies van social media kun je optioneel
aanzetten
.
Akkoord
Instellingen
Annuleren
OK
Sluiten
Doorgaan
Inloggen
Maak een gratis persoonlijk account aan
Feedback
Feedback
Wij horen graag jouw feedback. Laat je reactie achter en eventueel jouw e-mail adres.
Reactie
Verstuur