Projecten
Producten
Bedrijven
Vacatures
Agenda
Awards
Podcasts
more_horiz
Videos
Magazine
Favorieten
Profiel
Uitloggen
Abonneer je nu op onze nieuwsbrieven!
Abonneren
Nee, bedankt
Ja, denk met me mee rond de
materialisering van mijn project
Producten
voorgevel vanaf ingenieur kalffstraat
Copyright: Norbert van Onna
gevels vanaf Philitelaan
Copyright: Norbert van Onna
voorgevel vanaf ketelhuisplein
Copyright: Bas Gijselhart
Donna vanaf ketelhuisplein
Copyright: Jasper Scheffers
(buiten)ruimte bovenste 4 verdiepingen
Copyright: Norbert van Onna
(buiten)ruimte bovenste 4 verdiepingen
Copyright: Norbert van Onna
(buiten)ruimte bovenste 4 verdiepingen
Copyright: Norbert van Onna
binnen gevel
Copyright: Norbert van Onna
"binnenpatio's" met ruimte voor activiteit, zoals de DDW
Copyright: Jasper Scheffers
hoofdentree
Copyright: De Key / Tegendraads
Interieur van het gebouw, kantoor
Copyright: De Key / Tegendraads
Interieur van het gebouw, café
Copyright: De Key / Tegendraads
langsdoorsnede
Copyright: De Bever Architecten
dwarsdoorsnede
Copyright: De Bever Architecten
locatie
Copyright: De Bever Architecten
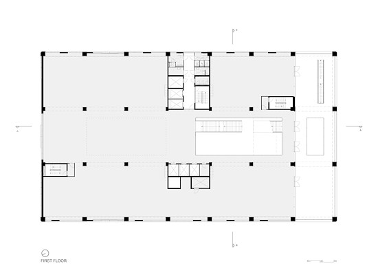
begane grond
Copyright: De Bever Architecten
1ste verdieping
Copyright: De Bever Architecten
4de verdieping
Copyright: De Bever Architecten
7de verdieping
Copyright: De Bever Architecten
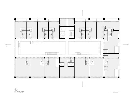
9de verdieping
Copyright: De Bever Architecten
voorgevel
Copyright: De Bever Architecten
zijgevel
Copyright: De Bever Architecten
Producttags
AAN
UIT
Donna
26 juni 2025
0
0
0
0
Strijp-S is in alle opzichten uniek, het hoge percentage creatievelingen dat er nu woont en werkt, het industriële verleden, de werkmentaliteit, de ‘rauwe’ kant van de bestaande gebouwen en de stedenbouwkundige structuur. Het toevoegen van een divers programma en uitdagende nieuwbouw heeft gezorgd dat Strijp-S een plek is geworden waar je wilt zijn, waar je kan leren, wonen, werken en creëren.
In deze context is De Bever architecten gevraagd om op de plek van de tijdelijke parkeergarage naast het klokgebouw een multifunctioneel gebouw te ontwerpen. Het idee om de eigenheid en de robuustheid van het gebied te symboliseren heeft geleid tot een uitnodigend en stoer gebouw welke door zijn vormgeving, materiaalgebruik en structuur zowel bij de oudbouw als bij de nieuwbouw van Strijp-S past.
De dubbelhoge entree met daarboven een publieke buitenruimte accentueren het uitnodigende gebruik van dit gebouw. De hoge terug liggende begane grond geeft toegang tot de grote open binnenruimte. Deze plint met grote XL ramen zorgen tevens voor een maximale transparantie en een zichtlijn naar het Ketelhuisplein. Door het open karakter wijkt dit gebouw af van de links en rechts gelegen relatief gesloten gebouwen en verwerft daarmee een verbindende positie aan de Philitelaan in het hart van Strijp-S.
Multifunctioneel gebruik
Door de grote afmetingen van vloeroverspanningen, dikke hoge betonnen kolommen en gevelopeningen met veel daglicht biedt het gebouw een maximale vrijheid aan de gebruiker deze naar behoeve in te delen. Daarnaast zal ook veel ruimte gedeeld worden, wat de onderlinge verbondenheid en het ontmoeten stimuleert. Een groot gedeelte van de binnenruimte, midden in het gebouw is flexibel in te richten en heeft een semi-privaat, -publiek karakter. Op deze verdiepingen, van de begane grond t/m de 7e verdieping zijn grote open ruimtes met vides en trappen gecreëerd waar ook door het wisselend uitzicht op de stad bijzondere plekken ontstaan.
Het betonskelet en grote delen van de installatietechniek blijven zichtbaar. Deze robuuste uitstraling benadrukt dat het een gebouw betreft waar veel mogelijk is en waar geen grenzen liggen voor het gebruik. In die zin past het in de cultuur van de oude Philipsgebouwen. Gebouwen die na 100 jaar nog steeds voldoen, omdat ze sterk zijn, groot van formaat en daardoor relatief makkelijk te transformeren zijn.
Werklofts en appartementen
De bovenste 4 verdiepingen ( de 8
e
t/m 11
e
verdieping) zijn bestemd voor werkstudio’s en appartementen. Ook hier is de architectuur van een robuust gebouw skelet doorgezet, waarbij de uitstraling veel ruimte laat voor de eindgebruiker. De werkstudio’s en appartementen hebben het karakter van een loft, waarbij het open karakter van de plattegrond en de gevelindeling veel vrijheid geeft mbt de indeling. De separate entrees op de begane grond geven toegang tot de appartementen op de 6
e
tot en met de 9
e
verdieping. Op de 6
e
verdieping is een centraal gelegen, als tuin ingerichte gezamenlijk buitenruimte gecreëerd, waar bewoners gezamenlijk gebruik van kunnen maken.
Stel jezelf kort voor! Dan weet het betreffende bedrijf wie hun brochure gedownload heeft.
Wil je niet bij elke download jouw gegevens in hoeven voeren?
Klik dan hier om in te loggen
. Heb je nog geen account?
Maak dan hier een gratis account aan
.
Voornaam
Achternaam
E-mailadres
Downloaden
Wanneer je brochures downloadt op Architectenweb.nl worden relevante gegevens van jou – zoals jouw naam en e-mailadres – met het betreffende bedrijf gedeeld. Meer hierover lees je in ons
privacybeleid
.
Wanneer je brochures downloadt op Architectenweb.nl worden relevante gegevens van jou – zoals jouw naam en e-mailadres – met het betreffende bedrijf gedeeld. Meer hierover lees je in ons
privacybeleid
.
Brochure
Stel jezelf kort voor! Dan weet het betreffende bedrijf wie hun model gedownload heeft.
Wil je niet bij elke download jouw gegevens in hoeven voeren?
Klik dan hier om in te loggen
.
Heb je nog geen account?
Maak dan hier een gratis account aan
.
Voornaam
Achternaam
E-mailadres
Downloaden
Wanneer je modellen downloadt op Architectenweb.nl worden relevante gegevens van jou – zoals jouw naam en e-mailadres – met het betreffende bedrijf gedeeld. Meer hierover lees je in ons
privacybeleid
.
Locatie
Trefwoorden
flexibiliteit
multifunctioneel gebouw
publieke ruimtes
innovatie
casco
diversiteit
De Bever Architecten
Neem contact op
Projectdata
Staat van realisatie
Voltooid
Start ontwerpproces
2013
Start bouw
2020
Oplevering
2024
Ingebruikname
2024
Plaats
Eindhoven
Meewerkende partijen
Architect
De Bever Architecten
Projectarchitect
Stefan de Bever
Ontwerpteam
Stefan de Bever, Wim Poell, Heleen van Heel, Niels van Ham, Maarten Jansen, Ioana Birgaoanu
Opdrachtgever
Strijp-S Ontwikkeling bv., SDK Vastgoed bv.
Aannemer
Wessels Zeist bv.
Constructeur
Adviesbureau Tielemans B.V.
Fotograaf
Norbert van Onna, Bas Gijselhart, Jasper Scheffers, De Key / Tegendraads
Adviseur bouwfysica
Peutz bv.
Adviseur akoestiek
Peutz bv.
Adviseur brandveiligheid
Peutz bv.
Leveranciers
Prefab betonnen constructie-elementen
Westo Prefab Betonsystemen BV
Vliesgevelsystemen
Schüco Nederland
Prefab kanaalplaatvloeren (kantoor vloer)
VBI
Semi-prefab vloerelementen (apartement vloer)
Dycore bv.
Neem contact op met
De Bever Architecten
Je bent momenteel niet ingelogd. Hierdoor is het alleen mogelijk om meer informatie per e-mail op te vragen. Wil je liever gebeld worden of documentatie per post ontvangen?
Klik dan hier om in te loggen
.
Heb je nog geen account?
Maak dan hier een gratis account aan
.
Voornaam
Achternaam
E-mailadres
Opmerkingen
Bij iedere aanvraag worden relevante gegevens van jou gedeeld met het betreffende bedrijf. Meer hierover lees je in ons
privacybeleid
.
Ja, denk met me mee rond de
materialisering van mijn project
Meer projecten van De Bever Architecten
Fashion Tech Farm
De Bever Architecten
Woonhuis IV
De Bever Architecten
Simac
De Bever Architecten
Fashion Tech Farm
De Bever Architecten
Woonhuis IV
De Bever Architecten
Simac
De Bever Architecten
Toon alles
Andere Projecten
Six Degrees Café
Malaysian Timber Council
Open vloergootsysteem voor The CubeHouse Amsterdam
HPL Systems BV
Almere De Laren
Schippers Architecten
Wooncomplex Lariks in Houthaven
Mapro
Nieuwe kantoorinrichting BDO Brabant
Kronospan
De Toerist in Breda
DUCO Ventilation & Sun Control
In ontwikkeling: IKC Strandeiland, Amsterdam
WEBO
Gorter op nieuwbouw sociale huurappartementen
Gorter Luiken BV
Prefab villa - Egmond aan Zee
Houthandel van Dam
Nieuwbouw poeliersbedrijf Van Berkel Kip
Ruys Groep
Nieuwbouw 107 appartementen Spoordok
Gorter Luiken BV
Appartementencomplex - Résidence Gooiland
Rodruza B.V.
Ga naar het projecten-overzicht
Voor een optimale gebruikservaring plaatst Architectenweb functionele cookies. Wat de verschillende cookies precies doen leggen we uit in een
overzicht
. Cookies van social media kun je optioneel
aanzetten
.
Akkoord
Instellingen
Annuleren
OK
Sluiten
Doorgaan
Inloggen
Maak een gratis persoonlijk account aan
Feedback
Feedback
Wij horen graag jouw feedback. Laat je reactie achter en eventueel jouw e-mail adres.
Reactie
Verstuur