Projecten
Producten
Bedrijven
Vacatures
Agenda
Awards
Podcasts
more_horiz
Videos
Magazine
Thema's
Favorieten
Profiel
Uitloggen
Producten
Stedelijke inpassing Groene Loper
Copyright: René de Wit
Entree
Copyright: René de Wit
Entree
Copyright: René de wit
Fragment gevel noordwestelijke zijde
Copyright: René de Wit
Gevel detail
Copyright: René de Wit
Gevel fragment noordwestelijke gevel
Copyright: Artesk van Royen Architecten
Woongebouw Jolie
Copyright: René de Wit
Gevel fragment met de maisonnetes
Copyright: René de Wit
Woongebouw Jolie
Copyright: René de Wit
Penthouses
Copyright: René de Wit
Hoekappartement vierde verdieping
Copyright: René de Wit
Gevel Kennedysingel
Copyright: René de Wit
Gevel Kennedysingel
Copyright: René de Wit
Groene Loper Maastricht
Copyright: Artesk van Royen Architecten
Inpassing
Copyright: Artesk van Royen Architecten
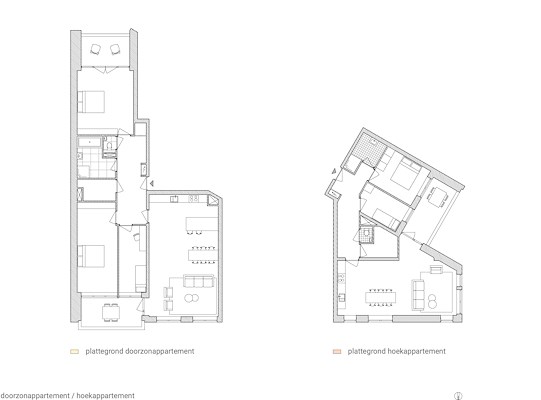
Plattegronden
Copyright: Artesk van Royen Architecten
Plattegrond appartementen
Copyright: Artesk van Royen Architecten
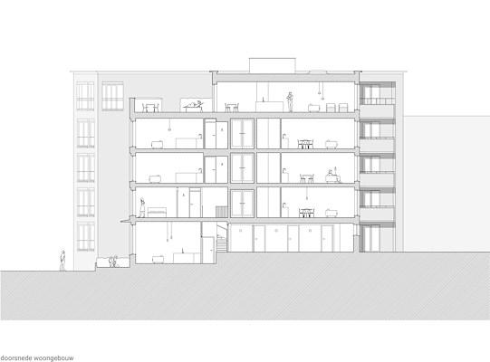
Doorsnede
Copyright: Artesk van Royen Architecten
Axenometrie van de entreehal
Copyright: Artesk van Royen Architecten
Entree
Copyright: René de Wit
Trappenhuis
Copyright: René de Wit
Entree
Copyright: René de Wit
Kennedysingel
Copyright: Artesk van Royen Architecten
Producttags
AAN
UIT
Nieuwbouw woongebouw Jolie
25 juni
0
0
0
0
Het nieuwe stadsdeel Le Sud bevindt in het zuidelijk deel van de Groene Loper in Maastricht. Het appartementencomplex Jolie vormt samen met het woongebouw van Jo Janssen Architecten en het zorgcomplex van Martens Willems & Humblé Architecten één stedelijke wand.
Deze stedelijk wand zal worden beëindigd door een woontoren van Office Winhov. In de ontwerpfase is er een nauwe samenwerking tussen de ontwerpbureaus geweest, om de stedelijke wand qua sfeer een gelijke uitstraling te geven. Woongebouw Jolie bestaat uit 34 koopappartementen in 12 verschillende types.Aan beide zijden van het gebouw zijn maisonnettes en appartementen gesitueerd. Naast enkele grotere doorzonappartementen die zich uitstrekken van de ene naar de andere gevel zijn er bijzondere hoekappartementen, met op de bovenste laag penthouses over de hele diepte van het gebouw. De hoekappartementen zijn voorzien van bijzondere plattegronden. De maisonnettes aan de noordwestkant van het gebouw hebben een hoge begane grond en zijn ontworpen om het hoogteverschil tussen de voor- en achterzijde van het terrein te overbruggen.
De detaillering van de gevel aan de stadszijde, grenzend aan de nieuwe woonwijk, wordt gekenmerkt door een rijke vormentaal in baksteen. Dit is een autoluw gebied waar de voorbijganger traag passeert en meer kan ervaren van de architectuur. De gevel grenzend aan de Kennedysingel passeer je met 70 km per uur, de architectuur is aan deze zijde eenduidiger en strakker gehouden. Het project is in bouwteam samen met de opdrachtgever, aannemer en adviseurs ontwikkeld, onder supervisie van West 8 en Fred Humblé.
Stel jezelf kort voor! Dan weet het betreffende bedrijf wie hun brochure gedownload heeft.
Wil je niet bij elke download jouw gegevens in hoeven voeren?
Klik dan hier om in te loggen
. Heb je nog geen account?
Maak dan hier een gratis account aan
.
Voornaam
Achternaam
E-mailadres
Downloaden
Wanneer je brochures downloadt op Architectenweb.nl worden relevante gegevens van jou – zoals jouw naam en e-mailadres – met het betreffende bedrijf gedeeld. Meer hierover lees je in ons
privacybeleid
.
Wanneer je brochures downloadt op Architectenweb.nl worden relevante gegevens van jou – zoals jouw naam en e-mailadres – met het betreffende bedrijf gedeeld. Meer hierover lees je in ons
privacybeleid
.
Brochure
Stel jezelf kort voor! Dan weet het betreffende bedrijf wie hun model gedownload heeft.
Wil je niet bij elke download jouw gegevens in hoeven voeren?
Klik dan hier om in te loggen
.
Heb je nog geen account?
Maak dan hier een gratis account aan
.
Voornaam
Achternaam
E-mailadres
Downloaden
Wanneer je modellen downloadt op Architectenweb.nl worden relevante gegevens van jou – zoals jouw naam en e-mailadres – met het betreffende bedrijf gedeeld. Meer hierover lees je in ons
privacybeleid
.
Locatie
Trefwoorden
appartementen complex
limburg
le sud
woongebouw
jolie
groene loper
maastricht
Artesk van Royen Architecten
Neem contact op
Projectdata
Staat van realisatie
Voltooid
Start ontwerpproces
2020
Start bouw
2022
Oplevering
2025
Ingebruikname
2024
Plaats
Maastricht
Kosten
13551
Meewerkende partijen
Architect
Artesk van Royen Architecten
Projectarchitect
Teske van Royen, Luca Simons
Ontwerpteam
Teske van Royen, Luca Simons, Maurice Gortmans
Opdrachtgever
Ballast Nedam Development
Aannemer
Laudy Bouw & Ontwikkeling
Constructeur
Ingenieursbureau Van der Werf & Nass
Adviseurs installaties E & W
Kompas 360
Fotograaf
Rene de Wit
Stedenbouwkundige
West 8 Landschap en Stedenbouw, Fred Humblé
Adviseur akoestiek
WSP Adviseurs
Adviseur brandveiligheid
GBB Maastricht
Leveranciers
Kozijnen en deuren
Alhako
Tegels entreehal
onbekend
Buitenverlichting
BEGA
Gevel
BMN bouwmaterialen
Prefab beton onderdelen
Lammers beton
Overig
onbekend / Laudy bouw, onbekend / Laudy bouw
Neem contact op met
Artesk van Royen Architecten
Je bent momenteel niet ingelogd. Hierdoor is het alleen mogelijk om meer informatie per e-mail op te vragen. Wil je liever gebeld worden of documentatie per post ontvangen?
Klik dan hier om in te loggen
.
Heb je nog geen account?
Maak dan hier een gratis account aan
.
Voornaam
Achternaam
E-mailadres
Opmerkingen
Bij iedere aanvraag worden relevante gegevens van jou gedeeld met het betreffende bedrijf. Meer hierover lees je in ons
privacybeleid
.
Ja, denk met me mee rond de
materialisering van mijn project
Meer projecten van Artesk van Royen Architecten
Nieuwbouw tuinhuis | renovatie villa
Artesk van Royen Architecten
Andere Projecten
Staande naalddak voor het nieuwe Everton Stadium
BEMO SYSTEMS GmbH
Verlichting fietsenstalling Koopgoot Rotterdam
Loerakker led line
Efficiënt afvaltransport in ziekenhuis St. Jansdal
Stansz
Emco entreematten in museale architectuur
EMCO Benelux B.V.
Duurzame zwembadroosters voor zwemcentrum De Welle
EMCO Benelux B.V.
Gorter dakluiken op Spaarnwoude Park Hotel
Gorter Luiken BV
Veilige daktoegang nieuwbouw Emmapark
Gorter Luiken BV
Houten huis in de polder - WaxedWood Gold Color
Foreco Houtproducten
Ottho Amsterdam - geluidwerende balkonbeglazing
Solarlux Nederland B.V.
Groningse baksteenarchitectuur met Clickbrick Pure
wienerberger
Duurzame transformatie met groene gevel in Utrecht
Sempergreen
Low Carbon isolatieglas van Vandaglas voor Kavel F
Vandaglas b.v.
Ga naar het projecten-overzicht
Voor een optimale gebruikservaring plaatst Architectenweb functionele cookies. Wat de verschillende cookies precies doen leggen we uit in een
overzicht
. Cookies van social media kun je optioneel
aanzetten
.
Akkoord
Instellingen
Annuleren
OK
Sluiten
Doorgaan
Inloggen
Maak een gratis persoonlijk account aan
Feedback
Feedback
Wij horen graag jouw feedback. Laat je reactie achter en eventueel jouw e-mail adres.
Reactie
Verstuur