Abonneer je nu op onze nieuwsbrieven!
Abonneren
Nee, bedankt
Ja, denk met me mee rond de
materialisering van mijn project
Producten
Toren in het bos
Copyright: Sebastian van Damme
Loodrecht perspectief
Copyright: Sebastian van Damme
Entree
Copyright: Sebastian van Damme
Entreehal
Copyright: Sebastian van Damme
Bos als behang
Copyright: Sebastian van Damme
Hoek fragment
Copyright: Sebastian van Damme
In de boomtoppen
Copyright: Sebastian van Damme
Zigzag-gevel
Copyright: Sebastian van Damme
Hangende balkons
Copyright: Sebastian van Damme
Toren op glooiend landschap
Copyright: Sebastian van Damme
Drijvende buitenruimtes
Copyright: Sebastian van Damme
Boven de boomtoppen
Copyright: Sebastian van Damme
Conceptschema
Copyright: Orange Architects
Situatietekening
Copyright: Orange Architects
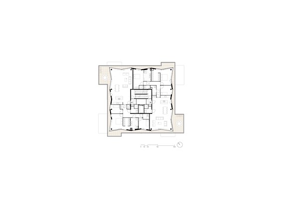
Plattegrond 2e verdieping
Copyright: Orange Architects
Doorsnede
Copyright: Orange Architects
Aanzicht noordgevel
Copyright: Orange Architects
Gevelfragment
Copyright: Orange Architects
Detail
Copyright: Orange Architects
Duurzaamheidsschema
Copyright: Orange Architects
ProducttagsAANUIT

Beaufort, Zeist

21 juni 2024
Pal aan de rand van de Utrechtse Heuvelrug, in het midden van het land, staat Beaufort; een sculpturale toren van gestapelde bosvilla’s. Het gebouw huisvest 19 royale appartementen met panoramisch uitzicht over de bosrijke omgeving. De toren is onderdeel van de herstructurering van de wijk Kerckebosch te Zeist en vormt de sluitsteen in een reeks van nieuwe appartementengebouwen, aan de rand van het bos.

Voor het ontwerp van Beaufort heeft de groene en bosachtige omgeving op zand tot directe inspiratie geleid. De thema’s ‘zand–stam–blad’ zijn de dragers van het concept en de materialisatie van de toren, waarbij de stapeling van deze thema’s – in lagen op elkaar – heeft geleid tot het uiteindelijke ontwerp. Hierdoor laat de toren zich lezen als een onregelmatige stapeling van naar buiten vouwende balkons en borstweringen, waarmee het gebouw zich vanzelfsprekend vervlecht met haar bosrijke omgeving, terwijl het tegelijkertijd als een baken de entree van Kerckebosch markeert.

Het gebouw is geworteld in haar groene omgeving. De entree wordt bereikt via een glooiend, oplopend bospad. De geknikte gevel vouwt ter plaatse van de entree van de toren naar binnen, waarmee het thuiskomen op een uitnodigende wijze is vorm gegeven. Eenmaal binnen ontvouwt zich een dubbelhoge entreehal met zicht op de omgeving en de centraal geplaatste kern, met liften en trappen, die toegang geeft tot de appartementen.

De toren oogt sculpturaal, maar is tegelijkertijd opgezet binnen een rationele grid-structuur, waarin de kern tezamen met de kolommen in de gevellijn de draagstructuur vormt. Deze structuur wordt doorgezet tot in de half verdiepte parkeergarage, waar zich ook de bergingen van de appartementen bevinden. Bovengronds telt het gebouw 10 bouwlagen, met op iedere verdieping 2 L-vormige appartementen, die overhoeks zijn ontworpen en spiegel symmetrisch georiënteerd zijn, waardoor een diversiteit in uitzicht en woonervaring wordt gecreëerd. De uitzondering binnen deze configuratie is de bovenste verdieping, waar zich een 360 graden rondlopend penthouse bevindt.

De appartementen zijn rondom voorzien van royale buitenruimtes. Door het wisselend laten uitsteken van vloervelden ontstaan op strategische plekken grote ‘buitenkamers’. Ter plaatse van deze ruimtes, mede door het knikken van de gevels lijkt de grens tussen binnen en buiten te vervagen, waarmee de bosrijke omgeving deel gaat uitmaken van het wonen op deze bijzondere plek.

Binnen het thema ‘zand’ zijn de borstweringen uitgewerkt. Op basis van een zelf ontworpen patroon van zandribbels, zijn mallen gebouwd, waarin dunne GRC elementen gespoten zijn. De buitenplafonds, tegen alle onderzijden van de balkons, krijgen vorm binnen het thema ‘blad’, door een afwerking met groene ribbelvormige houtwolcement panelen met naaldmotief. De geprofileerde Fraké-houten gevelbekleding tot slot is binnen het thema ‘stam’ uitgewerkt.

Het natuur-inclusieve landschapsontwerp rond het gebouw is gericht op het behouden en versterken van de bestaande biodiversiteit en de kwaliteiten van de natuurlijke omgeving. Doordat een rijke variëteit aan lokale vegetatiesoorten op de half verdiepte parkeergarage geplant wordt, strekt het bos zich uit tot aan de gevels van het gebouw. Naast de beplanting zijn er diverse andere ontwerpoplossingen doorgevoerd om de parkeergarage in het landschap te laten verdwijnen; het gebruik van turf bio-blokken voor de bekleding van de keermuren, open bestrating voor de parkeerplaatsen en boomstammen als keerstructuren. Regenwater dat van het dak en de terrassen wordt verzameld, wordt naar de nabijgelegen wadi’s geleid.

Het gebouw zelf is ontworpen met het oog op veranderende behoeften, duurzaam materiaalgebruik en efficiënt energieverbruik. De kolomstructuur van het gebouw zorgt voor veel flexibiliteit en aanpasbaarheid voor toekomstig gebruik. Duurzame Fraké-houten gevelbetimmering en zeer dunne prefab GRC-panelen zijn gemakkelijk demonteerbare en herbruikbare gevelelementen. Een collectieve WKO installatie, met bodemlussen voor warmte en koeling, zonnepanelen op het dak, triple glazing, buitenzonwering en ventilatie met warmteterugwinning zorgt voor een duurzaam energieconcept, dat ruimschoots voldoet aan BENG.

Vanaf de ingang van het appartementencomplex tot aan de buitenruimtes van de appartementen zijn alle vloeren drempelloos toegankelijk, wat een optimale bereikbaarheid garandeert voor alle leeftijdsgroepen en mensen met bewegingsbeperkingen. Enorme panoramische ramen en zeer royale balkons bieden rustgevende uitzichten en verbinding met de natuur.

Stel jezelf kort voor! Dan weet het betreffende bedrijf wie hun model gedownload heeft.
Wil je niet bij elke download jouw gegevens in hoeven voeren?
Klik dan hier om in te loggen.

Heb je nog geen account? Maak dan hier een gratis account aan.
Voornaam
Achternaam
E-mailadres
Downloaden
Wanneer je modellen downloadt op Architectenweb.nl worden relevante gegevens van jou – zoals jouw naam en e-mailadres – met het betreffende bedrijf gedeeld. Meer hierover lees je in ons privacybeleid.

Locatie

Neem contact op met Orange Architects

Je bent momenteel niet ingelogd. Hierdoor is het alleen mogelijk om meer informatie per e-mail op te vragen. Wil je liever gebeld worden of documentatie per post ontvangen? Klik dan hier om in te loggen.
Heb je nog geen account? Maak dan hier een gratis account aan.
Voornaam
Achternaam
E-mailadres
Opmerkingen
Bij iedere aanvraag worden relevante gegevens van jou gedeeld met het betreffende bedrijf. Meer hierover lees je in ons privacybeleid.
Ja, denk met me mee rond de
materialisering van mijn project

Meer projecten van Orange Architects

Orange Architects
Orange Architects
Orange Architects
Orange Architects
Orange Architects
Orange Architects
Orange Architects
Orange Architects
Toon alles

Gerelateerde producten

ATAG Nederland
KUBUS | Specialist in Archicad
SAPA
Reynaers Aluminium Nederland
Jansen
SAB-profiel bv
Aliplast Aluminium Systems
Kingspan Light & Air
ALUCOBOND®
Caparol
Tarkett BV
Kawneer
Grohe Nederland B.V.
Malaysian Timber Council
OCS | Office Cabling Systems
Swisspearl Nederland
Forster Nederland N.V.
VELUX Commercial Benelux B.V.
Sempergreen
Houthandel van Dam
Aluprof Nederland BV
QbiQ Wall Systems
Forbo Flooring
Schüco Nederland
Cedral
Sto Isoned bv
Triflex bv
Gorter Luiken BV
wienerberger
DUCO Ventilation & Sun Control
BEWI IsoBouw
ROCKWOOL B.V.
Mview+
Rockfon (ROCKWOOL B.V.)
Gira Nederland B.V.
Kingspan Geïsoleerde Panelen
GEZE Benelux  B.V.
Renson
Metaglas Groep
ABB | Busch-Jaeger
Jung | Hateha B.V.
Knauf B.V.
Saint-Gobain Glass Benelux
Faay Vianen B.V.
objectflor
Boon Edam Nederland B.V.
Hunter Douglas Architectural
VOLA Nederland BV
Forbo Eurocol Nederland B.V.
EQUITONE gevelpanelen
Holonite B.V.
Tata Steel Colorcoat®
Architectenweb
Over ons
Contact

© 2002 - 2026 Architectenweb BV / Voorwaarden / Privacy / Disclaimer / Sitemap
Annuleren
OK
Sluiten
Doorgaan
Inloggen
Maak een gratis persoonlijk account aan