Abonneer je nu op onze nieuwsbrieven!
Abonneren
Nee, bedankt
Ja, denk met me mee rond de
materialisering van mijn project
Producten
Copyright: NUDUS
Copyright: NUDUS
Copyright: NUDUS
Copyright: NUDUS
Copyright: NUDUS
Copyright: NUDUS
Copyright: NUDUS
Copyright: NUDUS
Copyright: NUDUS
Copyright: NUDUS
Copyright: NUDUS
Copyright: NUDUS
Copyright: NUDUS
Copyright: NUDUS
Copyright: NUDUS
Copyright: NUDUS
Copyright: NUDUS
Copyright: NUDUS
Copyright: NUDUS
Copyright: NUDUS
Copyright: NUDUS
Copyright: NUDUS
Copyright: NUDUS
Copyright: NUDUS
Copyright: NUDUS
Copyright: NUDUS
Copyright: NUDUS
Copyright: NUDUS
ProducttagsAANUIT

Fontys Campus

18 juni 2024
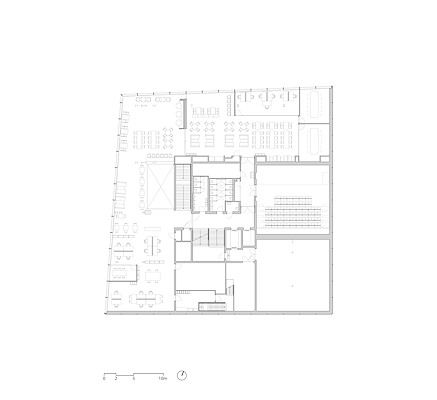
De Campus Rachelsmolen van Fontys Hogescholen in Eindhoven heeft een transformatie ondergaan van een gesloten eiland in de stad naar een inspirerende leeromgeving. Het ontwerpteam van Barcode Architects, Nudus, OKRA landschapsarchitecten en Hollandse Nieuwe was verantwoordelijk voor het ontwerp van een masterplan, het omliggend landschap en de realisatie van drie nieuwe onderwijsgebouwen. 

Integratie van stad en campus
Oorspronkelijk was Rachelsmolen een omheinde campus, met een lay-out die voornamelijk gericht was op parkeren. Hierin zag het ontwerpteam een uitdagende kans om de plek te openen naar de stad en zo campus en stad met elkaar in verbinding te brengen. De 24.000 m² aan nieuw programma is daarom niet ondergebracht in één groot gebouw, maar verdeeld over drie afzonderlijke volumes. De verschillende opleidingen en instituten zijn verspreid over de gebouwen om zo veel mogelijk ontmoeting en kruisbestuiving te stimuleren. De nieuwe onderwijsgebouwen zijn zo geplaatst dat ze een eenheid vormen met de bestaande gebouwen en het landschap. Samen omzomen ze een binnengebied, een groene en uitnodigende openbare ruimte van 4 ha met een bruisend plein. Dit plein dient als een ontmoetingspunt voor studenten, docenten en overige gebruikers, als een plek waar interactie en verbinding centraal staan. 

Gebouw R11: het centrale gebouw
Het nieuwe gebouw R11 neemt een centrale plek in op de campus. Het bevat functies die voor de hele Fontys-gemeenschap toegankelijk zijn, zoals het restaurant, de bibliotheek en een ruime collegezaal. Bijzonder aan R11 is dat het twee gezichten heeft: aan de campuszijde presenteert het zich met een transparante en uitnodigende façade, terwijl het aan de zijde van de aangrenzende woonwijk een meer gesloten karakter heeft, bekleed met gevouwen, reflecterende platen. Zo creëert het gebouw een robuuste verbinding tussen het interieur en het omringende landschap, maar door het spiegelende karakter ook een dialoog met de gebruikers van de campus. 

Gebouw R12: publiek, maar ook privé
R12 is het gebouw voor praktijkgericht onderwijs met gespecialiseerde faciliteiten die professionele settings nabootsen zoals fysiotherapie, MRI en chirurgie. Enkele van deze ruimtes zijn open voor publiek, zodat Eindhovenaren toegang hebben tot specifieke medische behandelingen. Het ontwerp van het gebouw weerspiegelt een balans tussen toegankelijkheid en privacy, met een uitnodigend atrium, uitgebreide raampartijen en een prominente trap die dient als zittribune en route door het gebouw, en die verschillende verdiepingen met elkaar verbindend. Dieper in het gebouw zijn de privéruimtes strategisch geplaatst weg van de centrale routes, om zo de privacy, veiligheid en het comfort van studenten en patiënten te waarborgen. 

Gebouw R13: de prominente campusetalage
Het R13-gebouw heeft een dubbele functie. Het fungeert als de prominente etalage van de campus en als een essentiële schakel tussen de campus en de stad. Een opvallend éénlaags volume doorsnijdt het gebouw loodrecht, en biedt zo een hoofdentree aan zowel de stads- als campuszijde. De gevel van het volume valt op door een unieke trap-tribune, die niet alleen plaats biedt aan weelderig groen en geïntegreerde zitgelegenheden, maar ook een rol heeft als het openluchttheater van de campus. De integratie van dit architectonische object zorgt voor een aangename aansluiting tussen het gebouw en de natuurlijke omgeving, zowel qua vormgeving als gebruik. Tegelijkertijd introduceert het een menselijke schaal, die de toegankelijkheid en verbondenheid van gebouw met de omgeving verhoogt.

Stel jezelf kort voor! Dan weet het betreffende bedrijf wie hun brochure gedownload heeft.
Wil je niet bij elke download jouw gegevens in hoeven voeren?
Klik dan hier om in te loggen. Heb je nog geen account? Maak dan hier een gratis account aan.
Voornaam
Achternaam
E-mailadres
Downloaden
Wanneer je brochures downloadt op Architectenweb.nl worden relevante gegevens van jou – zoals jouw naam en e-mailadres – met het betreffende bedrijf gedeeld. Meer hierover lees je in ons privacybeleid.
Wanneer je brochures downloadt op Architectenweb.nl worden relevante gegevens van jou – zoals jouw naam en e-mailadres – met het betreffende bedrijf gedeeld. Meer hierover lees je in ons privacybeleid.

Stel jezelf kort voor! Dan weet het betreffende bedrijf wie hun model gedownload heeft.
Wil je niet bij elke download jouw gegevens in hoeven voeren?
Klik dan hier om in te loggen.

Heb je nog geen account? Maak dan hier een gratis account aan.
Voornaam
Achternaam
E-mailadres
Downloaden
Wanneer je modellen downloadt op Architectenweb.nl worden relevante gegevens van jou – zoals jouw naam en e-mailadres – met het betreffende bedrijf gedeeld. Meer hierover lees je in ons privacybeleid.

Locatie

Neem contact op met NUDUS

Je bent momenteel niet ingelogd. Hierdoor is het alleen mogelijk om meer informatie per e-mail op te vragen. Wil je liever gebeld worden of documentatie per post ontvangen? Klik dan hier om in te loggen.
Heb je nog geen account? Maak dan hier een gratis account aan.
Voornaam
Achternaam
E-mailadres
Opmerkingen
Bij iedere aanvraag worden relevante gegevens van jou gedeeld met het betreffende bedrijf. Meer hierover lees je in ons privacybeleid.
Ja, denk met me mee rond de
materialisering van mijn project

Meer projecten van NUDUS

Gerelateerde bedrijven

KUBUS | Specialist in Archicad
SAPA
Reynaers Aluminium Nederland
Jansen
SAB-profiel bv
Aliplast Aluminium Systems
Kingspan Light & Air
ALUCOBOND®
Caparol
Tarkett BV
Kawneer
Grohe Nederland B.V.
Malaysian Timber Council
OCS | Office Cabling Systems
Swisspearl Nederland
Forster Nederland N.V.
VELUX Commercial Benelux B.V.
Sempergreen
Houthandel van Dam
Aluprof Nederland BV
QbiQ Wall Systems
Forbo Flooring
Schüco Nederland
Cedral
Sto Isoned bv
Triflex bv
Gorter Luiken BV
wienerberger
DUCO Ventilation & Sun Control
BEWI IsoBouw
ROCKWOOL B.V.
Mview+
Rockfon (ROCKWOOL B.V.)
Gira Nederland B.V.
Kingspan Geïsoleerde Panelen
GEZE Benelux  B.V.
Renson
Metaglas Groep
ABB | Busch-Jaeger
Jung | Hateha B.V.
Knauf B.V.
Saint-Gobain Glass Benelux
Faay Vianen B.V.
objectflor
Boon Edam Nederland B.V.
Hunter Douglas Architectural
VOLA Nederland BV
Forbo Eurocol Nederland B.V.
EQUITONE gevelpanelen
Holonite B.V.
Kronospan
Tata Steel Colorcoat®
Architectenweb
Over ons
Contact

© 2002 - 2026 Architectenweb BV / Voorwaarden / Privacy / Disclaimer / Sitemap
Annuleren
OK
Sluiten
Doorgaan
Inloggen
Maak een gratis persoonlijk account aan