Projecten
Producten
Bedrijven
Vacatures
Agenda
Awards
Podcasts
more_horiz
Videos
Magazine
Thema's
Favorieten
Profiel
Uitloggen
Abonneer je nu op onze nieuwsbrieven!
Abonneren
Nee, bedankt
Ja, denk met me mee rond de
materialisering van mijn project
Producten
Coffeeshop Noord Ooievaarsweg
Copyright: MWA Hart Nibbrig
Coffeeshop Noord Ooievaarsweg
Copyright: MWA Hart Nibbrig
Coffeeshop Noord Ooievaarsweg
Copyright: MWA Hart Nibbrig
Coffeeshop Noord Ooievaarsweg
Copyright: MWA Hart Nibbrig
Coffeeshop Noord Ooievaarsweg
Copyright: MWA Hart Nibbrig
Coffeeshop Noord Ooievaarsweg
Copyright: MWA Hart Nibbrig
Coffeeshop Noord Ooievaarsweg
Copyright: MWA Hart Nibbrig
Coffeeshop Noord Ooievaarsweg
Copyright: MWA Hart Nibbrig
Coffeeshop Noord Ooievaarsweg
Copyright: MWA Hart Nibbrig
geveltekening
Copyright: MEESVISSER
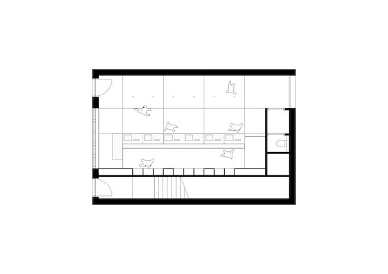
plattegrond
Copyright: MEESVISSER
axonometrie
Copyright: MEESVISSER
Producttags
AAN
UIT
Coffeeshop Noord
28 mei 2024
0
0
0
0
In de Vogelbuurt in Amsterdam Noord heeft MEESVISSER een nieuwe cannabiswinkel ontworpen. Een woon-werkpand uit het begin van de twintigste eeuw is omgetoverd tot een lichte en uitnodigende coffeeshop op de begane grond, met een ruim appartement op de bovenverdiepingen.
Het zorgvuldig ontworpen interieur straalt warmte en ambacht uit, aansluitend op de architectuur en het karakter van de buurt. De gevel van het pand is met een grondige en detailgetrouwe renovatie in ere hersteld. De oorspronkelijk donkere ruimte is nu een transparante en uitnodigende winkel. De eikenhouten afwerking van het plafond en de kastenwand geeft de ruimte een intieme uitstraling. Dankzij de grote pui en spiegelwand is de sfeer van de winkel goed zichtbaar vanaf de straat. Aan de achterzijde heeft een uitbouw plaatsgemaakt voor de patio, waardoor het licht nu vanaf twee zijden de winkel binnenvalt.
De reflectie van de spiegelwand en de marmeren vloer zorgt overdag voor een gevulde ruimte met daglicht. Het materialenpalet, bestaande uit marmer, eikenhout en messing, verwijst naar een klassieke apotheek. De spiegelwand verdubbelt optisch de grootte van de smalle winkel. Aan de achterkant geeft een met messing beklede muur het interieur een warme gloed.
De lange marmeren balie staat voor een houten kastenwand met een ritme van smalle onderverdelingen en messing invullingen. De verticale latten komen uit de lambrisering naar boven, omlijsten de nissen in de kast en over het plafond door in cassetten waarin verlichting, audio en techniek zorgvuldig zijn geïntegreerd.
Stel jezelf kort voor! Dan weet het betreffende bedrijf wie hun brochure gedownload heeft.
Wil je niet bij elke download jouw gegevens in hoeven voeren?
Klik dan hier om in te loggen
. Heb je nog geen account?
Maak dan hier een gratis account aan
.
Voornaam
Achternaam
E-mailadres
Downloaden
Wanneer je brochures downloadt op Architectenweb.nl worden relevante gegevens van jou – zoals jouw naam en e-mailadres – met het betreffende bedrijf gedeeld. Meer hierover lees je in ons
privacybeleid
.
Wanneer je brochures downloadt op Architectenweb.nl worden relevante gegevens van jou – zoals jouw naam en e-mailadres – met het betreffende bedrijf gedeeld. Meer hierover lees je in ons
privacybeleid
.
Brochure
Stel jezelf kort voor! Dan weet het betreffende bedrijf wie hun model gedownload heeft.
Wil je niet bij elke download jouw gegevens in hoeven voeren?
Klik dan hier om in te loggen
.
Heb je nog geen account?
Maak dan hier een gratis account aan
.
Voornaam
Achternaam
E-mailadres
Downloaden
Wanneer je modellen downloadt op Architectenweb.nl worden relevante gegevens van jou – zoals jouw naam en e-mailadres – met het betreffende bedrijf gedeeld. Meer hierover lees je in ons
privacybeleid
.
Locatie
MEESVISSER
Neem contact op
Projectdata
Staat van realisatie
Voltooid
Start ontwerpproces
2022
Start bouw
2023
Oplevering
2024
Ingebruikname
2024
Plaats
Amsterdam
Meewerkende partijen
Architect
MEESVISSER
Interieurarchitect
MEESVISSER
Opdrachtgever
Amsterdam Genetics
Aannemer
Building Support, 2D&W
Constructeur
Duyts
Fotograaf
M. Hart Nibbrig
Adviseur licht
Frans van Hooijdonk
Leveranciers
Overig
oneA
Neem contact op met
MEESVISSER
Je bent momenteel niet ingelogd. Hierdoor is het alleen mogelijk om meer informatie per e-mail op te vragen. Wil je liever gebeld worden of documentatie per post ontvangen?
Klik dan hier om in te loggen
.
Heb je nog geen account?
Maak dan hier een gratis account aan
.
Voornaam
Achternaam
E-mailadres
Opmerkingen
Bij iedere aanvraag worden relevante gegevens van jou gedeeld met het betreffende bedrijf. Meer hierover lees je in ons
privacybeleid
.
Ja, denk met me mee rond de
materialisering van mijn project
Meer projecten van MEESVISSER
Goudvink, 93 sociale huurapp. voor starters
MEESVISSER
Boerejongens
MEESVISSER
Goudvink, 93 sociale huurapp. voor starters
MEESVISSER
Boerejongens
MEESVISSER
Toon alles
Andere Projecten
Nieuwbouw hal BPA Blueprint Automation
Houthandel van Dam
Appartement Tilburg
Houthandel van Dam
Luxe appartementen de Haaf
Houthandel van Dam
New Brooklyn – Almere Poort
VBI
Obèche Noir toegepast op Appartmenten Maassluis
Houthandel van Dam
Renovatie kantoorpand Houthandel Van Dam
Houthandel van Dam
Huis van de Gemeente Voorst
Kawneer
Rumah Kechik, Malacca
Malaysian Timber Council
Plus Ultra III - EUROLACKE Poedercoatings
EUROLACKE
Energiezuinig gebouwd IKC 's-Heer Arendskerke
wienerberger
Duurzame houten gevelbekleding woning in Sappemeer
Foreco Houtproducten
BDO kantoor Breda
ULMA Architectural Solutions
Ga naar het projecten-overzicht
Voor een optimale gebruikservaring plaatst Architectenweb functionele cookies. Wat de verschillende cookies precies doen leggen we uit in een
overzicht
. Cookies van social media kun je optioneel
aanzetten
.
Akkoord
Instellingen
Annuleren
OK
Sluiten
Doorgaan
Inloggen
Maak een gratis persoonlijk account aan
Feedback
Feedback
Wij horen graag jouw feedback. Laat je reactie achter en eventueel jouw e-mail adres.
Reactie
Verstuur