Projecten
Producten
Bedrijven
Vacatures
Agenda
Awards
Podcasts
more_horiz
Videos
Magazine
Thema's
Favorieten
Profiel
Uitloggen
Abonneer je nu op onze nieuwsbrieven!
Abonneren
Nee, bedankt
Ja, denk met me mee rond de
materialisering van mijn project
Producten
Copyright: BuroNord
Copyright: BuroNord
Copyright: BuroNord
Copyright: BuroNord
Copyright: BuroNord
Copyright: BuroNord
Copyright: BuroNord
Copyright: BuroNord
Copyright: BuroNord
Copyright: BuroNord
Copyright: BuroNord
Copyright: BuroNord
Producttags
AAN
UIT
Energieneutral en demontabel kantoorgebouw
31 oktober 2023
0
0
0
0
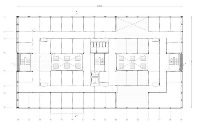
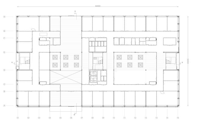
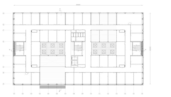
Om de gevraagde 325 werkplekken op een compact plot te realiseren hebben we een helder symmetrisch compact volume ontworpen met twee atria om het interieur van voldoende natuurlijk licht te voorzien. De atria beginnen op de eerste verdieping en hebben op de bovenste verdieping een uitkraging om het daglicht zo diep mogelijk in het kantoor te laten binnendringen.
Rondom de zonbelaste gevels is een dubbele gevel ‘gevouwen’ die bestaat uit geprofileerde aluminium gevelbekleding en buitenzonwering. De buitenzonwering is een integraal onderdeel van de gevel, ontworpen in lijn met en in één vlak met de geprofileerde beplating.
Stel jezelf kort voor! Dan weet het betreffende bedrijf wie hun brochure gedownload heeft.
Wil je niet bij elke download jouw gegevens in hoeven voeren?
Klik dan hier om in te loggen
. Heb je nog geen account?
Maak dan hier een gratis account aan
.
Voornaam
Achternaam
E-mailadres
Downloaden
Wanneer je brochures downloadt op Architectenweb.nl worden relevante gegevens van jou – zoals jouw naam en e-mailadres – met het betreffende bedrijf gedeeld. Meer hierover lees je in ons
privacybeleid
.
Wanneer je brochures downloadt op Architectenweb.nl worden relevante gegevens van jou – zoals jouw naam en e-mailadres – met het betreffende bedrijf gedeeld. Meer hierover lees je in ons
privacybeleid
.
Brochure
Stel jezelf kort voor! Dan weet het betreffende bedrijf wie hun model gedownload heeft.
Wil je niet bij elke download jouw gegevens in hoeven voeren?
Klik dan hier om in te loggen
.
Heb je nog geen account?
Maak dan hier een gratis account aan
.
Voornaam
Achternaam
E-mailadres
Downloaden
Wanneer je modellen downloadt op Architectenweb.nl worden relevante gegevens van jou – zoals jouw naam en e-mailadres – met het betreffende bedrijf gedeeld. Meer hierover lees je in ons
privacybeleid
.
Locatie
Buro NØRD
Neem contact op
Projectdata
Staat van realisatie
Voltooid
Start ontwerpproces
2011
Start bouw
2012
Oplevering
2013
Ingebruikname
2013
Plaats
Bilthoven
Bruto m
2
6800
Netto m
2
6000
m
3
19000
Meewerkende partijen
Architect
Maarten Meester, Winfried van Zeeland
Projectarchitect
Maarten Meester
Ontwerpteam
Maarten Meester, Winfried van Zeeland, Diedrick de Vilder
Opdrachtgever
RIVM Bilthoven
Aannemer
Koopmans Bouw
Interieurontwerper
Maarten Meester, Pietertje van Splunteren, Zeger Reyers
Leveranciers
Overig
Metal Cladding Systems b.v., mcs cladding
Neem contact op met
Buro NØRD
Je bent momenteel niet ingelogd. Hierdoor is het alleen mogelijk om meer informatie per e-mail op te vragen. Wil je liever gebeld worden of documentatie per post ontvangen?
Klik dan hier om in te loggen
.
Heb je nog geen account?
Maak dan hier een gratis account aan
.
Voornaam
Achternaam
E-mailadres
Opmerkingen
Bij iedere aanvraag worden relevante gegevens van jou gedeeld met het betreffende bedrijf. Meer hierover lees je in ons
privacybeleid
.
Ja, denk met me mee rond de
materialisering van mijn project
Meer projecten van Buro NØRD
Restauratie en uitbreiding jachthuis
Buro NØRD
Spiegelkubus Museumplein, Amsterdam
Buro NØRD
Mise en Place
Buro NØRD
Brouwerij Wispe
Buro NØRD
Restauratie en uitbreiding jachthuis
Buro NØRD
Spiegelkubus Museumplein, Amsterdam
Buro NØRD
Mise en Place
Buro NØRD
Brouwerij Wispe
Buro NØRD
Toon alles
Andere Projecten
Huis van de Gemeente Voorst
Kawneer
Rumah Kechik, Malacca
Malaysian Timber Council
Plus Ultra III - EUROLACKE Poedercoatings
EUROLACKE
Energiezuinig gebouwd IKC 's-Heer Arendskerke
wienerberger
Duurzame houten gevelbekleding woning in Sappemeer
Foreco Houtproducten
BDO kantoor Breda
ULMA Architectural Solutions
L-founders of loyalty | Germany
Plan Effect Systeemwanden
Kokowall geluidsscherm A28 bij Ermelo
Kokosystems B.V.
Architects in Motion over abdijrenovatie
KUBUS | Specialist in Archicad
Almere Havenkom
HOSPER landschapsarchitectuur
Lansingerland Lage Bergse Bos
HOSPER landschapsarchitectuur
Sentho realiseert hygiënische upgrade
Sentho B.V.
Ga naar het projecten-overzicht
Voor een optimale gebruikservaring plaatst Architectenweb functionele cookies. Wat de verschillende cookies precies doen leggen we uit in een
overzicht
. Cookies van social media kun je optioneel
aanzetten
.
Akkoord
Instellingen
Annuleren
OK
Sluiten
Doorgaan
Inloggen
Maak een gratis persoonlijk account aan
Feedback
Feedback
Wij horen graag jouw feedback. Laat je reactie achter en eventueel jouw e-mail adres.
Reactie
Verstuur