Abonneer je nu op onze nieuwsbrieven!
Abonneren
Nee, bedankt
Ja, denk met me mee rond de
materialisering van mijn project
Producten
West veranda's, woon- eetkamer, woonkeuken
Copyright: Donald Osborne Architecture
Kozijnen verborgen, dakrand en vloerrand thermisch verzonken staal.
Copyright: Donald Osborne Architecture
Oost veranda keuken
Copyright: Donald Osborne Architecture
Oost veranda keuken
Copyright: Donald Osborne Architecture
Oost veranda keuken
Copyright: Donald Osborne Architecture
Oost veranda keuken detail
Copyright: Donald Osborne Architecture
Oost veranda woon- eetkamer volledig transparant richting tuinen
Copyright: Donald Osborne Architecture
Voorgevel, garagedeuren verborgen
Copyright: Donald Osborne Architecture
Voorgevel, entree langs de woning
Copyright: Donald Osborne Architecture
Voorgevel entree via Zuid veranda
Copyright: Donald Osborne Architecture
Zuid veranda, entree tot woning
Copyright: Donald Osborne Architecture
Detail Zuid veranda, entree tot woning
Copyright: Donald Osborne Architecture
Dakaanzicht, Boomerang
Copyright: Donald Osborne Architecture
West gevel veranda's
Copyright: Donald Osborne Architecture
Concept diagram.
Copyright: Donald Osborne Architecture
Situatie tekening.
Copyright: Donald Osborne Architecture
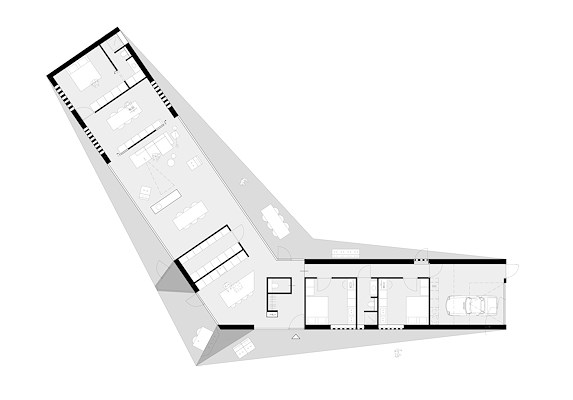
Plattegrond
Copyright: Donald Osborne Architecture
ProducttagsAANUIT

Boomerang Bungalow Noordwijk

20 juni 2023
Een gebogen vorm gebruiken om perceel en gebouw te integreren. De richting van het gebouw is afgeleid van de twee topografische hoofdrichtingen van omliggende gebouwen en het perceel. In het ontwerp ligt de nadruk op creëren tussen binnen en buiten.

Het ontwerp van het gebouw kan worden gezien als een uitgesneden metalen doos waarbij de uitgesneden delen oogkassen zijn (waar de interactie tussen binnen en buiten plaatsvindt). Het hoofd volume is bekleed met thermisch verzinkt metaal, dat opgaat in de groene omgeving. De oogkassen, de uitsneden tussen binnen en buiten en zijn bekleed met thermowood. De ogen zelf zijn volledig van glas, kozijnen zijn verborgen en zijn gemaakt van hout (low carbon footprint).

Wat een binnenkomst
Met de entree van het perceel aan de zuidzijde lijkt een creatieve ontwerpoplossing in de maak.
Vanaf de straat volledig verborgen garagedeuren, geïntegreerd in het volume van het gebouw, het enige dat opvalt is de met hout beklede veranda die naar de ingang van het huis leidt.
Beschut tegen de elementen onder de veranda kijkt men in afwachting van de bewoner dwars door de hal heen de tuin in op het oosten.

Omringd door veranda's
Buitenplekken hebben waar dagelijkse activiteiten kunnen plaatsvinden.
Het hele jaar door buitenplaatsen hebben, beschut tegen de zon, blootgesteld aan de zon, beschut tegen wind en regen en soms in een lekker briesje.

Het totaal van +-150 m2 terras rondom het huis verdeeld over 4 veranda's kan naar behoefte gebruikt worden. Een kleine veranda voor een intieme afternoon coffee of high tea. Een grotere veranda als uitgebreide eetkamer of een rustige plek om te studeren voor de inwonende dochterstudenten.
Zorg er dus voor dat in elk woonontwerp je het hele jaar door buitenplekken hebt om rond te hangen, te lunchen, een vuurtje te stoken, te dansen, te spelen, te borrelen of een boek te lezen.

Belangrijkste kenmerken
- Stel je voor dat je in een buurt woont, maar van binnen het gevoel hebt dat je in een luxe bosretraite woont
- 150m2 veranda's, geïntegreerde buitenruimtes, in de zon, in de schaduw, beschut tegen wind en regen
- Een gebogen huis om lange diagonale uitzichten op de tuin te creëren, waardoor de woonkamer het middelpunt van het bouwperceel wordt
- Inrichten van het perceel met twee achtertuinen en een vooringang
- Een woonkeuken met directe toegang tot de oost- en westporch
- Uitzonderlijke gevelmaterialen, thermisch verzinkt metalen frame en bekleding gecombineerd met Themowood (Platowood) gevelbekleding
- Lokale materialen gebruikt als schelpen voor tuinpaden en inheemse tuinbeplanting
- Rauwe interieurafwerking, betonnen vloeren en, multiplex wanden en op maat gemaakte multiplex kasten
- Energie passief ontwerp door luifel te gebruiken om de zomerzon buiten te houden en de winterzon binnen te laten
- Twee vleugels, een voor de ouders en de hoofdwonen, een voor de jonge adolescente kinderen.
- Groen dak gecombineerd met zonnepanelen
- Energielabel A++++

Stel jezelf kort voor! Dan weet het betreffende bedrijf wie hun brochure gedownload heeft.
Wil je niet bij elke download jouw gegevens in hoeven voeren?
Klik dan hier om in te loggen. Heb je nog geen account? Maak dan hier een gratis account aan.
Voornaam
Achternaam
E-mailadres
Downloaden
Wanneer je brochures downloadt op Architectenweb.nl worden relevante gegevens van jou – zoals jouw naam en e-mailadres – met het betreffende bedrijf gedeeld. Meer hierover lees je in ons privacybeleid.
Wanneer je brochures downloadt op Architectenweb.nl worden relevante gegevens van jou – zoals jouw naam en e-mailadres – met het betreffende bedrijf gedeeld. Meer hierover lees je in ons privacybeleid.

Stel jezelf kort voor! Dan weet het betreffende bedrijf wie hun model gedownload heeft.
Wil je niet bij elke download jouw gegevens in hoeven voeren?
Klik dan hier om in te loggen.

Heb je nog geen account? Maak dan hier een gratis account aan.
Voornaam
Achternaam
E-mailadres
Downloaden
Wanneer je modellen downloadt op Architectenweb.nl worden relevante gegevens van jou – zoals jouw naam en e-mailadres – met het betreffende bedrijf gedeeld. Meer hierover lees je in ons privacybeleid.

Locatie

Neem contact op met Donald Osborne Architecture

Je bent momenteel niet ingelogd. Hierdoor is het alleen mogelijk om meer informatie per e-mail op te vragen. Wil je liever gebeld worden of documentatie per post ontvangen? Klik dan hier om in te loggen.
Heb je nog geen account? Maak dan hier een gratis account aan.
Voornaam
Achternaam
E-mailadres
Opmerkingen
Bij iedere aanvraag worden relevante gegevens van jou gedeeld met het betreffende bedrijf. Meer hierover lees je in ons privacybeleid.
Ja, denk met me mee rond de
materialisering van mijn project

Meer projecten van Donald Osborne Architecture

Donald Osborne Architecture
Donald Osborne Architecture
Toon alles

Gerelateerde producten

ATAG Nederland
KUBUS | Specialist in Archicad
SAPA
Reynaers Aluminium Nederland
Jansen
SAB-profiel bv
Aliplast Aluminium Systems
Kingspan Light & Air
ALUCOBOND®
Caparol
Tarkett BV
Kawneer
Grohe Nederland B.V.
Malaysian Timber Council
OCS | Office Cabling Systems
Swisspearl Nederland
Forster Nederland N.V.
VELUX Commercial Benelux B.V.
Sempergreen
Houthandel van Dam
Aluprof Nederland BV
QbiQ Wall Systems
Forbo Flooring
Schüco Nederland
Cedral
Sto Isoned bv
Triflex bv
Gorter Luiken BV
wienerberger
DUCO Ventilation & Sun Control
BEWI IsoBouw
ROCKWOOL B.V.
Mview+
Rockfon (ROCKWOOL B.V.)
Gira Nederland B.V.
Kingspan Geïsoleerde Panelen
GEZE Benelux  B.V.
Renson
Metaglas Groep
ABB | Busch-Jaeger
Jung | Hateha B.V.
Knauf B.V.
Saint-Gobain Glass Benelux
Faay Vianen B.V.
objectflor
Boon Edam Nederland B.V.
Hunter Douglas Architectural
VOLA Nederland BV
Forbo Eurocol Nederland B.V.
EQUITONE gevelpanelen
Holonite B.V.
Tata Steel Colorcoat®
Architectenweb
Over ons
Contact

© 2002 - 2026 Architectenweb BV / Voorwaarden / Privacy / Disclaimer / Sitemap
Annuleren
OK
Sluiten
Doorgaan
Inloggen
Maak een gratis persoonlijk account aan