Projecten
Producten
Bedrijven
Vacatures
Agenda
Awards
Podcasts
more_horiz
Videos
Magazine
Favorieten
Profiel
Uitloggen
Abonneer je nu op onze nieuwsbrieven!
Abonneren
Nee, bedankt
Ja, denk met me mee rond de
materialisering van mijn project
Producten
Biesterweg
Copyright: JYB architecten
binnenhof
Copyright: JYB architecten
entreezijde
Copyright: JYB architecten
Copyright: JYB architecten
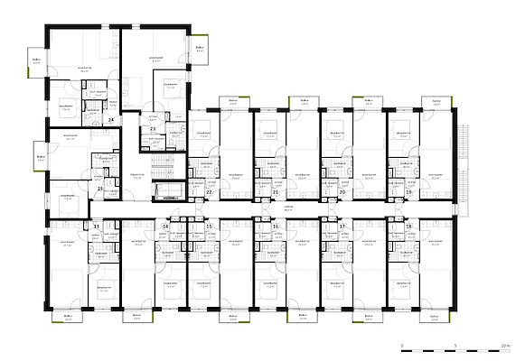
plattegronden
Copyright: JYB architecten
Producttags
AAN
UIT
Startersappartementen Eindhoven
8 februari 2023
0
0
0
0
Op de locatie van een voormalig bedrijfspand aan de Ericastraat is een nieuw appartementengebouw gecreëerd voor 38 woningen. Elk appartement is voorzien van een buitenruimte in de vorm van een terras of balkon. Groen is op een hoogwaardige manier geïntegreerd in het gevelontwerp door het toevoegen van vaste plantenbakken in de hekwerken van de balkons. De groene gevel aan de entreezijde geeft het straatbeeld een groener karakter.
Stel jezelf kort voor! Dan weet het betreffende bedrijf wie hun model gedownload heeft.
Wil je niet bij elke download jouw gegevens in hoeven voeren?
Klik dan hier om in te loggen
.
Heb je nog geen account?
Maak dan hier een gratis account aan
.
Voornaam
Achternaam
E-mailadres
Downloaden
Wanneer je modellen downloadt op Architectenweb.nl worden relevante gegevens van jou – zoals jouw naam en e-mailadres – met het betreffende bedrijf gedeeld. Meer hierover lees je in ons
privacybeleid
.
Locatie
Trefwoorden
appartementen
starters
woningbouw
JYB architecten
Neem contact op
Projectdata
Staat van realisatie
Onbekend
Start ontwerpproces
2019
Plaats
Eindhoven
Meewerkende partijen
Architect
JYB architecten
Projectarchitect
Jouwert Bosma
Ontwerpteam
Jouwert Bosma, Stef Vermeer, Paul Bernards
Constructeur
Archimedes
Neem contact op met
JYB architecten
Je bent momenteel niet ingelogd. Hierdoor is het alleen mogelijk om meer informatie per e-mail op te vragen. Wil je liever gebeld worden of documentatie per post ontvangen?
Klik dan hier om in te loggen
.
Heb je nog geen account?
Maak dan hier een gratis account aan
.
Voornaam
Achternaam
E-mailadres
Opmerkingen
Bij iedere aanvraag worden relevante gegevens van jou gedeeld met het betreffende bedrijf. Meer hierover lees je in ons
privacybeleid
.
Ja, denk met me mee rond de
materialisering van mijn project
Meer projecten van JYB architecten
Hofwoningen Nieuwleusen
JYB architecten
Nieuwbouw 20 appartementen Mierlo
JYB architecten
Transformatie kapel
JYB architecten
Hospice woonzorgcomplex WVO zorg
JYB architecten
Transformatie Kerk
JYB architecten
Transformatie kantoor 't Cour
JYB architecten
Nieuwbouw kantoor en bedrijfshal AE-group Waalwijk
JYB architecten
VO gereed kantoren Groningen
JYB architecten
15 riante woningen
JYB architecten
kantoor en bedrijfshal Verbo
JYB architecten
Albert Heijn, Hotel en Horeca
JYB architecten
Hofwoningen Nieuwleusen
JYB architecten
Nieuwbouw 20 appartementen Mierlo
JYB architecten
Transformatie kapel
JYB architecten
Hospice woonzorgcomplex WVO zorg
JYB architecten
Transformatie Kerk
JYB architecten
Transformatie kantoor 't Cour
JYB architecten
Nieuwbouw kantoor en bedrijfshal AE-group Waalwijk
JYB architecten
VO gereed kantoren Groningen
JYB architecten
15 riante woningen
JYB architecten
kantoor en bedrijfshal Verbo
JYB architecten
Albert Heijn, Hotel en Horeca
JYB architecten
Toon alles
Andere Projecten
Onderwijsgebouw Aurora, Wageningen
WEBO
Sandwichpanelenwand hygiënische afbouw
Sentho B.V.
Transformeerbare vergaderruimtes in HNK Amsterdam
BREEDVELD mobiele wandsystemen
Complete buiteninrichting kantooromgeving
Falco B.V.
TopAccess Dakluik bij Porsche Service Factory
Staka Dakluiken
Nieuwbouw villa Tegenbosch, Eindhoven, Noord-Braba
van Os Architecten
Moderne villa Alkmaar
BNLA architecten
Appartementencomplex in Purmerend
SSAB Swedish Steel BV
Office Winhov over project Pulse met Archicad
KUBUS | Specialist in Archicad
Nieuwbouw moderne bungalow, Prinsenbeek, Noord-Bra
van Os Architecten
Verbouwing villa Ruitersbos, Breda, Noord-Brabant
van Os Architecten
Nieuwbouw schuurwoning, Oosterhout, Noord-Brabant
van Os Architecten
Ga naar het projecten-overzicht
Voor een optimale gebruikservaring plaatst Architectenweb functionele cookies. Wat de verschillende cookies precies doen leggen we uit in een
overzicht
. Cookies van social media kun je optioneel
aanzetten
.
Akkoord
Instellingen
Annuleren
OK
Sluiten
Doorgaan
Inloggen
Maak een gratis persoonlijk account aan
Feedback
Feedback
Wij horen graag jouw feedback. Laat je reactie achter en eventueel jouw e-mail adres.
Reactie
Verstuur