Projecten
Producten
Bedrijven
Vacatures
Agenda
Awards
Podcasts
more_horiz
Videos
Magazine
Favorieten
Profiel
Uitloggen
Abonneer je nu op onze nieuwsbrieven!
Abonneren
Nee, bedankt
Ja, denk met me mee rond de
materialisering van mijn project
Producten
Copyright: Rempt van der Donk Architecten BNA BV
Copyright: Rempt van der Donk Architecten BNA BV
Copyright: Rempt van der Donk Architecten BNA BV
Copyright: Rempt van der Donk Architecten BNA BV
Copyright: Rempt van der Donk Architecten BNA BV
Copyright: Rempt van der Donk Architecten BNA BV
Copyright: Rempt van der Donk Architecten BNA BV
Copyright: Rempt van der Donk Architecten BNA BV
Copyright: Rempt van der Donk Architecten BNA BV
Copyright: Rempt van der Donk Architecten BNA BV
Copyright: Rempt van der Donk Architecten BNA BV
Copyright: Rempt van der Donk Architecten BNA BV
Producttags
AAN
UIT
Villa Zeeland
17 januari 2023
1
0
0
0
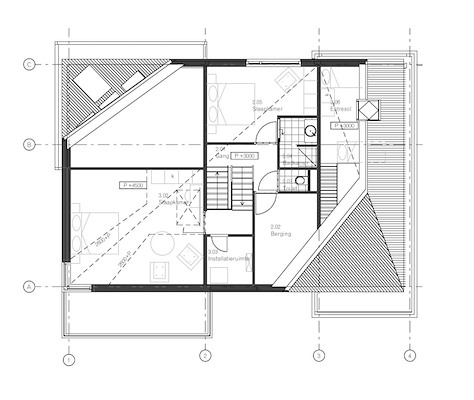
Aan de rand van Domburg met uitzicht over de Zeeuwse akkers wordt een bestaande woning vervangen door een zeer duurzame, energie efficiënte en ecologisch woning. Het bestemmingsplan beperkt het ontwerp tot een woning met goothoogte van 3m¹ en een nokhoogte van 8m¹. Door deze hoogten in elke gevel zichtbaar te maken, ontstaat er een volume welke optimaal bruikbaar is en waardoor de, in hoogte verschillende nok van het dak, diagonaal over de plattegrond van de woning loopt. Hierdoor kunnen er tevens stedenbouwkundige accenten op deze locatie worden aangebracht. Naast de woning mag er een verhuurbare unit worden gebouwd. Deze unit doet mee aan het spel van dakvlakken. Het dakvlak wat gericht is naar het zuidwesten wordt voorzien van geïntegreerde zonnepanelen. Het centrale trappenhuis vormt een rechte massa in het dakvlak. De vorm van deze woning heeft in vorm aansluiting met de omliggende woningen, maar manifesteert zich op een solitaire authentieke wijze.
De doorsnede is splitlevel uitgevoerd. De hoofdslaapkamers bevinden zich in een souterrain aan de zijde van de openbare weg. Warm in de winter en koel in de zomer. Daarboven bevindt zich een balkon, de eetkamer en de keuken, die in de woning uitzicht hebben op de lager gelegen woonkamer met het schuin oplopende plafond. Vanuit de eetkamer is er naar buiten een prachtig uitzicht boven de openbare weg over de Zeeuwse akkers. Tevens voorziet deze doorsnede voor een optimale privacy aan de zijde van de openbare weg en aan de tuinzijde. De verhuurbare unit aan de zijde van de erfgrens heeft een eigen entree. Door de dakvormen is er binnen deze unit de mogelijkheid voor een entresol met slaapplekken.
De materialisatie van deze woning is hout. De gevels en het schuine dak zijn bekleed met Shou Sugi Ban, gebrand hout. Onderscheidende massa’s en kozijnen zijn van naturel fraké gestoomd hout. Al het hout is onderhoudsvrij en duurzaam. Het zwarte gebrande hout heeft een relatie met de zwart geteerde agrarische schuren die in het verleden veel in deze omgeving waren te vinden. Het witte en berkenhouten interieur geven deze woning een Scandinavische sfeer. In het dakvlak zijn solitair zonnepanelen opgenomen die een eenheid vormen met het zwarte hout. De hoge isolatiewaarden van alle gevelonderdelen, de warmtepomp, de warmte terugwin ventilatie, de zonneboiler en overige energiebesparende elementen zorgen voor een zeer energie efficiënte woning.
Stel jezelf kort voor! Dan weet het betreffende bedrijf wie hun brochure gedownload heeft.
Wil je niet bij elke download jouw gegevens in hoeven voeren?
Klik dan hier om in te loggen
. Heb je nog geen account?
Maak dan hier een gratis account aan
.
Voornaam
Achternaam
E-mailadres
Downloaden
Wanneer je brochures downloadt op Architectenweb.nl worden relevante gegevens van jou – zoals jouw naam en e-mailadres – met het betreffende bedrijf gedeeld. Meer hierover lees je in ons
privacybeleid
.
Wanneer je brochures downloadt op Architectenweb.nl worden relevante gegevens van jou – zoals jouw naam en e-mailadres – met het betreffende bedrijf gedeeld. Meer hierover lees je in ons
privacybeleid
.
Brochure
Stel jezelf kort voor! Dan weet het betreffende bedrijf wie hun model gedownload heeft.
Wil je niet bij elke download jouw gegevens in hoeven voeren?
Klik dan hier om in te loggen
.
Heb je nog geen account?
Maak dan hier een gratis account aan
.
Voornaam
Achternaam
E-mailadres
Downloaden
Wanneer je modellen downloadt op Architectenweb.nl worden relevante gegevens van jou – zoals jouw naam en e-mailadres – met het betreffende bedrijf gedeeld. Meer hierover lees je in ons
privacybeleid
.
Locatie
Rempt van der Donk Architecten BNA BV
Neem contact op
Projectdata
Staat van realisatie
Voltooid
Start ontwerpproces
2021
Plaats
Domburg
Meewerkende partijen
Architect
Rempt van der Donk Architecten BNA BV
Interieurarchitect
Rempt van der Donk Architecten BNA BV
Neem contact op met
Rempt van der Donk Architecten BNA BV
Je bent momenteel niet ingelogd. Hierdoor is het alleen mogelijk om meer informatie per e-mail op te vragen. Wil je liever gebeld worden of documentatie per post ontvangen?
Klik dan hier om in te loggen
.
Heb je nog geen account?
Maak dan hier een gratis account aan
.
Voornaam
Achternaam
E-mailadres
Opmerkingen
Bij iedere aanvraag worden relevante gegevens van jou gedeeld met het betreffende bedrijf. Meer hierover lees je in ons
privacybeleid
.
Ja, denk met me mee rond de
materialisering van mijn project
Meer projecten van Rempt van der Donk Architecten BNA BV
Hoofdkantoor Raqtan Group
Rempt van der Donk Architecten BNA BV
Villa Hippolytushoef
Rempt van der Donk Architecten BNA BV
Kantoor en bedrijfshal TMHNL
Rempt van der Donk Architecten BNA BV
Hoofdkantoor Raqtan Group
Rempt van der Donk Architecten BNA BV
Villa Hippolytushoef
Rempt van der Donk Architecten BNA BV
Kantoor en bedrijfshal TMHNL
Rempt van der Donk Architecten BNA BV
Toon alles
Andere Projecten
Onderwijsgebouw Aurora, Wageningen
WEBO
Sandwichpanelenwand hygiënische afbouw
Sentho B.V.
Transformeerbare vergaderruimtes in HNK Amsterdam
BREEDVELD mobiele wandsystemen
Complete buiteninrichting kantooromgeving
Falco B.V.
TopAccess Dakluik bij Porsche Service Factory
Staka Dakluiken
Nieuwbouw villa Tegenbosch, Eindhoven, Noord-Braba
van Os Architecten
Moderne villa Alkmaar
BNLA architecten
Appartementencomplex in Purmerend
SSAB Swedish Steel BV
Office Winhov over project Pulse met Archicad
KUBUS | Specialist in Archicad
Nieuwbouw moderne bungalow, Prinsenbeek, Noord-Bra
van Os Architecten
Verbouwing villa Ruitersbos, Breda, Noord-Brabant
van Os Architecten
Nieuwbouw schuurwoning, Oosterhout, Noord-Brabant
van Os Architecten
Ga naar het projecten-overzicht
Voor een optimale gebruikservaring plaatst Architectenweb functionele cookies. Wat de verschillende cookies precies doen leggen we uit in een
overzicht
. Cookies van social media kun je optioneel
aanzetten
.
Akkoord
Instellingen
Annuleren
OK
Sluiten
Doorgaan
Inloggen
Maak een gratis persoonlijk account aan
Feedback
Feedback
Wij horen graag jouw feedback. Laat je reactie achter en eventueel jouw e-mail adres.
Reactie
Verstuur