Projecten
Producten
Bedrijven
Vacatures
Agenda
Awards
Podcasts
more_horiz
Videos
Magazine
Favorieten
Profiel
Uitloggen
Abonneer je nu op onze nieuwsbrieven!
Abonneren
Nee, bedankt
Ja, denk met me mee rond de
materialisering van mijn project
Producten
Voorgevel hoek Antony Roodvoetsstraat - Louis Pasteurstraat
Copyright: GUBU architecten bna
Gevel Hans Henneveldpad
Copyright: GUBU architecten bna
Gevel met 3 kleuren ST Joris steenstrips Antony Roodvoetsstraat
Copyright: GUBU architecten bna
Voorgevel hoek Antony Roodvoetsstraat - Louis Pasteurstraat
Copyright: GUBU architecten bna
Voorgevel Louis Pasteurstraat met Mato, fraké en steenstrips
Copyright: GUBU architecten bna
Voorgevel hoek Willem van Ospark - Hans Henneveldpad
Copyright: GUBU architecten bna
Toegang collectieve tuin Hans Henneveldpad
Copyright: GUBU architecten bna
Gevels Hans Henneveldpad
Copyright: GUBU architecten bna
Gevels Hans Henneveldpad
Copyright: GUBU architecten bna
Gevels Hans Henneveldpad
Copyright: GUBU architecten bna
Voorgevel hoek Hans Henneveldpad - Antony Roodvoetsstraat
Copyright: GUBU architecten bna
Hekwerk met citaat Haarlemse schrijver, Antony Roodvoetsstraat
Copyright: GUBU architecten bna
Poort collectieve tuin met citaat Haarlemse schrijver, Antony Roodvoetsstraat
Copyright: GUBU architecten bna
Zuidgevel Collectieve tuin Hekwerk met citaat Haarlemse schrijver Antony Roodvoetsstraat
Copyright: GUBU architecten bna
collectieve tuin
Copyright: GUBU architecten bna
collectieve tuin
Copyright: GUBU architecten bna
collectieve tuin
Copyright: GUBU architecten bna
collectieve tuin met collectieve fietsenstalling
Copyright: GUBU architecten bna
Vide hoekwoning
Copyright: GUBU architecten bna
Hoekwoning Antony Roodvoetsstraat - Louis Pasteurstraat
Copyright: GUBU architecten bna
Gevelfragment met ST Jorissteenstrips
Copyright: GUBU architecten bna
Gevelfragment met Felthaus Klinker steenstrips
Copyright: GUBU architecten bna
Gevel vanuit het Willem van Ospark
Copyright: GUBU architecten bna
Gevelfragment met Felthaus Klinker steenstrips in blokverband
Copyright: GUBU architecten bna
Gevelfragment met Felthaus Klinker steenstrips in blokverband
Copyright: GUBU architecten bna
Voorgevel hoek Willem van Ospark - Louis Pasteurstraat
Copyright: GUBU architecten bna
Impressie Definitief Ontwerp
Copyright: GUBU architecten bna
situatie HAAVE
Copyright: GUBU architecten bna
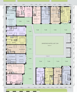
Plattegronden begane grond
Copyright: GUBU architecten bna
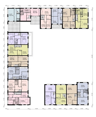
plattegronden 1e verdieping
Copyright: GUBU architecten bna
plattegronden 2e verdieping
Copyright: GUBU architecten bna
Principedetail dakrand
Copyright: GUBU architecten bna
Gevelmaterialen voor de individuele invulling: Felthaus Klinker - Mato Aluminium - ModiWood
Copyright: GUBU architecten bna
Producttags
AAN
UIT
CPO Hof van Damiate
27 juni 2022
1
0
0
0
GUBU architecten bna heeft de CPO-vereniging Hof van Damiate begeleid in de ontwikkeling van 16 grondgebonden woningen nabij het Willem van Ospark in Haarlem. De woningen zijn gegroepeerd in een halfgesloten bouwblok rondom een collectieve tuin. Het architecturale ontwerp is gebaseerd op een modernistisch stedelijk bouwblok, dat harmonieert met de omringende bebouwing van HAAVE.
Een uitdaging tijdens het ontwerp was om een uniforme architectuur te creëren die tegelijkertijd ruimte bood voor de individuele wensen van de bewoners. De variatie in breedtes, dieptes en verdiepingshoogtes resulteerde in unieke plattegronden voor elke woning, waarbij de diversiteit zichtbaar is in de gevels.
Door een doorlopend metselwerkframe als basis te gebruiken, kon binnen deze structuur een individuele indeling worden gerealiseerd, waarbij elke bewoner de vrijheid had om de ramen, deuren en gevelmaterialen naar eigen wens te kiezen. Het resultaat is een herkenbaar bouwblok dat de diversiteit van de bewoners weerspiegelt en tegelijkertijd eenheid uitstraalt binnen de buurt.
Stel jezelf kort voor! Dan weet het betreffende bedrijf wie hun brochure gedownload heeft.
Wil je niet bij elke download jouw gegevens in hoeven voeren?
Klik dan hier om in te loggen
. Heb je nog geen account?
Maak dan hier een gratis account aan
.
Voornaam
Achternaam
E-mailadres
Downloaden
Wanneer je brochures downloadt op Architectenweb.nl worden relevante gegevens van jou – zoals jouw naam en e-mailadres – met het betreffende bedrijf gedeeld. Meer hierover lees je in ons
privacybeleid
.
Wanneer je brochures downloadt op Architectenweb.nl worden relevante gegevens van jou – zoals jouw naam en e-mailadres – met het betreffende bedrijf gedeeld. Meer hierover lees je in ons
privacybeleid
.
Brochure
Stel jezelf kort voor! Dan weet het betreffende bedrijf wie hun model gedownload heeft.
Wil je niet bij elke download jouw gegevens in hoeven voeren?
Klik dan hier om in te loggen
.
Heb je nog geen account?
Maak dan hier een gratis account aan
.
Voornaam
Achternaam
E-mailadres
Downloaden
Wanneer je modellen downloadt op Architectenweb.nl worden relevante gegevens van jou – zoals jouw naam en e-mailadres – met het betreffende bedrijf gedeeld. Meer hierover lees je in ons
privacybeleid
.
Locatie
Trefwoorden
boerhaavewijk
haarlem
damiate
schalkwijk
hof van damiate
cpo
GUBU architecten bna
Neem contact op
Projectdata
Staat van realisatie
Voltooid
Start ontwerpproces
2020
Start bouw
2022
Oplevering
2023
Ingebruikname
2023
Plaats
Haarlem
Bruto m
2
2800
Netto m
2
2300
m
3
8700
Meewerkende partijen
Architect
GUBU architecten bna
Opdrachtgever
VvO Hof van Damiate
Aannemer
Aannemingsbedrijf Veenman & Vink bv
Constructeur
Adviesbureau De Lange
Fotograaf
GUBU architecten bna
Projectmanagement
Steenvlinder
Adviseur bouwfysica
GUBU architecten bna
Adviseur bouwkosten
Vitruvius Bouwkostenadvies
Directievoering
BTB
Leveranciers
Overig
wienerberger
, Schipper Kozijnen B.V.,
Storax
Triple Bevel Rabat
ModiWood
Geglazuurde steenstrips
St joris
Steenstrips individuele gevel
Feldhaus klinker
Mato, Mato 1 profiel
mato gevelbekleding
Neem contact op met
GUBU architecten bna
Je bent momenteel niet ingelogd. Hierdoor is het alleen mogelijk om meer informatie per e-mail op te vragen. Wil je liever gebeld worden of documentatie per post ontvangen?
Klik dan hier om in te loggen
.
Heb je nog geen account?
Maak dan hier een gratis account aan
.
Voornaam
Achternaam
E-mailadres
Opmerkingen
Bij iedere aanvraag worden relevante gegevens van jou gedeeld met het betreffende bedrijf. Meer hierover lees je in ons
privacybeleid
.
Ja, denk met me mee rond de
materialisering van mijn project
Meer projecten van GUBU architecten bna
CPO Pragmatis, Den Haag
GUBU architecten bna
CPO Koningskroon, 5 woningen Maasland
GUBU architecten bna
Vrij Spel
GUBU architecten bna
CPO Pragmatis, Den Haag
GUBU architecten bna
CPO Koningskroon, 5 woningen Maasland
GUBU architecten bna
Vrij Spel
GUBU architecten bna
Toon alles
Gerelateerde producten
Gevelbakstenen
Laat je gevel spreken: authentiek, veelzijdig en tijdloos
wienerberger
Andere Projecten
Canopy House
Malaysian Timber Council
Pol Heeteren BV
Klöber
Akoestische ventilatieroosters woontoren Magnus
Storax
Klimaatinnovatie in houtbouw: Mandemaat 3
Halton Ventilation Systems
Renovatie parkeergarage De Vest
Triflex bv
Kliniek San Juan de Dios in Madrid
ULMA Architectural Solutions
Vliesgevel screens Netceed kantoorgebouw
Renson
Kantoorinterieur Greenflux Amsterdam
Bureau Fraai
Nieuwbouw kinderdagverblijf Baakenhafen Hamburg
Sempergreen
CPO Vondelstaete Amersfoort: Passief Wonen
Sto Isoned bv
Nieuwbouw Oostvaarders krijgt Gorter op het dak
Gorter Luiken BV
BOW showroom in Amsterdam!
BOW Systems
Ga naar het projecten-overzicht
Voor een optimale gebruikservaring plaatst Architectenweb functionele cookies. Wat de verschillende cookies precies doen leggen we uit in een
overzicht
. Cookies van social media kun je optioneel
aanzetten
.
Akkoord
Instellingen
Annuleren
OK
Sluiten
Doorgaan
Inloggen
Maak een gratis persoonlijk account aan
Feedback
Feedback
Wij horen graag jouw feedback. Laat je reactie achter en eventueel jouw e-mail adres.
Reactie
Verstuur