Projecten
Producten
Bedrijven
Vacatures
Agenda
Awards
Podcasts
more_horiz
Videos
Magazine
Thema's
Favorieten
Profiel
Uitloggen
Abonneer je nu op onze nieuwsbrieven!
Abonneren
Nee, bedankt
Ja, denk met me mee rond de
materialisering van mijn project
Producten
Warehouse Schiphol Trade Park
Copyright: BASEPHOTOGRAPHY
Warehouse Schiphol Trade Park
Copyright: BASEPHOTOGRAPHY
Warehouse Schiphol Trade Park
Copyright: BASEPHOTOGRAPHY
Warehouse Schiphol Trade Park
Copyright: BASEPHOTOGRAPHY
Warehouse Schiphol Trade Park
Copyright: BASEPHOTOGRAPHY
Warehouse Schiphol Trade Park
Copyright: BASEPHOTOGRAPHY
Axonometrie gebouwconcept
Copyright: Denkkamer
Mini maquette
Copyright: Denkkamer
Doorsneden
Copyright: Denkkamer
Begane grond
Copyright: Denkkamer
Verdieping (parkeerdek)
Copyright: Denkkamer
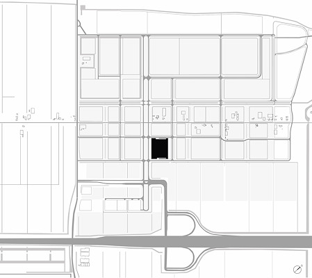
Situatie
Copyright: Denkkamer
Producttags
AAN
UIT
Warehouse Schiphol Trade Park
23 juni 2022
0
0
0
0
Op tien minuten afstand van de luchthaven Schiphol, direct langs de A4 bij Hoofddorp, ontwikkelt de komende jaren Schiphol Trade Park. Het gebied bestaat uit zes unieke milieus met allemaal een eigen karakter. Samen vormen zij één werklocatie waarbij natuurinclusiviteit en duurzaamheid centraal staat. De ambitie is hoog: het belooft het meest duurzame en innovatieve bedrijventerrein van Europa te worden. Het door ons ontworpen warehouse op het unieke entreekavel is onderdeel van de A4-skyline. Met zijn markante ligging binnen de gebiedsontwikkeling vormt het de entree van het gebied en is het dé blikvanger van Schiphol Trade Park.
Met het ontwerp voor het warehouse pogen we op gebouwniveau een nieuwe vorm van logistiek landschap te laten ontstaan. Door de gebruikelijk introverte logistieke dienstverlening een meer open houding te geven ontstaat verbondenheid met de omgeving. De logistieke functie is de drager van de bedrijvigheid en vormt de zogenaamde logistieke kern van het gebouw. Deze kern is omzoomt door een dynamische schil welke een relatie aangaat met de omgeving. De schil is opgebouwd uit twee componenten: een programmatische- en een natuurinclusieve component. Hierdoor laat het gebouw zich niet direct typeren als distributiecentrum.
De kantoren zijn ondergebracht in de transparante volumes in de schil met op de eerste verdieping rechtstreekse toegang tot de daktuinen. Ondersteunende faciliteiten zoals de traforuimte, sprinklertank en adr ruimtes liggen in de gesloten volumes van de schil waarmee de rechthoekige kern geheel vrij is en geoptimaliseerd voor de logistieke operatie. De laaddocks en logistieke verkeersbewegingen zijn gelegen aan de achterzijde van het gebouw. Daarboven bevindt zich het parkeerdek voor personenauto’s dat middels twee hellingbanen zelfstandig verbonden is met de wegenstructuur. Hiermee worden de twee verkeersstromen van elkaar gescheiden. Het parkeren op afstand van de kantoren maakt dat gebruikers gestimuleerd worden kort te wandelen tussen het parkeren en de kantoren en het activeert de openbare ruimte langs de schil van het gebouw.
De schil bestaat uit slanke volumes, variërend in hoogte. De hoger gelegen daken zijn voorzien van kruidenrijke groene- en bruine daken en ingericht voor insecten en dak broedende vogels. De lager gelegen daken, beschut tussen de kantoren, dienen als daktuin en bieden een prettig buitenverblijf en pluktuin voor de gebruikers. Een groene sluier en groene oase schermen de laaddocks en het parkeerdek af en vormen een paradijs voor onder andere vlinders en amfibieën en bieden daarbij tevens nestelgelegenheid aan struweelbroeders. De verschillende hoogtes van de volumes in de schil gecombineerd met het verticale groen zijn als stapstenen welke het maaiveld met de nieuwe biotopen verbinden. Hiermee veranderd de monotone ecologie van het polderlandschap van de Haarlemmermeerpolder in een rijkere biodiversiteit op gebouwniveau.
Stel jezelf kort voor! Dan weet het betreffende bedrijf wie hun brochure gedownload heeft.
Wil je niet bij elke download jouw gegevens in hoeven voeren?
Klik dan hier om in te loggen
. Heb je nog geen account?
Maak dan hier een gratis account aan
.
Voornaam
Achternaam
E-mailadres
Downloaden
Wanneer je brochures downloadt op Architectenweb.nl worden relevante gegevens van jou – zoals jouw naam en e-mailadres – met het betreffende bedrijf gedeeld. Meer hierover lees je in ons
privacybeleid
.
Wanneer je brochures downloadt op Architectenweb.nl worden relevante gegevens van jou – zoals jouw naam en e-mailadres – met het betreffende bedrijf gedeeld. Meer hierover lees je in ons
privacybeleid
.
Brochure
Stel jezelf kort voor! Dan weet het betreffende bedrijf wie hun model gedownload heeft.
Wil je niet bij elke download jouw gegevens in hoeven voeren?
Klik dan hier om in te loggen
.
Heb je nog geen account?
Maak dan hier een gratis account aan
.
Voornaam
Achternaam
E-mailadres
Downloaden
Wanneer je modellen downloadt op Architectenweb.nl worden relevante gegevens van jou – zoals jouw naam en e-mailadres – met het betreffende bedrijf gedeeld. Meer hierover lees je in ons
privacybeleid
.
Locatie
Trefwoorden
distributiecentrum
bedrijventerrein
sadc
duurzaamheid
daktuin
biodiversiteit
schiphol trade park
denkkamer
hoofddorp
natuurinclusief
zakendistrict
natuurinclusiviteit
luchthaven
logistiek centrum
logistiek
Denkkamer
Neem contact op
Projectdata
Staat van realisatie
Voltooid
Start ontwerpproces
2019
Start bouw
2021
Oplevering
2021
Ingebruikname
2021
Plaats
Hoofddorp
Bruto m
2
23000
Meewerkende partijen
Architect
Denkkamer
Ontwerpteam
Dennis van de Rijdt, Peter Verschuren
Opdrachtgever
Van Dijk Groep
Aannemer
Unibouw
Constructeur
Bouw-adviesbureau Van der Zanden
Fotograaf
Bas Gijselhart | BASEPHOTOGRAPHY
Leveranciers
Kabelnetten
Carl Stahl Architectuur
Strekmetaal
Aldowa gevelbekleding en plaatwerk
Dri-Design cassettes
Kingspan Geïsoleerde Panelen
Gevel
Hardeman B.V. Handels- en Constructie bedrijf
Vliesgevel
Reynaers Aluminium Nederland
Neem contact op met
Denkkamer
Je bent momenteel niet ingelogd. Hierdoor is het alleen mogelijk om meer informatie per e-mail op te vragen. Wil je liever gebeld worden of documentatie per post ontvangen?
Klik dan hier om in te loggen
.
Heb je nog geen account?
Maak dan hier een gratis account aan
.
Voornaam
Achternaam
E-mailadres
Opmerkingen
Bij iedere aanvraag worden relevante gegevens van jou gedeeld met het betreffende bedrijf. Meer hierover lees je in ons
privacybeleid
.
Ja, denk met me mee rond de
materialisering van mijn project
Meer projecten van Denkkamer
Huis met vier daken
Denkkamer
Ferskûle
Denkkamer
Hoofdkantoor VDG
Denkkamer
Hoofdkantoor KeenSystems
Denkkamer
Huis met vier daken
Denkkamer
Ferskûle
Denkkamer
Hoofdkantoor VDG
Denkkamer
Hoofdkantoor KeenSystems
Denkkamer
Toon alles
Andere Projecten
Twee woningconcepten, één samenhangend straatbeeld
Innoblox
Opvallende rondschuifdeuren in Gare de Mons
GEZE Benelux B.V.
Flexibel bedrijfsgebouw met modulaire kantoorunit
Buro De Haan
BDO kantoor Breda
ULMA Architectural Solutions
Campus Sportief Besteed Groep — Wubben.Chan
Wubben.Chan architecten
Toegangscontrole op een dynamisch terrein
Heras
Biobased bouwen naast Natura 2000-gebied
KUBUS | Specialist in Archicad
5Tracks - inspirerende atriums met JUNG
Jung | Hateha B.V.
Totaalrealisatie nieuwe kantoorlocatie A. Vogel
Intermontage B.V.
Sweco Wonderwoods — Duurzame kantoorinrichting
Hal2
Gare Maritime, Brussel
WEBO
De transformatie van de Lintveldebrink
Grohe Nederland B.V.
Ga naar het projecten-overzicht
Voor een optimale gebruikservaring plaatst Architectenweb functionele cookies. Wat de verschillende cookies precies doen leggen we uit in een
overzicht
. Cookies van social media kun je optioneel
aanzetten
.
Akkoord
Instellingen
Annuleren
OK
Sluiten
Doorgaan
Inloggen
Maak een gratis persoonlijk account aan
Feedback
Feedback
Wij horen graag jouw feedback. Laat je reactie achter en eventueel jouw e-mail adres.
Reactie
Verstuur