Projecten
Producten
Bedrijven
Vacatures
Agenda
Awards
Podcasts
more_horiz
Videos
Magazine
Favorieten
Profiel
Uitloggen
Abonneer je nu op onze nieuwsbrieven!
Abonneren
Nee, bedankt
Ja, denk met me mee rond de
materialisering van mijn project
Producten
Copyright: Rene de Wit
Copyright: Rene de Wit
Copyright: Rene de Wit
Copyright: Rene de Wit
Copyright: Rene de Wit
Copyright: Rene de Wit
Copyright: Rene de Wit
Copyright: Rene de Wit
Copyright: Rene de Wit
Copyright: Rene de Wit
Copyright: Rene de Wit
Copyright: Rene de Wit
Copyright: Rene de Wit
Copyright: Rene de Wit
Copyright: Rene de Wit
Copyright: Rene de Wit
site layout
Copyright: Denkkamer
organisatie van kantoren
Copyright: Denkkamer
uitkragende luifels
Copyright: Denkkamer
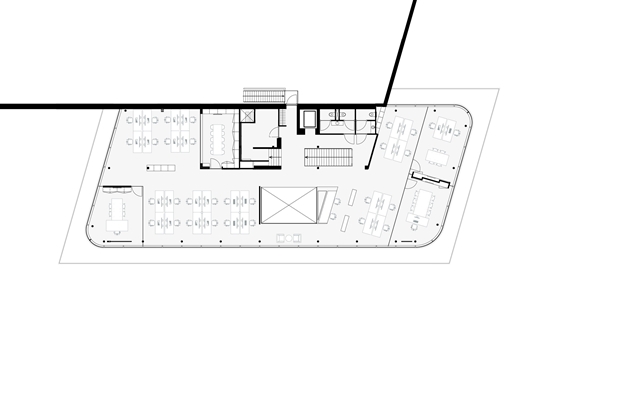
begane grond
Copyright: Denkkamer
eerste verdieping
Copyright: Denkkamer
tweede verdieping
Copyright: Denkkamer
doorsnede
Copyright: Denkkamer
Producttags
AAN
UIT
Hoofdkantoor VDG
30 juni 2020
0
0
0
0
Gelegen aan de Noord-om bij de rotonde naar de Gemertse bedrijventerreinen Wolfsveld en Smartpark vormt het nieuwe kantoorpand voor VDG de toegangspoort tot dit gebied.
VDG bestaat uit met name bouw gerelateerde ondernemingen. Het hoofdkantoor bied ruimte aan VDG De La Roy, specialist in maatwerk isolatie producten, bouwbedrijf VDG Unibouw en o.a. VDG Real estate en VDG Solar. Het ontwerp en de distributie van functies wordt ingegeven door behoeftes en ambities vanuit deze ondernemingen. De La Roy bevindt zich op de begane grond direct bij de aangrenzende productiefaciliteit in de hal. De eerste verdieping is vergroot om Unibouw de ruimte te geven om in zijn geheel vanaf één laag te kunnen opereren. De tweede verdieping is de kleinste laag van de drie welke functioneert als een soort penthouse met ruimte voor Unigoed, Unibeheer en directie van VDG.
Aan de Noordzijde midden in de lange gevel van het kantoor bevindt zich de hoofdentree. Dit met als doel het collectieve gevoel van VDG te versterken. Medewerkers van de diverse bedrijven, directie, klanten en gasten worden allemaal via deze entree ontvangen. De achterliggende lobby en kantine zijn ontworpen om elkaar informeel te ontmoeten en kennis te delen. In het hart van het gebouw is een vide gemaakt waarmee vanaf de entree direct contact wordt gemaakt met de lagen erboven. De ondersteunende functies, zoals keuken, toiletten, garderobes, etc. zijn tegen de hal geschoven met daarvoor de trappen welke een centrale verbindende as vormen. De werk- en ontmoetingsplekken zijn hiermee richting de glazen buitengevel geschoven zodat ze maximaal profiteren van het licht en het uitzicht.
De uitkragende luifels van het kantoor beschermen de volglazen gevels tegen de zon met als doel overmatige opwarming van de achterliggende kantoorruimtes te voorkomen. Tegelijkertijd versterken de luifels het panoramische uitzicht vanuit de kantoorruimtes over de provinciale weg en richting het bosgebied ten noorden van de kantoren. De afwerking aan boven en onderkant van de luifels is in kunstgras en thermisch gemodificeerd hout om de verbondenheid met de groene context kracht bij te zetten. De voorzijde van de luifels is voorzien van een geanodiseerde aluminium composiet welke als band in de productiehal doorloopt. Daar terugliggend uitgevoerd met exact dezelfde hoogte als de luifel. Hierdoor smelten kantoor en hal samen en vormen ze een geheel.
Stel jezelf kort voor! Dan weet het betreffende bedrijf wie hun brochure gedownload heeft.
Wil je niet bij elke download jouw gegevens in hoeven voeren?
Klik dan hier om in te loggen
. Heb je nog geen account?
Maak dan hier een gratis account aan
.
Voornaam
Achternaam
E-mailadres
Downloaden
Wanneer je brochures downloadt op Architectenweb.nl worden relevante gegevens van jou – zoals jouw naam en e-mailadres – met het betreffende bedrijf gedeeld. Meer hierover lees je in ons
privacybeleid
.
Wanneer je brochures downloadt op Architectenweb.nl worden relevante gegevens van jou – zoals jouw naam en e-mailadres – met het betreffende bedrijf gedeeld. Meer hierover lees je in ons
privacybeleid
.
Brochure
Stel jezelf kort voor! Dan weet het betreffende bedrijf wie hun model gedownload heeft.
Wil je niet bij elke download jouw gegevens in hoeven voeren?
Klik dan hier om in te loggen
.
Heb je nog geen account?
Maak dan hier een gratis account aan
.
Voornaam
Achternaam
E-mailadres
Downloaden
Wanneer je modellen downloadt op Architectenweb.nl worden relevante gegevens van jou – zoals jouw naam en e-mailadres – met het betreffende bedrijf gedeeld. Meer hierover lees je in ons
privacybeleid
.
Locatie
Trefwoorden
denkkamer
gebogen glas
kantoren
transparant
uitkraging
luifel
hoofdkantoor
kantoorgebouw
Denkkamer
Neem contact op
Projectdata
Staat van realisatie
Voltooid
Start ontwerpproces
2016
Start bouw
2019
Oplevering
2019
Ingebruikname
2019
Plaats
Gemert
Bruto m
2
1101
Netto m
2
935
m
3
4073
Meewerkende partijen
Architect
Denkkamer
Interieurarchitect
STRK
Ontwerpteam
Dennis van de Rijdt, Peter Verschuren, Leonique Winnen
Opdrachtgever
Van Dijk Groep
Aannemer
Unibouw
Constructeur
Bouw-adviesbureau Van der Zanden
Fotograaf
Rene de Wit
Landschapsarchitect
Denkkamer
Leveranciers
Overig
Ploegmakers bestrating, Rene de Wit, Aluberg, Compal, Ploegmakers Groep, Aldenhoven interieur
Neem contact op met
Denkkamer
Je bent momenteel niet ingelogd. Hierdoor is het alleen mogelijk om meer informatie per e-mail op te vragen. Wil je liever gebeld worden of documentatie per post ontvangen?
Klik dan hier om in te loggen
.
Heb je nog geen account?
Maak dan hier een gratis account aan
.
Voornaam
Achternaam
E-mailadres
Opmerkingen
Bij iedere aanvraag worden relevante gegevens van jou gedeeld met het betreffende bedrijf. Meer hierover lees je in ons
privacybeleid
.
Ja, denk met me mee rond de
materialisering van mijn project
Meer projecten van Denkkamer
Huis met vier daken
Denkkamer
Ferskûle
Denkkamer
Warehouse Schiphol Trade Park
Denkkamer
Hoofdkantoor KeenSystems
Denkkamer
Huis met vier daken
Denkkamer
Ferskûle
Denkkamer
Warehouse Schiphol Trade Park
Denkkamer
Hoofdkantoor KeenSystems
Denkkamer
Toon alles
Andere Projecten
Canopy House
Malaysian Timber Council
Pol Heeteren BV
Klöber
Akoestische ventilatieroosters woontoren Magnus
Storax
Klimaatinnovatie in houtbouw: Mandemaat 3
Halton Ventilation Systems
Renovatie parkeergarage De Vest
Triflex bv
Kliniek San Juan de Dios in Madrid
ULMA Architectural Solutions
Vliesgevel screens Netceed kantoorgebouw
Renson
Kantoorinterieur Greenflux Amsterdam
Bureau Fraai
Nieuwbouw kinderdagverblijf Baakenhafen Hamburg
Sempergreen
CPO Vondelstaete Amersfoort: Passief Wonen
Sto Isoned bv
Nieuwbouw Oostvaarders krijgt Gorter op het dak
Gorter Luiken BV
BOW showroom in Amsterdam!
BOW Systems
Ga naar het projecten-overzicht
Voor een optimale gebruikservaring plaatst Architectenweb functionele cookies. Wat de verschillende cookies precies doen leggen we uit in een
overzicht
. Cookies van social media kun je optioneel
aanzetten
.
Akkoord
Instellingen
Annuleren
OK
Sluiten
Doorgaan
Inloggen
Maak een gratis persoonlijk account aan
Feedback
Feedback
Wij horen graag jouw feedback. Laat je reactie achter en eventueel jouw e-mail adres.
Reactie
Verstuur