Projecten
Producten
Bedrijven
Vacatures
Agenda
Awards
Podcasts
more_horiz
Videos
Magazine
Favorieten
Profiel
Uitloggen
Abonneer je nu op onze nieuwsbrieven!
Abonneren
Nee, bedankt
Ja, denk met me mee rond de
materialisering van mijn project
Producten
Copyright: VdpArchitecten
Copyright: VdpArchitecten
Copyright: VdpArchitecten
Copyright: VdpArchitecten
Copyright: VdpArchitecten
Copyright: Peter de Kan
Copyright: VdpArchitecten
Copyright: VdpArchitecten
Copyright: VdpArchitecten
Copyright: VdpArchitecten
Copyright: VdpArchitecten
Copyright: Peter de Kan
Copyright: Peter de Kan
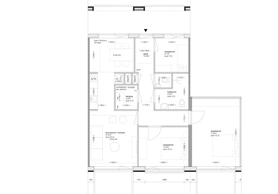
Plattegrond begane grond
Copyright: VdpArchitecten
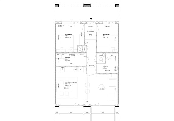
Plattegrond verdiepingen
Copyright: VdpArchitecten
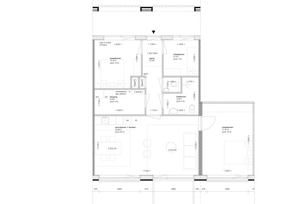
Gezinswoning
Copyright: VdpArchitecten
Gezinswoning
Copyright: VdpArchitecten
Producttags
AAN
UIT
Sociale woningbouw, Groningen
24 juni 2022
3
0
0
0
VdpArchitecten heeft voor Nijestee twee woongebouwen voor de sociale huursector ontworpen in de stempelwijk Kostverloren in Groningen.
Geel en Blauw
De volumes van de gesloopte woonblokken vormen de basis van het nieuwe ontwerp. Naast een aansluiting op de directe fysieke context, wordt een relatie aangegaan met gevelkunstwerken in de straat en de naam van de straat zelf; Johannes Vermeerstraat. Dit heeft geresulteerd in de namen van de woonblokken De Dame en De Dienstbode, een verwijzing naar het bekende schilderij van Johannes Vermeer. Zowel de gevelkunstwerken van Klaas van Dijk als het schilderij van Vermeer hebben gele en blauwe kleuren in zich. Dit is vertaald naar gele (De Dame) en blauwe (De Dienstbode) voegen in de gevel. De bijzondere uitstraling die hierdoor ontstaat, wordt versterkt door gevelstenen met een schijnvoeg. Meer voegen, meer kleur, een unieke gevel.
Prettig wonen
Ten opzichte van de voormalige woonblokken zijn evenveel appartementen gerealiseerd; 58 in totaal. Daarmee blijft de actuele woonvoorraad gelijk, maar met een woonkwaliteit die ruim voldoet aan de huidige standaard. Bovendien is een grotere variatie aan woningtypen opgenomen in de nieuwe blokken. Vanaf de buitenkant is deze variatie afleesbaar door de verspringende balkons. Iedere woning heeft een prettige leefruimte door een tweezijdige oriëntatie of door een woongedeelte dat in de lengterichting aan de gevel grenst. Appartementen met een grote hoeveelheid daglicht zijn hiervan het resultaat.
Buiten
De woningen op de begane grond hebben de entree aan de straatzijde, wat zorgt voor reuring en leven op deze plek. De centrale entreehal wordt geaccentueerd met een terugliggende toegang en geeft toegang naar de bovengelegen galerijappartementen. Deze appartementen hebben ritmisch geplaatste balkons die de Johannes Vermeerstraat sieren. Vanaf de galerij, woningen en straat is zicht op prachtig ontworpen openbaar toegankelijke tuinen, ook refererend aan de kunstwerken van Van Dijk en Vermeer. De tuin grenzend aan de De Dame verwijst naar de parelketting met gele kleuren in de beplanting en de tuin aan De Dienstbode verwijst naar de envelop met blauw kleurende planten. Hiermee is een fraai, vitaal en alzijdig ensemble toegevoegd aan de wijk.
Stel jezelf kort voor! Dan weet het betreffende bedrijf wie hun brochure gedownload heeft.
Wil je niet bij elke download jouw gegevens in hoeven voeren?
Klik dan hier om in te loggen
. Heb je nog geen account?
Maak dan hier een gratis account aan
.
Voornaam
Achternaam
E-mailadres
Downloaden
Wanneer je brochures downloadt op Architectenweb.nl worden relevante gegevens van jou – zoals jouw naam en e-mailadres – met het betreffende bedrijf gedeeld. Meer hierover lees je in ons
privacybeleid
.
Wanneer je brochures downloadt op Architectenweb.nl worden relevante gegevens van jou – zoals jouw naam en e-mailadres – met het betreffende bedrijf gedeeld. Meer hierover lees je in ons
privacybeleid
.
Brochure
Stel jezelf kort voor! Dan weet het betreffende bedrijf wie hun model gedownload heeft.
Wil je niet bij elke download jouw gegevens in hoeven voeren?
Klik dan hier om in te loggen
.
Heb je nog geen account?
Maak dan hier een gratis account aan
.
Voornaam
Achternaam
E-mailadres
Downloaden
Wanneer je modellen downloadt op Architectenweb.nl worden relevante gegevens van jou – zoals jouw naam en e-mailadres – met het betreffende bedrijf gedeeld. Meer hierover lees je in ons
privacybeleid
.
Locatie
Trefwoorden
kostverloren
stempelwijk
gele voeg
baksteen
nijestee
vdparchitecten
johannes vermeerstraat
blauwe voeg
sociale woningbouw
groningen
woongebouw
VdpArchitecten
Neem contact op
Projectdata
Staat van realisatie
Voltooid
Start ontwerpproces
2019
Start bouw
2021
Oplevering
2022
Ingebruikname
2022
Plaats
Groningen
Kosten
20000
Meewerkende partijen
Architect
VdpArchitecten
Projectarchitect
Pieter Bas Zwaga
Opdrachtgever
Nijestee
Aannemer
Plegt-Vos Bouwgroep
Constructeur
Dijkhuis Ingenieurs
Adviseurs installaties E & W
Bureau 1232
Fotograaf
VdpArchitecten
, Peter de Kan
Landschapsarchitect
Jeanne Meijboom
Adviseur brandveiligheid
Munnik Brandadvies
Aannemer installaties
Aalbers
Leveranciers
Overig
Kumij, Mosa, Smit Bedum
Gevelsteen
Strating Gevelsteenmeesters
Trappen en balustraden
VMG Versteeg Metaal Groep
Buitenverlichting en verlichting entreehal
Maas & Hagoort Lampen
Gele en blauwe voegen
Coöperatie MegaMix BA
Neem contact op met
VdpArchitecten
Je bent momenteel niet ingelogd. Hierdoor is het alleen mogelijk om meer informatie per e-mail op te vragen. Wil je liever gebeld worden of documentatie per post ontvangen?
Klik dan hier om in te loggen
.
Heb je nog geen account?
Maak dan hier een gratis account aan
.
Voornaam
Achternaam
E-mailadres
Opmerkingen
Bij iedere aanvraag worden relevante gegevens van jou gedeeld met het betreffende bedrijf. Meer hierover lees je in ons
privacybeleid
.
Ja, denk met me mee rond de
materialisering van mijn project
Meer projecten van VdpArchitecten
Appartementengebouw Karaat, Groningen
VdpArchitecten
KindCentrum 'Speel en Leer'
VdpArchitecten
Gezondheidscentrum
VdpArchitecten
de Kroon van Tuinwijk
VdpArchitecten
Appartementengebouw Karaat, Groningen
VdpArchitecten
KindCentrum 'Speel en Leer'
VdpArchitecten
Gezondheidscentrum
VdpArchitecten
de Kroon van Tuinwijk
VdpArchitecten
Toon alles
Andere Projecten
Appartementencomplex in Purmerend
SSAB Swedish Steel BV
Office Winhov over project Pulse met Archicad
KUBUS | Specialist in Archicad
Sandwichpanelenwand hygiënische afbouw
Sentho B.V.
Opvallende rondschuifdeuren in Gare de Mons
GEZE Benelux B.V.
Van wijnkelder tot luxe appartement
Pure & Original
Verlichte entree fietsenstalling Haarlem
ILLUNOX® | LED railing systems
Renovatie Horta-Guinardó, Barcelona, Spanje
ULMA Architectural Solutions
Monster Westmade
Schippers Architecten
Schalkwijk Wickengaard
Schippers Architecten
Appartementen Wisselspoor 9
Steenhandel Gelsing
Akoestische PET-vilt wand.
Signtastic Visuele Communicatie
Six Degrees Café
Malaysian Timber Council
Ga naar het projecten-overzicht
Voor een optimale gebruikservaring plaatst Architectenweb functionele cookies. Wat de verschillende cookies precies doen leggen we uit in een
overzicht
. Cookies van social media kun je optioneel
aanzetten
.
Akkoord
Instellingen
Annuleren
OK
Sluiten
Doorgaan
Inloggen
Maak een gratis persoonlijk account aan
Feedback
Feedback
Wij horen graag jouw feedback. Laat je reactie achter en eventueel jouw e-mail adres.
Reactie
Verstuur