Projecten
Producten
Bedrijven
Vacatures
Agenda
Awards
Podcasts
more_horiz
Videos
Magazine
Favorieten
Profiel
Uitloggen
Abonneer je nu op onze nieuwsbrieven!
Abonneren
Nee, bedankt
Ja, denk met me mee rond de
materialisering van mijn project
Producten
Copyright: de ruimdenkers
Copyright: de ruimdenkers
Copyright: de ruimdenkers
Copyright: de ruimdenkers
Copyright: de ruimdenkers
Copyright: de ruimdenkers
Copyright: de ruimdenkers
Copyright: de ruimdenkers
Copyright: de ruimdenkers
Producttags
AAN
UIT
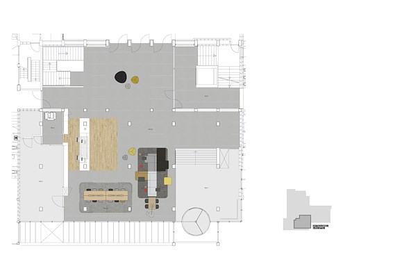
Entreegebied hogeschool
3 juni 2022
1
0
0
0
Het entreegebied van De Marnix Academie is van een open en beter leesbare structuur voorzien. Een warm welkom en een informele ontmoeting bij binnenkomst, dat is wat de Marnix Academie wil communiceren en faciliteren voor de studenten, docenten, medewerkers en bezoekers.
Stel jezelf kort voor! Dan weet het betreffende bedrijf wie hun brochure gedownload heeft.
Wil je niet bij elke download jouw gegevens in hoeven voeren?
Klik dan hier om in te loggen
. Heb je nog geen account?
Maak dan hier een gratis account aan
.
Voornaam
Achternaam
E-mailadres
Downloaden
Wanneer je brochures downloadt op Architectenweb.nl worden relevante gegevens van jou – zoals jouw naam en e-mailadres – met het betreffende bedrijf gedeeld. Meer hierover lees je in ons
privacybeleid
.
Wanneer je brochures downloadt op Architectenweb.nl worden relevante gegevens van jou – zoals jouw naam en e-mailadres – met het betreffende bedrijf gedeeld. Meer hierover lees je in ons
privacybeleid
.
Brochure
Stel jezelf kort voor! Dan weet het betreffende bedrijf wie hun model gedownload heeft.
Wil je niet bij elke download jouw gegevens in hoeven voeren?
Klik dan hier om in te loggen
.
Heb je nog geen account?
Maak dan hier een gratis account aan
.
Voornaam
Achternaam
E-mailadres
Downloaden
Wanneer je modellen downloadt op Architectenweb.nl worden relevante gegevens van jou – zoals jouw naam en e-mailadres – met het betreffende bedrijf gedeeld. Meer hierover lees je in ons
privacybeleid
.
Locatie
Trefwoorden
aanlanden
entreegebied
schoolontwerp
hospitality
de ruimdenkers
Neem contact op
Projectdata
Staat van realisatie
Voltooid
Start ontwerpproces
2020
Start bouw
2021
Oplevering
2021
Plaats
Utrecht
Meewerkende partijen
Interieurarchitect
de ruimdenkers
Opdrachtgever
De Marnix Academie
Aannemer
Zegers Bouw
Adviseurs installaties E & W
Bob Romijnders Architectuur + Interieur
Fotograaf
Martina Kelder
Projectmanagement
Mekann
Interieurbouwer
WIK Interieurbouw
Leveranciers
Overig
RE:FELT
Vloerafwerkingen
Forbo Flooring
Gordijnen
Vescom B.V.
Vloerafwerkingen
Tarkett BV
Neem contact op met
de ruimdenkers
Je bent momenteel niet ingelogd. Hierdoor is het alleen mogelijk om meer informatie per e-mail op te vragen. Wil je liever gebeld worden of documentatie per post ontvangen?
Klik dan hier om in te loggen
.
Heb je nog geen account?
Maak dan hier een gratis account aan
.
Voornaam
Achternaam
E-mailadres
Opmerkingen
Bij iedere aanvraag worden relevante gegevens van jou gedeeld met het betreffende bedrijf. Meer hierover lees je in ons
privacybeleid
.
Ja, denk met me mee rond de
materialisering van mijn project
Meer projecten van de ruimdenkers
Podium voor ondernemerschap
de ruimdenkers
activerende leeromgeving.
de ruimdenkers
Werkomgeving voor tech-specialisten
de ruimdenkers
Podium voor ondernemerschap
de ruimdenkers
activerende leeromgeving.
de ruimdenkers
Werkomgeving voor tech-specialisten
de ruimdenkers
Toon alles
Gerelateerde producten
iD Inspiration High Traffic 70
Duurzame, belastbare PVC-vloer
Tarkett BV
DESSO Grezzo
Ruwe textuur voor verfijnde ruimtes
Tarkett BV
Andere Projecten
Almere De Laren
Schippers Architecten
Nieuwe kantoorinrichting BDO Brabant
Kronospan
De Toerist in Breda
DUCO Ventilation & Sun Control
In ontwikkeling: IKC Strandeiland, Amsterdam
WEBO
Gorter op nieuwbouw sociale huurappartementen
Gorter Luiken BV
Prefab villa - Egmond aan Zee
Houthandel van Dam
Nieuwbouw poeliersbedrijf Van Berkel Kip
Ruys Groep
Nieuwbouw 107 appartementen Spoordok
Gorter Luiken BV
Appartementencomplex - Résidence Gooiland
Rodruza B.V.
Nieuwbouwwijk - Oosterparkkwartier
Rodruza B.V.
Nieuwbouwwijk - New Brooklyn
Rodruza B.V.
De Octaaf - Nijmegen
Houthandel van Dam
Ga naar het projecten-overzicht
Voor een optimale gebruikservaring plaatst Architectenweb functionele cookies. Wat de verschillende cookies precies doen leggen we uit in een
overzicht
. Cookies van social media kun je optioneel
aanzetten
.
Akkoord
Instellingen
Annuleren
OK
Sluiten
Doorgaan
Inloggen
Maak een gratis persoonlijk account aan
Feedback
Feedback
Wij horen graag jouw feedback. Laat je reactie achter en eventueel jouw e-mail adres.
Reactie
Verstuur