Projecten
Producten
Bedrijven
Vacatures
Agenda
Awards
Podcasts
more_horiz
Videos
Magazine
Favorieten
Profiel
Uitloggen
Abonneer je nu op onze nieuwsbrieven!
Abonneren
Nee, bedankt
Ja, denk met me mee rond de
materialisering van mijn project
Producten
Copyright: Buro/S Architects
Copyright: Buro/S Architects
Copyright: Buro/S Architects
Copyright: Buro/S Architects
Copyright: Buro/S Architects
Copyright: Buro/S Architects
Copyright: Buro/S Architects
Copyright: Buro/S Architects
Copyright: Buro/S Architects
Copyright: Buro/S Architects
Situatietekening
Copyright: Buro/S Architects
Copyright: Buro/S Architects
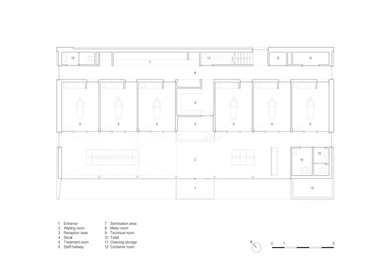
Begane grond
Copyright: Buro/S Architects
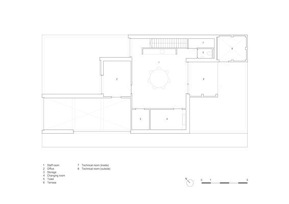
Eerste verdieping
Copyright: Buro/S Architects
Doorsneden
Copyright: Buro/S Architects
Fragment gevel
Copyright: Buro/S Architects
Producttags
AAN
UIT
Nieuwbouw Tandartsenpraktijk in Kampen
18 mei 2022
0
0
0
0
Speelse architectuur en een sereen interieur: een nieuwe tandartspraktijk in Kampen van BURO S ARCHITECTS
Een uitnodigende, vriendelijke tandartspraktijk waar patiënten zich op hun gemak voelen: dat was de wens van de opdrachtgever, een jonge en snelgroeiende praktijk in Kampen. Aan de rand van de nieuwe wijk Stationskwartier in Kampen heeft BURO S ARCHITECTS dit nieuwe onderkomen voor ze gerealiseerd.
Het Stationskwartier bestaat voornamelijk uit traditioneel ontworpen woningen in gele en rode baksteen. Het beeldkwaliteitsplan van de gemeente vroeg hier om een nieuw gebouw met een karakteristieke, dynamische uitstraling, duidelijk zichtbaar vanaf zowel de woonwijk als de nabijgelegen snelweg. De opdrachtgever wilde een comfortabel gebouw dat de missie van de praktijk laat zien, waar het welzijn van de patiënt altijd voorop staat. Bovendien moest het volume zo compact mogelijk worden - met uitbreidingsmogelijkheden in de toekomst.
Drie belangrijke principes beïnvloeden het ontwerp: de officiële richtlijnen voor de opzet van tandartspraktijken, hoe het gebouw zich verhoudt tot de wijk Stationskwartier, en de beleving van de patiënten die de praktijk bezoeken.
De regels voor tandartspraktijken wat betreft hygiëne, veiligheid en privacy eisen een strict gescheiden routing voor personeel en bezoekers. Hiertoe zijn op de begane grond alle benodigde functies verdeeld over drie ‘linten’: één met zes behandelkamers; één met alle technische en facilitaire functies en de behandelaarsgang; en één lint dat de routing voor patiënten combineert met de receptie/ontvangstgebied. Een logische en heldere opzet die het dagelijks werk efficiënt en ergonomisch laat verlopen. De eerste verdieping wordt alleen gebruikt door het personeel, en hier is dezelfde zonering in drie linten toegepast voor de diverse functies: kantine, kleedruimtes en kantoren.
Door de buitenste linten helemaal naar de rand van de gebouwenvelop te schuiven verspringen delen van eerste verdieping ten opzichte van elkaar. Dit geeft het hele volume een speelse en sculpturale uitstraling en zorgt aan de zuidoostzijde voor een opvallend architectonisch accent. Aan de noordwestgevel, aan de kant van Blauwe Engel, wordt de aandacht vanzelfsprekend naar de entree getrokken. Het gebouw is alzijdig en presenteert zichzelf verrassend en open naar alle kanten. De gevel van rode baksteen in Hilversums formaat refereert aan de bebouwing in de nabijgelegen woonwijk, terwijl de compactheid en schaal van het volume verwijzen naar de historische gebouwen in het centrum van Kampen. De sculpturale kwaliteit en harmonie van het gebouw worden nog verder versterkt door de voegen van het gebouw uit te voeren in dezelfde kleur als de bakstenen.
Binnen is er alles aan gedaan om de patiënten te kunnen ontvangen in een zo comfortabel mogelijke omgeving. Volop daglicht, een minimalistische aanpak en een volledig integraal ontwerp creëren een ontspannen, stressverminderende sfeer in een licht en luchtig gebouw. Rustige wit- en grijstinten worden afgewisseld met accenten in warm hout bij de behandelkamers, en helder rode accenten helpen bij de oriëntatie.
Een integraal ontwerpproces waarin gebouw, interieur en meubilair in samenhang ontwikkeld zijn garandeert een hoge en consistente kwaliteit in het hele gebouw. BURO S ARCHITECTS heeft in het Stationskwartier in Kampen een moderne en innovatieve praktijk gerealiseerd – een fijne werkplek voor de medewerkers, en een praktijk waar patiënten de hoogwaardige, persoonlijke zorg kunnen krijgen die ze verdienen!
Stel jezelf kort voor! Dan weet het betreffende bedrijf wie hun brochure gedownload heeft.
Wil je niet bij elke download jouw gegevens in hoeven voeren?
Klik dan hier om in te loggen
. Heb je nog geen account?
Maak dan hier een gratis account aan
.
Voornaam
Achternaam
E-mailadres
Downloaden
Wanneer je brochures downloadt op Architectenweb.nl worden relevante gegevens van jou – zoals jouw naam en e-mailadres – met het betreffende bedrijf gedeeld. Meer hierover lees je in ons
privacybeleid
.
Wanneer je brochures downloadt op Architectenweb.nl worden relevante gegevens van jou – zoals jouw naam en e-mailadres – met het betreffende bedrijf gedeeld. Meer hierover lees je in ons
privacybeleid
.
Brochure
Stel jezelf kort voor! Dan weet het betreffende bedrijf wie hun model gedownload heeft.
Wil je niet bij elke download jouw gegevens in hoeven voeren?
Klik dan hier om in te loggen
.
Heb je nog geen account?
Maak dan hier een gratis account aan
.
Voornaam
Achternaam
E-mailadres
Downloaden
Wanneer je modellen downloadt op Architectenweb.nl worden relevante gegevens van jou – zoals jouw naam en e-mailadres – met het betreffende bedrijf gedeeld. Meer hierover lees je in ons
privacybeleid
.
Locatie
Trefwoorden
moderne tandartspraktijk
ontwerp tandarts
zorgarchitectuur
Buro/S Architects
Neem contact op
Projectdata
Staat van realisatie
Voltooid
Start ontwerpproces
2020
Start bouw
2020
Oplevering
2022
Ingebruikname
2022
Plaats
Kampen
Bruto m
2
420
Meewerkende partijen
Architect
Buro/S Architects
Interieurarchitect
Buro/S Architects
Ontwerpteam
Mahyar Nikkhoy, Saghar Wafae, Faisal Samim, Maurice van der steen
Opdrachtgever
Hanze Tandartsen
Aannemer
Eikenaar Bouwbedrijf BV
Constructeur
2C Engineer
Adviseurs installaties E & W
Technion
Fotograaf
Aiste Rakauskaite
Leveranciers
Overig
Emsländer Baustoffwerke GmbH & Co. KG
Neem contact op met
Buro/S Architects
Je bent momenteel niet ingelogd. Hierdoor is het alleen mogelijk om meer informatie per e-mail op te vragen. Wil je liever gebeld worden of documentatie per post ontvangen?
Klik dan hier om in te loggen
.
Heb je nog geen account?
Maak dan hier een gratis account aan
.
Voornaam
Achternaam
E-mailadres
Opmerkingen
Bij iedere aanvraag worden relevante gegevens van jou gedeeld met het betreffende bedrijf. Meer hierover lees je in ons
privacybeleid
.
Ja, denk met me mee rond de
materialisering van mijn project
Meer projecten van Buro/S Architects
Transformatie rijksmonument in Wassenaar
Buro/S Architects
Transformatie basisschool tot tandartspraktijk
Buro/S Architects
Transformatie rijksmonument in Wassenaar
Buro/S Architects
Transformatie basisschool tot tandartspraktijk
Buro/S Architects
Toon alles
Andere Projecten
Heger en Veldwijk Automotive in Harderwijk
FALK®
Kant & Klaar Hagen verminderen luchtvervuiling
Mobilane
Koelmalaan, Alkmaar – Houtbouw wooncomplex
Sto Isoned bv
Ballast Nedam
OTH architecten
WTC | Almere
Plan Effect Systeemwanden
Paviljoens Vleuterweide in Utrecht
SSAB Swedish Steel BV
Berghaus Plaza in Amsterdam
Alucol
Zwaarlast deksels voor betonputten in Swifterbant
Van den Berg Afvoerputten BV
Hooihuisboerderij, Landsmeer
Bastiaan Jongerius Architecten
Six Degrees Café
Malaysian Timber Council
Open vloergootsysteem voor The CubeHouse Amsterdam
HPL Systems BV
Almere De Laren
Schippers Architecten
Ga naar het projecten-overzicht
Voor een optimale gebruikservaring plaatst Architectenweb functionele cookies. Wat de verschillende cookies precies doen leggen we uit in een
overzicht
. Cookies van social media kun je optioneel
aanzetten
.
Akkoord
Instellingen
Annuleren
OK
Sluiten
Doorgaan
Inloggen
Maak een gratis persoonlijk account aan
Feedback
Feedback
Wij horen graag jouw feedback. Laat je reactie achter en eventueel jouw e-mail adres.
Reactie
Verstuur