Projecten
Producten
Bedrijven
Vacatures
Agenda
Awards
Podcasts
more_horiz
Videos
Magazine
Favorieten
Profiel
Uitloggen
Abonneer je nu op onze nieuwsbrieven!
Abonneren
Nee, bedankt
Ja, denk met me mee rond de
materialisering van mijn project
Producten
Copyright: Buro/S Architects
Copyright: Buro/S Architects
Copyright: Buro/S Architects
Copyright: Buro/S Architects
Copyright: Buro/S Architects
Copyright: Buro/S Architects
Copyright: Buro/S Architects
Copyright: Buro/S Architects
Copyright: Buro/S Architects
Copyright: Buro/S Architects
Copyright: Buro/S Architects
Copyright: Buro/S Architects
Copyright: Buro/S Architects
Copyright: Buro/S Architects
Copyright: Buro/S Architects
Copyright: Buro/S Architects
Copyright: Buro/S Architects
Copyright: Buro/S Architects
Copyright: Buro/S Architects
Copyright: Buro/S Architects
Copyright: Buro/S Architects
Copyright: Buro/S Architects
Copyright: Buro/S Architects
Copyright: Buro/S Architects
Copyright: Buro/S Architects
Producttags
AAN
UIT
Transformatie basisschool tot tandartspraktijk
3 juni 2021
0
0
0
0
In de Limburgse stad Echt heeft BURO/S ARCHITECTS een voormalige basisschool uit 1961 getransformeerd tot een moderne, duurzame tandartspraktijk.
De opdrachtgevers wilden graag een duurzame nieuwe praktijk die volop ruimte biedt aan zowel medewerkers als patiënten, zonder dat de basis en constructie van het bestaande gebouw ingrijpend zouden wijzigen. Daarnaast was het een uitdaging om tegemoet te komen aan de wens van de opdrachtgevers voor een open, transparante praktijk, terwijl de privacy van patiënten optimaal gewaarborgd moest worden. Het integrale ontwerp van BURO/S ARCHITECTS combineert een nieuwe lay-out met een slimme toepassing van transparante materialen en daglicht. Zo is een efficiënte en toekomstbestendige praktijk gecreëerd met een frisse uitstraling, waar patiënten hoogwaardige tandheelkundige zorg op maat kunnen verwachten.
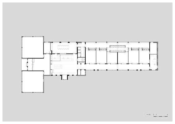
Routing
De officiële richtlijnen voor tandartspraktijken vragen in verband met de hygiëne om een strikt gescheiden routing voor medewerkers en patiënten. In de praktijk in Echt zijn de zes behandelkamers in de voormalige klaslokalen ondergebracht, en wordt de oude schoolgang de route voor patiënten. Aan de andere kant van de behandelkamers is een tweede gang gemaakt die alleen door de medewerkers wordt gebruikt en toegang geeft tot de kantoren, kantine, sterilisatieruimte en kleedruimte. Deze logische indeling splitst de twee zones van de praktijk en maakt optimaal gebruik van de bestaande structuur van het gebouw.
Een transparante praktijk
Grote nieuwe ramen in de behandelkamers zorgen voor ruime daglichttoetreding in de praktijk. Om de privacy van de patiënten te garanderen hebben de ramen een zeefdruk gekregen van lichtdoorlatend materiaal in een gradueel verlopend patroon, dat zich op ooghoogte verdicht. Zo kunnen voorbijgangers niet in de behandelkamers kijken.
Vanuit de wachtruimte is er een directe zichtlijn naar de patiëntengang en behandelkamers. Dit brengt overzichtelijkheid en rust in het interieur. De openheid van de praktijk wordt nog verder benadrukt door de sterilisatieruimte volledig in het zicht te plaatsen, achter een glazen wand. Het was een uitdrukkelijke wens van de opdrachtgever om deze belangrijke plek meer bij de praktijk te betrekken en zo te laten zien met hoeveel zorg en aandacht dit werk wordt uitgevoerd.
Lichte materialen en bronzen accenten
In de lichte, ruime wachtruimte voelen de patiënten zich welkom en op hun gemak. Een essenhouten balie en strakke houten banken – die refereren aan de schoolbanken die ooit de ruimtes vulden – brengen hier een warme sfeer. Het interieur van de praktijk is zo eenvoudig mogelijk ontworpen met witte en grijze tinten als de rustige basis, terwijl contrasterende materialen en kleuren zorgen voor verrassende accenten. Door de hele praktijk zijn kaders van brons geanodiseerd aluminium toegepast die overgangen tussen ruimtes en functies markeren: van binnen naar buiten, van wachtruimte naar de patiëntengang, tussen de gang en de behandelkamers. Gedurende de dag en afhankelijk van de lichtinval veranderen de kaders subtiel van kleur. Ze brengen zo een dynamisch element in het interieur en helpen bezoekers ook bij de oriëntatie.
Van school naar tandartsenpraktijk
De inwoners van Echt herkennen hun schoolgebouw maar nauwelijks terug. Van een gebouw waar kinderen rondrenden en speelden tot een serene, lichte en moderne tandartspraktijk: met dit integrale ontwerp heeft BURO/S ARCHITECTS binnen de bestaande constructie van het pand een volledige transformatie uitgevoerd die alle wensen van de opdrachtgever kon vervullen.
Stel jezelf kort voor! Dan weet het betreffende bedrijf wie hun brochure gedownload heeft.
Wil je niet bij elke download jouw gegevens in hoeven voeren?
Klik dan hier om in te loggen
. Heb je nog geen account?
Maak dan hier een gratis account aan
.
Voornaam
Achternaam
E-mailadres
Downloaden
Wanneer je brochures downloadt op Architectenweb.nl worden relevante gegevens van jou – zoals jouw naam en e-mailadres – met het betreffende bedrijf gedeeld. Meer hierover lees je in ons
privacybeleid
.
Wanneer je brochures downloadt op Architectenweb.nl worden relevante gegevens van jou – zoals jouw naam en e-mailadres – met het betreffende bedrijf gedeeld. Meer hierover lees je in ons
privacybeleid
.
Brochure
Stel jezelf kort voor! Dan weet het betreffende bedrijf wie hun model gedownload heeft.
Wil je niet bij elke download jouw gegevens in hoeven voeren?
Klik dan hier om in te loggen
.
Heb je nog geen account?
Maak dan hier een gratis account aan
.
Voornaam
Achternaam
E-mailadres
Downloaden
Wanneer je modellen downloadt op Architectenweb.nl worden relevante gegevens van jou – zoals jouw naam en e-mailadres – met het betreffende bedrijf gedeeld. Meer hierover lees je in ons
privacybeleid
.
Locatie
Buro/S Architects
Neem contact op
Projectdata
Staat van realisatie
Voltooid
Start ontwerpproces
2019
Start bouw
2019
Oplevering
2020
Ingebruikname
2020
Plaats
Echt
Bruto m
2
430
m
3
1500
Meewerkende partijen
Architect
Buro/S Architects
Interieurarchitect
Buro/S Architects
Projectarchitect
ir. Mahyar Nikkhoy
Ontwerpteam
ir.Mahyar Nikkhoy, ir. Saghar Wafae, ir. Faisal Samim
Aannemer
Bots Bouwgroep B.V.
Fotograaf
Stijn Poelstra (www.stijnstijl.nl)
Interieurontwerper
Buro/S Architects
Leveranciers
Overig
Stijn Poelstra (www.stijnstijl.nl)
Neem contact op met
Buro/S Architects
Je bent momenteel niet ingelogd. Hierdoor is het alleen mogelijk om meer informatie per e-mail op te vragen. Wil je liever gebeld worden of documentatie per post ontvangen?
Klik dan hier om in te loggen
.
Heb je nog geen account?
Maak dan hier een gratis account aan
.
Voornaam
Achternaam
E-mailadres
Opmerkingen
Bij iedere aanvraag worden relevante gegevens van jou gedeeld met het betreffende bedrijf. Meer hierover lees je in ons
privacybeleid
.
Ja, denk met me mee rond de
materialisering van mijn project
Meer projecten van Buro/S Architects
Transformatie rijksmonument in Wassenaar
Buro/S Architects
Nieuwbouw Tandartsenpraktijk in Kampen
Buro/S Architects
Transformatie rijksmonument in Wassenaar
Buro/S Architects
Nieuwbouw Tandartsenpraktijk in Kampen
Buro/S Architects
Toon alles
Andere Projecten
Heger en Veldwijk Automotive in Harderwijk
FALK®
Kant & Klaar Hagen verminderen luchtvervuiling
Mobilane
Koelmalaan, Alkmaar – Houtbouw wooncomplex
Sto Isoned bv
Ballast Nedam
OTH architecten
WTC | Almere
Plan Effect Systeemwanden
Paviljoens Vleuterweide in Utrecht
SSAB Swedish Steel BV
Berghaus Plaza in Amsterdam
Alucol
Zwaarlast deksels voor betonputten in Swifterbant
Van den Berg Afvoerputten BV
Hooihuisboerderij, Landsmeer
Bastiaan Jongerius Architecten
Six Degrees Café
Malaysian Timber Council
Open vloergootsysteem voor The CubeHouse Amsterdam
HPL Systems BV
Almere De Laren
Schippers Architecten
Ga naar het projecten-overzicht
Voor een optimale gebruikservaring plaatst Architectenweb functionele cookies. Wat de verschillende cookies precies doen leggen we uit in een
overzicht
. Cookies van social media kun je optioneel
aanzetten
.
Akkoord
Instellingen
Annuleren
OK
Sluiten
Doorgaan
Inloggen
Maak een gratis persoonlijk account aan
Feedback
Feedback
Wij horen graag jouw feedback. Laat je reactie achter en eventueel jouw e-mail adres.
Reactie
Verstuur