Projecten
Producten
Bedrijven
Vacatures
Agenda
Awards
Podcasts
more_horiz
Videos
Magazine
Thema's
Favorieten
Profiel
Uitloggen
Abonneer je nu op onze nieuwsbrieven!
Abonneren
Nee, bedankt
Ja, denk met me mee rond de
materialisering van mijn project
Producten
Copyright: Max Hart Nibbrig
Copyright: Luuk Kramer
Copyright: Max Hart Nibbrig
Copyright: Luuk Kramer
Copyright: Max Hart Nibbrig
Copyright: Max Hart Nibbrig
Copyright: Max hart Nibbrig
Copyright: Luuk Kramer
Copyright: Max Hart Nibbrig
Copyright: Max Hart Nibbrig
Copyright: Max Hart Nibbrig
Copyright: Max Hart Nibbrig
Copyright: Luuk Kramer
Copyright: Luuk Kramer
Maquette Ernst Dullemond
Copyright: Tim Stet
Maquette Ernst Dullemond
Copyright: Tim Stet
Birdseye view (competitie inzending)
Copyright: Proloog
stadsreparatie
Copyright: Korth Tielens Architecten & Marcel Lok_Architect
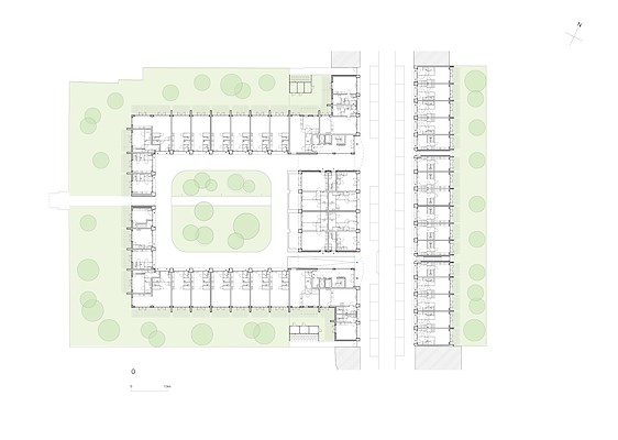
Plattegrond begane grond 0
Copyright: Korth Tielens Architecten & Marcel Lok_Architect
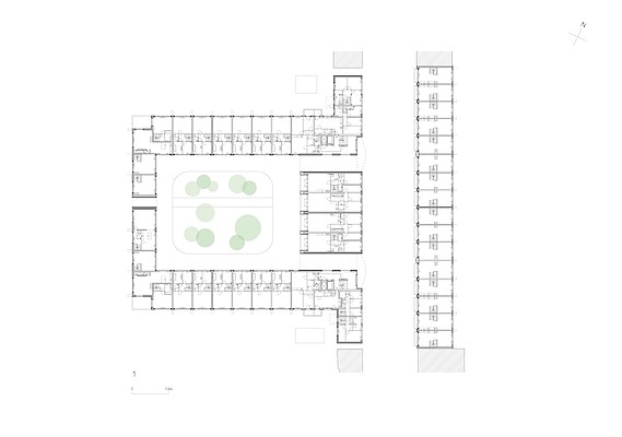
Plattegrond verdieping 1
Copyright: Korth Tielens Architecten & Marcel Lok_Architect
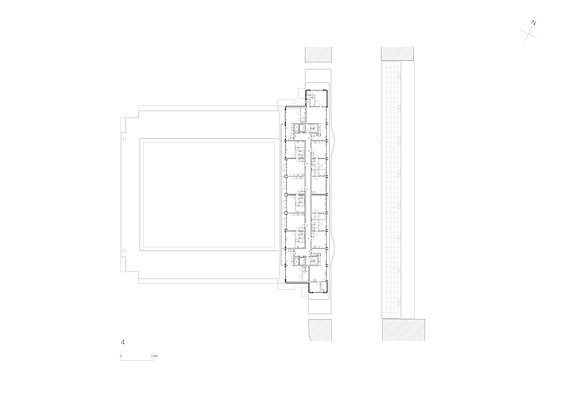
Plattegrond verdieping 2
Copyright: Korth Tielens Architecten & Marcel Lok_Architect
Plattegrond verdieping 3
Copyright: Korth Tielens Architecten & Marcel Lok_Architect
Plattegrond verdieping 4
Copyright: Korth Tielens Architecten & Marcel Lok_Architect
Doorsnedes
Copyright: Korth Tielens Architecten & Marcel Lok_Architect
Programma verdeling
Copyright: Korth Tielens Architecten & Marcel Lok_Architect
Producttags
AAN
UIT
Spaarndammerhart
28 juni 2021
5
0
0
0
De begin twintigste-eeuwse Spaarndammerbuurt bestaat uit karakteristieke stedenbouwkundige ensembles uit de Amsterdamse Schoolperiode. De buurt is nog grotendeels intact, maar in de tijd is met de stadsvernieuwing het stratenpatroon op sommige plekken genegeerd en aangetast. Het wooncomplex op de locatie van de voormalige Spaarndammerschool dat Korth Tielens Architecten en Marcel Lok_Architect ontworpen hebben, staat op zo’n plek. De nieuwbouw is gebaseerd op de rijkdom van de Amsterdamse school traditie waarin architectuur, kunst en natuur samen gaan. Daarom is samengewerkt met DS Landschapsarchitecten en beeldend kunstenaar Martijn Sandberg.
Het hart is het collectieve groene hof dat passend in de buurt bereikbaar is door poorten die aansluiten op de informele routes in de buurt. Er zijn gemeenschappelijke tuinen waarin de bestaande grote bomen hergegroepeerd zijn waardoor er een riant groen uitzicht voor zowel de bewoners in de nieuwbouw als de bewoners in de bestaande aanliggende woningen is. Het project sluit aan bij het vooruitstrevende Rainproofbeleid van de gemeente Amsterdam. Groene daken vangen het regenwater op en er is zo min mogelijk verharding van de openbare ruimte. Bij hittestress zorgen het vele groen en de robuuste gevels voor verkoeling. De beplanting is afgestemd op voedselvoorziening voor de te verwachten stadsdieren zoals kleine zangvogels, vleermuizen en insecten. In de opstaande dakranden en gevels zitten de nestkasten voor kleine vogels, gierzwaluwen en vleermuizen.
Stel jezelf kort voor! Dan weet het betreffende bedrijf wie hun brochure gedownload heeft.
Wil je niet bij elke download jouw gegevens in hoeven voeren?
Klik dan hier om in te loggen
. Heb je nog geen account?
Maak dan hier een gratis account aan
.
Voornaam
Achternaam
E-mailadres
Downloaden
Wanneer je brochures downloadt op Architectenweb.nl worden relevante gegevens van jou – zoals jouw naam en e-mailadres – met het betreffende bedrijf gedeeld. Meer hierover lees je in ons
privacybeleid
.
Wanneer je brochures downloadt op Architectenweb.nl worden relevante gegevens van jou – zoals jouw naam en e-mailadres – met het betreffende bedrijf gedeeld. Meer hierover lees je in ons
privacybeleid
.
Brochure
Stel jezelf kort voor! Dan weet het betreffende bedrijf wie hun model gedownload heeft.
Wil je niet bij elke download jouw gegevens in hoeven voeren?
Klik dan hier om in te loggen
.
Heb je nog geen account?
Maak dan hier een gratis account aan
.
Voornaam
Achternaam
E-mailadres
Downloaden
Wanneer je modellen downloadt op Architectenweb.nl worden relevante gegevens van jou – zoals jouw naam en e-mailadres – met het betreffende bedrijf gedeeld. Meer hierover lees je in ons
privacybeleid
.
Locatie
Trefwoorden
woonkwaliteit
stadsreparatie
collectieve hof
rainproof
amsterdamse school
routing
gemeenschappelijke tuinen
Architectenweb Awards 2021
Woongebouw van het Jaar
Nominatie
Bekijk alle genomineerden
Korth Tielens Architecten & Marcel Lok_Architect
Neem contact op
Projectdata
Staat van realisatie
Voltooid
Start ontwerpproces
2016
Start bouw
2018
Oplevering
2020
Ingebruikname
2021
Plaats
Amsterdam
Kosten
23750000
Bruto m
2
12676
Netto m
2
7749
m
3
40563
Meewerkende partijen
Architect
Korth Tielens Architecten & Marcel Lok_Architect
Interieurarchitect
Korth Tielens Architecten & Marcel Lok_Architect
Projectarchitect
Mike Korth, Marcel Lok, Gus Tielens
Ontwerpteam
Sharon Sportel, Wieshant Manna, Luuc Sonke, Angelique Haver, Chantal Beltman, Carolina Chataignier, Tristen Vreugdehil, Richard Proudley
Opdrachtgever
Heijmans Vastgoed
Aannemer
Heijmans Woningbouw
Constructeur
Strackee Bouwadviesbureau
Adviseurs installaties E & W
Fore Installatie Adviseurs, (ontwerpfase), Cauberg Huygen
Fotograaf
Max Hart Nibbrig, Peter Cuypers, Luuk Kramer
Landschapsarchitect
DS Landschapsarchitecten
Gebruiker
Woningbouwvereniging Eigen Haard, (sociale huurwoningen)
Beeldend kunstenaar
Martijn Sandberg, Christa Rinzema (projectassistentie)
Leveranciers
Overig
Gele gevelstenen Deppe Backstein, Van Ginkel (tuinbeplanting),
Kawneer
, Deppe Backstein (gele baksteen), Peter Cuypers, Luuk Kramer, St Joris (groene glazuursteen), Straatman (hekwerken), Rode gevelstenen Muhr Klinkerwerke, STB Stahlbeton (prefab gevelelementen), KONE, Max Hart Nibbrig, VanKan (postkasten), Nimis beton (huisnummers), AMA/DeNis (terrazzovloer), HCI beton (prefab balkons), Groene glazuurstenen St Joris, Prefab betonnen trappen MBS, Terrazzo AMA/DeNis Amsterdam, Muhr Klinkerwerke (rode baksteen), Hekwerken/poorten Straatman, MBS betontrappen,
Kawneer
Aluminium kozijnsystemen
Kawneer
Neem contact op met
Korth Tielens Architecten & Marcel Lok_Architect
Je bent momenteel niet ingelogd. Hierdoor is het alleen mogelijk om meer informatie per e-mail op te vragen. Wil je liever gebeld worden of documentatie per post ontvangen?
Klik dan hier om in te loggen
.
Heb je nog geen account?
Maak dan hier een gratis account aan
.
Voornaam
Achternaam
E-mailadres
Opmerkingen
Bij iedere aanvraag worden relevante gegevens van jou gedeeld met het betreffende bedrijf. Meer hierover lees je in ons
privacybeleid
.
Ja, denk met me mee rond de
materialisering van mijn project
Meer projecten van Korth Tielens Architecten & Marcel Lok_Architect
Gerelateerde producten
RT 72 Reflex
Cradle to Cradle gecertificeerd aluminium raam- en deursysteem
Kawneer
Andere Projecten
Huis van de Gemeente Voorst
Kawneer
Rumah Kechik, Malacca
Malaysian Timber Council
Plus Ultra III - EUROLACKE Poedercoatings
EUROLACKE
Energiezuinig gebouwd IKC 's-Heer Arendskerke
wienerberger
Duurzame houten gevelbekleding woning in Sappemeer
Foreco Houtproducten
BDO kantoor Breda
ULMA Architectural Solutions
L-founders of loyalty | Germany
Plan Effect Systeemwanden
Kokowall geluidsscherm A28 bij Ermelo
Kokosystems B.V.
Architects in Motion over abdijrenovatie
KUBUS | Specialist in Archicad
Almere Havenkom
HOSPER landschapsarchitectuur
Lansingerland Lage Bergse Bos
HOSPER landschapsarchitectuur
Sentho realiseert hygiënische upgrade
Sentho B.V.
Ga naar het projecten-overzicht
Voor een optimale gebruikservaring plaatst Architectenweb functionele cookies. Wat de verschillende cookies precies doen leggen we uit in een
overzicht
. Cookies van social media kun je optioneel
aanzetten
.
Akkoord
Instellingen
Annuleren
OK
Sluiten
Doorgaan
Inloggen
Maak een gratis persoonlijk account aan
Feedback
Feedback
Wij horen graag jouw feedback. Laat je reactie achter en eventueel jouw e-mail adres.
Reactie
Verstuur