Projecten
Producten
Bedrijven
Vacatures
Agenda
Awards
Podcasts
more_horiz
Videos
Magazine
Favorieten
Profiel
Uitloggen
Abonneer je nu op onze nieuwsbrieven!
Abonneren
Nee, bedankt
Ja, denk met me mee rond de
materialisering van mijn project
Producten
Ingang onderbouw de Wereldburger
Copyright: Moke Architecten Thijs Wolzak
Kleuterspeelplein de Wereldburger
Copyright: Moke Architecten Thijs Wolzak
Parkkant met doorkijk klaslokalen en ouderenkamer
Copyright: Moke Architecten Thijs Wolzak
Speelplein bovenbouw
Copyright: Moke Architecten Thijs Wolzak
Klaslokalen vanaf de straat zichtbaar
Copyright: Moke Architecten Thijs Wolzak
Groot speelplein met gymlokaal
Copyright: Moke Architecten Thijs Wolzak
Klaslokaal onderbouw zichtbaar bestaande betonnen konstructie
Copyright: Moke Architecten Thijs Wolzak
Klaslokaal middenbouw zichtbaar bestaande betonnen konstructie, plafond hergebruikt hout
Copyright: Moke Architecten Thijs Wolzak
Klaslokaal bovenbouw zichtbaar bestaande betonnen konstructie, plafond hergebruikt hout
Copyright: Moke Architecten Thijs Wolzak
Podiumtrap en vloer hergebruikt hout
Copyright: Moke Architecten Thijs Wolzak
School de Wereldburger
Copyright: Moke Architecten Thijs Wolzak
Nieuwe houten konstructie sluit aan op bestaande betonnen structuur
Copyright: Moke Architecten
Axonometrie de Wereldburger
Copyright: Moke Architecten
Situatie
Copyright: Moke Architecten
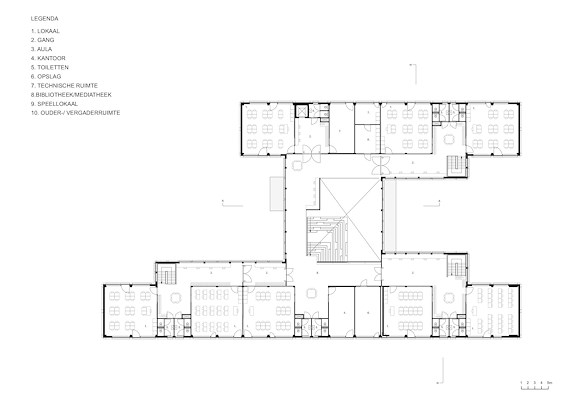
Begane grond de Wereldburger
Copyright: Moke Architecten
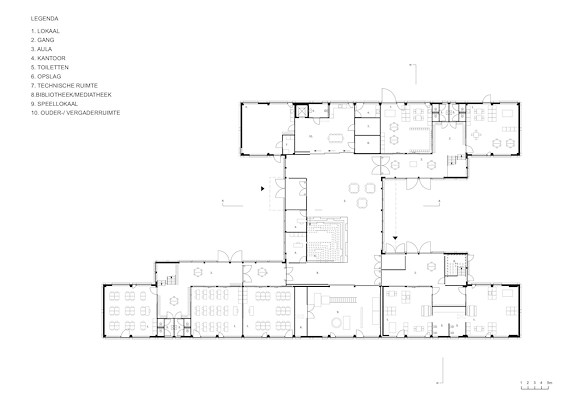
Verdieping de Wereldburger
Copyright: Moke Architecten
Bestaande hergerbuikte betonnen structuur de Wereldburger
Copyright: Moke Architecten
Situatie de Wereldburger wit is bestaand beton en blauw is houten uitbreiding
Copyright: Moke Architecten
Producttags
AAN
UIT
Basisschool De Wereldburger Amsterdam Nieuw-West
25 juni 2021
0
0
0
0
Oud schoolgebouw krijgt nieuw leven als inspirerende leeromgeving
Basisschool De Wereldburger in Amsterdam Nieuw-West krijgt een tweede leven. Naar het ontwerp van Gianni Cito van Moke Architecten wordt het jaren zestig gebouw getransformeerd tot een warme, open leeromgeving met een levendige aula als kloppend hart.
RVE Onderwijs Jeugd en Zorg gemeente Amsterdam, de opdrachtgever, selecteerde Moke Architecten voor het ontwerp. “Het schoolgebouw is van oorsprong een prachtig pand”, vertelt architect Gianni Cito. “Door ondoordachte aanpassingen en nalatig onderhoud is het de afgelopen decennia in verval geraakt. Wij hebben goed gekeken hoe we de oude glorie in ons ontwerp konden terugbrengen.”
Oude betonstructuur, houten toevoegingen
“De betonstructuur van het schoolgebouw blijft behouden”, vervolgt Cito. “We benadrukken die structuur met een metalen gevelbekleding, die de oorspronkelijke betonnen buitengevel vervangt. Grote raampartijen maken het gebouw open en licht, en geven het gevoel dat je buiten staat. Zeker aan de parkzijde is dat van grote toegevoegde waarde.” Moke Architecten breidde het schoolgebouw uit met een aula en klaslokalen. Cito: “Die toevoeging voerden we uit in hout, om een duidelijk verschil te laten zien tussen oud en nieuw.”
Prettige leeromgeving
In het hele gebouw wordt veel hout toegepast. Van de kapstokken tot de trappen en van de kasten tot de keukens. “Hout is een natuurlijk, goed te bewerken materiaal met een warme uitstraling”, zegt Cito. “Dat sluit naadloos aan op de prettige leeromgeving die we willen creëren. De drie meter brede gangen, met volop ruimte voor rustige leerplekken, dragen hier ook aan bij. Maar ook de gezellige speelhoekjes onder de trappen en de directe verbinding met de omheinde buitenspeelpaats.”
Circulair
De aula is wat Cito betreft het mooiste stukje in de school: “Een prachtige houten constructie als kloppend hart van het gebouw, met een imposante houten podiumtrap annex tribune als blikvanger. Deze plek leent zich bij uitstek voor optredens en vieringen.” De aula en trap zijn vervaardigd uit hoogwaardig circulair hout, afkomstig uit een afgebroken gymzaal elders in de stad. Daarnaast vind je in het gebouw hergebruikte houten plafonds, Sfynx wasbakken, deuren en keukeninterieur. Cito: “In De Wereldburger leven diverse gebouwen op een volwaardige manier voort. De gemeente Amsterdam speelde hierin een belangrijke rol. Zij omarmde de circulaire gedachte volledig en deed grote inspanningen om bijvoorbeeld donorgebouwen te vinden.”
Stel jezelf kort voor! Dan weet het betreffende bedrijf wie hun brochure gedownload heeft.
Wil je niet bij elke download jouw gegevens in hoeven voeren?
Klik dan hier om in te loggen
. Heb je nog geen account?
Maak dan hier een gratis account aan
.
Voornaam
Achternaam
E-mailadres
Downloaden
Wanneer je brochures downloadt op Architectenweb.nl worden relevante gegevens van jou – zoals jouw naam en e-mailadres – met het betreffende bedrijf gedeeld. Meer hierover lees je in ons
privacybeleid
.
Wanneer je brochures downloadt op Architectenweb.nl worden relevante gegevens van jou – zoals jouw naam en e-mailadres – met het betreffende bedrijf gedeeld. Meer hierover lees je in ons
privacybeleid
.
Brochure
Stel jezelf kort voor! Dan weet het betreffende bedrijf wie hun model gedownload heeft.
Wil je niet bij elke download jouw gegevens in hoeven voeren?
Klik dan hier om in te loggen
.
Heb je nog geen account?
Maak dan hier een gratis account aan
.
Voornaam
Achternaam
E-mailadres
Downloaden
Wanneer je modellen downloadt op Architectenweb.nl worden relevante gegevens van jou – zoals jouw naam en e-mailadres – met het betreffende bedrijf gedeeld. Meer hierover lees je in ons
privacybeleid
.
Locatie
Trefwoorden
utibreiding
houtstructuur
hergebruik
basischool
betonnenstructuur
gianni cito
circulair
mokearchitecten
Architectenweb Awards 2021
Schoolgebouw van het Jaar
Nominatie
Bekijk alle genomineerden
Moke Architecten
Neem contact op
Projectdata
Staat van realisatie
Voltooid
Start ontwerpproces
2019
Start bouw
2020
Oplevering
2021
Ingebruikname
2021
Plaats
Amsterdam
Bruto m
2
3000
Meewerkende partijen
Architect
Moke Architecten
Projectarchitect
Gianni Cito
Ontwerpteam
Patrick de Weerd, Hao Tran, Mark Spijkerman, Martina Penati
Opdrachtgever
RVE Onderwijs Jeugd en Zorg gemeente Amsterdam
Aannemer
Aannemingsmaatschappij Friso
Constructeur
H. Kuipers, Pieters bouwtechniek
Adviseurs installaties E & W
B&I Eric Bouten
Fotograaf
Thijs Wolzak
Landschapsarchitect
LANDLAB
Leveranciers
C88-PR, C88-RR, C90-P
Glamox BV
Neem contact op met
Moke Architecten
Je bent momenteel niet ingelogd. Hierdoor is het alleen mogelijk om meer informatie per e-mail op te vragen. Wil je liever gebeld worden of documentatie per post ontvangen?
Klik dan hier om in te loggen
.
Heb je nog geen account?
Maak dan hier een gratis account aan
.
Voornaam
Achternaam
E-mailadres
Opmerkingen
Bij iedere aanvraag worden relevante gegevens van jou gedeeld met het betreffende bedrijf. Meer hierover lees je in ons
privacybeleid
.
Ja, denk met me mee rond de
materialisering van mijn project
Meer projecten van Moke Architecten
Bajeskwartier Kavel A
Moke Architecten
Andere Projecten
Onderwijsgebouw Aurora, Wageningen
WEBO
Sandwichpanelenwand hygiënische afbouw
Sentho B.V.
Transformeerbare vergaderruimtes in HNK Amsterdam
BREEDVELD mobiele wandsystemen
Complete buiteninrichting kantooromgeving
Falco B.V.
TopAccess Dakluik bij Porsche Service Factory
Staka Dakluiken
Nieuwbouw villa Tegenbosch, Eindhoven, Noord-Braba
van Os Architecten
Moderne villa Alkmaar
BNLA architecten
Appartementencomplex in Purmerend
SSAB Swedish Steel BV
Office Winhov over project Pulse met Archicad
KUBUS | Specialist in Archicad
Nieuwbouw moderne bungalow, Prinsenbeek, Noord-Bra
van Os Architecten
Verbouwing villa Ruitersbos, Breda, Noord-Brabant
van Os Architecten
Nieuwbouw schuurwoning, Oosterhout, Noord-Brabant
van Os Architecten
Ga naar het projecten-overzicht
Voor een optimale gebruikservaring plaatst Architectenweb functionele cookies. Wat de verschillende cookies precies doen leggen we uit in een
overzicht
. Cookies van social media kun je optioneel
aanzetten
.
Akkoord
Instellingen
Annuleren
OK
Sluiten
Doorgaan
Inloggen
Maak een gratis persoonlijk account aan
Feedback
Feedback
Wij horen graag jouw feedback. Laat je reactie achter en eventueel jouw e-mail adres.
Reactie
Verstuur