Abonneer je nu op onze nieuwsbrieven!
Abonneren
Nee, bedankt
Ja, denk met me mee rond de
materialisering van mijn project
Producten
Copyright: Kevin Veenhuizen Architects
Copyright: Kevin Veenhuizen Architects
Copyright: Kevin Veenhuizen Architects
Copyright: Kevin Veenhuizen Architects
Copyright: Kevin Veenhuizen Architects
Copyright: Kevin Veenhuizen Architects
Copyright: Kevin Veenhuizen Architects
Copyright: Kevin Veenhuizen Architects
Copyright: Kevin Veenhuizen Architects
Copyright: Kevin Veenhuizen Architects
Copyright: Kevin Veenhuizen Architects
Copyright: Kevin Veenhuizen Architects
Copyright: Kevin Veenhuizen Architects
Copyright: Kevin Veenhuizen Architects
Copyright: Kevin Veenhuizen Architects
Copyright: Kevin Veenhuizen Architects
Copyright: Kevin Veenhuizen Architects
Copyright: Kevin Veenhuizen Architects
Copyright: Kevin Veenhuizen Architects
Copyright: Kevin Veenhuizen Architects
Copyright: Kevin Veenhuizen Architects
Copyright: Kevin Veenhuizen Architects
ProducttagsAANUIT

His Loft, Amsterdam

16 juni 2021
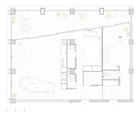
His Loft is ontworpen in het Top-Up gebouw in Amsterdam-Noord.

Het prachtige casco, gebouwd volgens het ‘’open building’’ principe, riep meteen een specifieke sfeer op. De eenvoud van de materialen - massieve houten kolommen met daarop betonnen platen - en de glazen gevel brachten het sterke ruimtelijke concept van de loft naar voren.

Het ontwerp beoogt grenzen tussen woonfuncties te vervagen en een gevoel van continuïteit te creëren. Dit ruimtelijke concept wordt versterkt door onze bescheiden materiaalkeuze. Er zijn niet meer dan twee materialen toegevoegd, die het casco nauwelijks raken: een doorlopende gerookte eikenhouten vloer en drie boxen bekleed met essenhout.

Van de fysieke envelop moest vijfentwintig procent worden besteed aan professionele activiteiten. Alle netwerken zoals elektriciteit, verwarming, water en ventilatie zijn afgedopt bij de voordeur. In combinatie met het gebruik van een verhoogde vloer, bood dit maximale flexibiliteit om het interieur te ontwerpen.

Drie boxen, of liever grote meubelstukken, huisvesten specifieke functies zoals badkamer, toilet, opslag, keuken en open planken. Daartussen vloeien ruimtes, van een intieme slaapzone naar een comfortabele leefruimte en een royale werkplek, allemaal ingepast in de ruimtes tussen de boxen.

De eerste box is geplaatst op een uitsnede in de vloer die gevuld is met tegels en is een hoekig kookeiland dat is versmolten met de ronde vorm van de eettafel. Het resultaat is een op maat gemaakt meubelstuk dat de kook-, eet- en leeffuncties met elkaar verbindt in de ruimte die voornamelijk is gewijd aan dagactiviteiten.

De tweede box heeft twee gezichten: de ene kant presenteert zich naar de woonkamer met open planken - een kleine bibliotheek - en keukenapparaten. Aan de andere kant bevinden zich de badkamer en het toilet, waardoor aan de achterkant een intieme slaapzone ontstaat zonder deze af te sluiten.

De derde box definieert de werkplek en bestaat uit een kast, een opslagruimte, een bezoekerstoilet, een voorraadkast en open planken. De werkruimte is ontworpen om ook te functioneren als een volledig autonome logeerkamer met een douche en kitchenette. Vanuit de regelgeving is een scheiding tussen de woon- en werkfunctie verplicht, de derde box wordt daarom in het midden doorsneden met een wand. Op de wand zijn bovenlichten met wafelglas geplaatst om visuele barrières te beperken. Een taatsdeur over de volledige hoogte verbindt de woon- en werkfunctie.

Aansluitend op de eenvoud van het casco, zijn de boxen zorgvuldig ontworpen. De opgeschaalde meubels zijn bedekt met een verfijnde afwerking van essenhout. In tegenstelling tot dit delicate uiterlijk, is het betonnen plafond ruw gelaten, zoals opgeleverd, met zichtbare ventilatie- en elektriciteitsnetwerken, die hun technische functie tonen.

Zijn Loft is ontworpen voor een ambitieuze klant en heeft geleid tot een persoonlijke plek met kwaliteiten die voortkomen uit eenvoud.

Stel jezelf kort voor! Dan weet het betreffende bedrijf wie hun brochure gedownload heeft.
Wil je niet bij elke download jouw gegevens in hoeven voeren?
Klik dan hier om in te loggen. Heb je nog geen account? Maak dan hier een gratis account aan.
Voornaam
Achternaam
E-mailadres
Downloaden
Wanneer je brochures downloadt op Architectenweb.nl worden relevante gegevens van jou – zoals jouw naam en e-mailadres – met het betreffende bedrijf gedeeld. Meer hierover lees je in ons privacybeleid.
Wanneer je brochures downloadt op Architectenweb.nl worden relevante gegevens van jou – zoals jouw naam en e-mailadres – met het betreffende bedrijf gedeeld. Meer hierover lees je in ons privacybeleid.

Stel jezelf kort voor! Dan weet het betreffende bedrijf wie hun model gedownload heeft.
Wil je niet bij elke download jouw gegevens in hoeven voeren?
Klik dan hier om in te loggen.

Heb je nog geen account? Maak dan hier een gratis account aan.
Voornaam
Achternaam
E-mailadres
Downloaden
Wanneer je modellen downloadt op Architectenweb.nl worden relevante gegevens van jou – zoals jouw naam en e-mailadres – met het betreffende bedrijf gedeeld. Meer hierover lees je in ons privacybeleid.

Locatie

Trefwoorden

casco loft interieur top up

Neem contact op met Kumiki

Je bent momenteel niet ingelogd. Hierdoor is het alleen mogelijk om meer informatie per e-mail op te vragen. Wil je liever gebeld worden of documentatie per post ontvangen? Klik dan hier om in te loggen.
Heb je nog geen account? Maak dan hier een gratis account aan.
Voornaam
Achternaam
E-mailadres
Opmerkingen
Bij iedere aanvraag worden relevante gegevens van jou gedeeld met het betreffende bedrijf. Meer hierover lees je in ons privacybeleid.
Ja, denk met me mee rond de
materialisering van mijn project

Meer projecten van Kumiki

KUBUS | Specialist in Archicad
SAPA
Reynaers Aluminium Nederland
Jansen
SAB-profiel bv
Aliplast Aluminium Systems
Kingspan Light & Air
ALUCOBOND®
Caparol
Tarkett BV
Kawneer
Grohe Nederland B.V.
Malaysian Timber Council
OCS | Office Cabling Systems
Swisspearl Nederland
Forster Nederland N.V.
VELUX Commercial Benelux B.V.
Sempergreen
Houthandel van Dam
Aluprof Nederland BV
QbiQ Wall Systems
Forbo Flooring
Schüco Nederland
Cedral
Sto Isoned bv
Triflex bv
Gorter Luiken BV
wienerberger
DUCO Ventilation & Sun Control
BEWI IsoBouw
ROCKWOOL B.V.
Mview+
Rockfon (ROCKWOOL B.V.)
Gira Nederland B.V.
Kingspan Geïsoleerde Panelen
GEZE Benelux  B.V.
Renson
Metaglas Groep
ABB | Busch-Jaeger
Jung | Hateha B.V.
Knauf B.V.
Saint-Gobain Glass Benelux
Faay Vianen B.V.
objectflor
Boon Edam Nederland B.V.
Hunter Douglas Architectural
VOLA Nederland BV
Forbo Eurocol Nederland B.V.
EQUITONE gevelpanelen
Holonite B.V.
Kronospan
Tata Steel Colorcoat®
Architectenweb
Over ons
Contact

© 2002 - 2026 Architectenweb BV / Voorwaarden / Privacy / Disclaimer / Sitemap
Annuleren
OK
Sluiten
Doorgaan
Inloggen
Maak een gratis persoonlijk account aan