Projecten
Producten
Bedrijven
Vacatures
Agenda
Awards
Podcasts
more_horiz
Videos
Magazine
Favorieten
Profiel
Uitloggen
Abonneer je nu op onze nieuwsbrieven!
Abonneren
Nee, bedankt
Ja, denk met me mee rond de
materialisering van mijn project
Producten
Producttags
AAN
UIT
Vlinderdak
20 mei 2020
0
0
0
0
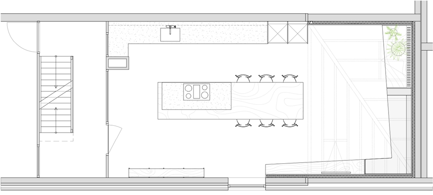
Het Butterfly Roof project van Kevin Veenhuizen Architects betreft een speciale uitbouw aan een bestaande woning in Amsterdam. Het nieuwe ontwerp van deze uitbouw trekt de ruimte van de oorspronkelijke buitenpatio op de eerste verdieping bij de keuken, zo ontstaat een ruime woonkeuken. De woonkeuken is enkel ingericht met meubilair op maat dat in het teken staat van het gezinsleven; samen koken, eten en ontspannen.?
Het ontwerp maakt optimaal gebuik van de gegeven hoogte van de bestaande patiomuren, die tot de tweede verdieping van de woning rijken. Deze buitenmuren zijn in het nieuwe ontwerp dan ook nageïsoleerd met voorzetwanden, om zo de interne behaaglijkheid van de nieuwe binnenruimte te kunnen waarborgen. ?
Binnen dezelfde parameters van de originele buitenwanden is een bijzonder op maat gemaakte houten dakconstructie toegevoegd. Op de buitenwanden liggen rondom gelamineerde liggers, net als de diagonale hoofdkeeper. De gordingen zijn onder een hoek geconfigureerd, zodat het daglicht wordt gefilterd en het regenwater naar het laagste punt stroomt en daar kan worden afgevoerd via een geïntegreerde regenpijp. Op de houten vlinderdakconstructie is een glasdak aangebracht waarin elektrisch te open dakramen zijn geïntegreerd voor ventilatie. Tevens zijn in de dakbalken kleine LED’s geïntegreerd. In de nieuwe ruimte onder het vlinderdak is een in eiken afgewerkt zitmeubel op maat ontworpen. Hierdoor ontstaat een comfortabele en lichte verblijfsruimte dichtbij de nieuwe keuken.
De nieuwe walnoot houten keuken is in dit ontwerp ook op maat gemaakt. In het midden van de keuken is een kookeiland ontworpen dat tegelijkertijd een eettafel is. Deze in warm eiken afgewerkte eettafel is het hart van de ruimte en draagt samen met het nieuwe zitgedeelte bij tot een prettige verblijfsruimte en een geschikte plek voor het gezin. Ook kan de tafel overdag als fijne werkplek worden gebruikt. De parelmoeren terazzo afwerking van het keukenblad geeft de keuken een zeer moderne uitstraling.
Voor extra opbergruimte in de keuken is een lostaande staal frame, eiken afgewerkte keukenkast ontworpen. Doordat dit meubel dezelfde materialisatie heeft als de keukentafel en het zitmeubel, vormt het meubilair één geheel en krijgt de totale ruimte een warme uitstraling.
Om de nieuwe eet- en verblijfsruimte toegankelijk te maken, is ook het oorspronkelijke scheidingselement tussen keuken en verkeersruimte vervangen. Het nieuwe scheidingselement is door het toevoegen van ramen veel transparanter geworden. Dit draagt bij aan de ruimtelijkheid van de nieuwe keuken de relatie tussen de voor- en achterruimtes op de eerste verdieping. Om deze ruimtelijkheid te versterken is boven het kookeiland een langwerpige lamp opgehangen in de lengterichting van de ruimte. Ook de cacao-kleurige Forba marmoleumvloer draagt bij aan de beleving van de ruimte als één geheel.
Het vlinderdak en meubilair op maat dragen zo dus bij aan een geslaagde uitbouw. De ontwerpfocus is hier overduidelijk niet gelegd op het creëren van enkel extra vierkante meters, maar op persoonlijk gebruiksgemak, behaaglijkheid en comfort van de ruimte.
Stel jezelf kort voor! Dan weet het betreffende bedrijf wie hun brochure gedownload heeft.
Wil je niet bij elke download jouw gegevens in hoeven voeren?
Klik dan hier om in te loggen
. Heb je nog geen account?
Maak dan hier een gratis account aan
.
Voornaam
Achternaam
E-mailadres
Downloaden
Wanneer je brochures downloadt op Architectenweb.nl worden relevante gegevens van jou – zoals jouw naam en e-mailadres – met het betreffende bedrijf gedeeld. Meer hierover lees je in ons
privacybeleid
.
Wanneer je brochures downloadt op Architectenweb.nl worden relevante gegevens van jou – zoals jouw naam en e-mailadres – met het betreffende bedrijf gedeeld. Meer hierover lees je in ons
privacybeleid
.
Brochure
Stel jezelf kort voor! Dan weet het betreffende bedrijf wie hun model gedownload heeft.
Wil je niet bij elke download jouw gegevens in hoeven voeren?
Klik dan hier om in te loggen
.
Heb je nog geen account?
Maak dan hier een gratis account aan
.
Voornaam
Achternaam
E-mailadres
Downloaden
Wanneer je modellen downloadt op Architectenweb.nl worden relevante gegevens van jou – zoals jouw naam en e-mailadres – met het betreffende bedrijf gedeeld. Meer hierover lees je in ons
privacybeleid
.
Locatie
Trefwoorden
interieurontwerp
glazen dak
keukenontwerp
Kumiki
Neem contact op
Projectdata
Staat van realisatie
Voltooid
Start ontwerpproces
2017
Start bouw
2018
Oplevering
2019
Ingebruikname
2019
Plaats
Amsterdam
Bruto m
2
47
Netto m
2
47
m
3
141
Meewerkende partijen
Architect
Kumiki
Projectarchitect
Kevin Veenhuizen
Opdrachtgever
particulier
Aannemer
Medal
Fotograaf
Max Hart Nibbrig
Interieurbouwer
Roel Huisman
Leveranciers
Overig
Corradi, Modular Lighting Nederland BV
Neem contact op met
Kumiki
Je bent momenteel niet ingelogd. Hierdoor is het alleen mogelijk om meer informatie per e-mail op te vragen. Wil je liever gebeld worden of documentatie per post ontvangen?
Klik dan hier om in te loggen
.
Heb je nog geen account?
Maak dan hier een gratis account aan
.
Voornaam
Achternaam
E-mailadres
Opmerkingen
Bij iedere aanvraag worden relevante gegevens van jou gedeeld met het betreffende bedrijf. Meer hierover lees je in ons
privacybeleid
.
Ja, denk met me mee rond de
materialisering van mijn project
Meer projecten van Kumiki
Vakantiehuis Herperduin
Kumiki
His Loft, Amsterdam
Kumiki
Het Gymlokaal, Amsterdam
Kumiki
Duurzaam kantoorontwerp op maat
Kumiki
Vakantiehuis Herperduin
Kumiki
His Loft, Amsterdam
Kumiki
Het Gymlokaal, Amsterdam
Kumiki
Duurzaam kantoorontwerp op maat
Kumiki
Toon alles
Andere Projecten
Transformeerbare vergaderruimtes in HNK Amsterdam
BREEDVELD mobiele wandsystemen
Complete buiteninrichting kantooromgeving
Falco B.V.
TopAccess Dakluik bij Porsche Service Factory
Staka Dakluiken
Appartementencomplex in Purmerend
SSAB Swedish Steel BV
Moderne villa Alkmaar
BNLA architecten
Sandwichpanelenwand hygiënische afbouw
Sentho B.V.
Office Winhov over project Pulse met Archicad
KUBUS | Specialist in Archicad
Nieuwbouw schuurwoning, Eerbeek, Gelderland
van Os Architecten
Verbouwing villa Ruitersbos, Breda, Noord-Brabant
van Os Architecten
Opvallende rondschuifdeuren in Gare de Mons
GEZE Benelux B.V.
Van wijnkelder tot luxe appartement
Pure & Original
Verlichte entree fietsenstalling Haarlem
ILLUNOX® | LED railing systems
Ga naar het projecten-overzicht
Voor een optimale gebruikservaring plaatst Architectenweb functionele cookies. Wat de verschillende cookies precies doen leggen we uit in een
overzicht
. Cookies van social media kun je optioneel
aanzetten
.
Akkoord
Instellingen
Annuleren
OK
Sluiten
Doorgaan
Inloggen
Maak een gratis persoonlijk account aan
Feedback
Feedback
Wij horen graag jouw feedback. Laat je reactie achter en eventueel jouw e-mail adres.
Reactie
Verstuur