Projecten
Producten
Bedrijven
Vacatures
Agenda
Awards
Podcasts
more_horiz
Videos
Magazine
Favorieten
Profiel
Uitloggen
Abonneer je nu op onze nieuwsbrieven!
Abonneren
Nee, bedankt
Ja, denk met me mee rond de
materialisering van mijn project
Producten
Copyright: iNeX architecten
Copyright: iNeX architecten
Copyright: iNeX architecten
Copyright: iNeX architecten
Copyright: iNeX architecten
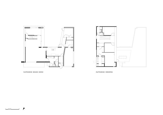
Plattegronden
Copyright: iNeX architecten
Situatie
Copyright: iNeX architecten
Producttags
AAN
UIT
woonhuis Campagne Maastricht
7 juni 2021
0
0
0
0
Het woonhuis maakt deel uit van een reeks van 8 bouwpercelen die in 1995 in de wijk Campagne werden verkaveld. Zij zijn ingesloten aan de voorzijde door de Pomerollaan en aan de achterzijde de oude Vroenhovenweg en liggen op het diepste punt van het dal.
De massa-opbouw van het pand is verdeeld in een plintgebouw met daar op een strakke wit gestucte verdieping. Deze witte box kraagt aan de voorzijde 1.5 meter uit. De begane grond (plint) is in een U-vorm om een patio tuin ontworpen en geopend naar de zuidoostelijk gelegen tuin. De verdieping is geheel geopend naar het zuidwesten en heeft behalve een eigen terrasloggia, ook aansluiting op een dakterras. Onder het linker deel van het gebouw bevind zich een kelderberging.
Het woonhuis is ontworpen voor de 2 gepensioneerde echtgenoten zonder kinderen die lange tijd in Amerika hebben geleefd. Een ontwerpcriterium was dat beiden voortdurend met elkaar in contact konden staan, vandaar dat alle leefruimten rondom de patio en in contact met de tuin zijn ontworpen. Op een extreem brede vensterbank bij het keuken-patioraam, kan tijdens het werk rondom het huis steeds een verfrissing gereed gezet worden.
De verdieping is enkel met slaapkamers en badkamers ingericht. De entree wordt gevormd door een verschuiving in de voorgevellijn. Deze overgang wordt benadrukt door een “Eiffel-Schevehütter” flagstone bekleding van het linker geveldeel waarin het woonkamerraam liggend is opgenomen.
De overige wanden van de plint zijn oorspronkelijk in groene betonsteen uitgevoerd maar later door een volgende bewoner in grijs overgeschilderd. Aan de voorzijde is tevens een dubbele oprit ontworpen waarbij een auto kan “voorrijden”. Dat geeft de woning een bijzondere voortuin met een rondom drive op eigen erf. Het zoeken naar de kunstenaar die de natuursteen op kleur en vorm kon plaatsen kostte veel tijd.
Stel jezelf kort voor! Dan weet het betreffende bedrijf wie hun brochure gedownload heeft.
Wil je niet bij elke download jouw gegevens in hoeven voeren?
Klik dan hier om in te loggen
. Heb je nog geen account?
Maak dan hier een gratis account aan
.
Voornaam
Achternaam
E-mailadres
Downloaden
Wanneer je brochures downloadt op Architectenweb.nl worden relevante gegevens van jou – zoals jouw naam en e-mailadres – met het betreffende bedrijf gedeeld. Meer hierover lees je in ons
privacybeleid
.
Wanneer je brochures downloadt op Architectenweb.nl worden relevante gegevens van jou – zoals jouw naam en e-mailadres – met het betreffende bedrijf gedeeld. Meer hierover lees je in ons
privacybeleid
.
Brochure
Stel jezelf kort voor! Dan weet het betreffende bedrijf wie hun model gedownload heeft.
Wil je niet bij elke download jouw gegevens in hoeven voeren?
Klik dan hier om in te loggen
.
Heb je nog geen account?
Maak dan hier een gratis account aan
.
Voornaam
Achternaam
E-mailadres
Downloaden
Wanneer je modellen downloadt op Architectenweb.nl worden relevante gegevens van jou – zoals jouw naam en e-mailadres – met het betreffende bedrijf gedeeld. Meer hierover lees je in ons
privacybeleid
.
Locatie
iNeX architecten
Neem contact op
Projectdata
Staat van realisatie
Voltooid
Start ontwerpproces
1995
Start bouw
1996
Oplevering
1997
Ingebruikname
1997
Plaats
Maastricht
Bruto m
2
289
Meewerkende partijen
Architect
iNeX architecten
Projectarchitect
Jos Kramer, Ronald Veldhuijzen
Opdrachtgever
particulier Maastricht
Fotograaf
John Sondeyker
Neem contact op met
iNeX architecten
Je bent momenteel niet ingelogd. Hierdoor is het alleen mogelijk om meer informatie per e-mail op te vragen. Wil je liever gebeld worden of documentatie per post ontvangen?
Klik dan hier om in te loggen
.
Heb je nog geen account?
Maak dan hier een gratis account aan
.
Voornaam
Achternaam
E-mailadres
Opmerkingen
Bij iedere aanvraag worden relevante gegevens van jou gedeeld met het betreffende bedrijf. Meer hierover lees je in ons
privacybeleid
.
Ja, denk met me mee rond de
materialisering van mijn project
Meer projecten van iNeX architecten
4 woningen Vroendaal
iNeX architecten
Lamelwoningen Vroendaal
iNeX architecten
Hoogveld Heerlen
iNeX architecten
4 woningen Hoogveld Heerlen
iNeX architecten
4 woningen Vroendaal
iNeX architecten
Lamelwoningen Vroendaal
iNeX architecten
Hoogveld Heerlen
iNeX architecten
4 woningen Hoogveld Heerlen
iNeX architecten
Toon alles
Andere Projecten
Heger en Veldwijk Automotive in Harderwijk
FALK®
Kant & Klaar Hagen verminderen luchtvervuiling
Mobilane
Koelmalaan, Alkmaar – Houtbouw wooncomplex
Sto Isoned bv
Ballast Nedam
OTH architecten
WTC | Almere
Plan Effect Systeemwanden
Paviljoens Vleuterweide in Utrecht
SSAB Swedish Steel BV
Berghaus Plaza in Amsterdam
Alucol
Zwaarlast deksels voor betonputten in Swifterbant
Van den Berg Afvoerputten BV
Hooihuisboerderij, Landsmeer
Bastiaan Jongerius Architecten
Six Degrees Café
Malaysian Timber Council
Open vloergootsysteem voor The CubeHouse Amsterdam
HPL Systems BV
Almere De Laren
Schippers Architecten
Ga naar het projecten-overzicht
Voor een optimale gebruikservaring plaatst Architectenweb functionele cookies. Wat de verschillende cookies precies doen leggen we uit in een
overzicht
. Cookies van social media kun je optioneel
aanzetten
.
Akkoord
Instellingen
Annuleren
OK
Sluiten
Doorgaan
Inloggen
Maak een gratis persoonlijk account aan
Feedback
Feedback
Wij horen graag jouw feedback. Laat je reactie achter en eventueel jouw e-mail adres.
Reactie
Verstuur