Projecten
Producten
Bedrijven
Vacatures
Agenda
Awards
Podcasts
more_horiz
Videos
Magazine
Favorieten
Profiel
Uitloggen
Abonneer je nu op onze nieuwsbrieven!
Abonneren
Nee, bedankt
Ja, denk met me mee rond de
materialisering van mijn project
Producten
IKC Wereldwijs voorgevel
Copyright: By Lilian
Copyright: Cheese Works
Copyright: By Lilian
Copyright: Sineth Architecture
Copyright: Sineth Architecture
Copyright: By Lilian
Copyright: By Lilian
Copyright: By Lilian
Copyright: By Lilian
Copyright: By Lilian
Copyright: By Lilian
Copyright: By Lilian
Copyright: By Lilian
Copyright: Sineth Architecture
Copyright: Sineth Architecture
Copyright: Sineth Architecture
Copyright: Sineth Architecture
Producttags
AAN
UIT
IKC Wereldwijs
25 mei 2021
0
0
0
0
In Loosdrecht was sprake van een gestaag teruglopend leerlingaantal, vier verouderde basisscholenmet leegstand en verspreid over het dorp gelegen kinderdagopvang. Om deze situatie te veranderenheeft de gemeente, in overleg met de bestaande partijen, besloten om twee nieuwe Integrale Kindcentrate realiseren. Hierdoor werd het mogelijk twee levensvatbare locaties over te houden waaringeïnvesteerd kon worden. Voor IKC Wereldwijs betekende dit de samenvoeging van twee basisscholenen een kinderdagverblijf.
Uitgangspunten
Inpassing onderwijsvisie: groepsdoorbrekend leren en verticale leerlijn van 0 tot 12 jaar
Budgetneutraal inbreidingsruimte realiseren voor twee groepsruimten t.b.v. toekomstige groei
Behoud en versterking van de wederopbouwarchitectuur van de oorspronkelijke school
Realiseren van een aantrekkelijke openbare ruimte (ook voor buurtkinderen en bewoners)
Realiseren van een gebouw welke ook ’s avonds ingezet kan worden t.b.v. van buurtactiviteiten
Frisse scholen klasse B
BENG en hergebruik van bestaande geleasede zonnepanelen
Gasloos
Realisatie binnen ‘‘beperkt’’ budget, verbetering vastgoedwaarde & exploitatie
Een allesomvattende benadering
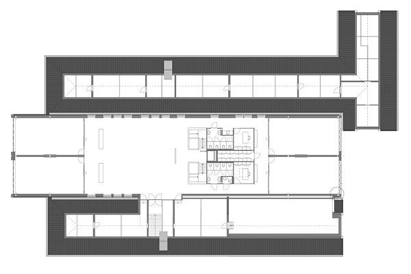
Voorafgaand aan het ontwerp zijn alle uitgangspunten vertaald in een integraal programma. Daarnaast zijn er diversesessies met betrekking tot de gezamenlijke onderwijsvisie geweest. Als bureau hebben we de waarde vanhet gebouw in kaart gebracht. De school is gebouwd in de periode van de wederopbouw en is binnen Loosdrechteen kenmerkend gebouw voor die periode. Daarnaast is de school sterk verweven met de buurt. Hoewel de schooloorspronkelijk is gebouwd in een H-vorm is het niet een archetypische H-school zoals we die kennen uit de gemeenteAmsterdam. Niettemin zagen wij voldoende aanleiding om de oorspronkelijke structuur in ere te herstellen, uit tebreiden en zelfs te versterken ten gunste van het programma. Dit hebben we gedaan door de twee oorspronkelijke langgerekte gebouwen van de H-vorm te verlengen in de oorspronkelijke architectuur. Tussen deze twee bouwdelenhebben we het benodigde programma toegevoegd over twee bouwlagen. Daarbij hebben we in de vormgeving naarrepetitie gezocht door de toevoeging van twee extra langgerekte “beuken” met in het midden ruimte voor de centraleleerpleinen. Door deze benadering bleef er ook veel ruimte voor het speelplein beschikbaar.
Uitwerking in eenvoud
Vanuit de onderwijsvisie was er de wens om buiten de groep op gezamenlijke leerpleinen groepsdoorbrekend thematischonderwijs te kunnen geven. Desondanks was er ook koudwatervrees om het klassikaal onderwijs definitief te verlaten.Daarnaast was de structuur van het gebouw niet erg geschikt om deze aan te passen naar de kleinere eenhedendie passen bij deze onderwijsvorm. Omdat het hier een renovatie betrof hebben we dit nadeel weten om te zettenin een voordeel. Financieel bleek het uiteindelijk haalbaar de klassikale structuur te handhaven en alle groepsruimtenhaaks te positioneren op gezamenlijke leerpleinen voor de onder- midden en bovenbouw. In de uitwendige hoeken ende kernen kwam het ondersteunende programma. Op deze manier konden we de twee tot vierjarigen koppelen aande onderbouw op het speelplein, de middenbouw heeft een dubbelfunctie met de BSO op het werkplein en de bovenbouwheeft haar eigen leerplein. De koppeling vindt plaats met grote schuifpuien. De nul tot tweejarigen zitten rustigaan het uiteinde in een apart deel van het gebouw.
Compacte duurzaamheid
Door te kiezen voor een zeer compact ontwerp werd het mogelijk de energiebehoeftete verlagen en het aantal gevels te reduceren. Dit heeft een positief effect gehad op deexploitatiekosten. Het gehele gebouw is na-geïsoleerd en luchtdicht afgewerkt. Omdat deschool boven op een waterwingebied is gebouwd was het niet mogelijk een warmtepompmet bodem-WKO te realiseren. In plaats daarvan is een warmtepomp op lucht-lucht gekozen.De warmteafgifte gebeurt middels een centrale WTW-installatie en plaatselijk vloerverwarming.De kinderen doen de rest. Daarnaast zijn de bestaande zonnepanelen herplaatstop het platte hoge dak van de nieuwbouw. Het terrein is voldoende groot en open om inde waterbuffering te voorzien. In de keuze voor de materialen is ingezet op natuurlijke enonderhoudsarme oplossingen om zodoende de exploitatiekosten beheersbaar te houden.
Oog voor detail
Het oorspronkelijke H-gebouw is in zijn oude luister hersteld en uitgebreid. Het meest in hetoog springend zijn de nieuwe kozijnen, die weliswaar in aluminium maar in overeenstemmingmet het oorspronkelijke ontwerp zijn teruggeplaatst. In de kleurstelling is gekozen deopgave meer ton sur ton te benaderen om zodoende een harmonieus geheel te creëren.Voor de nieuwbouw hebben we het ons gepermitteerd enkele details aan te brengen. Zois er gekozen om het metselwerk aan de zijgevel in ritme terug te leggen en uit te latenspringen ter plaatse van de larikshouten voorgevellamellen. De zinken daklijsten vinden hunoorsprong en aansluiting op de dakgoten die rondom overgaan in de oudbouw. Binnen waser de ruimte om een geheel eigen sfeer te realiseren. Dit is gedaan door de zelfde warmelarikshouten kleur toe te passen voor de kozijnen. De accentkleur is een zacht blauwgrijs ende vloer een neutraal betongrijs. Kasten, garderobes en keukens zijn zorgvuldig ingebouwdin de kern en de trappen zijn voorzien van solide lambriseringen.
Budgettaire planuitwerking & de zege van renovatie
Toen we aanvankelijk met de opgave begonnen was ereen zeer beperkt budget. Gaandeweg werden de ambitiesnaar boven bijgesteld maar de middelen werden echterbeperkt verhoogd. Dit heeft tot een zeer rationele benaderinggeleid met betrekking tot het ontwerp. Door dezebenadering bleef er ruimte over om tegemoet te komenaan de gebruiks- en exploitatiewensen en -eisen van deopdrachtgever. Daarnaast is het gelukt ruim 300m2 BVOextra te realiseren ten opzichte van een volledige nieuwbouwopgave.Deze ruimte kan worden ingezet voor hetonderwijs en mogelijk toekomstige groei.
Stel jezelf kort voor! Dan weet het betreffende bedrijf wie hun model gedownload heeft.
Wil je niet bij elke download jouw gegevens in hoeven voeren?
Klik dan hier om in te loggen
.
Heb je nog geen account?
Maak dan hier een gratis account aan
.
Voornaam
Achternaam
E-mailadres
Downloaden
Wanneer je modellen downloadt op Architectenweb.nl worden relevante gegevens van jou – zoals jouw naam en e-mailadres – met het betreffende bedrijf gedeeld. Meer hierover lees je in ons
privacybeleid
.
Locatie
Trefwoorden
interieur
ikc
kinderdagverblijf
transformatie
loosdrecht
duurzaam
Sineth Architecture
Neem contact op
Projectdata
Staat van realisatie
Voltooid
Start ontwerpproces
2017
Start bouw
2019
Oplevering
2020
Ingebruikname
2020
Plaats
Loosdrecht
Bruto m
2
2150
Meewerkende partijen
Architect
Sineth Architecture
Interieurarchitect
Sineth Architecture
Projectarchitect
Geert van Hoof
Ontwerpteam
Ron van der Jagt
Opdrachtgever
Proceon
Aannemer
Bouwbedrijf Karbouw
Constructeur
A. Harder
Adviseurs installaties E & W
Duinwijck
Fotograaf
By Lilian, Cheese Works
Leveranciers
Overig
Cheese Works, By Lilian
Neem contact op met
Sineth Architecture
Je bent momenteel niet ingelogd. Hierdoor is het alleen mogelijk om meer informatie per e-mail op te vragen. Wil je liever gebeld worden of documentatie per post ontvangen?
Klik dan hier om in te loggen
.
Heb je nog geen account?
Maak dan hier een gratis account aan
.
Voornaam
Achternaam
E-mailadres
Opmerkingen
Bij iedere aanvraag worden relevante gegevens van jou gedeeld met het betreffende bedrijf. Meer hierover lees je in ons
privacybeleid
.
Ja, denk met me mee rond de
materialisering van mijn project
Meer projecten van Sineth Architecture
MFA Voorn
Sineth Architecture
Monumentale Juliana Daltonschool
Sineth Architecture
Atletiekvereniging ATOS
Sineth Architecture
Basisschool de Zevensprong
Sineth Architecture
Thais Boeddhistische tempel
Sineth Architecture
Basisschool de Wegwijzer
Sineth Architecture
Basisschool Het Kompas
Sineth Architecture
Veiligheidscentrum Amsterdam
Sineth Architecture
HvA Business Campus
Sineth Architecture
Woonhuis Delft
Sineth Architecture
HvA Fraijlemaborg Bedrijfsrestaurant
Sineth Architecture
Basisschool Wereldwijs en STAK
Sineth Architecture
Basisschool de Tandem
Sineth Architecture
MFA Voorn
Sineth Architecture
Monumentale Juliana Daltonschool
Sineth Architecture
Atletiekvereniging ATOS
Sineth Architecture
Basisschool de Zevensprong
Sineth Architecture
Thais Boeddhistische tempel
Sineth Architecture
Basisschool de Wegwijzer
Sineth Architecture
Basisschool Het Kompas
Sineth Architecture
Veiligheidscentrum Amsterdam
Sineth Architecture
HvA Business Campus
Sineth Architecture
Woonhuis Delft
Sineth Architecture
HvA Fraijlemaborg Bedrijfsrestaurant
Sineth Architecture
Basisschool Wereldwijs en STAK
Sineth Architecture
Basisschool de Tandem
Sineth Architecture
Toon alles
Andere Projecten
In ontwikkeling: IKC Strandeiland, Amsterdam
WEBO
Gorter op nieuwbouw sociale huurappartementen
Gorter Luiken BV
Prefab villa - Egmond aan Zee
Houthandel van Dam
Nieuwbouw poeliersbedrijf Van Berkel Kip
Ruys Groep
Nieuwbouw 107 appartementen Spoordok
Gorter Luiken BV
Appartementencomplex - Résidence Gooiland
Rodruza B.V.
Nieuwbouwwijk - Oosterparkkwartier
Rodruza B.V.
Nieuwbouwwijk - New Brooklyn
Rodruza B.V.
De Octaaf - Nijmegen
Houthandel van Dam
Tijdloos nieuwbouwproject – Haaksbergen
Joris Ide
JI NatureBlack - Tijdloos design, staalprestaties
Joris Ide
Netbeheer Den Haag | slim en duurzaam werken
Forbo Flooring
Ga naar het projecten-overzicht
Voor een optimale gebruikservaring plaatst Architectenweb functionele cookies. Wat de verschillende cookies precies doen leggen we uit in een
overzicht
. Cookies van social media kun je optioneel
aanzetten
.
Akkoord
Instellingen
Annuleren
OK
Sluiten
Doorgaan
Inloggen
Maak een gratis persoonlijk account aan
Feedback
Feedback
Wij horen graag jouw feedback. Laat je reactie achter en eventueel jouw e-mail adres.
Reactie
Verstuur