Projecten
Producten
Bedrijven
Vacatures
Agenda
Awards
Podcasts
more_horiz
Videos
Magazine
Favorieten
Profiel
Uitloggen
Abonneer je nu op onze nieuwsbrieven!
Abonneren
Nee, bedankt
Ja, denk met me mee rond de
materialisering van mijn project
Producten
Voorgevel
Copyright: Chiel de Nooyer
Werkruimte op de eerste verdieping
Copyright: Chiel de Nooyer
Maakplaats Hem in Haven-Stad
Copyright: KettingHuls
Maakplaats Hem langs Tuinpark Zonnehoek
Copyright: Chiel de Nooyer | KettingHuls
Grote open ruimtes
Copyright: Chiel de Nooyer
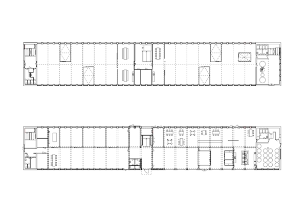
Plattegrond begane grond en 1ste verdieping
Copyright: KettingHuls
Vergaderruimte
Copyright: Chiel de Nooyer
Doorsnede met vergaderruimte
Copyright: KettingHuls
Een professionele horeca keuken op de begane grond
Copyright: Chiel de Nooyer
De voormalige parkeerplaats is nu een groene tuin
Copyright: Chiel de Nooyer
Gaten boren in asfalt voor beplanting
Copyright: KettingHuls
Producttags
AAN
UIT
Maakplaats Hem
25 augustus 2020
0
0
0
0
Samen met GRO, die nu paddenstoelen teelt in het gebouw, heeft KettingHuls het initiatief genomen tot de herontwikkeling van het pand. Nu een deel van het havengebied getransformeerd wordt naar een woon-werkwijk, wil het gebouw juist de lokale ‘maak’ cultuur van de havens behouden en daarbij vooral startende bedrijven uit de foodsector ruimte bieden.
Naar aanleiding van een studie van KettingHuls naar de positie van het gebouw in een grotere context werd een fietsroute aangelegd langs de achterzijde van het gebouw als verbinding tussen Houthavens en Westerpark. Met de komst van het fietsroute wordt het gebouw ‘omgedraaid’ zodat de ‘nieuwe voorgevel’ met de entree aan de zijde van het fietspad komen te liggen, de zuidzijde van het gebouw. Het parkeerterrein is heringericht tot een groene buitenplaats met fruitbomen en picknickbanken.
Uitgangspunt bij de verbouwing van het entreegebouw is het creëren van grote open ruimtes, waar bedrijven samenwerken en faciliteiten delen. Alle systeemwanden en plafonds zijn verwijdert zodat de oorspronkelijke draagstructuur van spanten en betonnen kolommen en liggers weer in het zicht komt. In de ruime open werkvertrekken die zo ontstaan, zijn met een kassenbouwsysteem vergaderruimtes geplaatst, multifunctionele ruimtes en keukens gecreëerd. Met deze transparante constructies blijft de openheid van de grote ruimtes behouden maar wordt er tegelijkertijd diversiteit in de ruimte gecreëerd. Met minimale financiële middelen (€ 205,-/m2) is een casco gemaakt waarbinnen de startende bedrijven hun eigen identiteit maximaal kunnen presenteren.
Op de begane grond zijn twee maakplaatsen en een professionele horeca keuken. De keuken wordt verhuurd door middel van memberships aan food-startups. In de kop van het gebouw is een proeflokaal van de Prael gehuisvest.
Na een typische make-over in de jaren ’80 waarin alle schoonheid is weg getimmerd achter systeemwanden en plafonds en het gehele pand is volgestopt met een excessieve hoeveelheid installaties, is het gebouw nu weer teruggebracht naar zijn oorspronkelijke staat. Het kan eindelijk weer luchtig ademen!
Stel jezelf kort voor! Dan weet het betreffende bedrijf wie hun model gedownload heeft.
Wil je niet bij elke download jouw gegevens in hoeven voeren?
Klik dan hier om in te loggen
.
Heb je nog geen account?
Maak dan hier een gratis account aan
.
Voornaam
Achternaam
E-mailadres
Downloaden
Wanneer je modellen downloadt op Architectenweb.nl worden relevante gegevens van jou – zoals jouw naam en e-mailadres – met het betreffende bedrijf gedeeld. Meer hierover lees je in ons
privacybeleid
.
Locatie
buro Kettinghuls
Neem contact op
Projectdata
Staat van realisatie
Voltooid
Start ontwerpproces
2013
Start bouw
2014
Oplevering
2018
Ingebruikname
2015
Plaats
Amsterdam
Kosten
530000
Netto m
2
2400
Meewerkende partijen
Architect
buro Kettinghuls
Projectarchitect
Danielle Huls, Monica Ketting
Ontwerpteam
Daniëlle Huls, Monica Ketting, Femke Peters, Tuur Pluijmen, Job van der Sande, Saline Verhoeven
Opdrachtgever
Heren 2
Aannemer
B3, Tangenta, Spaan Betonbewerking, vink, Dakvlak, Gebr. De Graaf Schilderwerken
Fotograaf
Chiel de Nooyer
Landschapsarchitect
S-coop
Leveranciers
Overig
Horticulture Services B.V., Chiel de Nooyer
Neem contact op met
buro Kettinghuls
Je bent momenteel niet ingelogd. Hierdoor is het alleen mogelijk om meer informatie per e-mail op te vragen. Wil je liever gebeld worden of documentatie per post ontvangen?
Klik dan hier om in te loggen
.
Heb je nog geen account?
Maak dan hier een gratis account aan
.
Voornaam
Achternaam
E-mailadres
Opmerkingen
Bij iedere aanvraag worden relevante gegevens van jou gedeeld met het betreffende bedrijf. Meer hierover lees je in ons
privacybeleid
.
Ja, denk met me mee rond de
materialisering van mijn project
Meer projecten van buro Kettinghuls
Vliervelden; wonen op een boerenerf
buro Kettinghuls
Villa Julianalaan
buro Kettinghuls
Bolderburen
buro Kettinghuls
Restobar Mama
buro Kettinghuls
Vliervelden; wonen op een boerenerf
buro Kettinghuls
Villa Julianalaan
buro Kettinghuls
Bolderburen
buro Kettinghuls
Restobar Mama
buro Kettinghuls
Toon alles
Andere Projecten
Koelmalaan, Alkmaar – Houtbouw wooncomplex
Sto Isoned bv
WTC | Almere
Plan Effect Systeemwanden
Ballast Nedam
OTH architecten
Berghaus Plaza in Amsterdam
Alucol
Paviljoens Vleuterweide in Utrecht
SSAB Swedish Steel BV
Zwaarlast deksels voor betonputten in Swifterbant
Van den Berg Afvoerputten BV
Hooihuisboerderij, Landsmeer
Bastiaan Jongerius Architecten
Six Degrees Café
Malaysian Timber Council
Open vloergootsysteem voor The CubeHouse Amsterdam
HPL Systems BV
Almere De Laren
Schippers Architecten
Wooncomplex Lariks in Houthaven
Mapro
Nieuwe kantoorinrichting BDO Brabant
Kronospan
Ga naar het projecten-overzicht
Voor een optimale gebruikservaring plaatst Architectenweb functionele cookies. Wat de verschillende cookies precies doen leggen we uit in een
overzicht
. Cookies van social media kun je optioneel
aanzetten
.
Akkoord
Instellingen
Annuleren
OK
Sluiten
Doorgaan
Inloggen
Maak een gratis persoonlijk account aan
Feedback
Feedback
Wij horen graag jouw feedback. Laat je reactie achter en eventueel jouw e-mail adres.
Reactie
Verstuur