Projecten
Producten
Bedrijven
Vacatures
Agenda
Awards
Podcasts
more_horiz
Videos
Magazine
Favorieten
Profiel
Uitloggen
Abonneer je nu op onze nieuwsbrieven!
Abonneren
Nee, bedankt
Ja, denk met me mee rond de
materialisering van mijn project
Producten
apartments for young professionals meelfabriek
end facade Oosterkerkstraat
fragment facade Waardgracht
Waardgracht , fences of corten steel
entrance block Waardgracht
location air view
3st floor
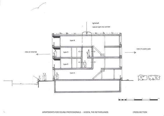
cross section block Waardgracht
entrance block Looiersplein
entrance (future) public park
bridge of corten steel
facade (future) public park
connection with former office building meelfabriek
gallery block Looiersplein
inside corridor with natural daylight block Waardgracht
entrance hall block Waardgracht
entrance hall block Waardgracht
Producttags
AAN
UIT
Appartementen voor young professionals rond De Meelfabriek
30 juni 2020
0
0
0
0
Het project bestaat uit twee bouw blokken en is een onderdeel van het Meelfabriek complex. Dit grootschalige industriële complex wordt hergebruikt voor appartementen en een hotel. Het project volgt de contouren van het door de Zwitserse architect Peter Zumthor opgestelde masterplan. De twee bouwblokken zijn een toevoeging aan de bestaande Meelfabriek en gesitueerd langs de perceelgrenzen met de oude Leidse binnenstad. De ruimte tussen de nieuwe gebouwen en de bestaande Meelfabriek wordt omgevormd tot een stadspark. De twee bouwblokken zijn onderling verbonden door een loopbrug.
Hoofdopzet
Gezien de ligging van het project zowel aan de stadgracht als aan een stadspark is de architectuur alzijdig, er is geen voor- en achterkant. In de planopzet zijn de appartementen op deze twee zijden georiënteerd. In het grote bouwblok wordt dit mogelijk gemaakt door de toepassing van een midden gang in combinatie met het maisonnette type. De gevels worden zo optimaal gebruikt. De midden gang is twee verdieping hoog uitgevoerd. Door een doorgaande vide en de toetreding van daglicht door lichtkokers wordt de ruimtelijke kwaliteit gewaarborgd. Het kleine bouwblok heeft een achter de gevel gelegen galerijontsluiting met gelijkvloerse appartementen. De appartementen zijn ontwikkeld voor de huisvesting van studenten in de master fase. Uitgangspunt is een gemeenschappelijke bewoning per appartement van twee studenten met een ieder en eigen kamer en een gemeenschappelijk ruimte, keuken, badkamer en toilet. De appartementen kunnen ook ingedeeld worden voor drie studenten met drie gelijkwaardige kamers. Ieder appartement heeft een loggia. Alle ramen zijn uitgevoerd als Frans balkon. Alle appartementen zijn invalide toegankelijk en volledig aanpasbaar. Het project huisvest totaal 55 appartementen waarvan 28 maisonnettes (88 m2) en 27 gelijkvloerse appartementen (74 m2)
Architectuur
Uitgangspunt voor het project is een minimalistische architectuur om een goede aansluiting te verkrijgen met de utilitaire Meelfabriek. Uitgevoerd in een baksteenarchitectuur omdat dit heel goed aansluit op zowel de oude binnenstad als de bestaande Meelfabriek. De gevelstructuur heeft een doorgaand patroon van gelijke gevelopeningen met diepe negge ’s waardoor de gevel een sterk ritmisch en plastisch aanzien heeft. De gebouwen manifesteren zich visueel telkens weer anders, afhankelijk van het standpunt van de beschouwer en de stand van het zonnelicht. Het gevelpatroon wordt doorgezet over de kopgevels in de vorm van muurkassen. Er is geen onderscheid in gevelbehandeling van de verschillende gevels. Om de gebouwen te verbijzonderen en een industrieel accent toe te voegen zijn elementen in corten staal toegevoegd. Zo zijn de hekwerken, de loopbrug tussen de twee gebouwen en het kopgevel schijfje in corten staal uitgevoerd.
On de samenhang tussen oud en nieuw te versterken is de steenkeuze gemaakt op basis van vergelijk met de baksteen gebruikt in het voormalige kantoorgebouw van de Meelfabriek. Gekozen is voor Hagemeister strengpers steen, type Rostock in waalformaat en halfsteensverband.
Het regelmatige patroon van de gevel is uitermate geschikt voor prefabricage waardoor een bijzondere kwaliteit in detaillering en materiaalgebruik financieel mogelijk is geworden. De prefab balken en kolommen zijn van beton waar de steenstrips ingestort zijn.
Stel jezelf kort voor! Dan weet het betreffende bedrijf wie hun brochure gedownload heeft.
Wil je niet bij elke download jouw gegevens in hoeven voeren?
Klik dan hier om in te loggen
. Heb je nog geen account?
Maak dan hier een gratis account aan
.
Voornaam
Achternaam
E-mailadres
Downloaden
Wanneer je brochures downloadt op Architectenweb.nl worden relevante gegevens van jou – zoals jouw naam en e-mailadres – met het betreffende bedrijf gedeeld. Meer hierover lees je in ons
privacybeleid
.
Wanneer je brochures downloadt op Architectenweb.nl worden relevante gegevens van jou – zoals jouw naam en e-mailadres – met het betreffende bedrijf gedeeld. Meer hierover lees je in ons
privacybeleid
.
Brochure
Stel jezelf kort voor! Dan weet het betreffende bedrijf wie hun model gedownload heeft.
Wil je niet bij elke download jouw gegevens in hoeven voeren?
Klik dan hier om in te loggen
.
Heb je nog geen account?
Maak dan hier een gratis account aan
.
Voornaam
Achternaam
E-mailadres
Downloaden
Wanneer je modellen downloadt op Architectenweb.nl worden relevante gegevens van jou – zoals jouw naam en e-mailadres – met het betreffende bedrijf gedeeld. Meer hierover lees je in ons
privacybeleid
.
Locatie
Trefwoorden
studentenhuisvesting
meelfabriek
appartementen
leiden
Splinter Architecten b.v.
Neem contact op
Projectdata
Staat van realisatie
Voltooid
Start ontwerpproces
2007
Start bouw
2017
Oplevering
2019
Ingebruikname
2019
Plaats
Leiden
Kosten
9700000
Bruto m
2
10210
Netto m
2
7082
m
3
31040
Meewerkende partijen
Architect
Splinter Architecten BV BNA
Interieurarchitect
Splinter Architecten BV BNA
Projectarchitect
jan splinter
Ontwerpteam
jan splinter harry pappot wilco dool
Opdrachtgever
Stichting DUWO, uw partner in wonen
Aannemer
Van der Wiel Bouw BV
Constructeur
adviesbureau van Dijke
Fotograaf
Luuk Kramer fotografie
Leveranciers
Overig
Hagemeister GmbH & Co. KG
, Luuk Kramer fotografie
Neem contact op met
Splinter Architecten b.v.
Je bent momenteel niet ingelogd. Hierdoor is het alleen mogelijk om meer informatie per e-mail op te vragen. Wil je liever gebeld worden of documentatie per post ontvangen?
Klik dan hier om in te loggen
.
Heb je nog geen account?
Maak dan hier een gratis account aan
.
Voornaam
Achternaam
E-mailadres
Opmerkingen
Bij iedere aanvraag worden relevante gegevens van jou gedeeld met het betreffende bedrijf. Meer hierover lees je in ons
privacybeleid
.
Ja, denk met me mee rond de
materialisering van mijn project
Meer projecten van Splinter Architecten b.v.
Transformatie Hoog Lindoduin Scheveningen
Splinter Architecten b.v.
aardwarmtecentrale den haag zuid west
Splinter Architecten b.v.
Woonzorgcomplex Parledam aan binnenhaven Katwijk aan Zee
Splinter Architecten b.v.
Gezondheidscentrum Pootstraat
Splinter Architecten b.v.
Transformatie Hoog Lindoduin Scheveningen
Splinter Architecten b.v.
aardwarmtecentrale den haag zuid west
Splinter Architecten b.v.
Woonzorgcomplex Parledam aan binnenhaven Katwijk aan Zee
Splinter Architecten b.v.
Gezondheidscentrum Pootstraat
Splinter Architecten b.v.
Toon alles
Andere Projecten
De stad van Aedes: waar werken wonen wordt
Tétris Design & Build
Nieuwbouw Residentie ZICHT Venlo
Knauf Insulation
Light House
Studioninedots
Nieuwbouw Slingeland Ziekenhuis Doetinchem
Knauf Insulation
Fraké Noir gevelbekleding op sanitairgebouw
Houthandel van Dam
The Family Delft
Houthandel van Dam
Houtlook lamellen voor aantrekkelijke nieuwbouw
Renson
De Toerist in Breda
DUCO Ventilation & Sun Control
Solarlux vouwwanden - Zuidkade Scheveningen
Solarlux Nederland B.V.
Multifunctioneel gebouw met aluminium vliesgevel
Aliplast Aluminium Systems
Van gesloten gevel naar transparant visitekaartje
Rockpanel
Den Hartogh Basecamp (Video)
Schüco Nederland
Ga naar het projecten-overzicht
Voor een optimale gebruikservaring plaatst Architectenweb functionele cookies. Wat de verschillende cookies precies doen leggen we uit in een
overzicht
. Cookies van social media kun je optioneel
aanzetten
.
Akkoord
Instellingen
Annuleren
OK
Sluiten
Doorgaan
Inloggen
Maak een gratis persoonlijk account aan
Feedback
Feedback
Wij horen graag jouw feedback. Laat je reactie achter en eventueel jouw e-mail adres.
Reactie
Verstuur