Projecten
Producten
Bedrijven
Vacatures
Agenda
Awards
Podcasts
more_horiz
Videos
Magazine
Favorieten
Profiel
Uitloggen
Abonneer je nu op onze nieuwsbrieven!
Abonneren
Nee, bedankt
Ja, denk met me mee rond de
materialisering van mijn project
Producten
Handschoenenkastje_Van Bergen Architectura
Copyright: Jurrit van der Waal
Trappenhuis_Van Bergen Architectura
Copyright: Jurrit van der Waal
Entree_Van Bergen Architectura
Copyright: Jurrit van der Waal
Keuken_Van Bergen Architectura
Copyright: Jurrit van der Waal
Eetkamer_Van Bergen Architectura
Copyright: Jurrit van der Waal
Entree_Van Bergen Architectura
Copyright: Jurrit van der Waal
Salon_Van Bergen Architectura
Copyright: Jurrit van der Waal
Badkamer_Van Bergen Architectura
Copyright: Jurrit van der Waal
Douche_Van Bergen Architectura
Copyright: Jurrit van der Waal
Toilet_Van Bergen Architectura
Copyright: Jurrit van der Waal
Wasmachine | drogerkas_Van Bergen Architectura
Copyright: Jurrit van der Waal
Slaapkamer_Van Bergen Architectura
Copyright: Jurrit van der Waal
Armatuur_marmer-staal_Van Bergen Architectura
Copyright: Jurrit van der Waal
Armatuur_staal_Van Bergen Architectura
Copyright: Jurrit van der Waal
Armatuur_messing hi-hat_Van Bergen Architectura
Copyright: Jurrit van der Waal
Scharnier_Van Bergen Architectura
Copyright: Jurrit van der Waal
Hoedensteun_Van Bergen Architectura
Copyright: Jurrit van der Waal
Trappenhuis_Van Bergen Architectura
Copyright: Jurrit van der Waal
Traptreden_Van Bergen Architectura
Copyright: Jurrit van der Waal
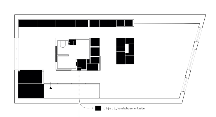
Plattegrond_Van Bergen Architectura
Copyright: Van Bergen Architectura
Objecten_Van Bergen Architectura
Copyright: Van Bergen Architectura
Producttags
AAN
UIT
Moderne Ambacht in Monumentaal Pakhuis
26 juni 2020
1
0
0
0
Pakhuis Amsterdam geeft antwoord op de actuele vraag hoe we in de stad met hetzelfde genot op minder vierkante meter kunnen wonen. De woning van 63m2 op de tweede verdieping begint met het betreden van een houten trap die als 'navelstreng' de begane grond met de tweede verdieping verbindt. In de woning wordt deze verbonden met een centraal houten blok die zowel aan de binnenkant als buitenkant geprogrammeerd is. Het blok bedient alle naastgelegen ruimtes van haar functies en zijn door ingenieuze openingen met elkaar verbonden; hierdoor valt er altijd iets te ontdekken. Door wanden in en uit het blok te schuiven kunnen verschillende plattegronden worden gecreëerd.
Samenwerking
In het project is gezocht naar een hedendaagse samenwerking tussen architect en ambachtslieden. Zo is het Pakhuis vier jaar lang omgedoopt tot architectenlab. Met een team van ambachtslieden zoals een steenhouwer, smid, meubelmaker, glasblazer, brandschilder en leermaker, maar ook een moderne electricien, werd kennis verbonden en werden innovatieve ideeën uitgewerkt. De door domotica gestuurde woning bestaat uit al dan niet verborgen eyecatchers, die het geheel een James Bond-allure geven.
Ontwerpend onderzoek naar nieuwe methodiek
In dit project zijn we vanuit unieke ambachtelijk objecten steeds meer in modulaire systemen gaan ontwerpen, zonder de ambachtelijke uitstraling ervan te verliezen. Hierdoor konden we met minder tijd, materiaal en kosten, meer kwaliteit leveren. Deze ontwikkeling vertaald zich in drie principes:
Object. Door interieurbouw als losse objecten te benaderen kan deze van te voren volledig worden uitgedacht en in de werkplaats machinaal worden vervaardigd. Het handschoenenkastje is hier een goed voorbeeld van; dit machinaal vervaardigde item straalt handwerk uit. Deze benadering zorgt er tevens voor dat de objecten demontabel blijven voor onderhoud of vervanging.
Bewerking en Betekenis. Door te denken vanuit het materiaal kan er op een nieuwe wijze over - seriematige - toepassing worden nagedacht. Het trappenhuis is hier een goed voorbeeld van; daarbij zijn de plank-delen doormidden gezaagd waardoor we met één eikenboom de trap konden bekleden. Door deze op het witte spint-hout te spiegelen, maakten we tevens een ‘architectonische route’ naar boven.
Modulair. We zijn objecten gaan ontleden in elementen en hebben deze meerdere toepassingen gegeven. Het scharniersysteem is hier een goed voorbeeld van; voortbordurend op de statische klassieke speun-scharnier, konden we met 5 elementen onze 14 verschillende schanierposities bedienen. Dit ook met het doel een scharnier weer een sieraad te laten zijn op een kastdeurtje.
Unesco
Deze methodiek resulteert in wat wij noemen ‘Modulaire Ambachtelijke Architectuur’. Sinds Nederland in 2012 het UNESCO Verdrag Inzake Bescherming van Immaterieel Cultureel Erfgoed heeft geratificeerd worden ambachtslieden gestimuleerd hun ambacht te borgen en toekomst te geven, door op zoek te gaan naar nieuwe toepassingen van hun ambachtelijke vaardigheden. Pakhuis Amsterdam laat zien dat er een mooie balans kan ontstaan tussen materiaal, toepassing en kosten. Met dit project hopen we in de toekomst op grotere schaal een verbinding te maken tussen industrie, ambacht en architectuur en daarmee ons gedachtegoed voor Urban Housing van de toekomst verder te ontwikkelen.
Lees meer over de totstandkoming van dit project in een interview in The Art of Living, geschreven door Birgitta van der Linden, BLUSHtxt
Stel jezelf kort voor! Dan weet het betreffende bedrijf wie hun brochure gedownload heeft.
Wil je niet bij elke download jouw gegevens in hoeven voeren?
Klik dan hier om in te loggen
. Heb je nog geen account?
Maak dan hier een gratis account aan
.
Voornaam
Achternaam
E-mailadres
Downloaden
Wanneer je brochures downloadt op Architectenweb.nl worden relevante gegevens van jou – zoals jouw naam en e-mailadres – met het betreffende bedrijf gedeeld. Meer hierover lees je in ons
privacybeleid
.
Wanneer je brochures downloadt op Architectenweb.nl worden relevante gegevens van jou – zoals jouw naam en e-mailadres – met het betreffende bedrijf gedeeld. Meer hierover lees je in ons
privacybeleid
.
Brochure
Stel jezelf kort voor! Dan weet het betreffende bedrijf wie hun model gedownload heeft.
Wil je niet bij elke download jouw gegevens in hoeven voeren?
Klik dan hier om in te loggen
.
Heb je nog geen account?
Maak dan hier een gratis account aan
.
Voornaam
Achternaam
E-mailadres
Downloaden
Wanneer je modellen downloadt op Architectenweb.nl worden relevante gegevens van jou – zoals jouw naam en e-mailadres – met het betreffende bedrijf gedeeld. Meer hierover lees je in ons
privacybeleid
.
Locatie
Trefwoorden
ambacht
appartement
architectuur inteieur
stedelijk
modulair
Van Bergen Architectura
Neem contact op
Projectdata
Staat van realisatie
Voltooid
Start ontwerpproces
2016
Start bouw
2017
Oplevering
2019
Ingebruikname
2020
Plaats
Amsterdam
Bruto m
2
63
Netto m
2
65
m
3
190
Meewerkende partijen
Architect
Michael van Bergen,
Van Bergen Architectura
, Anton de Gruyl_vergunningaanvraag-bouwkundig advies
Ontwerpteam
Joeri Hendriks meubelmakerij, Kenrick Dussel Tetterode, Ferry Griekspoor Elektrotechniek, Chris van Bergen Smid, Anton de Gruyl, Michael van Bergen
Opdrachtgever
Particuler
Aannemer
Huiser de Witt, Joeri Hendriks meubelmakerij
Adviseurs installaties E & W
Ferry Griekspoor Elektrotechniek
Fotograaf
Jurrit van der Waal
Leveranciers
Overig
Jurrit van der Waal, Tetterode Natuursteen
Neem contact op met
Van Bergen Architectura
Je bent momenteel niet ingelogd. Hierdoor is het alleen mogelijk om meer informatie per e-mail op te vragen. Wil je liever gebeld worden of documentatie per post ontvangen?
Klik dan hier om in te loggen
.
Heb je nog geen account?
Maak dan hier een gratis account aan
.
Voornaam
Achternaam
E-mailadres
Opmerkingen
Bij iedere aanvraag worden relevante gegevens van jou gedeeld met het betreffende bedrijf. Meer hierover lees je in ons
privacybeleid
.
Ja, denk met me mee rond de
materialisering van mijn project
Meer projecten van Van Bergen Architectura
Tower for Nature
Van Bergen Architectura
Andere Projecten
Heger en Veldwijk Automotive in Harderwijk
FALK®
Kant & Klaar Hagen verminderen luchtvervuiling
Mobilane
Koelmalaan, Alkmaar – Houtbouw wooncomplex
Sto Isoned bv
Ballast Nedam
OTH architecten
WTC | Almere
Plan Effect Systeemwanden
Paviljoens Vleuterweide in Utrecht
SSAB Swedish Steel BV
Berghaus Plaza in Amsterdam
Alucol
Zwaarlast deksels voor betonputten in Swifterbant
Van den Berg Afvoerputten BV
Hooihuisboerderij, Landsmeer
Bastiaan Jongerius Architecten
Six Degrees Café
Malaysian Timber Council
Open vloergootsysteem voor The CubeHouse Amsterdam
HPL Systems BV
Almere De Laren
Schippers Architecten
Ga naar het projecten-overzicht
Voor een optimale gebruikservaring plaatst Architectenweb functionele cookies. Wat de verschillende cookies precies doen leggen we uit in een
overzicht
. Cookies van social media kun je optioneel
aanzetten
.
Akkoord
Instellingen
Annuleren
OK
Sluiten
Doorgaan
Inloggen
Maak een gratis persoonlijk account aan
Feedback
Feedback
Wij horen graag jouw feedback. Laat je reactie achter en eventueel jouw e-mail adres.
Reactie
Verstuur