Projecten
Producten
Bedrijven
Vacatures
Agenda
Awards
Podcasts
more_horiz
Videos
Magazine
Favorieten
Profiel
Uitloggen
Abonneer je nu op onze nieuwsbrieven!
Abonneren
Nee, bedankt
Ja, denk met me mee rond de
materialisering van mijn project
Producten
Gevel Neude
Copyright: Kees Hummel
Gevel Neude
Copyright: Kees Hummel
Gevel Potterstraat - Oudegracht
Copyright: Kees Hummel
Gevel Oudegracht
Copyright: Kees Hummel
Detail gevel Oudegracht
Copyright: Kees Hummel
Entree winkel Oudegracht
Copyright: Kees Hummel
Entree horeca Potterstraat
Copyright: Kees Hummel
Centrale hal
Copyright: Kees Hummel
Doorzicht centrale hal naar roltrappen op begane grond
Copyright: Kees Hummel
Interieur bibliotheek
Copyright: Kees Hummel
Doorzicht leeszaal naar centrale hal op verdieping
Copyright: Kees Hummel
Interieur bibliotheek
Copyright: Kees Hummel
Interieur bibliotheek
Copyright: Kees Hummel
Interieur bibliotheek
Copyright: Kees Hummel
Auditorium aan Oudegracht
Copyright: Kees Hummel
Doorsnede
Copyright: Rijnboutt - Zecc
Begane grond
Copyright: Rijnboutt - Zecc
Eerste verdieping
Copyright: Rijnboutt - Zecc
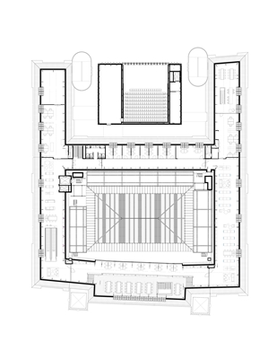
Tweede verdieping
Copyright: Rijnboutt - Zecc
Derde verdieping
Copyright: Rijnboutt - Zecc
Producttags
AAN
UIT
Post Utrecht aan de Neude
29 juni 2020
0
0
0
0
Een openbare bibliotheek is een publiek gebouw. Publiek is een gebouw niet alleen op grond van zijn functie (openbare bibliotheek) of het hebben van een duidelijk adres (zijn formele verankering in de stad), maar ook – en vooral – wanneer het verbonden is met de mensen voor wie het is bedoeld. Publiek is een gebouw wanneer het beantwoordt aan zijn voornaamste doel: als het vehikel en bestemming is van onze gedeelde behoefte aan collectiviteit.
De opgave was om het voormalige PTT-Hoofdkantoor aan de Neude te Utrecht een actieve rol te geven in het stedelijk weefsel én om het ambitieuze programma van ‘bibliotheek van de toekomst’ samen met winkels en horeca als vanzelfsprekend in te passen in dit rijksmonument.
Het hoofdpostkantoor had van oorsprong twee gezichten: een (publieke) voorkant met monumentale entree en publiekshal aan de Neude, en een (logistieke) achterkant aan de Oudegracht met expeditiehof. Behalve in lijn met zijn functie, sloot deze opzet van het hoofdpostkantoor ook aan bij de stedenbouwkundig visie van destijds waarin de Oudegracht van ondergeschikt belang werd geacht. Niets bleek minder waar: de gracht ontwikkelde zich tot een van de belangrijkste winkelgebieden van Utrecht en de expeditiehof ontaardde tot een ‘gat’ in het stedelijk leven. Om het complex Post Utrecht een plaats te geven in de huidige stadsdynamiek was het noodzakelijk om ter plaatse van de expeditiehof een tweede voorkant te maken. Het zoeken was naar een architectuurtaal die aan de uitbreiding zijn eigenheid kon toekennen, maar met voldoende verwantschap met het bestaande om zich ermee te kunnen verhouden.
Het nieuwe volume heeft een maat die vaker voorkomt aan de Oudegracht en die het monument als geheel niet overstemt. In het overnemen van de belangrijkste architectonische kenmerken van het monument, geven oude kenmerken aan de nieuwe gevel zijn gezicht. Aan de Oudegracht en de Potterstraat zijn verschillende winkels en horeca gerealiseerd, waardoor het gebouw alzijdig zijn plaats neemt in het winkelhart van Utrecht.
In het interieur van de Bibliotheek, naar ontwerp van Zecc Architecten, maakt het meubilair een schaalsprong tussen gebouw en gebruiker. Een subtiel spel van kleur en materiaal ondersteunt de oriëntatie van de bezoeker. Extra zichtlijnen door het gebouw en op de centrale hal verbeteren de leesbaarheid van het gebouw.
De monumentale publiekshal was de centrale plek in het gebouw en deze is dat nog steeds voor de Bibliotheek. De voornaamste verandering bestaat eruit dat deze hal van een eindbestemming nu het vertrekpunt is geworden voor een route annex ontdekkingstocht door het hele gebouw. De hal is een bruisend plein geworden, een verlengstuk van de stad waar je kan verblijven, anderen kunt ontmoeten of een evenement kunt bezoeken. ‘Verbinding’ en ‘dialoog’ vormen voor het hele project het leidend thema: programmaonderdelen vloeien naadloos in elkaar over, sparingen in wanden en vloeren (roltrappen en liften) leggen (visuele) relaties, met steeds de publiekshal als het centrale oriëntatiepunt.
Vanuit diverse plekken in de stad zie je het vernieuwde gebouw met zijn dubbele adres. Wat er zich intern afspeelt, vindt plaats in een bibliotheek of winkel, maar is ook verbonden met het hart van de stad.
Stel jezelf kort voor! Dan weet het betreffende bedrijf wie hun model gedownload heeft.
Wil je niet bij elke download jouw gegevens in hoeven voeren?
Klik dan hier om in te loggen
.
Heb je nog geen account?
Maak dan hier een gratis account aan
.
Voornaam
Achternaam
E-mailadres
Downloaden
Wanneer je modellen downloadt op Architectenweb.nl worden relevante gegevens van jou – zoals jouw naam en e-mailadres – met het betreffende bedrijf gedeeld. Meer hierover lees je in ons
privacybeleid
.
Locatie
Trefwoorden
dialoog
postkantoor
bibliotheek
transformatie
rijksmonument
verbinding
Architectenweb Awards 2020
Publiek gebouw van het Jaar
Nominatie
Bekijk alle genomineerden
Rijnboutt
Neem contact op
Projectdata
Staat van realisatie
Voltooid
Start ontwerpproces
2008
Start bouw
2017
Oplevering
2020
Ingebruikname
2020
Plaats
Utrecht
Bruto m
2
18000
Netto m
2
14666
m
3
96000
Meewerkende partijen
Architect
Rijnboutt
,
Zecc Architecten
Projectarchitect
Rijnboutt: Frederik Vermeesch
Ontwerpteam
Rijnboutt:, Mattijs Rijnboutt, Richard Zwagemaker, Maarten Castelijns, Richard Koek, Bonnie Snoek, Jaap Hoving, Karianne Vandenbroucke, Katarzyna Bratek, Kuba Jekiel, Matteo Kuijpers, Pieter Kramer, Rick Knufman, Saja Al Khamassi, Joost Ketmann
Opdrachtgever
a.s.r. real estate
Aannemer
Burgland Bouw B.V.
Constructeur
Zonneveld ingenieurs
Adviseurs installaties E & W
Deerns Raadgevende Ingenieurs
Fotograaf
Kees Hummel Fotografie
Meewerkend architect
HFB architectuur
Projectmanagement
MRP Development, FiMek Estate
Adviseur bouwfysica
Peutz
Adviseur brandveiligheid
Peutz
Adviseur
Het Oversticht
, Josefien & Co
Leveranciers
Bureaus
OCS | Office Cabling Systems
Raam- en deursystemen / kozijnen
Jonkers Bouwmetaal
Overig
Decomo, Koninklijke Tichelaar Makkum, Kees Hummel Fotografie
Neem contact op met
Rijnboutt
Je bent momenteel niet ingelogd. Hierdoor is het alleen mogelijk om meer informatie per e-mail op te vragen. Wil je liever gebeld worden of documentatie per post ontvangen?
Klik dan hier om in te loggen
.
Heb je nog geen account?
Maak dan hier een gratis account aan
.
Voornaam
Achternaam
E-mailadres
Opmerkingen
Bij iedere aanvraag worden relevante gegevens van jou gedeeld met het betreffende bedrijf. Meer hierover lees je in ons
privacybeleid
.
Ja, denk met me mee rond de
materialisering van mijn project
Meer projecten van Rijnboutt
Inde Lanscroon
Rijnboutt
Merwede – Bloom
Rijnboutt
Q Residences - Amsterdam
Rijnboutt
Hoogstraat 168-172 Rotterdam
Rijnboutt
Marquise in Purmerend
Rijnboutt
Nieuwezijds Voorburgwal 225
Rijnboutt
The Cohesion Cobana
Rijnboutt
Up Mountain
Rijnboutt
Nationaal Holocaust Namenmonument in Amsterdam
Rijnboutt
Herbestemming voormalige Citroëngarage
Rijnboutt
Aalmarkt
Rijnboutt
Bellavista
Rijnboutt
Hudson's Bay flagship
Rijnboutt
Hudson's Bay en Passage
Rijnboutt
Olympic Hotel
Rijnboutt
De Ontmoeting
Rijnboutt
Gelderlandplein
Rijnboutt
De Keizer
Rijnboutt
The Bank
Rijnboutt
Inde Lanscroon
Rijnboutt
Merwede – Bloom
Rijnboutt
Q Residences - Amsterdam
Rijnboutt
Hoogstraat 168-172 Rotterdam
Rijnboutt
Marquise in Purmerend
Rijnboutt
Nieuwezijds Voorburgwal 225
Rijnboutt
The Cohesion Cobana
Rijnboutt
Up Mountain
Rijnboutt
Nationaal Holocaust Namenmonument in Amsterdam
Rijnboutt
Herbestemming voormalige Citroëngarage
Rijnboutt
Aalmarkt
Rijnboutt
Bellavista
Rijnboutt
Hudson's Bay flagship
Rijnboutt
Hudson's Bay en Passage
Rijnboutt
Olympic Hotel
Rijnboutt
De Ontmoeting
Rijnboutt
Gelderlandplein
Rijnboutt
De Keizer
Rijnboutt
The Bank
Rijnboutt
Toon alles
Gerelateerde producten
Hekwerk en stalen trappen
Sterk in alles met staal, aluminium, RVS en glas!
Jonkers Bouwmetaal
Geïsoleerde buitenkozijnen
Met inbraakwerende, kogelwerende, isolerende en akoestische eigenschappen.
Jonkers Bouwmetaal
Andere Projecten
De stad van Aedes: waar werken wonen wordt
Tétris Design & Build
Nieuwbouw Residentie ZICHT Venlo
Knauf Insulation
Light House
Studioninedots
Nieuwbouw Slingeland Ziekenhuis Doetinchem
Knauf Insulation
Fraké Noir gevelbekleding op sanitairgebouw
Houthandel van Dam
The Family Delft
Houthandel van Dam
Houtlook lamellen voor aantrekkelijke nieuwbouw
Renson
De Toerist in Breda
DUCO Ventilation & Sun Control
Solarlux vouwwanden - Zuidkade Scheveningen
Solarlux Nederland B.V.
Multifunctioneel gebouw met aluminium vliesgevel
Aliplast Aluminium Systems
Van gesloten gevel naar transparant visitekaartje
Rockpanel
Den Hartogh Basecamp (Video)
Schüco Nederland
Ga naar het projecten-overzicht
Voor een optimale gebruikservaring plaatst Architectenweb functionele cookies. Wat de verschillende cookies precies doen leggen we uit in een
overzicht
. Cookies van social media kun je optioneel
aanzetten
.
Akkoord
Instellingen
Annuleren
OK
Sluiten
Doorgaan
Inloggen
Maak een gratis persoonlijk account aan
Feedback
Feedback
Wij horen graag jouw feedback. Laat je reactie achter en eventueel jouw e-mail adres.
Reactie
Verstuur