Projecten
Producten
Bedrijven
Vacatures
Agenda
Awards
Podcasts
more_horiz
Videos
Magazine
Thema's
Favorieten
Profiel
Uitloggen
Abonneer je nu op onze nieuwsbrieven!
Abonneren
Nee, bedankt
Ja, denk met me mee rond de
materialisering van mijn project
Producten
achtergevel
Copyright: Lucas van der Wee
achtergevel
Copyright: Lucas van der Wee
achtergevel
Copyright: Lucas van der Wee
achtergevel
Copyright: Lucas van der Wee
voorgevel
Copyright: Lucas van der Wee
zijgevel
Copyright: Lucas van der Wee
keuken
Copyright: Lucas van der Wee
keuken
Copyright: Lucas van der Wee
vide
Copyright: Lucas van der Wee
trappenhuis
Copyright: Lucas van der Wee
entree
Copyright: Lucas van der Wee
woonkamer met opkamer
Copyright: Lucas van der Wee
trappenhuis
Copyright: Lucas van der Wee
doorkijkje
Copyright: Lucas van der Wee
kapspant
Copyright: Lucas van der Wee
badkamer boven opkamer
Copyright: Lucas van der Wee
doorsnede
Copyright: IRIS architecten
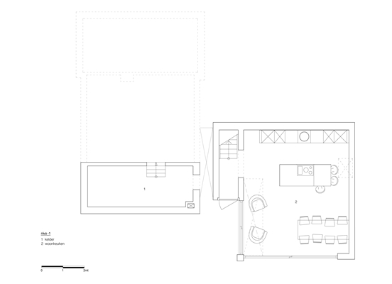
laag -1
Copyright: IRIS architecten
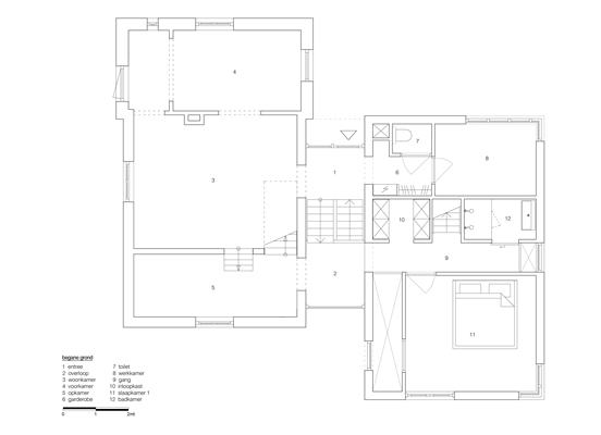
laag 0
Copyright: IRIS architecten
laag 1
Copyright: IRIS architecten
Producttags
AAN
UIT
Uitbreiding Spoorwachterswoning Utrecht
18 juni 2020
4
0
0
0
Aan de voormalige Oosterspoorbaan is een moderne aanbouw bij een monumentale spoorwachterswoning gerealiseerd naar ontwerp van
IRIS architecten
. De wachterswoning werd in 1890 gebouwd als huisvesting voor de spoorwachter en biedt permanent toezicht op de spoorwegovergang om de seinen te bedienen. Het spoor is inmiddels buiten gebruik en getransformeerd tot park Oosterbaan.
De situering van de wachterswoning wijkt af van de omliggende bebouwing; logisch want het volgt het spoor. Door een kleiner volume in dezelfde vorm naast het bestaande te zetten is het monument in zijn waarde gelaten. Door dit nieuwe volume iets terug te leggen blijft de wachterswoning als hoofdvolume herkenbaar. De uitbreiding is een ingetogen, archetypische hoofdvorm, gekoppeld aan het monument door middel van een transparant tussendeel. Het oorspronkelijke huis blijft hierdoor intact en zichtbaar.
Het resultaat doet recht aan het monument terwijl de aanbouw een eigentijds woonprogramma bevat. Vanuit de architectuurhistorische benadering is de oorspronkelijke opkamerstructuur in de woning behouden door volledig in te zetten op de unieke terp-achtige locatie. Dit reliëf bood de mogelijkheid om de verschillende vloerniveaus van de opkamer door te zetten in de uitbreiding. Dit split-level ontwerp vormt samen met verschillende wand- en vloeropeningen een ruimtelijk geheel met veel doorkijkjes en verschillende sferen.
Het nieuwe volume is volledig in houtskeletbouw opgetrokken en aan de buitenkant afgewerkt met zwart houtendelen van Foreco. Hierdoor wordt het ingetogen karakter benadrukt en vormt het een mooi contrast met het gemetselde monument. De zorgvuldig geplaatste gevelopeningen zorgen aan de straatzijde voor voldoende privacy en bieden tegelijkertijd een optimale beleving van de groene parkachtige tuin. Deze verbinding wordt nog eens versterkt door de woonkeuken direct aan de tuin te leggen.
Het transparante tussendeel is de spil van de woning. Hier wordt oud met nieuw verbonden en worden de verschillende vloerniveaus met betonnen trappen aan elkaar verbonden. Door ook de entree van de woning in het glazen tussendeel te plaatsen wordt deze spilfunctie geaccentueerd.
Stel jezelf kort voor! Dan weet het betreffende bedrijf wie hun model gedownload heeft.
Wil je niet bij elke download jouw gegevens in hoeven voeren?
Klik dan hier om in te loggen
.
Heb je nog geen account?
Maak dan hier een gratis account aan
.
Voornaam
Achternaam
E-mailadres
Downloaden
Wanneer je modellen downloadt op Architectenweb.nl worden relevante gegevens van jou – zoals jouw naam en e-mailadres – met het betreffende bedrijf gedeeld. Meer hierover lees je in ons
privacybeleid
.
Locatie
Trefwoorden
monument
houtbouw
interieur
architectuur
spoorwachterswoning
zwart hout
uitbreiding
IRIS architecten
Neem contact op
Projectdata
Staat van realisatie
Voltooid
Start ontwerpproces
2018
Start bouw
2019
Oplevering
2020
Ingebruikname
2020
Plaats
Utrecht
Bruto m
2
220
Netto m
2
182
m
3
685
Meewerkende partijen
Architect
IRIS architecten
Projectarchitect
Daan Briedé
Ontwerpteam
Daan Briedé, Albert Turk
Opdrachtgever
particulier
Aannemer
Frank van Echtelt
Constructeur
Fundament Bouwadvies
Adviseurs installaties E & W
De Installatie Consultant
Fotograaf
Lucas Van Der Wee
Leveranciers
Overig
Foreco Houtproducten
, Lucas Van Der Wee
Neem contact op met
IRIS architecten
Je bent momenteel niet ingelogd. Hierdoor is het alleen mogelijk om meer informatie per e-mail op te vragen. Wil je liever gebeld worden of documentatie per post ontvangen?
Klik dan hier om in te loggen
.
Heb je nog geen account?
Maak dan hier een gratis account aan
.
Voornaam
Achternaam
E-mailadres
Opmerkingen
Bij iedere aanvraag worden relevante gegevens van jou gedeeld met het betreffende bedrijf. Meer hierover lees je in ons
privacybeleid
.
Ja, denk met me mee rond de
materialisering van mijn project
Meer projecten van IRIS architecten
Dudok aan het Diep
IRIS architecten
Uitbreiding hoekwoning Utrecht
IRIS architecten
De Hofwoningen
IRIS architecten
Renovatie van een parkvilla in Haastrecht
IRIS architecten
Uitbreiding monumentale villa
IRIS architecten
Woonhuis Vleuterweide
IRIS architecten
Herbestemming Watertoren Rotsoord
IRIS architecten
Dudok aan het Diep
IRIS architecten
Dudok aan het Diep
IRIS architecten
Uitbreiding hoekwoning Utrecht
IRIS architecten
De Hofwoningen
IRIS architecten
Renovatie van een parkvilla in Haastrecht
IRIS architecten
Uitbreiding monumentale villa
IRIS architecten
Woonhuis Vleuterweide
IRIS architecten
Herbestemming Watertoren Rotsoord
IRIS architecten
Dudok aan het Diep
IRIS architecten
Toon alles
Andere Projecten
Uitbreiding Hotel Martin's Klooster, Leuven
OWA Benelux - Akoestiek & Design
RVS plinten kantoor Moore DRV
Storax
Nieuwbouw keuken Stark Hoogeveen
KeraStone
Transformatie van meubelzaak naar autobedrijf
Buro De Haan
Sluiseiland Arnhem
Houthandel van Dam
Waterfrontontwikkeling Westboro Beach - Ottawa(CA)
Streetlife B.V.
Samen bouwen met ruimte voor eigenheid
Innoblox
Transformeerbare vergaderruimtes in HNK Amsterdam
BREEDVELD mobiele wandsystemen
Groot Hartje
Holonite B.V.
Republica Amsterdam
Houthandel van Dam
De Veluwse Proeftuin - Ede
Houthandel van Dam
Ceylonpoort Haarlem
Houthandel van Dam
Ga naar het projecten-overzicht
Voor een optimale gebruikservaring plaatst Architectenweb functionele cookies. Wat de verschillende cookies precies doen leggen we uit in een
overzicht
. Cookies van social media kun je optioneel
aanzetten
.
Akkoord
Instellingen
Annuleren
OK
Sluiten
Doorgaan
Inloggen
Maak een gratis persoonlijk account aan
Feedback
Feedback
Wij horen graag jouw feedback. Laat je reactie achter en eventueel jouw e-mail adres.
Reactie
Verstuur