Projecten
Producten
Bedrijven
Vacatures
Agenda
Awards
Podcasts
more_horiz
Videos
Magazine
Thema's
Favorieten
Profiel
Uitloggen
Nieuw
Populair
Toon alles
Architectenweb magazine #14
Architectenweb magazine #13
Publieke gebouwen
Architectenweb magazine #12
Kantoren
Architectenweb magazine #11
Scholen
Architectenweb magazine #10
Zorg
Architectenweb magazine #14
Architectenweb magazine #10
Zorg
Architectenweb magazine #12
Kantoren
Architectenweb magazine #13
Publieke gebouwen
Architectenweb magazine #6
Transformatie en Renovatie
Om direct naar je favorieten te kunnen gaan is het nodig om eerst in te loggen.
Nieuw
Architectenweb Awards 2025
Architectenweb Awards 2024
Architectenweb Awards 2023
Architectenweb Awards 2022
Architectenweb Awards 2021
Architectenweb Awards 2020
Architectenweb Awards 2019
Architectenweb Awards 2018
Om direct naar je favorieten te kunnen gaan is het nodig om eerst in te loggen.
Nieuw
Populair
Favorieten
Toon alles
Vakwerk Architecten
Nominatie voor de prijs voor Architect van het Jaar 2025
Sanne van Manen
Nominatie voor de prijs voor Architect van het Jaar 2025
KSA
Nominatie voor de prijs voor Architect van het Jaar 2025
KRFT
Nominatie voor de prijs voor Architect van het Jaar 2025
Joost Ector
Nominatie voor de prijs voor Architect van het Jaar 2025
Prijsuitreiking Architectenweb Awards 2024
Impressie van een feestelijke avond
Martens, Willems & Humblé Architecten
Nominatie voor de prijs voor Architect van het Jaar 2024
Uitreiking van Architectenweb Awards 2020
Impressie van de prijsuitreiking via Zoom
De Zwarte Hond
Nominatie voor de prijs voor Architect van het Jaar 2024
Avond met De Zwarte Hond
Symposium
Om direct naar je favorieten te kunnen gaan is het nodig om eerst in te loggen.
Nieuw
Populair
Categorieën
Favorieten
Toon alles
ST1centrum
Dé specialist op het gebied van gevelstenen en dakpannen met showrooms in Amsterdam en Meppel
Studio Massimo
Architecture & Nature
Brandpreventie Academy BV
HoutPro+
Cay Circulaire Keukens
Circulaire keukens en pantry's
Studio Kirsten Reith
Interieurontwerp
Interior & Co
Studio175
Interieuradvies in regio Utrecht
Orange Automatic Doors
Cay Circulaire Keukens
Circulaire keukens en pantry's
Studio Kirsten Reith
Interieurontwerp
Brandpreventie Academy BV
Architecten
Architectuur
Mobiliteit en infrastructuur
Stedenbouw en landschapsarchitectuur
Leveranciers
Gevels
Daken
Ramen en deuren
Trappen, liften en balustrades
Binnenwanden
Vloeren
Plafonds
Verlichting
Sanitair
Projectinrichting
Installaties
Constructies
Buitenruimte
Software
Adviseurs
Bestekschrijvers
Bouwmanagement
Installatie adviseurs E
Bouwfysica
Calculators
Installatie adviseurs G/W
Bouwkundig tekenwerk
Constructeurs
Lichtadviseurs
Adviseur beveiliging
Juristen
Intermediairs, Payrolling
Aannemers
Overig
Presentatie
Instellingen / onderwijs
Overig
Om direct naar je favorieten te kunnen gaan is het nodig om eerst in te loggen.
Nieuw
Populair
Favorieten
Toon alles
Gesprek met Stephan Sliepenbeek over hoogbouw in Amstel III
Gesprek met Ellen van Bueren over gebiedsontwikkeling en hoogbouw
Gesprek met Ma Yansong over ontwerpen die emotie oproepen
Gesprek met Paul de Ruiter over innovatieve en duurzame hoogbouw
Gesprek met Pi de Bruijn over zijn ontwerpen voor de Tweede Kamer toen en nu
Gesprek met Ellen van Bueren over gebiedsontwikkeling en hoogbouw
Gesprek met Oresti Sarafopoulos over het ontwerpen van een kantoorgebouw met bijna geen installaties
Gesprek met Stijn Steenbakkers over verdichting en hoogbouw in Eindhoven
Gesprek met Pi de Bruijn over zijn ontwerpen voor de Tweede Kamer toen en nu
Gesprek met Paul de Ruiter over innovatieve en duurzame hoogbouw
Om direct naar je favorieten te kunnen gaan is het nodig om eerst in te loggen.
Nieuw
Populair
Categorieën
Favorieten
Toon alles
Smart Lighting voor kantoorcampus Tripolis Park
700 modulaire lichtstraten gebruikt Icône kantoor
Buitenzonwering Cartesius Solo
RVS Staalkabelnetten voor Parel in de Polder
Duurzame modernisering met EcoBrick gevelstenen
Boekweitkamp, Den Haag
Villa van Hout
Exclusieve wooneenheden
CPO Heuvelrug
De Grote Zwaan, Nijmegen
Architectuur
Woningbouw
Zorg
Hotels
Restaurants en café’s
Winkels
Sportgebouwen
Culturele gebouwen
Overheidsgebouwen
Scholen
Kantoren
Bedrijfsgebouwen
Paviljoens en kunst
Overig
Mobiliteit en infrastructuur
Trein- en metrostations
Luchthavens
Busstations
Parkeergarages
Fietsparkeren
Wegen
Bruggen
Water
Energie
Tankstations en laadstations
Waterzuivering en afvalverwerking
Overig
Stedenbouw en landschapsarchitectuur
Regionale visies
Gebiedsvisies
Plannen stedelijk weefsel
Amusementsparken en dierentuinen
Lichtontwerpen
Openbare ruimte
Pleinen
Parken
Tuinen
Speelplaatsen
Uitkijktorens
Overige (bijv. begraafplaatsen)
Om direct naar je favorieten te kunnen gaan is het nodig om eerst in te loggen.
Nieuw
Populair
Categorieën
Favorieten
Toon alles
DINrail Zigbee dimmer
Centrale dimoplossing voor slimme verlichting
De nieuwe Gira G1.
Sneller. Groter. Sterker.
HomeComfort
Create your ambiance in a touch
Next Generation USB C opladers
De Next Generation USB C opladers: snel, compact and efficiënt
D31TDV- en D31TDH IP-video deurintercom systemen
Innovatie voor appartementencomplexen en grote gebouwen
StoTherm Wood: cementvrij gevelsysteem met houtvezelisolatie
Biobased gevelisolatie met natuurlijke prestaties
Akoestisch kussen.
Ervaar de ultime natuurlijke oplossing voor akoestiek problemen.
Lumiglaze – Het vlakglas van VELUX Commercial
Een nieuw tijdperk in daglichtontwerp – minimalistisch, functioneel en klaar voor de toekomst.
Knauf MaxSpace
Minder wand, méér ruimte. Het ideale profiel voor meer winst per m²
Veelzijdig straatmeubilair
Van openbare ruimte naar (be)leefomgeving
Gevels
Gevelbekleding
Vliesgevels
Zonwering buiten
Isolatie
Gevelconstructies
Signing
Overig
Daken
Dakafwerkingen
Dakisolatie
Dakconstructies
Dakranden, dakgoten en HWA's
Dakramen
Lichtkoepels
Lichtstraten
Schoorstenen
Overig
Dakluiken
Ramen en deuren
Raam- en deursystemen / kozijnen
Vliesgevels
Hang- en sluitwerk
Beveiliging en luiken
Dorpels en vensterbanken
Lateien
Roosters
Glas
Dakramen
Dakkoepels
Lichtstraten
Zonwering buiten
Zonwering binnen
Buitendeuren
Binnendeuren
Postvakken en brievenbussen
Overig
Dakluiken
Trappen, liften en balustrades
Trappen
Roltrappen
Liften
Balustrades en hekwerken
Galerijen
Binnenwanden
Binnenwanden
Wandafwerking
Vloeren
Constructieve vloeren
Verhoogde vloeren
Vloerafwerkingen
Overig
Plafonds
Tegels
Lineair
Grill
Open en roosters
Naadloos
Eilanden en baffles
Plafondafwerkingen
Ophangsystemen
Overig
Klimaatplafonds
Verlichting
Binnenverlichting
Buitenverlichting
Sanitair
Kranen en douchesets
Wastafels
Douchewanden en douchebakken
Baden
Waterclosets
Accessoires
Overig
Projectinrichting
Stoelen
Banken
Tafels
Kasten
Balies
Vrijstaande wanden
Keukens
Accessoires
Overig
Cabines
Interieurbeplanting
Stoffering
Installaties
Verwarming, koeling en ventilatie
Elektrotechnische installaties
Schakelmateriaal
Domotica
Deurcommunicatie
Beveiliging
Liften
Onderhoudsinstallaties
Overig
Brandbeveiliging
Constructies
Draagconstructies
Funderingen en kelders
Overig
Brandbeveiliging
Buitenruimte
Bestratingen en verhardingen
Afwateringen
Terreinafscheidingen en geluidsschermen
Buitenmeubilair
Fietsparkeren
Terrassen
Terrasoverkappingen
Bruggen
Accessoires
Overig
Beplanting
Sport- en speeltoestellen
Software
Tekenen 2D
Modelleren 3D / BIM
Visualisatie / rendering
Parametrisch ontwerpen
Bouwfysica
Draagconstructie
Overig
Virtual Reality
Cloudoplossingen
Om direct naar je favorieten te kunnen gaan is het nodig om eerst in te loggen.
Nieuw
Populair
Favorieten
Toon alles
Boekpresentatie en panelgesprek met Floor Milikowsky
Prins Hendrikkade 600, 1011 VX Amsterdam
Architects Table ’25: Lunch & Inspiratie in HAUT Amsterdam
ATAG LIVE – HAUT gebouw, Spaklerweg 10F, 1096 BA Amsterdam (tegenover metrostation Spaklerweg)
'Iwan Baan – Momentum of Light' Fotografie in Burkina Faso
Hoflaan 26, 1861 CR, Bergen
Ontdek Archicad 29!
Online
Inspiratiedag @ Sempergreen – Gevelgroen
Defensieweg 1, 3984 LR Odijk
Ontdek de unieke features van Architect@Work Amsterdam
De Kromhouthal, Gedempt Hamerkanaal 231, Amsterdam
Prefab beurs - 7 t/m 9 oktober 2025
Brabanthallen 's-Hertogenbosch
Architects Table ’25: Lunch & Inspiratie in HAUT Amsterdam
ATAG LIVE – HAUT gebouw, Spaklerweg 10F, 1096 BA Amsterdam (tegenover metrostation Spaklerweg)
DigiBouw 2025 – hét event voor digitalisering in de bouwsector
Expozaal van het Beatrixgebouw in Utrecht
Boekpresentatie en panelgesprek met Floor Milikowsky
Prins Hendrikkade 600, 1011 VX Amsterdam
Om direct naar je favorieten te kunnen gaan is het nodig om eerst in te loggen.
Nieuw
Toon alles
Design
Duurzaamheid
Gevel
Infrastructuur
Interieur
Kantoren
Leisure
Openbare ruimte
Publieke gebouwen
Scholen
Transformatie en Renovatie
Woningbouw
Zorg
Om direct naar je favorieten te kunnen gaan is het nodig om eerst in te loggen.
Nieuw
Populair
Toon alles
Gezocht: technisch tekenaar
Medior Architect
Assistent Ontwerper (Junior Architect)
Ervaren Bouwkundig Tekenaar
9graden architectuur Amersfoort zoekt een bouwkundig modelleur
SVP zoekt bureauondersteuner
Junior Architect (NL/EN)
De Academie van Bouwkunst Amsterdam zoekt twee onderzoekers voor lectoraat
Site Practice zoekt medior architect met 4-6 jaar ervaring (Amsterdam)
Architect
Junior Ontwerper
Studio Nauta zoekt projectleider
Om direct naar je favorieten te kunnen gaan is het nodig om eerst in te loggen.
Producten
Entreeplein
Copyright: Milad Pallesh
Straatgevel
Copyright: Milad Pallesh
Oostgevel met buurtplein
Copyright: Milad Pallesh
Noordgevel
Copyright: Milad Pallesh
Westgevel
Copyright: Milad Pallesh
Detail gevel
Copyright: Milad Pallesh
Aula en gymzaal
Copyright: Milad Pallesh
Gymzaal
Copyright: Milad Pallesh
Detail aula
Copyright: Milad Pallesh
Gang en lokalen
Copyright: Milad Pallesh
Detail gang
Copyright: Milad Pallesh
Detail lokaal
Copyright: Milad Pallesh
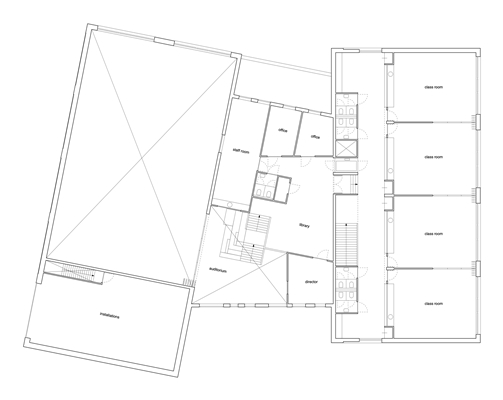
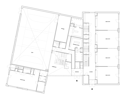
Plattegrond begane grond
Copyright: Studio Ard Hoksbergen
Plattegrond verdieping
Copyright: Studio Ard Hoksbergen
Doorsnede A
Copyright: Studio Ard Hoksbergen
Doorsnede B
Copyright: Studio Ard Hoksbergen
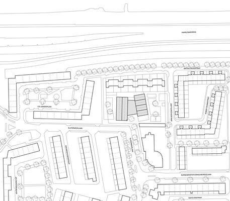
Situatietekening
Copyright: Studio Ard Hoksbergen
Producttags
AAN
UIT
Basisschool Veerkracht
29 juni 2020
4
0
0
0
Veerkracht is een veelkleurige, protestants-christelijke basisschool in Slotermeer, Amsterdam Nieuw West. In de onderwijskundige visie van de school staan veiligheid, uitdaging en openheid centraal. In het ontwerp is dit onder andere vertaald in de opzet en oriëntatie van het gebouw. Het gebouwdeel met klaslokalen is ‘losgekoppeld’ van het centrale deel met de hoofdentree, waardoor een prikkelarm leergedeelte ontstaat. Dit deel van het gebouw is gericht op de buurt, en dus afgekeerd van de drukke doorgaande weg vóór het gebouw. De ramen tussen de lokalen en de gangen zijn zodanig gepositioneerd, dat werkende leerlingen niet worden gestoord door voorbijgangers, maar leerkrachten wel zicht hebben op de gang.
Het centrale deel vormt de entree van het gebouw, en is opener van karakter. Er zijn zichtrelaties tussen personeelskamer, gymzaal, aula, directiekamer en schoolplein, waardoor iedereen in meer of mindere mate zichtbaar is voor elkaar en het gemeenschapsgevoel wordt versterkt. Door een metershoge vouwwand te openen kan bij vieringen of ouderavonden de gymzaal als verlengstuk van de aula worden ingezet. Tussen alle lokale zijn vouwwanden geplaatst, waarmee leerpleinen kunnen worden gecreëerd en het gebouw helemaal klaar is voor de toekomst.
Om het ontwerp in te passen in deze context, is het schoolgebouw opgeknipt in drie delen: de gymzaal, de aula en de lokalen. Hierdoor ontstaat een ensemble van volumes in plaats van één groot volume, wat recht doet aan de ‘licht, lucht en ruimte’ in de contact van het Algemeen Uitbreidingsplan. Het gebouwdeel met de gymzaal staat in de rooilijn van het westelijk deel van de Slotermeerlaan, terwijl het deel met de lokalen is uitgelijnd met het zuidelijke deel. Zo opent het midden van het gebouw zich naar de straat, waarmee een open en gastvrij gebaar wordt gemaakt. De buitenste gebouwdelen zijn voorzien van schuine kappen, een referentie naar de portiekflats in de omgeving.
De herkenbare en doorleefde identiteit van de school is vertaald in een karakteristiek en hedendaags ontwerp, wat zich ondermeer uit in de markante gevel aan de Slotermeerlaan. Deze gevel is voorzien van een grote schoorsteen, die een markeringspunt vormt in de buurt en bovendien refereert aan de schoorsteen op het oude gebouw. Ook de kleur van de gevelsteen en subtiele ornamenten in het metselwerk zijn verwijzingen naar het voormalige schoolgebouw.
Stel jezelf kort voor! Dan weet het betreffende bedrijf wie hun model gedownload heeft.
Wil je niet bij elke download jouw gegevens in hoeven voeren?
Klik dan hier om in te loggen
.
Heb je nog geen account?
Maak dan hier een gratis account aan
.
Voornaam
Achternaam
E-mailadres
Downloaden
Wanneer je modellen downloadt op Architectenweb.nl worden relevante gegevens van jou – zoals jouw naam en e-mailadres – met het betreffende bedrijf gedeeld. Meer hierover lees je in ons
privacybeleid
.
Locatie
Trefwoorden
vakmanschap
amsterdam nieuw-west
scholenbouw
basisschool
Architectenweb Awards 2020
Schoolgebouw van het Jaar
Nominatie
Bekijk alle genomineerden
Studio Ard Hoksbergen
Neem contact op
Projectdata
Staat van realisatie
Voltooid
Start ontwerpproces
2014
Start bouw
2018
Oplevering
2019
Ingebruikname
2019
Plaats
Amsterdam
Kosten
4628000
Bruto m
2
1780
Netto m
2
1555
Meewerkende partijen
Architect
Studio Ard Hoksbergen
,
Studioninedots
Projectarchitect
Ard Hoksbergen, Albert Herder, Victor Spijkers
Opdrachtgever
LEV Scholengroep
Aannemer
Blanksma Groep
Constructeur
BREED integrated design
Adviseurs installaties E & W
Huygen Installatie Adviseurs B.V.
Fotograaf
Milad Pallesh
Leveranciers
Overig
Multiwal B.V., Schellekens & Schellekens B.V.,
Schüco Nederland BV
, Solatube, Milad Pallesh, Vilton B.V.,
Cedral
, Stertekt
Daglichtbuis, Daglichtsysteem
Techcomlight B.V.
Gevelbekleding
Steenfabriek de Rijswaard b.v.
Naadloze vloerafwerking
Forbo Flooring
Neem contact op met
Studio Ard Hoksbergen
Je bent momenteel niet ingelogd. Hierdoor is het alleen mogelijk om meer informatie per e-mail op te vragen. Wil je liever gebeld worden of documentatie per post ontvangen?
Klik dan hier om in te loggen
.
Heb je nog geen account?
Maak dan hier een gratis account aan
.
Voornaam
Achternaam
E-mailadres
Opmerkingen
Bij iedere aanvraag worden relevante gegevens van jou gedeeld met het betreffende bedrijf. Meer hierover lees je in ons
privacybeleid
.
Ja, denk met me mee rond de
materialisering van mijn project
Meer projecten van Studio Ard Hoksbergen
Leyhof
Studio Ard Hoksbergen
Barber
Studio Ard Hoksbergen
Leyhof
Studio Ard Hoksbergen
Barber
Studio Ard Hoksbergen
Toon alles
Gerelateerde producten
Marmoleum
Een natuurlijke vloer voor gezonde gebouwen
Forbo Flooring
Powerdaylight 35 cm: Natuurlijk daglicht, maximaal rendement
Efficiënte daglicht oplossing voor een heldere en duurzame ruimte
Techcomlight B.V.
Powerdaylight, de originele daglichtbuis
Hoge prestaties en technische eenvoud
Techcomlight B.V.
Dé daglichtprofessional
Heeft u vragen over daglicht in de breedste zin van het woord?
Techcomlight B.V.
Andere Projecten
Smart Lighting voor kantoorcampus Tripolis Park
TRILUX - Simplify Your Light
Nieuw expertisecentrum voor Ipse de Bruggen
Gortemaker Algra Feenstra architects
Duurzame modernisering met EcoBrick gevelstenen
wienerberger
700 modulaire lichtstraten gebruikt Icône kantoor
VELUX Commercial Benelux B.V.
RVS Staalkabelnetten voor Parel in de Polder
Jansen Staalkabels
Renovatie parkeergarage WTC Beursplein, Rotterdam
Cushman & Wakefield
Buitenzonwering Cartesius Solo
Serge Ferrari
Duurzaam logistiek centrum vol daglicht
VELUX Commercial Benelux B.V.
MBO-school Firda in stadion van Cambuur
Tarkett BV
Hoofdkantoor We Enable Climbers
Intermontage B.V.
Renovatie met respect voor oorspronkelijke ontwerp
Caparol
ITO Toren Amsterdam
Van Wylick
Ga naar het projecten-overzicht
Voor een optimale gebruikservaring plaatst Architectenweb functionele cookies. Wat de verschillende cookies precies doen leggen we uit in een
overzicht
. Cookies van social media kun je optioneel
aanzetten
.
Akkoord
Instellingen
Annuleren
OK
Sluiten
Doorgaan
Inloggen
Maak een gratis persoonlijk account aan
Feedback
Feedback
Wij horen graag jouw feedback. Laat je reactie achter en eventueel jouw e-mail adres.
Reactie
Verstuur