Projecten
Producten
Bedrijven
Vacatures
Agenda
Awards
Podcasts
more_horiz
Videos
Magazine
Favorieten
Profiel
Uitloggen
Abonneer je nu op onze nieuwsbrieven!
Abonneren
Nee, bedankt
Ja, denk met me mee rond de
materialisering van mijn project
Producten
Producttags
AAN
UIT
Interieur ontwerp voor een modellenbureau
3 september 2019
0
0
0
0
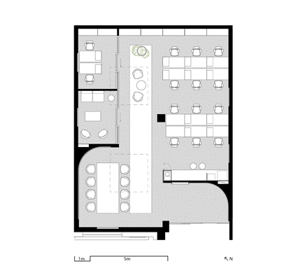
In de kelder van een nieuw commercieel complex in de wijk Wangjing in Beijing heeft KANTOOR een werkruimte ontworpen voor een modellenbureau. De ruimte zal voornamelijk gebruikt worden voor dagelijks werk en van tijd tot tijd voor modellen castings.
The ruimte heeft twee grote dakramen voor natuurlijke lichtinval. Om het daglicht te optimaliseren zijn voornamelijk witte materialen geselecteerd. Materialen met verschillende texturen zijn gekozen om een variëteit te creëren binnen dezelfde toon. Houten kozijnen en grote planten geven een warm gevoel aan de witte ruimte.
Een kleurverschil in de terrazzovloer scheidt de werkruimte van de centrale gang die ook als catwalk gebruikt kan worden voor de modellen casting. Aan het einde van de catwalk is een witte muur die functioneert als neutrale achtergrond voor het nemen van foto’s. De foto’s worden tentoongesteld rondom de vergadertafel waar de medewerkers de modellen selecteren.
De pantry en print ruimte zijn naast de open werkruimte geplaatst en zijn niet direct zichtbaar vanuit de vergaderruimte. Langs de gehele achterwand zijn kasten geplaatst waar de portfolio’s worden bewaard op de open planken terwijl de gesloten kasten ruimte bieden voor algemene opslagruimte.
De gehele ruimte is open met uitzondering van twee privéruimtes voor respectievelijk de leidinggevende en de financiën.
Stel jezelf kort voor! Dan weet het betreffende bedrijf wie hun brochure gedownload heeft.
Wil je niet bij elke download jouw gegevens in hoeven voeren?
Klik dan hier om in te loggen
. Heb je nog geen account?
Maak dan hier een gratis account aan
.
Voornaam
Achternaam
E-mailadres
Downloaden
Wanneer je brochures downloadt op Architectenweb.nl worden relevante gegevens van jou – zoals jouw naam en e-mailadres – met het betreffende bedrijf gedeeld. Meer hierover lees je in ons
privacybeleid
.
Wanneer je brochures downloadt op Architectenweb.nl worden relevante gegevens van jou – zoals jouw naam en e-mailadres – met het betreffende bedrijf gedeeld. Meer hierover lees je in ons
privacybeleid
.
Brochure
Stel jezelf kort voor! Dan weet het betreffende bedrijf wie hun model gedownload heeft.
Wil je niet bij elke download jouw gegevens in hoeven voeren?
Klik dan hier om in te loggen
.
Heb je nog geen account?
Maak dan hier een gratis account aan
.
Voornaam
Achternaam
E-mailadres
Downloaden
Wanneer je modellen downloadt op Architectenweb.nl worden relevante gegevens van jou – zoals jouw naam en e-mailadres – met het betreffende bedrijf gedeeld. Meer hierover lees je in ons
privacybeleid
.
Locatie
Trefwoorden
paras
beijing
kantoor
modellenbureau
china
wangjing
interieur
KANTOOR architecture
Neem contact op
Projectdata
Staat van realisatie
Voltooid
Start ontwerpproces
2017
Start bouw
2018
Oplevering
2019
Ingebruikname
2019
Plaats
Beijing
Bruto m
2
120
Netto m
2
110
Meewerkende partijen
Interieurarchitect
KANTOOR architecture
Projectarchitect
Isabel Driessen
Ontwerpteam
Isabel Driessen, Andrés López
Opdrachtgever
Paras
Fotograaf
KANTOOR architecture
Projectmanagement
Jing Bei Ji
Neem contact op met
KANTOOR architecture
Je bent momenteel niet ingelogd. Hierdoor is het alleen mogelijk om meer informatie per e-mail op te vragen. Wil je liever gebeld worden of documentatie per post ontvangen?
Klik dan hier om in te loggen
.
Heb je nog geen account?
Maak dan hier een gratis account aan
.
Voornaam
Achternaam
E-mailadres
Opmerkingen
Bij iedere aanvraag worden relevante gegevens van jou gedeeld met het betreffende bedrijf. Meer hierover lees je in ons
privacybeleid
.
Ja, denk met me mee rond de
materialisering van mijn project
Meer projecten van KANTOOR architecture
Nieuwe werkruimte voor Silver Stone Consultants
KANTOOR architecture
NPAK Ontvouwd - kunstcentrum in Armenië
KANTOOR architecture
Nieuwe werkruimte voor Silver Stone Consultants
KANTOOR architecture
NPAK Ontvouwd - kunstcentrum in Armenië
KANTOOR architecture
Toon alles
Andere Projecten
Vliesgevel screens Netceed kantoorgebouw
Renson
DEZA Kozijnen - Heerhugowaard
DUCO Ventilation & Sun Control
Passiefwoning met geïntegreerde vouwhefluiken
Artino
Villa Oegstgeest
Station-D Architects
Project Safestore Amersfoort
Dupral B.V.
Stalen uitbouw aan de Amsterdamse grachtengordel
Perfect View Windows
0739 Bornerveld – zuidwijk Rotterdam
Zijdekwartier architecten bv
Kantoor Apollolaan 171 Amsterdam
Boon Edam Nederland B.V.
Villa Madestein
Station-D Architects
Gevelprofielen appartementencomplex Wisselspoor
Storax
Skistation Monte Zoncolan
SSAB Swedish Steel BV
Duurzaam maatwerk voor Hogeschool Rotterdam
Mapro
Ga naar het projecten-overzicht
Voor een optimale gebruikservaring plaatst Architectenweb functionele cookies. Wat de verschillende cookies precies doen leggen we uit in een
overzicht
. Cookies van social media kun je optioneel
aanzetten
.
Akkoord
Instellingen
Annuleren
OK
Sluiten
Doorgaan
Inloggen
Maak een gratis persoonlijk account aan
Feedback
Feedback
Wij horen graag jouw feedback. Laat je reactie achter en eventueel jouw e-mail adres.
Reactie
Verstuur