Projecten
Producten
Bedrijven
Vacatures
Agenda
Awards
Podcasts
more_horiz
Videos
Magazine
Thema's
Favorieten
Profiel
Uitloggen
Abonneer je nu op onze nieuwsbrieven!
Abonneren
Nee, bedankt
Ja, denk met me mee rond de
materialisering van mijn project
Producten
de Ruijterstraat in het Haagse Zeeheldenkwartier
de Ruijterstraat in het Haagse Zeeheldenkwartier
maquette van de rug-aan-rug woningen met daklichten
daklandschap met terrassen en zonnepanelen
townhouses
townhouses
luxe stadsvilla's
patiowoning
interieur
om daglicht toe te voegen aan elke woning nis elke woning ingericht als patiowoning
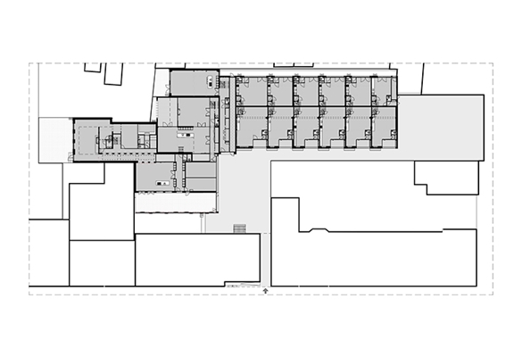
plattegrond
doorsnede rug-aan-rug wonigen
doorsnede stadsvilla's
Producttags
AAN
UIT
Transformatie van school naar luxe stadswoningen
7 augustus 2019
1
0
0
0
De voormalige huishoudschool aan de Ruijterstraat in de Haagse Zeeheldenkwartier wordt getransformeerd naar een woongebouw met twaalf rug-aan-rug hofwoningen en drie luxe stadsvilla’s.
De originele hoofdbebouwing is in de footprint ongewijzigde gebleven en als uitgangspunt genomen. Deze bebouwing zal voorzien worden van een dakopbouw. Door de inpassing op een binnenterrein, dicht op de omliggende bebouwing, is de kapverdieping ontworpen als 5
e
gevel. En vormt het uitgangspunt van het gehele ontwerp. De woningen zullen een oriëntatie naar boven krijgen in plaats van naar de zijkant. Zodoende wordt zowel de privacy van de woningen als de belendende percelen zoveel mogelijk bewaakt.
In het nieuwe daklandschap is een bijzondere wereld gecreëerd met daktuinen, terrassen en patio’s. De schuine dakvlakken zorgen voor intieme ruimten in en onder het dak. In het lichtgrijze roeven dak zijn grote openingen ontworpen waarin dakramen en zonnepanelen zijn opgenomen.
Centraal in het woongebouw is de hoofdentree opgenomen voor 6 hofwoningen en 1 stadsvilla. Deze centrale entree is ontworpen als overgang tussen de twee verschillende dakvlakken.
Stel jezelf kort voor! Dan weet het betreffende bedrijf wie hun model gedownload heeft.
Wil je niet bij elke download jouw gegevens in hoeven voeren?
Klik dan hier om in te loggen
.
Heb je nog geen account?
Maak dan hier een gratis account aan
.
Voornaam
Achternaam
E-mailadres
Downloaden
Wanneer je modellen downloadt op Architectenweb.nl worden relevante gegevens van jou – zoals jouw naam en e-mailadres – met het betreffende bedrijf gedeeld. Meer hierover lees je in ons
privacybeleid
.
Locatie
Studioschaeffer B.V.
Neem contact op
Projectdata
Staat van realisatie
Voltooid
Start bouw
2019
Plaats
Den Haag
Meewerkende partijen
Architect
Studioschaeffer B.V.
Interieurarchitect
Studio Wendy Mahieu
Opdrachtgever
Canopy Investments BV
Neem contact op met
Studioschaeffer B.V.
Je bent momenteel niet ingelogd. Hierdoor is het alleen mogelijk om meer informatie per e-mail op te vragen. Wil je liever gebeld worden of documentatie per post ontvangen?
Klik dan hier om in te loggen
.
Heb je nog geen account?
Maak dan hier een gratis account aan
.
Voornaam
Achternaam
E-mailadres
Opmerkingen
Bij iedere aanvraag worden relevante gegevens van jou gedeeld met het betreffende bedrijf. Meer hierover lees je in ons
privacybeleid
.
Ja, denk met me mee rond de
materialisering van mijn project
Meer projecten van Studioschaeffer B.V.
Kantoor Studioschaeffer
Studioschaeffer B.V.
Energiezuinige renovatie monument Helena Anna Hof
Studioschaeffer B.V.
Boten- & clubhuis scouting Pocahontas
Studioschaeffer B.V.
Monumentaal pakhuis Amsterdam
Studioschaeffer B.V.
Kantoor Studioschaeffer
Studioschaeffer B.V.
Energiezuinige renovatie monument Helena Anna Hof
Studioschaeffer B.V.
Boten- & clubhuis scouting Pocahontas
Studioschaeffer B.V.
Monumentaal pakhuis Amsterdam
Studioschaeffer B.V.
Toon alles
Andere Projecten
Campus Sportief Besteed Groep — Wubben.Chan
Wubben.Chan architecten
BDO kantoor Breda
ULMA Architectural Solutions
Toegangscontrole op een dynamisch terrein
Heras
Biobased bouwen naast Natura 2000-gebied
KUBUS | Specialist in Archicad
5Tracks - inspirerende atriums met JUNG
Jung | Hateha B.V.
Totaalrealisatie nieuwe kantoorlocatie A. Vogel
Intermontage B.V.
Sweco Wonderwoods — Duurzame kantoorinrichting
Hal2
Gare Maritime, Brussel
WEBO
De transformatie van de Lintveldebrink
Grohe Nederland B.V.
Sweco WTC Den Haag — Duurzame kantoorinrichting
Hal2
Uitbreiding Hotel Martin's Klooster, Leuven
OWA Benelux - Akoestiek & Design
RVS plinten kantoor Moore DRV
Storax
Ga naar het projecten-overzicht
Voor een optimale gebruikservaring plaatst Architectenweb functionele cookies. Wat de verschillende cookies precies doen leggen we uit in een
overzicht
. Cookies van social media kun je optioneel
aanzetten
.
Akkoord
Instellingen
Annuleren
OK
Sluiten
Doorgaan
Inloggen
Maak een gratis persoonlijk account aan
Feedback
Feedback
Wij horen graag jouw feedback. Laat je reactie achter en eventueel jouw e-mail adres.
Reactie
Verstuur