Projecten
Producten
Bedrijven
Vacatures
Agenda
Awards
Podcasts
more_horiz
Videos
Magazine
Favorieten
Profiel
Uitloggen
Abonneer je nu op onze nieuwsbrieven!
Abonneren
Nee, bedankt
Ja, denk met me mee rond de
materialisering van mijn project
Producten
Copyright: © ULRICH SCHWARZ, BERLIN
Copyright: © ULRICH SCHWARZ, BERLIN
Copyright: © ULRICH SCHWARZ, BERLIN
Copyright: © ULRICH SCHWARZ, BERLIN
Copyright: © ULRICH SCHWARZ, BERLIN
Copyright: © ULRICH SCHWARZ, BERLIN
Copyright: © ULRICH SCHWARZ, BERLIN
Copyright: © ULRICH SCHWARZ, BERLIN
Copyright: © ULRICH SCHWARZ, BERLIN
Copyright: © ULRICH SCHWARZ, BERLIN
Copyright: © ULRICH SCHWARZ, BERLIN
Producttags
AAN
UIT
Intense laagbouw Spijkerkwartier, Arnhem
21 juni 2019
0
0
0
0
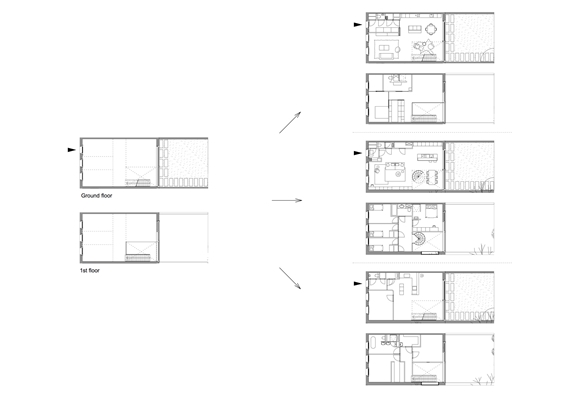
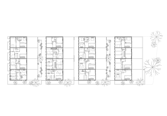
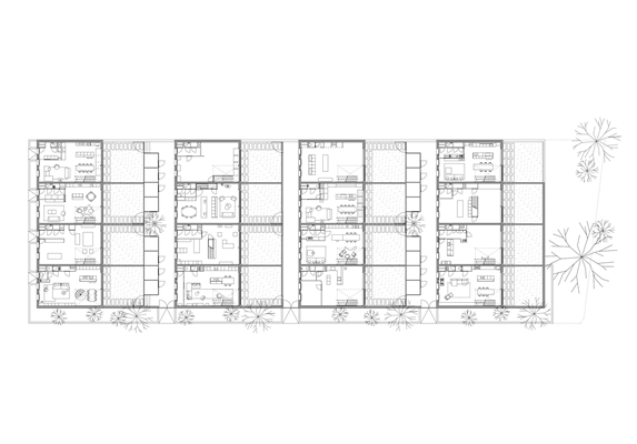
Het woningbouwproject Spijkerkwartier in Arnhem is in essentie een typologisch experiment: een compacte modelwijk met een dichtheid van ca. 40 individuele woningen per hectare. De eenvoudige huizen hebben een casco van 12m x 7,5m wat vrij veel flexibiliteit biedt voor het realiseren van individuele woonwensen en leefstijlen, maar tegelijkertijd creëren de huizen ook een nieuwe woongemeenschap.
Functionele kwaliteit
Het doel van het project was om een alternatief voor het wonen in de periferie van de grote steden aan te bieden. Een maximum aan individuele woonhuizen met een eigen tuin op een relatief kleine stedelijke kavel. Vanuit de stad was de wens om een zekere transparantie te realiseren tussen de west- en oostkant. De stroken zijn haaks ten opzichte van de straat gepositioneerd, wat betekent dat de voorkant van de ene bewoner de achterkant van de andere is. De tuinen zijn ommuurd waardoor de bewoners veel privacy genieten. De ontsluiting van de eengezinswoningen wordt via 3m brede woonstraten georganiseerd, die gelijktijdig ook als gemeenschappelijke ruimte worden gebruikt door de bewoners. Ieder steegje wordt afgesloten door middel van een kleinschalige poort die de symbolische grens tussen openbare en collectieve ruimte markeert. De huizen hebben een uniforme uitstraling, maar zijn van binnen allen individueel ontworpen en hebben heel verschillende plattegronden.
Stedenbouw
De bouwlocatie ligt aan de rand van het aantrekkelijke 19e eeuwse stadsdeel Spijkerkwartier en een klein stadspark. Het project is een compacte modelwijk geworden welke omsloten wordt door een landschapszone met bomen en planten. Om aan het ensemble een rustige uitstraling te geven en vooral de nadruk te leggen op de ruimtelijkheid is baksteen als bouwmateriaal gekozen. Met zijn lichte kleur reflecteren de gevelstenen veel daglicht waardoor de fysieke dichtheid van het ensemble wordt gerelativeerd. De bakstenen zijn hierbij zo verwerkt dat metalen profielen rond de elegante verticale ramen aan de noordgevel niet nodig zijn. Ook probeert het project een antwoord te formuleren op de problemen van de huidige baksteen architectuur. Voor het project is een speciale baksteen ontwikkeld voorzien van een schijnvoeg. Deze steen is zo verwerkt dat de dilatatievoegen visueel verdwijnen en dat de muren monolithisch ogen ondanks de overgangen tussen dragend en nietdragend metselwerk.
Een zeer degelijke en slijtvaste materialisatie wordt gecombineerd met een optimistische lichtheid die doet denken aan klassieke mid-century woonwijken van de 20de eeuw.
Duurzaamheid
Er is gekozen voor zeer degelijke en slijtvaste materialen. De huizen hebben eerder gesloten gevels aan de noordkant en open zich met grote ramen naar het zuiden toe, om optimal van de warmte van de zon te kunnen profiteren. De vide vormt het ruimtelijke centrum van de woning en maakt het mogelijk dat de zon diep in het huis kan binnendringen. De glazen gevel aan de zuidkant realiseert een sterke visuele verbinding met de tuin. Door de toepassing van zeer grote schuiframen van 2,9m breed is de relatie tussen interieur en exterieur zo vloeiend als mogelijk. De ommuurde tuin is ca. 50m2 groot en heeft de sfeer van een patio. De huizen hebben een zeer hoge isolatiewaarde en zijn standard voorzien van zonwering, ook hebben de gebouwen gedeeltelijk groene daken.
Alle woningen hebben geïndividualiseerde plattegronden, zijn zeer flexible en genieten veel privacy. Desondanks vormen de huizen duidelijk een ruimtelijk ensemble. De “collectieve vorm” zorgt voor een sterke identificatie en maakt de nieuwe woongemeenschap duidelijk zichtbaar binnen de stedelijke context van het Spijkerkwartier.
Stel jezelf kort voor! Dan weet het betreffende bedrijf wie hun model gedownload heeft.
Wil je niet bij elke download jouw gegevens in hoeven voeren?
Klik dan hier om in te loggen
.
Heb je nog geen account?
Maak dan hier een gratis account aan
.
Voornaam
Achternaam
E-mailadres
Downloaden
Wanneer je modellen downloadt op Architectenweb.nl worden relevante gegevens van jou – zoals jouw naam en e-mailadres – met het betreffende bedrijf gedeeld. Meer hierover lees je in ons
privacybeleid
.
Locatie
Trefwoorden
arnhem
spijkerkwartier
woningbouw
Architectenweb Awards 2019
Woongebouw van het Jaar
Winnaar
Bekijk alle genomineerden
Atelier Kempe Thill
Neem contact op
Projectdata
Staat van realisatie
Voltooid
Start ontwerpproces
2010
Start bouw
2016
Oplevering
2018
Ingebruikname
2018
Plaats
Arnhem
Kosten
2521479
Bruto m
2
2650
Netto m
2
2385
m
3
9450
Meewerkende partijen
Architect
Atelier Kempe Thill
Ontwerpteam
André Kempe, Oliver Thill, Jan Gerrit Wessels, Laura Paschke, Martins Duselis, Ruud Smeelen, David van Eck, Andrius Raguotis, Valérie van de Velde
Opdrachtgever
Edwin Oostmeijer Projectontwikkeling B.V., Era Contour B.V.
Aannemer
Hazenberg Bouw BV
Constructeur
Goudstikker - de Vries B.V.
Fotograaf
Ülrich Schwarz
Stedenbouwkundige
Studio Vinke
, Van Diest Ontwerp
Landschapsarchitect
OR-else Amersfoort
Adviseur bouwfysica
Nieman Raadgevende Ingenieurs B.V., DGMR Arnhem
Onderaannemer
Copal installatietechniek Haaren, Roel Breman installatiebedrijf Papendrecht, Bemar ventilatietechniek BV Ittervoort
Gevelbouwer
Hagemeister GmbH & Co. KG
, Beamix, Verbaan Systems,
Adviesbureau Vekemans
, GPO advies,
Reynaers Aluminium Nederland
, P+E
Leveranciers
Raam- en deursystemen / kozijnen
Renson
Neem contact op met
Atelier Kempe Thill
Je bent momenteel niet ingelogd. Hierdoor is het alleen mogelijk om meer informatie per e-mail op te vragen. Wil je liever gebeld worden of documentatie per post ontvangen?
Klik dan hier om in te loggen
.
Heb je nog geen account?
Maak dan hier een gratis account aan
.
Voornaam
Achternaam
E-mailadres
Opmerkingen
Bij iedere aanvraag worden relevante gegevens van jou gedeeld met het betreffende bedrijf. Meer hierover lees je in ons
privacybeleid
.
Ja, denk met me mee rond de
materialisering van mijn project
Meer projecten van Atelier Kempe Thill
Hiphouse
Atelier Kempe Thill
Rijtjeswoningen
Atelier Kempe Thill
Nederlands Paviljoen, IGA Rostock
Atelier Kempe Thill
Hiphouse
Atelier Kempe Thill
Rijtjeswoningen
Atelier Kempe Thill
Nederlands Paviljoen, IGA Rostock
Atelier Kempe Thill
Toon alles
Gerelateerde producten
Fixvent Mono AK
Esthetische ventilatie en doekzonwering in één
Renson
Andere Projecten
Six Degrees Café
Malaysian Timber Council
Open vloergootsysteem voor The CubeHouse Amsterdam
HPL Systems BV
Almere De Laren
Schippers Architecten
Wooncomplex Lariks in Houthaven
Mapro
Nieuwe kantoorinrichting BDO Brabant
Kronospan
De Toerist in Breda
DUCO Ventilation & Sun Control
In ontwikkeling: IKC Strandeiland, Amsterdam
WEBO
Gorter op nieuwbouw sociale huurappartementen
Gorter Luiken BV
Prefab villa - Egmond aan Zee
Houthandel van Dam
Nieuwbouw poeliersbedrijf Van Berkel Kip
Ruys Groep
Nieuwbouw 107 appartementen Spoordok
Gorter Luiken BV
Appartementencomplex - Résidence Gooiland
Rodruza B.V.
Ga naar het projecten-overzicht
Voor een optimale gebruikservaring plaatst Architectenweb functionele cookies. Wat de verschillende cookies precies doen leggen we uit in een
overzicht
. Cookies van social media kun je optioneel
aanzetten
.
Akkoord
Instellingen
Annuleren
OK
Sluiten
Doorgaan
Inloggen
Maak een gratis persoonlijk account aan
Feedback
Feedback
Wij horen graag jouw feedback. Laat je reactie achter en eventueel jouw e-mail adres.
Reactie
Verstuur