Projecten
Producten
Bedrijven
Vacatures
Agenda
Awards
Podcasts
more_horiz
Videos
Magazine
Favorieten
Profiel
Uitloggen
Abonneer je nu op onze nieuwsbrieven!
Abonneren
Nee, bedankt
Ja, denk met me mee rond de
materialisering van mijn project
Producten
Copyright: Loes van Duijvendijk
Copyright: Loes van Duijvendijk
Copyright: Loes van Duijvendijk
Copyright: Loes van Duijvendijk
Copyright: Loes van Duijvendijk
Copyright: Loes van Duijvendijk
Copyright: Loes van Duijvendijk
Copyright: Loes van Duijvendijk
Copyright: Loes van Duijvendijk
Copyright: Loes van Duijvendijk
Copyright: Loes van Duijvendijk
Copyright: Loes van Duijvendijk
Copyright: Loes van Duijvendijk
Situatietekening met het landhuis, orangerie, koetshuis en koetsierswoning
Copyright: FP B A
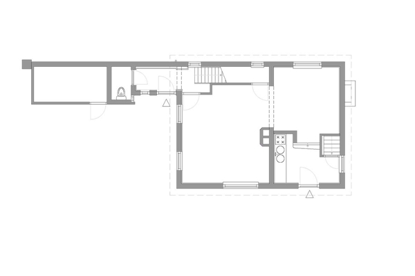
Situatie begane grond bij aanvang project
Copyright: FP B A
Ontwerp begane grond
Copyright: FP B A
Materialisatie begane grond
Copyright: FP B A
Situatie eerste verdieping bij aanvang project
Copyright: FP B A
Ontwerp eerste verdieping
Copyright: FP B A
Materialisatie eerste verdieping
Copyright: FP B A
Situatie begane grond bij aanvang project
Copyright: FP B A
Vernieuwing dakvlak en tuinmuur
Copyright: FP B A
Exterieur bij aanvang
Copyright: FP B A
Interieur op de begane grond en eerste verdieping bij aanvang project
Copyright: FP B A
Tijdens de uitvoering is het interieur grotendeels gestript
Copyright: FP B A
Producttags
AAN
UIT
Koetsierswoning, Huizen
18 juni 2019
0
0
0
0
FP B A heeft toegewerkt naar een integraal en toekomstbestendig ontwerp voor de instandhouding van het rijksmonument. Door de essentie van het rijksmonument bloot te leggen en te combineren met de wensen van SAS Institute is een krachtig ontwerpvoorstel ontwikkeld, waarin niet alleen het rijksmonument is verduurzaamd en de ruimtelijke organisatie is hergedefinieerd, maar ook de natuurlijke lichtinval en de akoestische kwaliteit en materialiteit van de (werk)ruimten zijn verbeterd.
SAS Institute is eigenaar van het landgoed Oud-Bussem dat is aangewezen als rijksmonument. Zij had de wens om de koetsierswoning, die op het landgoed staat, op te waarderen. SAS Institute had de koetsierswoning al in gebruik als kantoorruimte, maar de verouderdere verwarmingsinstallaties en het ontoereikende data- en elektrasysteem verhoogden het ongemak. Daarnaast sloten de toegankelijkheid, de ruimtelijke kwaliteit en de materialisatie niet aan bij de standaarden die SAS hanteert voor de door haar aangeboden werkomgeving.
De aangebouwde berging en het interieur uit de jaren ’60, de ongeïsoleerde begane grondvloer en eerder toegevoegde dakramen zijn verwijderd. De tuinmuur is weer in oorspronkelijke staat hersteld en op de plaats van de twee dakramen zijn nieuwe dakkapellen toegevoegd. Gewenste functies als werk- en belplekken, een workshopruimte en badkamer zijn logisch gepositioneerd en van een eigen materialisatie voorzien.
Wat betreft de installatietechniek was de uitdaging om het zo te ontwikkelen dat er aan het exterieur niets van te zien zou zijn. De kelder is daarom benut voor het positioneren van alle installaties. Voor de aanvoer van verse lucht is gebruik gemaakt van de aanwezige koekoek. Via de schacht wordt de verdiepingsvloer ingezet als installatievloer. De bestaande schoorsteen heeft zijn oorspronkelijke functie behouden en zorgt voor de afvoer van de lucht, maar wordt nu mechanisch aangestuurd.
SAS Institute is sinds 1993 gehuisvest op Landgoed Oud-Bussem te Huizen. Het gehele landgoed (bestaande uit historische park- en tuinaanleg, landhuis, koetsierswoning, garage en hekpijlers) is in 2001 aangewezen als rijksmonument. De koetsierswoning staat ten noordwesten van het landhuis en is via een tuinmuur met het landhuis verbonden. De koetsierswoning dateert waarschijnlijk van begin 19e eeuw en is omstreeks 1930 met de bouw van het nieuwe landhuis in nieuw-historiserende stijl aangepast.
Stel jezelf kort voor! Dan weet het betreffende bedrijf wie hun brochure gedownload heeft.
Wil je niet bij elke download jouw gegevens in hoeven voeren?
Klik dan hier om in te loggen
. Heb je nog geen account?
Maak dan hier een gratis account aan
.
Voornaam
Achternaam
E-mailadres
Downloaden
Wanneer je brochures downloadt op Architectenweb.nl worden relevante gegevens van jou – zoals jouw naam en e-mailadres – met het betreffende bedrijf gedeeld. Meer hierover lees je in ons
privacybeleid
.
Wanneer je brochures downloadt op Architectenweb.nl worden relevante gegevens van jou – zoals jouw naam en e-mailadres – met het betreffende bedrijf gedeeld. Meer hierover lees je in ons
privacybeleid
.
Brochure
Stel jezelf kort voor! Dan weet het betreffende bedrijf wie hun model gedownload heeft.
Wil je niet bij elke download jouw gegevens in hoeven voeren?
Klik dan hier om in te loggen
.
Heb je nog geen account?
Maak dan hier een gratis account aan
.
Voornaam
Achternaam
E-mailadres
Downloaden
Wanneer je modellen downloadt op Architectenweb.nl worden relevante gegevens van jou – zoals jouw naam en e-mailadres – met het betreffende bedrijf gedeeld. Meer hierover lees je in ons
privacybeleid
.
Locatie
Trefwoorden
rijksmonument
interieur
huizen
herbestemming
kantoor
landgoed
Frederik Pöll Bureau voor Architectuur
Neem contact op
Projectdata
Staat van realisatie
Voltooid
Start ontwerpproces
2016
Start bouw
2018
Oplevering
2019
Ingebruikname
2019
Plaats
Huizen
Bruto m
2
125
Netto m
2
101
m
3
285
Meewerkende partijen
Architect
Frederik Pöll Bureau voor Architectuur
Projectarchitect
Frederik Pöll i.s.m. Richard Schwartzenberg (tot Definitief Ontwerp)
Ontwerpteam
Frederik Pöll, Maxime Meessen, Dirk Gonzalez Veugelers
Opdrachtgever
SAS Institute Oud-Bussem
Aannemer
Gooi’s Bouwbedrijf
Constructeur
Bouwkundig Adviesburo Baas
Adviseurs installaties E & W
BBP Advies
Fotograaf
Loes van Duijvendijk
Aannemer installaties
Limpid Blue, Lagarde
Neem contact op met
Frederik Pöll Bureau voor Architectuur
Je bent momenteel niet ingelogd. Hierdoor is het alleen mogelijk om meer informatie per e-mail op te vragen. Wil je liever gebeld worden of documentatie per post ontvangen?
Klik dan hier om in te loggen
.
Heb je nog geen account?
Maak dan hier een gratis account aan
.
Voornaam
Achternaam
E-mailadres
Opmerkingen
Bij iedere aanvraag worden relevante gegevens van jou gedeeld met het betreffende bedrijf. Meer hierover lees je in ons
privacybeleid
.
Ja, denk met me mee rond de
materialisering van mijn project
Meer projecten van Frederik Pöll Bureau voor Architectuur
Woon- en zorgcentrum Middellandstraat, Rotterdam
Frederik Pöll Bureau voor Architectuur
Villa Sandenhoef, Overveen
Frederik Pöll Bureau voor Architectuur
Hotel 'In de Groene Jager', Barchem
Frederik Pöll Bureau voor Architectuur
Stadswoning, Rotterdam
Frederik Pöll Bureau voor Architectuur
Woon- en zorgcentrum Middellandstraat, Rotterdam
Frederik Pöll Bureau voor Architectuur
Villa Sandenhoef, Overveen
Frederik Pöll Bureau voor Architectuur
Hotel 'In de Groene Jager', Barchem
Frederik Pöll Bureau voor Architectuur
Stadswoning, Rotterdam
Frederik Pöll Bureau voor Architectuur
Toon alles
Andere Projecten
CPO Vondelstaete Amersfoort: Passief Wonen
Sto Isoned bv
Solar groendak bij afvalbrengpunt Oldenzaal
Sempergreen
Nieuw interieur Holiday Inn
Kronospan
Circulaire primeur: eerste Second High-gevel
Pretty Plastic
Noordwest Ziekenhuisgroep Alkmaar
Gortemaker Algra Feenstra architects
de Telefoondienst: Transformatie en optopping
Ronald Janssen Architecten
Houtrak Amsterdam
WEBO
Meerweide Aafje
Holonite B.V.
Slimme afvaloplossing in een duurzaam zorggebouw
Stansz
De entree als het begin van een culturele ervaring
EMCO Benelux B.V.
Canopy House
Malaysian Timber Council
Pol Heeteren BV
Klöber
Ga naar het projecten-overzicht
Voor een optimale gebruikservaring plaatst Architectenweb functionele cookies. Wat de verschillende cookies precies doen leggen we uit in een
overzicht
. Cookies van social media kun je optioneel
aanzetten
.
Akkoord
Instellingen
Annuleren
OK
Sluiten
Doorgaan
Inloggen
Maak een gratis persoonlijk account aan
Feedback
Feedback
Wij horen graag jouw feedback. Laat je reactie achter en eventueel jouw e-mail adres.
Reactie
Verstuur