Projecten
Producten
Bedrijven
Vacatures
Agenda
Awards
Podcasts
more_horiz
Videos
Magazine
Thema's
Favorieten
Profiel
Uitloggen
Abonneer je nu op onze nieuwsbrieven!
Abonneren
Nee, bedankt
Ja, denk met me mee rond de
materialisering van mijn project
Producten
Copyright: Loes van Duijvendijk
Copyright: Loes van Duijvendijk
Copyright: Loes van Duijvendijk
Copyright: Loes van Duijvendijk
Copyright: Loes van Duijvendijk
Copyright: Loes van Duijvendijk
Copyright: Loes van Duijvendijk
Copyright: Loes van Duijvendijk
Copyright: Loes van Duijvendijk
Copyright: Loes van Duijvendijk
Copyright: Loes van Duijvendijk
Copyright: Loes van Duijvendijk
Situatietekening
Copyright: FP B A
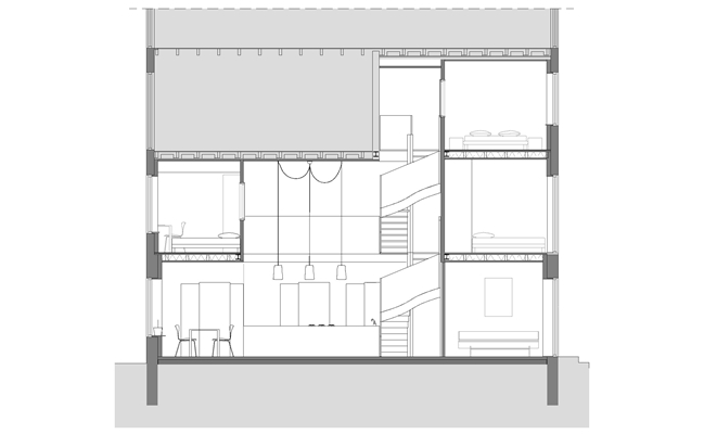
Langsdoorsnede
Copyright: FP B A
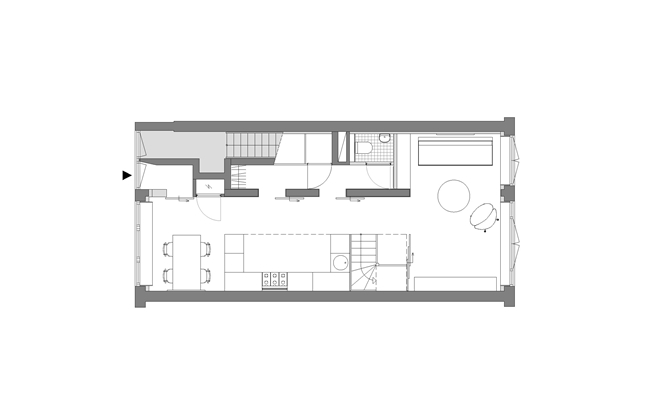
Begane Grond
Copyright: FP B A
Eerste verdieping
Copyright: FP B A
Tweede Verdieping
Copyright: FP B A
Project bij aanvang
Project bij aanvang
Situatie na de constructieve ingrepen
Producttags
AAN
UIT
Stadswoning, Rotterdam
17 juni 2019
1
0
0
0
Voor een gezin met twee dochters is een woning op maat ontworpen. De wens om naast drie slaapkamers ook een vide te creëren, leefde sterk binnen het gezin. Door het enigszins beperkte woonoppervlak is ervoor gekozen om de vide in het hart van de woning te positioneren, waardoor een dubbelhoge ruimte is ontstaan ter plaatse van de keuken. Doorzichten vanuit de aan de gevel gelegen slaapkamers naar de vide zorgen ervoor dat de gehele woning de hele dag van meerdere zijden van daglicht wordt voorzien.
Het ontwerp voor de woning is helder gestructureerd. Op de begane grond zijn de eet- en woonkamer en ondersteunende functies als keuken, garderobe en wc gepositioneerd. Op de eerste verdieping bevinden zich de slaapkamers van de twee dochters en de badkamer. De afscheiding van de overloop is tegelijkertijd ingezet als boekenkast. Op de tweede verdieping bevindt zich de slaapkamer van de ouders en de was- en technische ruimte. De trap, het verbindingselement tussen de verdiepingen, is centraal gepositioneerd.
Het markante gebouw Spoorpunt was na de bouw in 1922 de trots van de wijk Bergpolder. Maar nog geen honderd jaar later stond het gebouw er vervallen en verlaten bij. Zonder ingrijpen, zou alleen sloop nog verlossing bieden en een uniek stukje stad voorgoed verloren gaan. Projectontwikkelaar ERA Contour heeft – middels het principe ‘Eén Blok Stad’ – het pand weten te behouden. 19 Casco-gerenoveerde woningen voor zelfbouwers zijn in 2017 te koop aangeboden. De fundering, de buitengevel en het dak zijn geheel door ERA Contour gerenoveerd. Constructieve wijzigingen in het interieur zijn binnen het vergunningentraject en uitvoering van het casco meegenomen. Achter de voordeur hebben de kopers zelf bepaald, vaak met ondersteuning van een eigen architect, hoe de eigen woning eruit komt te zien. Anno 2019 schittert het Spoorpunt weer als vanouds.
Stel jezelf kort voor! Dan weet het betreffende bedrijf wie hun brochure gedownload heeft.
Wil je niet bij elke download jouw gegevens in hoeven voeren?
Klik dan hier om in te loggen
. Heb je nog geen account?
Maak dan hier een gratis account aan
.
Voornaam
Achternaam
E-mailadres
Downloaden
Wanneer je brochures downloadt op Architectenweb.nl worden relevante gegevens van jou – zoals jouw naam en e-mailadres – met het betreffende bedrijf gedeeld. Meer hierover lees je in ons
privacybeleid
.
Wanneer je brochures downloadt op Architectenweb.nl worden relevante gegevens van jou – zoals jouw naam en e-mailadres – met het betreffende bedrijf gedeeld. Meer hierover lees je in ons
privacybeleid
.
Brochure
Stel jezelf kort voor! Dan weet het betreffende bedrijf wie hun model gedownload heeft.
Wil je niet bij elke download jouw gegevens in hoeven voeren?
Klik dan hier om in te loggen
.
Heb je nog geen account?
Maak dan hier een gratis account aan
.
Voornaam
Achternaam
E-mailadres
Downloaden
Wanneer je modellen downloadt op Architectenweb.nl worden relevante gegevens van jou – zoals jouw naam en e-mailadres – met het betreffende bedrijf gedeeld. Meer hierover lees je in ons
privacybeleid
.
Locatie
Trefwoorden
interieur
eenblokstad
transformatie
rotterdam
renovatie
spoorpunt
stadswoning
klushuis
Frederik Pöll Bureau voor Architectuur
Neem contact op
Projectdata
Staat van realisatie
Voltooid
Start ontwerpproces
2017
Start bouw
2018
Oplevering
2019
Ingebruikname
2019
Plaats
Rotterdam
Bruto m
2
146
Netto m
2
119
m
3
340
Meewerkende partijen
Architect
Frederik Pöll Bureau voor Architectuur
Projectarchitect
Frederik Pöll
Ontwerpteam
Frederik Pöll, Maxime Meessen, Dirk Gonzalez Veugelers
Opdrachtgever
Liesbeth Werleman en Marc van der Weel
Aannemer
Q-Concept, Piece of Cake
Constructeur
Goudstikker de Vries
Fotograaf
Loes van Duijvendijk
Neem contact op met
Frederik Pöll Bureau voor Architectuur
Je bent momenteel niet ingelogd. Hierdoor is het alleen mogelijk om meer informatie per e-mail op te vragen. Wil je liever gebeld worden of documentatie per post ontvangen?
Klik dan hier om in te loggen
.
Heb je nog geen account?
Maak dan hier een gratis account aan
.
Voornaam
Achternaam
E-mailadres
Opmerkingen
Bij iedere aanvraag worden relevante gegevens van jou gedeeld met het betreffende bedrijf. Meer hierover lees je in ons
privacybeleid
.
Ja, denk met me mee rond de
materialisering van mijn project
Meer projecten van Frederik Pöll Bureau voor Architectuur
Woon- en zorgcentrum Middellandstraat, Rotterdam
Frederik Pöll Bureau voor Architectuur
Villa Sandenhoef, Overveen
Frederik Pöll Bureau voor Architectuur
Hotel 'In de Groene Jager', Barchem
Frederik Pöll Bureau voor Architectuur
Koetsierswoning, Huizen
Frederik Pöll Bureau voor Architectuur
Woon- en zorgcentrum Middellandstraat, Rotterdam
Frederik Pöll Bureau voor Architectuur
Villa Sandenhoef, Overveen
Frederik Pöll Bureau voor Architectuur
Hotel 'In de Groene Jager', Barchem
Frederik Pöll Bureau voor Architectuur
Koetsierswoning, Huizen
Frederik Pöll Bureau voor Architectuur
Toon alles
Andere Projecten
Woningen Viladomat in Barcelona, Spanje
ULMA Architectural Solutions
Verbouwing Veluwse Boerderij
AL architecten BNA-BNI
Vergroening Europakade Tolkamer
ACO BV
Frigo-Trans GmbH Mezzaninevloer voor logistiek
Nolte Mezzanine
Antwerpen Kievit
HOSPER landschapsarchitectuur
Luxe wonen in Hamptons stijl
Holonite B.V.
ABB-technologie verlicht de Burj Khalifa
ABB | Busch-Jaeger
Hybride buitenruimte Catharinatoren Zaandam
Solarlux Nederland B.V.
Vijf keer Gorter op Jullensblok
Gorter Luiken BV
TU Delft Stadsklimaatbos
HOSPER landschapsarchitectuur
Hilversum Nieuw Zuid
HOSPER landschapsarchitectuur
Full service voor logistiek bedrijfspand
Buro De Haan
Ga naar het projecten-overzicht
Voor een optimale gebruikservaring plaatst Architectenweb functionele cookies. Wat de verschillende cookies precies doen leggen we uit in een
overzicht
. Cookies van social media kun je optioneel
aanzetten
.
Akkoord
Instellingen
Annuleren
OK
Sluiten
Doorgaan
Inloggen
Maak een gratis persoonlijk account aan
Feedback
Feedback
Wij horen graag jouw feedback. Laat je reactie achter en eventueel jouw e-mail adres.
Reactie
Verstuur