Projecten
Producten
Bedrijven
Vacatures
Agenda
Awards
Podcasts
more_horiz
Videos
Magazine
Favorieten
Profiel
Uitloggen
Abonneer je nu op onze nieuwsbrieven!
Abonneren
Nee, bedankt
Ja, denk met me mee rond de
materialisering van mijn project
Producten
Infobalie
Copyright: LA | Architecten Ingenieurs
Hoofdentree De Borgh
Copyright: LA | Architecten Ingenieurs
Foyer
Copyright: LA | Architecten Ingenieurs
Bar
Copyright: LA | Architecten Ingenieurs
Bar
Copyright: LA | Architecten Ingenieurs
Draaiplateau t.b.v. afsluiten bar
Copyright: LA | Architecten Ingenieurs
Bar
Copyright: LA | Architecten Ingenieurs
Detail bar
Copyright: LA | Architecten Ingenieurs
Detail achterwand bar
Copyright: LA | Architecten Ingenieurs
Foyer
Copyright: LA | Architecten Ingenieurs
Foyer
Copyright: LA | Architecten Ingenieurs
Detail Foyer
Copyright: LA | Architecten Ingenieurs
Detail tafels
Copyright: LA | Architecten Ingenieurs
Vilt en hout
Copyright: LA | Architecten Ingenieurs
Doorgang naar belevingsruimte van kinderen
Copyright: LA | Architecten Ingenieurs
Uitleenmeubel van twee verdiepingen
Copyright: LA | Architecten Ingenieurs
Cultuurzaal
Copyright: LA | Architecten Ingenieurs
Doorsnede Bibliotheek - Foyer - Cultuurzaal
Copyright: LA | Architecten Ingenieurs
Doorsnede Bibliotheek - Sportzaal - Cultuurzaal
Copyright: LA | Architecten Ingenieurs
Doorsnede Cultuurzaal - Podium - Backstage - Berging
Copyright: LA | Architecten Ingenieurs
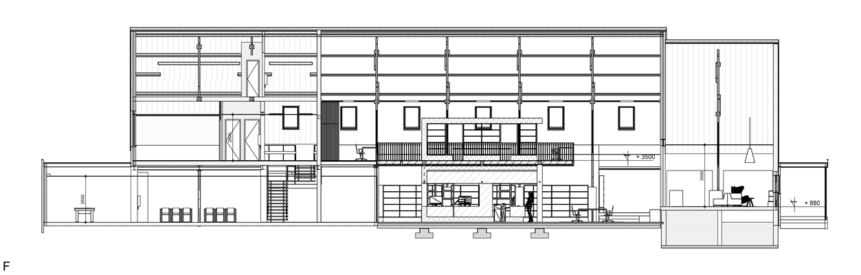
Doorsnede Foyer - Vergaderzalen - Sportzaal - Kleedruimte
Copyright: LA | Architecten Ingenieurs
Doorsnede Biljart - Bibliotheek
Copyright: LA | Architecten Ingenieurs
Producttags
AAN
UIT
Transformatie MFA De Borgh - Interieur
20 juni 2019
0
0
0
0
De stoere MFA is een blikvanger aan het dorpslint van Budel. De transparante entree met luifel en de gevel van de foyer hebben een uitnodigend karakter en wekken de nieuwsgierigheid van jong en oud.
De transformatie bestaat uit de verbouwing van het oude parochiehuis en de sportzaal en de nieuwbouw van de foyer en cultuurzaal. Samen vormt het een helder en overzichtelijk gebouw waar men elkaar kan ontmoeten, kan werken en ontspannen, sportief en creatief kan zijn, muziek kan maken en kennis kan delen.
In het hart van het gebouw ligt de foyer, waaraan drie grote zalen grenzen: de bibliotheek, de sportzaal en de cultuurzaal. De balie en bar liggen centraal in de foyer en voegen zich rondom de keuken. In de foyer zijn verschillende hoeken waar jong en oud elkaar in diverse sferen kan ontmoeten. De lichte en transparante foyer verbindt ook oud en nieuw in bouwen met elkaar.
Zowel in de gevel als in het interieur is veel gebruik gemaakt van natuurlijke en onderhoudsarme materialen als baksteen, hout, aluminium en zink. Daardoor voegt de nieuwe MFA zich goed tussen de bestaande bebouwing aan dit dorpslint.
Daarnaast is in de gevel en in het interieur een duidelijk onderscheid zichtbaar tussen de drie zones voor het delen van kennis, sport en cultuur en ook van binnenuit, vanuit de foyer, is deze verdeling herkenbaar.
Alle toevoegingen aan het interieur, zoals meubilair, maatwerkelementen, verlichting en wandbekleding, zijn hoofdzakelijk in twee materialen uitgevoerd; hout (multiplex) en vilt.
De gelaagdheid van de samenleving, die alleen sterk is als het samenkomt, wordt vertaald in het multiplex. Het is degelijk, niet schreeuwerig of extravagant, maar vriendelijk en warm.
Het vilt is ook een natuurlijk materiaal dat warmte geeft, maar ook zeer goede eigenschappen heeft ten opzichte van akoestiek. Het is een onderhoudsvriendelijk en brandveilig materiaal. De wand met donkere lamellen achter de bar, de schaduwstroken in de bar, de lampenkappen en de stoffering van meubels zijn allen gemaakt van vilten lamellen.
De foyer kent diverse gebieden, aansluitend bij de drie grote zalen, waarin zich diverse zitgebieden, passief en actief, hoog en laag, introvert en extrovert, bevinden. De bar/balie staat centraal in de ruimte, met zicht op de entrees en de drie grote zalen, en heeft enerzijds de functie van informatiebalie en anderzijds de functie van traditionele bar.
De bibliotheek bevindt zich in het voormalige parochiehuis uit 1930. Door de jaren heen is het helaas enkel nog de kap aan de buitenzijde die de bezoeker aan deze tijd herinnert. Daarom is deze met zijn originele spanten ook aan de binnenzijde weer herkenbaar gemaakt.
In het midden van deze ruimte is een twee verdiepingen hoge kast gerealiseerd, waarin functies zijn opgenomen als in- en uitleen, betalen, kopiëren en printen.
Voor de bibliotheek is het thema ‘huis in huis’ gekozen, zoals ook de bibliotheek zich als een woonkamer in het MFA-huis presenteert. Dit thema is helemaal doorgevoerd in al het maatwerkinterieur. In de doorgang naar de belevingsruimte voor kinderen ervaart men door de in elkaar geschoven, steeds kleiner wordende huisjes ook echt een verkleining van menselijke schaal.
De cultuurzaal ligt in het nieuwe gedeelte op de plek van de voormalige jongensschool. In deze zaal, ingericht met een flexibele tribune en een gedeeltelijk in hoogte verstelbaar podium, zijn ruim 460 zitplaatsen opgenomen. De zaal is bovendien op te splitsen in drie afzonderlijke zalen.
Tussen de bibliotheek en de cultuurzaal bevindt zich in het bestaande gedeelte de sportzaal.
Meer informatie:
https://la-architecten.nl/project/transformatie-mfa-de-borgh-budel/
Stel jezelf kort voor! Dan weet het betreffende bedrijf wie hun brochure gedownload heeft.
Wil je niet bij elke download jouw gegevens in hoeven voeren?
Klik dan hier om in te loggen
. Heb je nog geen account?
Maak dan hier een gratis account aan
.
Voornaam
Achternaam
E-mailadres
Downloaden
Wanneer je brochures downloadt op Architectenweb.nl worden relevante gegevens van jou – zoals jouw naam en e-mailadres – met het betreffende bedrijf gedeeld. Meer hierover lees je in ons
privacybeleid
.
Wanneer je brochures downloadt op Architectenweb.nl worden relevante gegevens van jou – zoals jouw naam en e-mailadres – met het betreffende bedrijf gedeeld. Meer hierover lees je in ons
privacybeleid
.
Brochure
Stel jezelf kort voor! Dan weet het betreffende bedrijf wie hun model gedownload heeft.
Wil je niet bij elke download jouw gegevens in hoeven voeren?
Klik dan hier om in te loggen
.
Heb je nog geen account?
Maak dan hier een gratis account aan
.
Voornaam
Achternaam
E-mailadres
Downloaden
Wanneer je modellen downloadt op Architectenweb.nl worden relevante gegevens van jou – zoals jouw naam en e-mailadres – met het betreffende bedrijf gedeeld. Meer hierover lees je in ons
privacybeleid
.
Locatie
Trefwoorden
gemeenschapshuis
cultuur
bibliotheek
mfa
budel
bibliotheek inrichting
buurtcentrum
cranendonck
interieur
transformatie
borgh
cultuurzaal
LA | Architecten Ingenieurs
Neem contact op
Projectdata
Staat van realisatie
Voltooid
Start ontwerpproces
2016
Start bouw
2018
Oplevering
2019
Ingebruikname
2019
Plaats
Budel
Kosten
500000
Bruto m
2
3875
Netto m
2
3650
m
3
21005
Meewerkende partijen
Architect
LA | Architecten Ingenieurs
Interieurarchitect
LA | Architecten Ingenieurs
Projectarchitect
Sanne van de Berg
Opdrachtgever
Gemeente Cranendonck
Leveranciers
Overig
Kooken interieurbouw Budel, Two Work Veghel, Gielissen Neos Interieurprojecten
Decoratieve wandafwerking
Hunter Douglas Architectural
Neem contact op met
LA | Architecten Ingenieurs
Je bent momenteel niet ingelogd. Hierdoor is het alleen mogelijk om meer informatie per e-mail op te vragen. Wil je liever gebeld worden of documentatie per post ontvangen?
Klik dan hier om in te loggen
.
Heb je nog geen account?
Maak dan hier een gratis account aan
.
Voornaam
Achternaam
E-mailadres
Opmerkingen
Bij iedere aanvraag worden relevante gegevens van jou gedeeld met het betreffende bedrijf. Meer hierover lees je in ons
privacybeleid
.
Ja, denk met me mee rond de
materialisering van mijn project
Meer projecten van LA | Architecten Ingenieurs
Nieuwbouw Villa Bos, een woning met contrasten
LA | Architecten Ingenieurs
Nieuwbouw hoofdkantoor Vanderlande, Veghel
LA | Architecten Ingenieurs
Transformatie MFA De Borgh
LA | Architecten Ingenieurs
Renovatie Morres Meubelen
LA | Architecten Ingenieurs
Nieuwbouw Villa Bos, een woning met contrasten
LA | Architecten Ingenieurs
Nieuwbouw hoofdkantoor Vanderlande, Veghel
LA | Architecten Ingenieurs
Transformatie MFA De Borgh
LA | Architecten Ingenieurs
Renovatie Morres Meubelen
LA | Architecten Ingenieurs
Toon alles
Gerelateerde producten
HeartFelt Walls
Feel the Quality. Hear the Difference.
Hunter Douglas Architectural
Andere Projecten
Six Degrees Café
Malaysian Timber Council
Open vloergootsysteem voor The CubeHouse Amsterdam
HPL Systems BV
Almere De Laren
Schippers Architecten
Wooncomplex Lariks in Houthaven
Mapro
Nieuwe kantoorinrichting BDO Brabant
Kronospan
De Toerist in Breda
DUCO Ventilation & Sun Control
In ontwikkeling: IKC Strandeiland, Amsterdam
WEBO
Gorter op nieuwbouw sociale huurappartementen
Gorter Luiken BV
Prefab villa - Egmond aan Zee
Houthandel van Dam
Nieuwbouw poeliersbedrijf Van Berkel Kip
Ruys Groep
Nieuwbouw 107 appartementen Spoordok
Gorter Luiken BV
Appartementencomplex - Résidence Gooiland
Rodruza B.V.
Ga naar het projecten-overzicht
Voor een optimale gebruikservaring plaatst Architectenweb functionele cookies. Wat de verschillende cookies precies doen leggen we uit in een
overzicht
. Cookies van social media kun je optioneel
aanzetten
.
Akkoord
Instellingen
Annuleren
OK
Sluiten
Doorgaan
Inloggen
Maak een gratis persoonlijk account aan
Feedback
Feedback
Wij horen graag jouw feedback. Laat je reactie achter en eventueel jouw e-mail adres.
Reactie
Verstuur