Projecten
Producten
Bedrijven
Vacatures
Agenda
Awards
Podcasts
more_horiz
Videos
Magazine
Thema's
Favorieten
Profiel
Uitloggen
Producten
Copyright: Stijn Poelstra
Copyright: Stijn Poelstra
Copyright: Stijn Poelstra
Copyright: Stijn Poelstra
Copyright: Stijn Poelstra
Copyright: Stijn Poelstra
Copyright: Stijn Poelstra
Copyright: Stijn Poelstra
Copyright: Stijn Poelstra
Kelder
Copyright: Station-D Architects
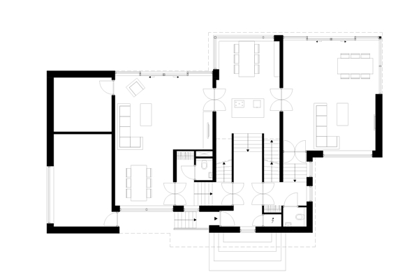
Begane grond
Copyright: Station-D Architects
Verdieping
Copyright: Station-D Architects
Doorsnede
Copyright: Station-D Architects
Producttags
AAN
UIT
Villa Montfoort
5 april 2017
2
0
0
0
De wens van de opdrachtgever was het realiseren van een woning welke het samengaan van twee gezinnen zou versoepelen. De man en vrouw voor wie de woning is gerealiseerd, hebben beide jonge kinderen uit een eerdere relatie. Wij hebben voor hen een woning ontworpen met gescheiden functies en een aantal gemeenschappelijke ontmoetingsruimten voor beide gezinnen. Elk gezin een eigen hal, woonkamer, badkamer, toilet en slaapvleugel. De centrale hal en ruime eetkeuken zijn opgezet als gezamenlijke vertrekken en vormen hiermee het hart van de villa.
De architectonische compositie en materialisatie van Villa Montfoort benadrukt de indeling van de plattegrond. De entree is gematerialiseerd in elementen van prefab beton. Onder de entree ligt een half verdiepte kelder. De verticale verschuiving die hiermee gepaard gaat zorgt voor een dynamische compositie en split-level niveauverschillen binnen de woning. Wij zochten naar een stoere, robuuste uistraling. De gevel is ontworpen als zwarte doos met metselwerk als primair materiaal in een horizontale belijning. Gebrand hout omkleedt de ouderlijke slaapkamer en steekt uit boven de slaapvertrekken van de kinderen.
De perfect symmetrische gang verdeelt de woning in twee leefgedeelten. Eén woonkamer links en één woonkamer rechts. Ten midden van de woning bevindt zich het ontmoetingspunt; de keuken. Hier wordt 's avonds gekookt en gegeten. Vanuit de keuken voorzien bandramen fantastische vergezichten op het typisch Nederlandse landschap van Montfoort.
Aan weerszijden van de centrale hal gaan twee volledig identieke trappen naar de eerste verdieping. Boven de trappen zijn in het dak verborgen dakramen ontworpen. Zonlicht strijkt prachtig neer langs de binnenwanden op de trap die toegang biedt tot de ouderlijke slaapkamer.
Het volume van het slaapvertrek hebben wij bekleed met Nao Shima. Dit is een traditionele Japanse techniek voor zwarthout, waarbij het hout diep wordt gebrand. Hierdoor ontstaan grove, natuurlijke texturen met een prachtige glans. Na enkele jaren zal het zwarthout zijn uiteindelijke karakteristieke uitstraling bereiken.
Stel jezelf kort voor! Dan weet het betreffende bedrijf wie hun brochure gedownload heeft.
Wil je niet bij elke download jouw gegevens in hoeven voeren?
Klik dan hier om in te loggen
. Heb je nog geen account?
Maak dan hier een gratis account aan
.
Voornaam
Achternaam
E-mailadres
Downloaden
Wanneer je brochures downloadt op Architectenweb.nl worden relevante gegevens van jou – zoals jouw naam en e-mailadres – met het betreffende bedrijf gedeeld. Meer hierover lees je in ons
privacybeleid
.
Wanneer je brochures downloadt op Architectenweb.nl worden relevante gegevens van jou – zoals jouw naam en e-mailadres – met het betreffende bedrijf gedeeld. Meer hierover lees je in ons
privacybeleid
.
Brochure
Stel jezelf kort voor! Dan weet het betreffende bedrijf wie hun model gedownload heeft.
Wil je niet bij elke download jouw gegevens in hoeven voeren?
Klik dan hier om in te loggen
.
Heb je nog geen account?
Maak dan hier een gratis account aan
.
Voornaam
Achternaam
E-mailadres
Downloaden
Wanneer je modellen downloadt op Architectenweb.nl worden relevante gegevens van jou – zoals jouw naam en e-mailadres – met het betreffende bedrijf gedeeld. Meer hierover lees je in ons
privacybeleid
.
Trefwoorden
particulier opdrachtgeverschap
modern
zwarthout
eengezinswoning
split-level
villa
prefab beton
vrijstaand woonhuis
luxe woonhuis
zelfbouw
design villa
moderne villa
Station-D Architects
Neem contact op
Projectdata
Staat van realisatie
Voltooid
Start bouw
2015
Bruto m
2
390
m
3
1525
Neem contact op met
Station-D Architects
Je bent momenteel niet ingelogd. Hierdoor is het alleen mogelijk om meer informatie per e-mail op te vragen. Wil je liever gebeld worden of documentatie per post ontvangen?
Klik dan hier om in te loggen
.
Heb je nog geen account?
Maak dan hier een gratis account aan
.
Voornaam
Achternaam
E-mailadres
Opmerkingen
Bij iedere aanvraag worden relevante gegevens van jou gedeeld met het betreffende bedrijf. Meer hierover lees je in ons
privacybeleid
.
Ja, denk met me mee rond de
materialisering van mijn project
Meer projecten van Station-D Architects
Villa Zuidhoek
Station-D Architects
Villa Kerckebosch
Station-D Architects
Villa Harnaschpolder
Station-D Architects
Villa Zuidhoek
Station-D Architects
Villa Kerckebosch
Station-D Architects
Villa Harnaschpolder
Station-D Architects
Toon alles
Andere Projecten
Renovatie: Stolpramen Soesterkwartier vernieuwd
J.P.M. Kok
Renovatie: Berlage Lyceum, Amsterdam
J.P.M. Kok
Duurzame Maersk-facade met Kingspan
Kingspan Geïsoleerde Panelen
Transformatie met karakter
Rebrick
300 m² BetonDesign in Burgers’ Zoo
Forbo Eurocol Nederland B.V.
Brinker, stijlvol comfort met slimme solar screens
SunCircle
Duurzame modernisering met EcoBrick gevelstenen
wienerberger
Renovatie appartementencomplex Park Vossendijk
Caparol
privé woning | Germany
ALUCOBOND®
Circulaire renovatie Rivierenhuis Amsterdam
Faay Vianen B.V.
Strakke moderne bungalow
Bob architectuur
Nieuwbouw kantoorpand Redwell Waddinxveen
Intermontage B.V.
Ga naar het projecten-overzicht
Voor een optimale gebruikservaring plaatst Architectenweb functionele cookies. Wat de verschillende cookies precies doen leggen we uit in een
overzicht
. Cookies van social media kun je optioneel
aanzetten
.
Akkoord
Instellingen
Annuleren
OK
Sluiten
Doorgaan
Inloggen
Maak een gratis persoonlijk account aan
Feedback
Feedback
Wij horen graag jouw feedback. Laat je reactie achter en eventueel jouw e-mail adres.
Reactie
Verstuur