Projecten
Producten
Bedrijven
Vacatures
Agenda
Awards
Podcasts
more_horiz
Videos
Magazine
Favorieten
Profiel
Uitloggen
Abonneer je nu op onze nieuwsbrieven!
Abonneren
Nee, bedankt
Ja, denk met me mee rond de
materialisering van mijn project
Producten
Producttags
AAN
UIT
Hoofdkantoor CFE GEKA
23 mei 2012
0
0
0
0
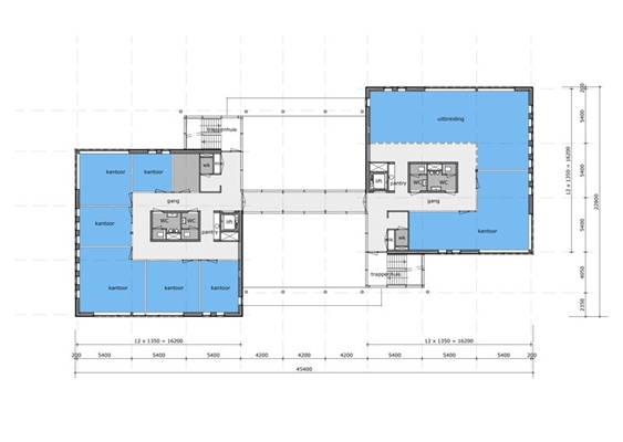
Aan de Kilkade in Dordrecht realiseren Geka Bouw en het moederbedrijf CFE Nederland haar nieuwe huisvesting.
Met twee gespiegelde torens en een transparante middenbeuk belooft het een beeldbepalend gebouw te worden. Het gebouw is functioneel en efficiënt vorm gegeven. Daarnaast biedt het doorzichtige middeldeel de flexibiliteit om toekomstige groeiambities vorm te geven.
Gekozen is voor een moderne uitstraling met veel glas, donker baksteen en opvallende staalconstructies die verwijzen naar het civieltechnische karakter wat Geka Bouw onderstreept.
Stel jezelf kort voor! Dan weet het betreffende bedrijf wie hun brochure gedownload heeft.
Wil je niet bij elke download jouw gegevens in hoeven voeren?
Klik dan hier om in te loggen
. Heb je nog geen account?
Maak dan hier een gratis account aan
.
Voornaam
Achternaam
E-mailadres
Downloaden
Wanneer je brochures downloadt op Architectenweb.nl worden relevante gegevens van jou – zoals jouw naam en e-mailadres – met het betreffende bedrijf gedeeld. Meer hierover lees je in ons
privacybeleid
.
Wanneer je brochures downloadt op Architectenweb.nl worden relevante gegevens van jou – zoals jouw naam en e-mailadres – met het betreffende bedrijf gedeeld. Meer hierover lees je in ons
privacybeleid
.
Brochure
Stel jezelf kort voor! Dan weet het betreffende bedrijf wie hun model gedownload heeft.
Wil je niet bij elke download jouw gegevens in hoeven voeren?
Klik dan hier om in te loggen
.
Heb je nog geen account?
Maak dan hier een gratis account aan
.
Voornaam
Achternaam
E-mailadres
Downloaden
Wanneer je modellen downloadt op Architectenweb.nl worden relevante gegevens van jou – zoals jouw naam en e-mailadres – met het betreffende bedrijf gedeeld. Meer hierover lees je in ons
privacybeleid
.
Locatie
Trefwoorden
van es architecten
cfe nederland
nieuwe huisvesting
geka bouw
van Es architecten
Neem contact op
Projectdata
Staat van realisatie
Voltooid
Start bouw
2012
Plaats
Dordrecht
Bruto m
2
2760
Neem contact op met
van Es architecten
Je bent momenteel niet ingelogd. Hierdoor is het alleen mogelijk om meer informatie per e-mail op te vragen. Wil je liever gebeld worden of documentatie per post ontvangen?
Klik dan hier om in te loggen
.
Heb je nog geen account?
Maak dan hier een gratis account aan
.
Voornaam
Achternaam
E-mailadres
Opmerkingen
Bij iedere aanvraag worden relevante gegevens van jou gedeeld met het betreffende bedrijf. Meer hierover lees je in ons
privacybeleid
.
Ja, denk met me mee rond de
materialisering van mijn project
Meer projecten van van Es architecten
Centre of Excellence
van Es architecten
Buiten de Waterpoort
van Es architecten
Groenendijk PGN Bouw & De Kwaasteniet
van Es architecten
Piet Rijsdijkstraat
van Es architecten
Van Wijngaarden
van Es architecten
Damen Marine Components
van Es architecten
Wonen aan de Giessen
van Es architecten
De Schalm
van Es architecten
Helmacab
van Es architecten
NME-Centrum De Hooizolder
van Es architecten
Valk Welding
van Es architecten
Van Andel
van Es architecten
Gemeentewerkplaats Sliedrecht
van Es architecten
Residentie Drechtstreek
van Es architecten
Aspect ICT & De Giessen
van Es architecten
Hoofdkantoor CFE GEKA
van Es architecten
Warehouse Stainalloy
van Es architecten
Ecologische atelier woning
van Es architecten
Warehouse Allison
van Es architecten
Wonen in het Groene Hart
van Es architecten
Zwijnskade
van Es architecten
Hoek en Blok
van Es architecten
Silvo
van Es architecten
Stijlvolle villa
van Es architecten
Karakteristieke woning
van Es architecten
Authentieke woning
van Es architecten
Ruimte & Licht
van Es architecten
Hoofdkantoor ANVD
van Es architecten
Altena College
van Es architecten
Bedrijfshuisvesting Lock Transport
van Es architecten
Winkel met appartementen
van Es architecten
Centraal magazijn Damen Shipyards
van Es architecten
Tandtechnisch Laboratorium
van Es architecten
Tandartsenpraktijk Middenpolder
van Es architecten
Exclusief & sfeervol wonen
van Es architecten
Heeren van Slydrecht
van Es architecten
Sport- en wellnesscomplex Wellnesselande
van Es architecten
Baden in luxe
van Es architecten
MFC Het Bosch
van Es architecten
Entreegebouw Damen Shipyards
van Es architecten
Bedrijfshuisvesting Imbema Cleton
van Es architecten
Bedrijfshuisvesting Vulkan
van Es architecten
Kantoortorens 'Statuur'
van Es architecten
Bedrijfshuisvesting Harkema
van Es architecten
MFC Christengemeente
van Es architecten
Global Transit Center
van Es architecten
Volvo Truck Center Alblasserdam
van Es architecten
Revitalisatie WSB Data
van Es architecten
Luchtbrug Klimaatservice
van Es architecten
Hoofdkantoor Damen Shipyards
van Es architecten
Volvo Truck Center
van Es architecten
Basisschool De Hoge Hof
van Es architecten
Datacenter Dataplace
van Es architecten
Kantoor ProServe
van Es architecten
Bedrijfshuisvesting CAB Holland
van Es architecten
MFA De Haveling
van Es architecten
ANVD
van Es architecten
Appartementen Weideveld - Fase 2
van Es architecten
Appartementen Weideveld
van Es architecten
Woningen Kortenhoevenseweg
van Es architecten
Landelijk wonen
van Es architecten
Patiowoning
van Es architecten
Wonen aan het water
van Es architecten
Exclusieve villa
van Es architecten
Moderne villa
van Es architecten
Woning Sliedrecht
van Es architecten
Woning Janse
van Es architecten
Kortenhoeven
van Es architecten
CAB Holland
van Es architecten
Damen
van Es architecten
Christengemeente
van Es architecten
Tandartsenpraktijk
van Es architecten
GTC
van Es architecten
Statuur
van Es architecten
B100
van Es architecten
Centre of Excellence
van Es architecten
Buiten de Waterpoort
van Es architecten
Groenendijk PGN Bouw & De Kwaasteniet
van Es architecten
Piet Rijsdijkstraat
van Es architecten
Van Wijngaarden
van Es architecten
Damen Marine Components
van Es architecten
Wonen aan de Giessen
van Es architecten
De Schalm
van Es architecten
Helmacab
van Es architecten
NME-Centrum De Hooizolder
van Es architecten
Valk Welding
van Es architecten
Van Andel
van Es architecten
Gemeentewerkplaats Sliedrecht
van Es architecten
Residentie Drechtstreek
van Es architecten
Aspect ICT & De Giessen
van Es architecten
Hoofdkantoor CFE GEKA
van Es architecten
Warehouse Stainalloy
van Es architecten
Ecologische atelier woning
van Es architecten
Warehouse Allison
van Es architecten
Wonen in het Groene Hart
van Es architecten
Zwijnskade
van Es architecten
Hoek en Blok
van Es architecten
Silvo
van Es architecten
Stijlvolle villa
van Es architecten
Karakteristieke woning
van Es architecten
Authentieke woning
van Es architecten
Ruimte & Licht
van Es architecten
Hoofdkantoor ANVD
van Es architecten
Altena College
van Es architecten
Bedrijfshuisvesting Lock Transport
van Es architecten
Winkel met appartementen
van Es architecten
Centraal magazijn Damen Shipyards
van Es architecten
Tandtechnisch Laboratorium
van Es architecten
Tandartsenpraktijk Middenpolder
van Es architecten
Exclusief & sfeervol wonen
van Es architecten
Heeren van Slydrecht
van Es architecten
Sport- en wellnesscomplex Wellnesselande
van Es architecten
Baden in luxe
van Es architecten
MFC Het Bosch
van Es architecten
Entreegebouw Damen Shipyards
van Es architecten
Bedrijfshuisvesting Imbema Cleton
van Es architecten
Bedrijfshuisvesting Vulkan
van Es architecten
Kantoortorens 'Statuur'
van Es architecten
Bedrijfshuisvesting Harkema
van Es architecten
MFC Christengemeente
van Es architecten
Global Transit Center
van Es architecten
Volvo Truck Center Alblasserdam
van Es architecten
Revitalisatie WSB Data
van Es architecten
Luchtbrug Klimaatservice
van Es architecten
Hoofdkantoor Damen Shipyards
van Es architecten
Volvo Truck Center
van Es architecten
Basisschool De Hoge Hof
van Es architecten
Datacenter Dataplace
van Es architecten
Kantoor ProServe
van Es architecten
Bedrijfshuisvesting CAB Holland
van Es architecten
MFA De Haveling
van Es architecten
ANVD
van Es architecten
Appartementen Weideveld - Fase 2
van Es architecten
Appartementen Weideveld
van Es architecten
Woningen Kortenhoevenseweg
van Es architecten
Landelijk wonen
van Es architecten
Patiowoning
van Es architecten
Wonen aan het water
van Es architecten
Exclusieve villa
van Es architecten
Moderne villa
van Es architecten
Woning Sliedrecht
van Es architecten
Woning Janse
van Es architecten
Kortenhoeven
van Es architecten
CAB Holland
van Es architecten
Damen
van Es architecten
Christengemeente
van Es architecten
Tandartsenpraktijk
van Es architecten
GTC
van Es architecten
Statuur
van Es architecten
B100
van Es architecten
Toon alles
Andere Projecten
Six Degrees Café
Malaysian Timber Council
Open vloergootsysteem voor The CubeHouse Amsterdam
HPL Systems BV
Almere De Laren
Schippers Architecten
Wooncomplex Lariks in Houthaven
Mapro
Nieuwe kantoorinrichting BDO Brabant
Kronospan
De Toerist in Breda
DUCO Ventilation & Sun Control
In ontwikkeling: IKC Strandeiland, Amsterdam
WEBO
Gorter op nieuwbouw sociale huurappartementen
Gorter Luiken BV
Prefab villa - Egmond aan Zee
Houthandel van Dam
Nieuwbouw poeliersbedrijf Van Berkel Kip
Ruys Groep
Nieuwbouw 107 appartementen Spoordok
Gorter Luiken BV
Appartementencomplex - Résidence Gooiland
Rodruza B.V.
Ga naar het projecten-overzicht
Voor een optimale gebruikservaring plaatst Architectenweb functionele cookies. Wat de verschillende cookies precies doen leggen we uit in een
overzicht
. Cookies van social media kun je optioneel
aanzetten
.
Akkoord
Instellingen
Annuleren
OK
Sluiten
Doorgaan
Inloggen
Maak een gratis persoonlijk account aan
Feedback
Feedback
Wij horen graag jouw feedback. Laat je reactie achter en eventueel jouw e-mail adres.
Reactie
Verstuur