Projecten
Producten
Bedrijven
Vacatures
Agenda
Awards
Podcasts
more_horiz
Videos
Magazine
Favorieten
Profiel
Uitloggen
Abonneer je nu op onze nieuwsbrieven!
Abonneren
Nee, bedankt
Ja, denk met me mee rond de
materialisering van mijn project
Producten
Copyright: Triple D
Copyright: Triple D
Copyright: Triple D
Copyright: Triple D
Copyright: Triple D
Copyright: Triple D
Copyright: Triple D
Copyright: ARX architecten
Copyright: ARX architecten
Copyright: ARX architecten
Producttags
AAN
UIT
Villa O
9 maart 2012
1
0
0
0
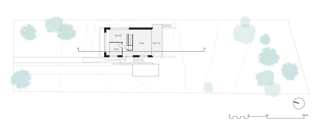
Voor zijn nieuwe villa vroeg de klant om een open en lichte sfeer terwijl rekening gehouden werd met zijn privacy. De woning wordt omsloten door een u-vormige muur om het gevoel van privacy the maximaliseren. Een glazen pui aan de zuidzijde in de woonkamer biedt een panoramisch uitzicht op de tuin. Door hoge puien valt natuurlijk zonlicht tot diep in het huis naar binnen. De op het zuiden gerichte daklichten zorgen voor maximaal licht op beide verdiepingen van het huis.
Geïntegreerde zonnecellen regelen de hoeveelheid zonlicht en warmte die door het glas naar binnen komt. Een ruim zonneterras dat verbonden is met de woonkamer dient ook als zonwering voor de beneden gelegen slaapkamers. Om de gebouw isolatie te optimaliseren heeft het gebouw voornamelijk op het zuiden gerichte gevelopeningen. Bovendien zijn de gebouw-installaties geclusterd in de kern om warmteverlies in de leidingen te minimaliseren.
Stel jezelf kort voor! Dan weet het betreffende bedrijf wie hun model gedownload heeft.
Wil je niet bij elke download jouw gegevens in hoeven voeren?
Klik dan hier om in te loggen
.
Heb je nog geen account?
Maak dan hier een gratis account aan
.
Voornaam
Achternaam
E-mailadres
Downloaden
Wanneer je modellen downloadt op Architectenweb.nl worden relevante gegevens van jou – zoals jouw naam en e-mailadres – met het betreffende bedrijf gedeeld. Meer hierover lees je in ons
privacybeleid
.
Trefwoorden
natuur
woning
uitzicht
duurzaam
licht
zon
energieneutraal
villa
ARX architecten
Neem contact op
Projectdata
Staat van realisatie
Voltooid
Start bouw
2016
Meewerkende partijen
Architect
ARX architecten
Projectarchitect
Alfonso Wolbert
Neem contact op met
ARX architecten
Je bent momenteel niet ingelogd. Hierdoor is het alleen mogelijk om meer informatie per e-mail op te vragen. Wil je liever gebeld worden of documentatie per post ontvangen?
Klik dan hier om in te loggen
.
Heb je nog geen account?
Maak dan hier een gratis account aan
.
Voornaam
Achternaam
E-mailadres
Opmerkingen
Bij iedere aanvraag worden relevante gegevens van jou gedeeld met het betreffende bedrijf. Meer hierover lees je in ons
privacybeleid
.
Ja, denk met me mee rond de
materialisering van mijn project
Meer projecten van ARX architecten
Kindcentrum Enter
ARX architecten
LUNA, woongebouw met commerciele plint
ARX architecten
Nieuwbouw IKC Groenhouten
ARX architecten
Peeze koffiewinkel
ARX architecten
Bloemendal
ARX architecten
MFA Keijenborg
ARX architecten
Nieuwbouw ROVC TechCenter
ARX architecten
Gezondheidscentrum De Eik
ARX architecten
Ecologische koffiebranderij Peeze
ARX architecten
Grote Beer
ARX architecten
ECE Startup Campus
ARX architecten
Ecologische woonwijk Biezenakker
ARX architecten
Kindcentrum Enter
ARX architecten
LUNA, woongebouw met commerciele plint
ARX architecten
Nieuwbouw IKC Groenhouten
ARX architecten
Peeze koffiewinkel
ARX architecten
Bloemendal
ARX architecten
MFA Keijenborg
ARX architecten
Nieuwbouw ROVC TechCenter
ARX architecten
Gezondheidscentrum De Eik
ARX architecten
Ecologische koffiebranderij Peeze
ARX architecten
Grote Beer
ARX architecten
ECE Startup Campus
ARX architecten
Ecologische woonwijk Biezenakker
ARX architecten
Toon alles
Andere Projecten
De stad van Aedes: waar werken wonen wordt
Tétris Design & Build
Nieuwbouw Residentie ZICHT Venlo
Knauf Insulation
Light House
Studioninedots
Nieuwbouw Slingeland Ziekenhuis Doetinchem
Knauf Insulation
Fraké Noir gevelbekleding op sanitairgebouw
Houthandel van Dam
The Family Delft
Houthandel van Dam
Houtlook lamellen voor aantrekkelijke nieuwbouw
Renson
De Toerist in Breda
DUCO Ventilation & Sun Control
Solarlux vouwwanden - Zuidkade Scheveningen
Solarlux Nederland B.V.
Multifunctioneel gebouw met aluminium vliesgevel
Aliplast Aluminium Systems
Van gesloten gevel naar transparant visitekaartje
Rockpanel
Den Hartogh Basecamp (Video)
Schüco Nederland
Ga naar het projecten-overzicht
Voor een optimale gebruikservaring plaatst Architectenweb functionele cookies. Wat de verschillende cookies precies doen leggen we uit in een
overzicht
. Cookies van social media kun je optioneel
aanzetten
.
Akkoord
Instellingen
Annuleren
OK
Sluiten
Doorgaan
Inloggen
Maak een gratis persoonlijk account aan
Feedback
Feedback
Wij horen graag jouw feedback. Laat je reactie achter en eventueel jouw e-mail adres.
Reactie
Verstuur