Projecten
Producten
Bedrijven
Vacatures
Agenda
Awards
Podcasts
more_horiz
Videos
Magazine
Favorieten
Profiel
Uitloggen
Abonneer je nu op onze nieuwsbrieven!
Abonneren
Nee, bedankt
Ja, denk met me mee rond de
materialisering van mijn project
Producten
Producttags
AAN
UIT
Passiefhuis Eindhoven
12 april 2011
0
0
0
0
Passiefhuis Eindhoven
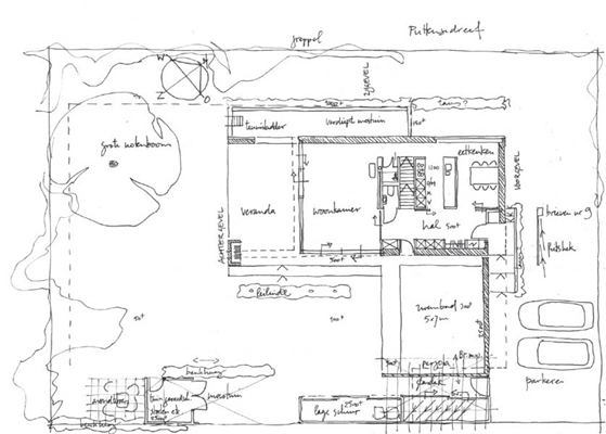
In een landelijk stadsdeel van Eindhoven wordt een nieuwbouwwijk onder particulier opdrachtgeverschap ontwikkeld. Strenge richtlijnen uit beeldkwaliteits- en bestemmingsplan leiden in combinatie met specifieke wensen van de opdrachtgevende familie tot een op het eerste gezicht misschien wat stereotype ogende woning. Maar ambitieuze eisen voor wat betreft energiezuinigheid en budget leveren daarentegen een niet-alledaagse indeling, ontsluiting, ruimtelijkheid en techniek op. Streven is een woning met zo geringe warmtebehoefte dat kan worden volstaan met louter naverwarming van de ventilatielucht. Daarmee worden cv-ketel en gasmeter optioneel in plaats van standaard. Systemen voor het opwekken van duurzame energie kunnen in een later stadium nog aan de woning worden toegevoegd; zij passen nu niet in het budget. Gedurende het ontwerpproces worden de ontwerpbeslissingen steeds getoetst en vergeleken door middel van de Passiefhuisprojectpakket-software.
Ontwerp en detaillering zijn gebaseerd op het eerste principe van de Trias-energetica: een minimale energievraag door een juiste zonoriv´ntatie, compact bouwvolume, warmte-isolatie en luchtdichtheid. De resterende energievraag wordt opgewekt met duurzame energiebronnen: hernieuwbare grondstoffen (pelletkachel) en energie uit wind en zonnestraling (2e fase).
Het huis wordt als houtskelet geplaatst op een betonnen kelder, en volgens het beeldkwaliteitsplan worden de gevels in baksteen uitgevoerd en het dak bedekt met keramische pannen. Na het monteren van de kozijnen met drievoudig glas, wordt het skelet aan de buitenzijde luchtdicht met folie ingepakt. Daarna volgen een naadloze hoogwaardige isolatie, de luchtspouw en het metselwerk.
Passiefhuisdetaillering komt neer op nauwkeurige luchtdichte uitvoering en detaillering zonder koudebruggen. Alleen met een berekend energieverbruik van ten hoogste 15 kWh per m2 per jaar en een succesvolle luchtdrukproef in de praktijk (maximaal 0,6 per uur) kan een certificaat worden verkregen.
Architect: Thomas Kemme Architectenbureau, Eindhoven Projectteam: Thomas Kemme AvB, Ir. Bastien Vievermans Jaar van realisatie: 2011
Stel jezelf kort voor! Dan weet het betreffende bedrijf wie hun brochure gedownload heeft.
Wil je niet bij elke download jouw gegevens in hoeven voeren?
Klik dan hier om in te loggen
. Heb je nog geen account?
Maak dan hier een gratis account aan
.
Voornaam
Achternaam
E-mailadres
Downloaden
Wanneer je brochures downloadt op Architectenweb.nl worden relevante gegevens van jou – zoals jouw naam en e-mailadres – met het betreffende bedrijf gedeeld. Meer hierover lees je in ons
privacybeleid
.
Wanneer je brochures downloadt op Architectenweb.nl worden relevante gegevens van jou – zoals jouw naam en e-mailadres – met het betreffende bedrijf gedeeld. Meer hierover lees je in ons
privacybeleid
.
Brochure
Stel jezelf kort voor! Dan weet het betreffende bedrijf wie hun model gedownload heeft.
Wil je niet bij elke download jouw gegevens in hoeven voeren?
Klik dan hier om in te loggen
.
Heb je nog geen account?
Maak dan hier een gratis account aan
.
Voornaam
Achternaam
E-mailadres
Downloaden
Wanneer je modellen downloadt op Architectenweb.nl worden relevante gegevens van jou – zoals jouw naam en e-mailadres – met het betreffende bedrijf gedeeld. Meer hierover lees je in ons
privacybeleid
.
Locatie
Trefwoorden
kruislaaghout
energiezuinig bouwen
passiefhuis
massief hout
Thomas Kemme Architecten
Neem contact op
Projectdata
Staat van realisatie
Voltooid
Start bouw
2011
Plaats
Eindhoven
Neem contact op met
Thomas Kemme Architecten
Je bent momenteel niet ingelogd. Hierdoor is het alleen mogelijk om meer informatie per e-mail op te vragen. Wil je liever gebeld worden of documentatie per post ontvangen?
Klik dan hier om in te loggen
.
Heb je nog geen account?
Maak dan hier een gratis account aan
.
Voornaam
Achternaam
E-mailadres
Opmerkingen
Bij iedere aanvraag worden relevante gegevens van jou gedeeld met het betreffende bedrijf. Meer hierover lees je in ons
privacybeleid
.
Ja, denk met me mee rond de
materialisering van mijn project
Meer projecten van Thomas Kemme Architecten
Transformatie 'De Elisabeth' Utrecht
Thomas Kemme Architecten
interieur penthouse
Thomas Kemme Architecten
herbestemming pakhuis, 's-Hertogenbosch
Thomas Kemme Architecten
Woonhuis Bonifaciuslaan
Thomas Kemme Architecten
Woongebouw Noordhoekring
Thomas Kemme Architecten
Transformatie 'De Elisabeth' Utrecht
Thomas Kemme Architecten
interieur penthouse
Thomas Kemme Architecten
herbestemming pakhuis, 's-Hertogenbosch
Thomas Kemme Architecten
Woonhuis Bonifaciuslaan
Thomas Kemme Architecten
Woongebouw Noordhoekring
Thomas Kemme Architecten
Toon alles
Gerelateerde nieuwsberichten
Ons Huus wint Passiefhuis-prijsvraag
29 april 2011
Andere Projecten
Nieuwbouwwijk - New Brooklyn
Rodruza B.V.
Tijdloos nieuwbouwproject – Haaksbergen
Joris Ide
JI NatureBlack - Tijdloos design, staalprestaties
Joris Ide
Nieuwbouwcomplex - Elzenhof
Rodruza B.V.
MFC Feanwâlden
KHV Architecten B.V.
Parkeergarage De Caai in Eindhoven
Alucol
Lichtstad Architecten: bouwen aan blijvende ideeën
KUBUS | Specialist in Archicad
Horecapaviljoen Vakantiepark Eigen Wijze
KHV Architecten B.V.
Ontwikkeling Kornputkwartier
KHV Architecten B.V.
IKEA Restaurant, Frankfurt
objectflor
Gevelsteen vormt monumentaal ontwerp
Steenbakkerij Vande Moortel
Nieuw kantoorgebouw
SAPA
Ga naar het projecten-overzicht
Voor een optimale gebruikservaring plaatst Architectenweb functionele cookies. Wat de verschillende cookies precies doen leggen we uit in een
overzicht
. Cookies van social media kun je optioneel
aanzetten
.
Akkoord
Instellingen
Annuleren
OK
Sluiten
Doorgaan
Inloggen
Maak een gratis persoonlijk account aan
Feedback
Feedback
Wij horen graag jouw feedback. Laat je reactie achter en eventueel jouw e-mail adres.
Reactie
Verstuur