Projecten
Producten
Bedrijven
Vacatures
Agenda
Awards
Podcasts
more_horiz
Videos
Magazine
Favorieten
Profiel
Uitloggen
Abonneer je nu op onze nieuwsbrieven!
Abonneren
Nee, bedankt
Ja, denk met me mee rond de
materialisering van mijn project
Producten
Entree dubbele hoogte
Copyright: Marcel van de Berg
Entree met zicht op voorkamer
Copyright: Marcel van de Berg
Voorkamer
Copyright: Marcel van de Berg
Keuken
Copyright: Marcel van de Berg
Ontbijtplek
Copyright: Marcel van de Berg
Origineel behang, nog steeds zichtbaar
Copyright: Marcel van de Berg
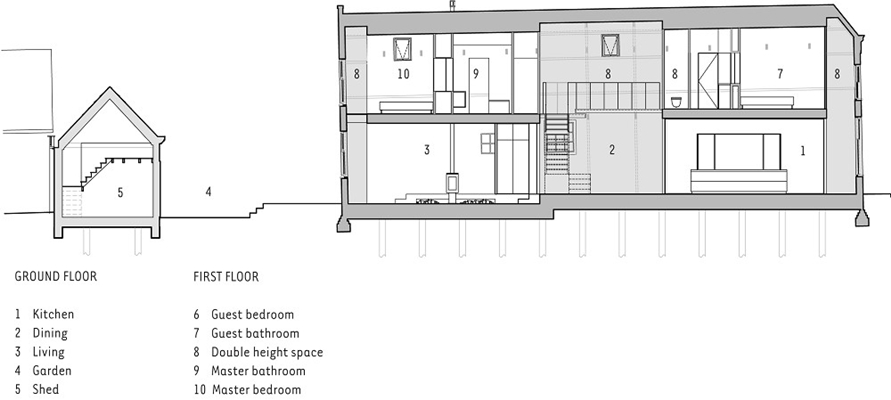
Plattegrond begane grond en eerste verdieping
Doorsnede
Producttags
AAN
UIT
Transformatie bakkerij tot woonhuis
14 oktober 2010
1
0
0
0
Het project behelst de complete renovatie van een 19de eeuws gebouw - een voormalige bakkerij - in het Centrum van Edam. Het pand is getransformeerd tot woonhuis.
Door het plaatsen van een tweetal volumes in het langgerekte casco wordt de ruimte van het huis geleed. In de volumes zijn de gebruiksfuncties opgenomen; de badkamers en de slaapkamers op de verdieping en de woonkamer en keuken op de begane grond.
De volumes staan los van elkaar en los van de kopgevels hierdoor ontstaan doorzichten en vides. De originele authentieke schil van het huis is op sommige plekken (gedeeltelijk) zichtbaar gelaten waardoor een spannend spel tussen oud en nieuw ontstaat.
Stel jezelf kort voor! Dan weet het betreffende bedrijf wie hun model gedownload heeft.
Wil je niet bij elke download jouw gegevens in hoeven voeren?
Klik dan hier om in te loggen
.
Heb je nog geen account?
Maak dan hier een gratis account aan
.
Voornaam
Achternaam
E-mailadres
Downloaden
Wanneer je modellen downloadt op Architectenweb.nl worden relevante gegevens van jou – zoals jouw naam en e-mailadres – met het betreffende bedrijf gedeeld. Meer hierover lees je in ons
privacybeleid
.
Locatie
Trefwoorden
transformatie
bakkerij
vide
glas
herbestemming
verhaal
luxe
edam
geschiedenis
woonhuis
Berger Barnett Architecten
Neem contact op
Projectdata
Staat van realisatie
Voltooid
Start bouw
2010
Plaats
Volendam
Neem contact op met
Berger Barnett Architecten
Je bent momenteel niet ingelogd. Hierdoor is het alleen mogelijk om meer informatie per e-mail op te vragen. Wil je liever gebeld worden of documentatie per post ontvangen?
Klik dan hier om in te loggen
.
Heb je nog geen account?
Maak dan hier een gratis account aan
.
Voornaam
Achternaam
E-mailadres
Opmerkingen
Bij iedere aanvraag worden relevante gegevens van jou gedeeld met het betreffende bedrijf. Meer hierover lees je in ons
privacybeleid
.
Ja, denk met me mee rond de
materialisering van mijn project
Meer projecten van Berger Barnett Architecten
VSO De Heldring
Berger Barnett Architecten
De Wereldboom, Humanistisch Kindcentrum, Amsterdam
Berger Barnett Architecten
Renovatie schoolgebouw De Henricus
Berger Barnett Architecten
CPO Noord4us
Berger Barnett Architecten
Praktijkcollege het Plein
Berger Barnett Architecten
SO de Heldring
Berger Barnett Architecten
VSO De Heldring
Berger Barnett Architecten
De Wereldboom, Humanistisch Kindcentrum, Amsterdam
Berger Barnett Architecten
Renovatie schoolgebouw De Henricus
Berger Barnett Architecten
CPO Noord4us
Berger Barnett Architecten
Praktijkcollege het Plein
Berger Barnett Architecten
SO de Heldring
Berger Barnett Architecten
Toon alles
Andere Projecten
Sandwichpanelenwand hygiënische afbouw
Sentho B.V.
Transformeerbare vergaderruimtes in HNK Amsterdam
BREEDVELD mobiele wandsystemen
Complete buiteninrichting kantooromgeving
Falco B.V.
TopAccess Dakluik bij Porsche Service Factory
Staka Dakluiken
Nieuwbouw villa Tegenbosch, Eindhoven, Noord-Braba
van Os Architecten
Moderne villa Alkmaar
BNLA architecten
Appartementencomplex in Purmerend
SSAB Swedish Steel BV
Office Winhov over project Pulse met Archicad
KUBUS | Specialist in Archicad
Nieuwbouw moderne bungalow, Prinsenbeek, Noord-Bra
van Os Architecten
Verbouwing villa Ruitersbos, Breda, Noord-Brabant
van Os Architecten
Nieuwbouw schuurwoning, Oosterhout, Noord-Brabant
van Os Architecten
Nieuwbouw schuurwoning, Eerbeek, Gelderland
van Os Architecten
Ga naar het projecten-overzicht
Voor een optimale gebruikservaring plaatst Architectenweb functionele cookies. Wat de verschillende cookies precies doen leggen we uit in een
overzicht
. Cookies van social media kun je optioneel
aanzetten
.
Akkoord
Instellingen
Annuleren
OK
Sluiten
Doorgaan
Inloggen
Maak een gratis persoonlijk account aan
Feedback
Feedback
Wij horen graag jouw feedback. Laat je reactie achter en eventueel jouw e-mail adres.
Reactie
Verstuur