Projecten
Producten
Bedrijven
Vacatures
Agenda
Awards
Podcasts
more_horiz
Videos
Magazine
Favorieten
Profiel
Uitloggen
Abonneer je nu op onze nieuwsbrieven!
Abonneren
Nee, bedankt
Ja, denk met me mee rond de
materialisering van mijn project
Producten
Copyright: Marcel van der Burg
Copyright: Marcel van der Burg
Copyright: Marcel van der Burg
Copyright: Marcel van der Burg
Copyright: Marcel van der Burg
Copyright: Marcel van der Burg
Copyright: Marcel van der Burg
Copyright: Marcel van der Burg
Copyright: Marcel van der Burg
Producttags
AAN
UIT
V21K07
9 juni 2010
0
0
0
0
Op het voormalig slachthuisterrein in het historisch hart van de universiteitsstad Leiden, verrijst een van de grootste, stedelijke ontwikkelingen van particuliere woonhuizen in Nederland. In hun serie van elf, presenteren de in Rotterdam gevestigde architecten pasel.künzel architects wederom een magnifiek huis en geven een nieuwe interpretatie van de klassieke Nederlandse woningtypologie.
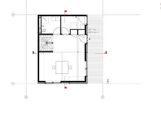
V21K07 zet de functies van een klassiek huis op zijn kop! Om de meeste winst uit direct zonlicht en het panoramisch uitzicht over de stad te halen, werden de functies van het huis gestapeld op tamelijk ongebruikelijke wijze. Het woongedeelte met zijn royale Zuidoost-georiënteerde dakterras is gelegen op de bovenste verdieping. Door geen gebruik te maken van scheidingswanden, is er een open ruimte gecreëerd met een adembenemend uitzicht over het historisch centrum van Leiden.
De begane grond daarentegen is een polyvalente ruimte, waar alle bewoners de mogelijkheid hebben te spelen, werken, lezen of aan andere gezamenlijke activiteiten deel te nemen. op deze wijze worden er activiteiten getoond die zich normaal gesproken afspelen op de zolders van Nederlandse huizen. Grote ramen zorgen voor een vloeiende overgang van binnen naar buiten, waardoor de entree veranda, welke de traditionele voortuin vervangt, zowel het communicatieve hart van het gebouw, als een informeel ontmoetingspunt met de buurt vormt. De doorlopende materialisatie van vloer, muur en plafond creëert een subtiele overgang van publiek naar privé.
De middelste verdieping maakt gebruik van de maximale afmeting van het kavel en herbergt de ouder- en kinderslaapkamers. Door de uitkraging van deze verdieping, wordt de entreesituatie mogelijk gemaakt. De zwart gekleurde houten gevel refereert direct aan de historische zwarte houten huizen in de regio. Om de kosten te minimaliseren, werd de detaillering gereduceerd tot een absoluut minimum en werd er slechts één formaat venster gebruikt. Rolluiken aan de buitenzijde zorgen voor privacy en voorkomen oververhitting in de zomer. Het gebouw voldoet tevens aan alle lage-energienormen.
Stel jezelf kort voor! Dan weet het betreffende bedrijf wie hun brochure gedownload heeft.
Wil je niet bij elke download jouw gegevens in hoeven voeren?
Klik dan hier om in te loggen
. Heb je nog geen account?
Maak dan hier een gratis account aan
.
Voornaam
Achternaam
E-mailadres
Downloaden
Wanneer je brochures downloadt op Architectenweb.nl worden relevante gegevens van jou – zoals jouw naam en e-mailadres – met het betreffende bedrijf gedeeld. Meer hierover lees je in ons
privacybeleid
.
Wanneer je brochures downloadt op Architectenweb.nl worden relevante gegevens van jou – zoals jouw naam en e-mailadres – met het betreffende bedrijf gedeeld. Meer hierover lees je in ons
privacybeleid
.
Brochure
Stel jezelf kort voor! Dan weet het betreffende bedrijf wie hun model gedownload heeft.
Wil je niet bij elke download jouw gegevens in hoeven voeren?
Klik dan hier om in te loggen
.
Heb je nog geen account?
Maak dan hier een gratis account aan
.
Voornaam
Achternaam
E-mailadres
Downloaden
Wanneer je modellen downloadt op Architectenweb.nl worden relevante gegevens van jou – zoals jouw naam en e-mailadres – met het betreffende bedrijf gedeeld. Meer hierover lees je in ons
privacybeleid
.
pasel.künzel architects
Neem contact op
Projectdata
Staat van realisatie
Voltooid
Start bouw
2009
Kosten
272000
Bruto m
2
185
Neem contact op met
pasel.künzel architects
Je bent momenteel niet ingelogd. Hierdoor is het alleen mogelijk om meer informatie per e-mail op te vragen. Wil je liever gebeld worden of documentatie per post ontvangen?
Klik dan hier om in te loggen
.
Heb je nog geen account?
Maak dan hier een gratis account aan
.
Voornaam
Achternaam
E-mailadres
Opmerkingen
Bij iedere aanvraag worden relevante gegevens van jou gedeeld met het betreffende bedrijf. Meer hierover lees je in ons
privacybeleid
.
Ja, denk met me mee rond de
materialisering van mijn project
Meer projecten van pasel.künzel architects
Het Pianohuis
pasel.künzel architects
Black Diamant
pasel.künzel architects
Woonhuis V21K01
pasel.künzel architects
Het Pianohuis
pasel.künzel architects
Black Diamant
pasel.künzel architects
Woonhuis V21K01
pasel.künzel architects
Toon alles
Andere Projecten
Padoek Schuurwoning
Houthandel van Dam
Duurzaam kantoorpand - Obèche Noir gevelbekleding
Houthandel van Dam
IKC Droomhof
Houthandel van Dam
Villa - Broek in Waterland
Houthandel van Dam
Vliesgevel screens Netceed kantoorgebouw
Renson
DEZA Kozijnen - Heerhugowaard
DUCO Ventilation & Sun Control
Passiefwoning met geïntegreerde vouwhefluiken
Artino
Villa Oegstgeest
Station-D Architects
Project Safestore Amersfoort
Dupral B.V.
Stalen uitbouw aan de Amsterdamse grachtengordel
Perfect View Windows
0739 Bornerveld – zuidwijk Rotterdam
Zijdekwartier architecten bv
Kantoor Apollolaan 171 Amsterdam
Boon Edam Nederland B.V.
Ga naar het projecten-overzicht
Voor een optimale gebruikservaring plaatst Architectenweb functionele cookies. Wat de verschillende cookies precies doen leggen we uit in een
overzicht
. Cookies van social media kun je optioneel
aanzetten
.
Akkoord
Instellingen
Annuleren
OK
Sluiten
Doorgaan
Inloggen
Maak een gratis persoonlijk account aan
Feedback
Feedback
Wij horen graag jouw feedback. Laat je reactie achter en eventueel jouw e-mail adres.
Reactie
Verstuur