Projecten
Producten
Bedrijven
Vacatures
Agenda
Awards
Podcasts
more_horiz
Videos
Magazine
Favorieten
Profiel
Uitloggen
Abonneer je nu op onze nieuwsbrieven!
Abonneren
Nee, bedankt
Ja, denk met me mee rond de
materialisering van mijn project
Producten
Producttags
AAN
UIT
Interieur woonhuis
19 april 2010
0
0
0
0
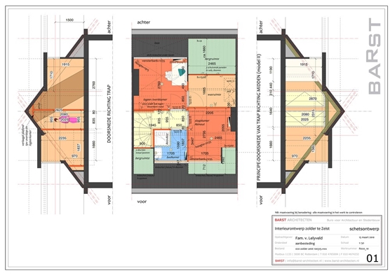
Interieuropgave voor een tussenwoning in een korte rij van 4 woningen in een fraaie jaren dertig buurt in Zeist.
De belangrijkste ingreep is het realiseren van 2 kamers, een badkamer en een wasruimte op de zolderverdieping.
Nadat de woning op de begane grond al eerder zorgvuldig was uitgebreid aan de achterzijde, wordt de van oorsprong niet zeer grote woning nu ingebreid op zolder zodat de woning nog meer kwaliteit en ruimte krijgt.
Stel jezelf kort voor! Dan weet het betreffende bedrijf wie hun brochure gedownload heeft.
Wil je niet bij elke download jouw gegevens in hoeven voeren?
Klik dan hier om in te loggen
. Heb je nog geen account?
Maak dan hier een gratis account aan
.
Voornaam
Achternaam
E-mailadres
Downloaden
Wanneer je brochures downloadt op Architectenweb.nl worden relevante gegevens van jou – zoals jouw naam en e-mailadres – met het betreffende bedrijf gedeeld. Meer hierover lees je in ons
privacybeleid
.
Wanneer je brochures downloadt op Architectenweb.nl worden relevante gegevens van jou – zoals jouw naam en e-mailadres – met het betreffende bedrijf gedeeld. Meer hierover lees je in ons
privacybeleid
.
Brochure
Stel jezelf kort voor! Dan weet het betreffende bedrijf wie hun model gedownload heeft.
Wil je niet bij elke download jouw gegevens in hoeven voeren?
Klik dan hier om in te loggen
.
Heb je nog geen account?
Maak dan hier een gratis account aan
.
Voornaam
Achternaam
E-mailadres
Downloaden
Wanneer je modellen downloadt op Architectenweb.nl worden relevante gegevens van jou – zoals jouw naam en e-mailadres – met het betreffende bedrijf gedeeld. Meer hierover lees je in ons
privacybeleid
.
Locatie
BARST Architecten - architectuur | onderzoek | advies
Neem contact op
Projectdata
Staat van realisatie
Voltooid
Start bouw
2010
Plaats
Zeist
Neem contact op met
BARST Architecten - architectuur | onderzoek | advies
Je bent momenteel niet ingelogd. Hierdoor is het alleen mogelijk om meer informatie per e-mail op te vragen. Wil je liever gebeld worden of documentatie per post ontvangen?
Klik dan hier om in te loggen
.
Heb je nog geen account?
Maak dan hier een gratis account aan
.
Voornaam
Achternaam
E-mailadres
Opmerkingen
Bij iedere aanvraag worden relevante gegevens van jou gedeeld met het betreffende bedrijf. Meer hierover lees je in ons
privacybeleid
.
Ja, denk met me mee rond de
materialisering van mijn project
Meer projecten van BARST Architecten - architectuur | onderzoek | advies
Woning benoordenhout
BARST Architecten - architectuur | onderzoek | advies
Herbouw / Uitbreiding / Interieur Kinderdagverblijf & BSO
BARST Architecten - architectuur | onderzoek | advies
Herbouw herberg Tiengemeten
BARST Architecten - architectuur | onderzoek | advies
Reset het Kruithuis
BARST Architecten - architectuur | onderzoek | advies
Woonhuis Wateringse Veld
BARST Architecten - architectuur | onderzoek | advies
Interieur Woonhuis Concertgebouwbuurt
BARST Architecten - architectuur | onderzoek | advies
Woonhuis Essenlaan Kralingen
BARST Architecten - architectuur | onderzoek | advies
Woonhuis Waalwijk - Uitbreiding & Interieur
BARST Architecten - architectuur | onderzoek | advies
Interieur woonhuis Zeist
BARST Architecten - architectuur | onderzoek | advies
Woonhuis Park Leeuwenbergh
BARST Architecten - architectuur | onderzoek | advies
Herenboerderij Wadenoijen
BARST Architecten - architectuur | onderzoek | advies
Woning Legmeerstraat
BARST Architecten - architectuur | onderzoek | advies
Showroom Balistraat
BARST Architecten - architectuur | onderzoek | advies
Arie de Zeeuwstraat
BARST Architecten - architectuur | onderzoek | advies
Woning Legmeerstraat
BARST Architecten - architectuur | onderzoek | advies
Woning Legmeerstraat
BARST Architecten - architectuur | onderzoek | advies
Praktijk osteopathie Wittenstein
BARST Architecten - architectuur | onderzoek | advies
Praktijk osteopathie Wittenstein
BARST Architecten - architectuur | onderzoek | advies
Villa Ruitersbos
BARST Architecten - architectuur | onderzoek | advies
Woning Stadhouderslaan
BARST Architecten - architectuur | onderzoek | advies
Villa M
BARST Architecten - architectuur | onderzoek | advies
Kantoorpand Brugsteen
BARST Architecten - architectuur | onderzoek | advies
Woning benoordenhout
BARST Architecten - architectuur | onderzoek | advies
Herbouw / Uitbreiding / Interieur Kinderdagverblijf & BSO
BARST Architecten - architectuur | onderzoek | advies
Herbouw herberg Tiengemeten
BARST Architecten - architectuur | onderzoek | advies
Reset het Kruithuis
BARST Architecten - architectuur | onderzoek | advies
Woonhuis Wateringse Veld
BARST Architecten - architectuur | onderzoek | advies
Interieur Woonhuis Concertgebouwbuurt
BARST Architecten - architectuur | onderzoek | advies
Woonhuis Essenlaan Kralingen
BARST Architecten - architectuur | onderzoek | advies
Woonhuis Waalwijk - Uitbreiding & Interieur
BARST Architecten - architectuur | onderzoek | advies
Interieur woonhuis Zeist
BARST Architecten - architectuur | onderzoek | advies
Woonhuis Park Leeuwenbergh
BARST Architecten - architectuur | onderzoek | advies
Herenboerderij Wadenoijen
BARST Architecten - architectuur | onderzoek | advies
Woning Legmeerstraat
BARST Architecten - architectuur | onderzoek | advies
Showroom Balistraat
BARST Architecten - architectuur | onderzoek | advies
Arie de Zeeuwstraat
BARST Architecten - architectuur | onderzoek | advies
Woning Legmeerstraat
BARST Architecten - architectuur | onderzoek | advies
Woning Legmeerstraat
BARST Architecten - architectuur | onderzoek | advies
Praktijk osteopathie Wittenstein
BARST Architecten - architectuur | onderzoek | advies
Praktijk osteopathie Wittenstein
BARST Architecten - architectuur | onderzoek | advies
Villa Ruitersbos
BARST Architecten - architectuur | onderzoek | advies
Woning Stadhouderslaan
BARST Architecten - architectuur | onderzoek | advies
Villa M
BARST Architecten - architectuur | onderzoek | advies
Kantoorpand Brugsteen
BARST Architecten - architectuur | onderzoek | advies
Toon alles
Andere Projecten
woningbouw poortmeesters delft
VYA architectuur en stedenbouw
Onderwijsgebouw Aurora, Wageningen
WEBO
Sandwichpanelenwand hygiënische afbouw
Sentho B.V.
Transformeerbare vergaderruimtes in HNK Amsterdam
BREEDVELD mobiele wandsystemen
Complete buiteninrichting kantooromgeving
Falco B.V.
TopAccess Dakluik bij Porsche Service Factory
Staka Dakluiken
Nieuwbouw villa Tegenbosch, Eindhoven, Noord-Braba
van Os Architecten
Moderne villa Alkmaar
BNLA architecten
Appartementencomplex in Purmerend
SSAB Swedish Steel BV
Office Winhov over project Pulse met Archicad
KUBUS | Specialist in Archicad
Nieuwbouw moderne bungalow, Prinsenbeek, Noord-Bra
van Os Architecten
Verbouwing villa Ruitersbos, Breda, Noord-Brabant
van Os Architecten
Ga naar het projecten-overzicht
Voor een optimale gebruikservaring plaatst Architectenweb functionele cookies. Wat de verschillende cookies precies doen leggen we uit in een
overzicht
. Cookies van social media kun je optioneel
aanzetten
.
Akkoord
Instellingen
Annuleren
OK
Sluiten
Doorgaan
Inloggen
Maak een gratis persoonlijk account aan
Feedback
Feedback
Wij horen graag jouw feedback. Laat je reactie achter en eventueel jouw e-mail adres.
Reactie
Verstuur