Projecten
Producten
Bedrijven
Vacatures
Agenda
Awards
Podcasts
more_horiz
Videos
Magazine
Favorieten
Profiel
Uitloggen
Abonneer je nu op onze nieuwsbrieven!
Abonneren
Nee, bedankt
Ja, denk met me mee rond de
materialisering van mijn project
Producten
Producttags
AAN
UIT
Winkelcentrum De Klanderij
15 oktober 2002
0
0
0
0
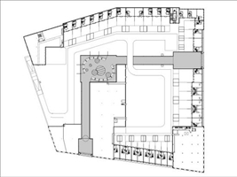
Ten zuiden van de binnenstad van Enschede ligt een gebied dat in de Tweede Wereldoorlog per abuis door geallieerde vliegtuigen is gebombardeerd. De herbouw leverde een typerend naoorlogs beeld op van grootschalige, in zichzelf gekeerde structuren. Ook de oude Klanderij was een objectmatig gebouw. Eind jaren negentig maakte West 8 een ambitieus stedenbouwkundig plan voor de herinrichting van het gebied. Het centraal gelegen Van Heekplein wordt daarbij omgevormd tot een besloten stedelijke ruimte. Basis van het plan is een enorme ondergrondse parkeergarage voor 1600 auto’s. Op de garage wordt een divers programma ontwikkeld die de vitaliteit van Enschede versterkt: woningen, voorzieningen, entertainment en winkels. Ook werd besloten de oude Klanderij te slopen en te herbouwen. In tegenstelling tot de oude Klanderij maakt de nieuwe Klanderij nadrukkelijk deel uit van een stedelijk winkelcircuit dat zowel door het gebouw als langs haar straatgevels loopt. Daarmee wijkt het af van het traditionele, naar binnen gekeerde winkelcentrum. Riante ingangen, een hoogte van ruim twaalf meter en het warme materiaalgebruik verleiden bezoekers de Klanderij te doorkruisen. Het ontwerp van de passage is van The Jerde Partnership International en geeft het complex een bijzondere allure. Aan de straatzijde verlenen vijf meter hoge etalages de winkels een chique uitstraling. Langs drie van de vier zijden van het gebouw bevinden zich woningen boven de winkels. Als aanvulling op een sterk op winkelen gericht programma zijn ze onmisbaar om het stadsdeel ook na sluitingstijd levendig en veilig te maken. Via een hellingbaan kunnen bewoners het dak van het gebouw oprijden en zo hun huis bereiken. De daken worden ingericht als tuinen. Daar waar geen winkels aan de gevel liggen, bevinden zich de opgangen naar de woningen. Aldus worden blinde gevels vermeden en ontstaat midden in de stad een nieuw woon- en winkelmilieu met een unieke kwaliteit.
Opgave: winkelpassage en woningen op nieuwe binnenstadslocatie Programma: winkels en woningen
Stel jezelf kort voor! Dan weet het betreffende bedrijf wie hun model gedownload heeft.
Wil je niet bij elke download jouw gegevens in hoeven voeren?
Klik dan hier om in te loggen
.
Heb je nog geen account?
Maak dan hier een gratis account aan
.
Voornaam
Achternaam
E-mailadres
Downloaden
Wanneer je modellen downloadt op Architectenweb.nl worden relevante gegevens van jou – zoals jouw naam en e-mailadres – met het betreffende bedrijf gedeeld. Meer hierover lees je in ons
privacybeleid
.
Locatie
de Architekten Cie.
Neem contact op
Projectdata
Staat van realisatie
Voltooid
Start bouw
2004
Plaats
Enschede
Bruto m
2
30000
m
3
150000
Leveranciers
Dakconstructies
De Groot Vroomshoop Groep
Neem contact op met
de Architekten Cie.
Je bent momenteel niet ingelogd. Hierdoor is het alleen mogelijk om meer informatie per e-mail op te vragen. Wil je liever gebeld worden of documentatie per post ontvangen?
Klik dan hier om in te loggen
.
Heb je nog geen account?
Maak dan hier een gratis account aan
.
Voornaam
Achternaam
E-mailadres
Opmerkingen
Bij iedere aanvraag worden relevante gegevens van jou gedeeld met het betreffende bedrijf. Meer hierover lees je in ons
privacybeleid
.
Ja, denk met me mee rond de
materialisering van mijn project
Meer projecten van de Architekten Cie.
Timbr
de Architekten Cie.
Woontoren Justus
de Architekten Cie.
Academie Tien
de Architekten Cie.
The City Post Zwolle
de Architekten Cie.
Het Dok
de Architekten Cie.
De Nieuwe Sint Jacob
de Architekten Cie.
EDGE Amsterdam West
de Architekten Cie.
EDGE Olympic
de Architekten Cie.
Kalverpassage
de Architekten Cie.
Pontkade
de Architekten Cie.
Galileo Reference Center
de Architekten Cie.
Circl
de Architekten Cie.
Conservatorium
de Architekten Cie.
Cap Gemini
de Architekten Cie.
Philharmonie
de Architekten Cie.
Café Open te Amsterdam
de Architekten Cie.
Uitbreiding hoofdkantoor Essent in Den Bosch
de Architekten Cie.
Winkelgebied Spazio
de Architekten Cie.
Het Funen
de Architekten Cie.
Tweede Kamer der Staten-Generaal
de Architekten Cie.
Reichstaggebouw (Berlijn)
de Architekten Cie.
Winkelcentrum Kalvertoren
de Architekten Cie.
Concertgebouw
de Architekten Cie.
Beursplein
de Architekten Cie.
Amsterdam Arch
de Architekten Cie.
Hoofdkantoor verzekeringsmaatschappij Zwitserleven
de Architekten Cie.
New Amsterdam
de Architekten Cie.
The Whale
de Architekten Cie.
Stadskantoor
de Architekten Cie.
Megabioscoop Pathé ArenA
de Architekten Cie.
Hoofdkantoor Menzis (Geové) Zorgverzekering
de Architekten Cie.
Botania, appartementen complex
de Architekten Cie.
IJburg , Haveneiland en Rieteiland-west
de Architekten Cie.
Timbr
de Architekten Cie.
Woontoren Justus
de Architekten Cie.
Academie Tien
de Architekten Cie.
The City Post Zwolle
de Architekten Cie.
Het Dok
de Architekten Cie.
De Nieuwe Sint Jacob
de Architekten Cie.
EDGE Amsterdam West
de Architekten Cie.
EDGE Olympic
de Architekten Cie.
Kalverpassage
de Architekten Cie.
Pontkade
de Architekten Cie.
Galileo Reference Center
de Architekten Cie.
Circl
de Architekten Cie.
Conservatorium
de Architekten Cie.
Cap Gemini
de Architekten Cie.
Philharmonie
de Architekten Cie.
Café Open te Amsterdam
de Architekten Cie.
Uitbreiding hoofdkantoor Essent in Den Bosch
de Architekten Cie.
Winkelgebied Spazio
de Architekten Cie.
Het Funen
de Architekten Cie.
Tweede Kamer der Staten-Generaal
de Architekten Cie.
Reichstaggebouw (Berlijn)
de Architekten Cie.
Winkelcentrum Kalvertoren
de Architekten Cie.
Concertgebouw
de Architekten Cie.
Beursplein
de Architekten Cie.
Amsterdam Arch
de Architekten Cie.
Hoofdkantoor verzekeringsmaatschappij Zwitserleven
de Architekten Cie.
New Amsterdam
de Architekten Cie.
The Whale
de Architekten Cie.
Stadskantoor
de Architekten Cie.
Megabioscoop Pathé ArenA
de Architekten Cie.
Hoofdkantoor Menzis (Geové) Zorgverzekering
de Architekten Cie.
Botania, appartementen complex
de Architekten Cie.
IJburg , Haveneiland en Rieteiland-west
de Architekten Cie.
Toon alles
Andere Projecten
Skistation Monte Zoncolan
SSAB Swedish Steel BV
CPO Vondelstaete Amersfoort: Passief Wonen
Sto Isoned bv
Solar groendak bij afvalbrengpunt Oldenzaal
Sempergreen
Nieuw interieur Holiday Inn
Kronospan
Esthetische dakoplossingen in Nederland
Joris Ide
Noordwest Ziekenhuisgroep Alkmaar
Gortemaker Algra Feenstra architects
de Telefoondienst: Transformatie en optopping
Ronald Janssen Architecten
Circulaire primeur: eerste Second High-gevel
Pretty Plastic
Houtrak Amsterdam
WEBO
Meerweide Aafje
Holonite B.V.
Slimme afvaloplossing in een duurzaam zorggebouw
Stansz
De entree als het begin van een culturele ervaring
EMCO Benelux B.V.
Ga naar het projecten-overzicht
Voor een optimale gebruikservaring plaatst Architectenweb functionele cookies. Wat de verschillende cookies precies doen leggen we uit in een
overzicht
. Cookies van social media kun je optioneel
aanzetten
.
Akkoord
Instellingen
Annuleren
OK
Sluiten
Doorgaan
Inloggen
Maak een gratis persoonlijk account aan
Feedback
Feedback
Wij horen graag jouw feedback. Laat je reactie achter en eventueel jouw e-mail adres.
Reactie
Verstuur