Projecten
Producten
Bedrijven
Vacatures
Agenda
Awards
Podcasts
more_horiz
Videos
Magazine
Favorieten
Profiel
Uitloggen
Abonneer je nu op onze nieuwsbrieven!
Abonneren
Nee, bedankt
Ja, denk met me mee rond de
materialisering van mijn project
Copyright: Marcel van der Burg
Copyright: Marcel van der Burg
Copyright: Marcel van der Burg
Copyright: Marcel van der Burg
Copyright: Marcel van der Burg
Copyright: Marcel van der Burg
Copyright: Marcel van der Burg
Copyright: Marcel van der Burg
Copyright: Marcel van der Burg
Copyright: Marcel van der Burg
Copyright: Marcel van der Burg
Copyright: Marcel van der Burg
Copyright: Marcel van der Burg
Copyright: Marcel van der Burg
Copyright: Marcel van der Burg
Copyright: Marcel van der Burg
Copyright: Marcel van der Burg
Copyright: Marcel van der Burg
Copyright: Marcel van der Burg
Copyright: Marcel van der Burg
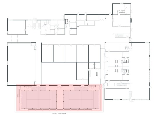
Situatie
Copyright: Vocus architecten
Begane grond (rood)
Copyright: Vocus architecten
Padelhal vormt nieuwe kop van sportcomplex in Bussum
3 uur geleden
In Bussum is onlangs een padelhal naar ontwerp van
Vocus architecten
in gebruik genomen. Het volume vormt een uitbreiding van het bestaande sportcomplex van S&W Premium HealthClub. In plaats van een losstaand bijgebouw ontwierp het bureau de hal als een ‘eindvolume’, dat de kop van het sportcomplex afmaakt en een begrenzing vormt richting het groen.
Daarmee wordt een voorheen gefragmenteerde rand getransformeerd tot een heldere en leesbare structuur, stelt Vocus architecten. Het nieuwe volume is compact georganiseerd en volgt de logica van het bestaande gebouw. Door de uitbreiding binnen de bestaande ruimtelijke structuur te houden, blijft het omliggende groen intact en wordt verdere verrommeling voorkomen.
De benodigde vrije hoogte voor padel resulteert in een fors bouwvolume. Dit volume is vormgegeven als een helder, monolithisch element met een ingetogen materialisering. De gevel bestaat uit een verticaal blokprofiel met een subtiele metallic afwerking. De ritmiek in de gevel geeft schaal aan het grote volume en zorgt voor een rustig en samenhangend beeld.
Aan de zijde van het groen opent het gebouw zich met een reeks overheaddeuren onder een slanke stalen luifel met aluminium lamellen. Wanneer de deuren geopend zijn, ontstaat een directe verbinding tussen binnen en buiten en wordt de sport zichtbaar vanaf het terrein. De luifel markeert de overgang tussen gebouw en landschap en biedt beschutting aan spelers en bezoekers.
Staalconstructie
De hal is opgezet als een staalconstructie met een vrije overspanning over de speelvelden. De grote vrije hoogte die nodig is voor padel is zodanig ontworpen dat in de toekomst een tussenvloer kan worden toegevoegd. Het gebouw kan daardoor transformeren naar een tweelaags programma zonder sloop of uitbreiding van het volume. Deze flexibiliteit vergroot de levensduur van het gebouw en maakt het minder afhankelijk van veranderende sporttrends.
De uitbreiding vormt een zelfstandig brandcompartiment en voldoet aan de eisen voor isolatie en brandveiligheid. De installaties zijn afgestemd op de sportfunctie en zorgen voor een comfortabel binnenklimaat en de ruimte heeft vloerverwarming. De 780 zonnepanelen op het bestaande pand zorgen ook voor stroom in de nieuwe uitbreiding.
Trefwoorden
bussum
padel
vocus architecten
sportcomplex
sporthal
Best gelezen
1
Bouw van twee woontorens De Havenmeesters in Den Haag gestart
vrijdag, 3 april
2
Máxima heropent vernieuwde boulevard van Scheveningen
vrijdag, 3 april
3
Studio AAAN zoekt met Hillehuis aansluiting bij architectuur Beijerlandselaan
vrijdag, 3 april
4
Spoorwegverleden inspireert ontwerp woonblok Wisselspoor 10 in Utrecht
woensdag, 8 april
5
Inschrijving voor Dutch Daylight Award 2026 geopend
vrijdag, 3 april
Gerelateerde nieuwsberichten
Vocus Architecten verbouwt historische tramremise tot supermarkt
2 december 2025
Vocus Architecten heeft ruimtelijke structuur oud Tivolicomplex weer zichtbaar gemaakt
2 oktober 2025
De Tinfabriek Naarden bekroond met eerste De Bazelprijs
28 juni 2022
Gemeenteraad stelt gebiedsvisie voor Bussum-Zuid vast
27 november 2025
Studio id+ ontwerpt school volgens STEAM onderwijsmodel
10 september 2025
Uitbreiding geeft rijtjeswoning ruimte en kleur
15 oktober 2024
Heren 5 ontwerpt gebouwen met huurwoningen in Bussumse villawijk
17 september 2024
Transformatie voormalig fabrieksterrein Bensdorp belicht in boek
19 oktober 2023
Winnaars Arie Keppler Prijs 2022 bekend
30 september 2022
Vocus Architecten verbouwt historische tramremise tot supermarkt
2 december 2025
Vocus Architecten heeft ruimtelijke structuur oud Tivolicomplex weer zichtbaar gemaakt
2 oktober 2025
De Tinfabriek Naarden bekroond met eerste De Bazelprijs
28 juni 2022
Gemeenteraad stelt gebiedsvisie voor Bussum-Zuid vast
27 november 2025
Studio id+ ontwerpt school volgens STEAM onderwijsmodel
10 september 2025
Uitbreiding geeft rijtjeswoning ruimte en kleur
15 oktober 2024
Heren 5 ontwerpt gebouwen met huurwoningen in Bussumse villawijk
17 september 2024
Transformatie voormalig fabrieksterrein Bensdorp belicht in boek
19 oktober 2023
Winnaars Arie Keppler Prijs 2022 bekend
30 september 2022
Toon alles
Andere nieuwsberichten
Architectenweb symposium: samenwerken op kantoor
27 minuten geleden
Op dinsdagavond 12 mei 2026 organiseert Architectenweb in samenwerking met YNNO en Pakhuis de Zwijger een symposium rond de ontwikkeling om kantooromgevingen nadrukkelijker in te richten op onderlinge samenwerking.
Cityförster wint eerste prijs in competitie stadsvernieuwingsproject Boedapest
Vandaag, 11:10
Cityförster heeft in samenwerking met Coldefy, Treibhaus, Spora Architects en Markó & Placemakers, de eerste prijs gewonnen bij een prijsvraag voor een masterplan voor een van de meest prestigieuze stadsvernieuwingsprojecten in Europa.
ANA ontwerpt woongebouw voor 55-plussers in Amsterdam-Zuidoost
Gisteren, 16:43
In de wijk Reigersbos in Amsterdam-Zuidoost wordt een door ANA architecten ontworpen wooncomplex voor ouderen van 55+ gerealiseerd. Jade Rhenenhof bestaat uit 55 woningen en een gemeenschappelijke ruimte voor de bewoners.
KOW wint met Marker Woods tender voor nieuwe wijk Eschmarkerveld
Gisteren, 14:20
Met het plan Marker Woods heeft het team van Hegeman, KOW Architecten en RRog stedenbouw en landschap de tender voor veld 5 in de Enschedese wijk Eschmarkerveld gewonnen.
ABN AMRO: investeringen defensie vergroten druk op bouwcapaciteit
4 uur geleden
Kazernes, opslagplaatsen en oefenterreinen dingen om dezelfde aannemers, ingenieurs en installateurs die ook nodig zijn voor bijvoorbeeld woningbouw.
Europa kent 831 miljoen euro subsidie toe aan Utrechtse projecten
Vandaag, 09:27
Het gaat onder meer om projecten tegen oververhitting van gebouwen, slimmer gebruik van energie en het hergebruik van materialen en grondstoffen.
Rotterdam mag woningen gaan bouwen aan de Parkhaven
Gisteren, 15:38
De Raad van State maakte woensdag bekend dat alle bezwaren tegen het bestemmingsplan zijn verworpen.
Pensioenfonds ABP investeert fors in huurwoningen senioren
Gisteren, 09:34
Pensioenfonds ABP en vermogensbeheerder CBRE Investment Management investeren 350 miljoen in de bouw van nieuwe huurwoningen voor senioren.
Nieuw keurmerk voor inspectie- en adviesbedrijven binnenklimaat
7 april, 2:00
Met onder meer vastgestelde meetprotocollen moet het keurmerk een kwaliteitsimpuls aan de betreffende markt geven.
Kabinet trekt enkele miljarden uit voor nieuw windpark op zee
7 april, 10:06
Vanaf 2032 moet het windpark één gigawatt stroom gaan leveren, genoeg voor ongeveer een miljoen huishoudens.
Ga naar het nieuws-archief
0
0
0
0
Voor een optimale gebruikservaring plaatst Architectenweb functionele cookies. Wat de verschillende cookies precies doen leggen we uit in een
overzicht
. Cookies van social media kun je optioneel
aanzetten
.
Akkoord
Instellingen
Annuleren
OK
Sluiten
Doorgaan
Inloggen
Maak een gratis persoonlijk account aan
Feedback
Feedback
Wij horen graag jouw feedback. Laat je reactie achter en eventueel jouw e-mail adres.
Reactie
Verstuur