Projecten
Producten
Bedrijven
Vacatures
Agenda
Awards
Podcasts
more_horiz
Videos
Magazine
Favorieten
Profiel
Uitloggen
Abonneer je nu op onze nieuwsbrieven!
Abonneren
Nee, bedankt
Ja, denk met me mee rond de
materialisering van mijn project
Copyright: Henny van Belkom
Copyright: Henny van Belkom
Copyright: Henny van Belkom
Copyright: Henny van Belkom
Copyright: Henny van Belkom
Copyright: Henny van Belkom
Copyright: Henny van Belkom
Copyright: Henny van Belkom
Copyright: Henny van Belkom
Copyright: Henny van Belkom
Copyright: Henny van Belkom
Copyright: Henny van Belkom
Copyright: Henny van Belkom
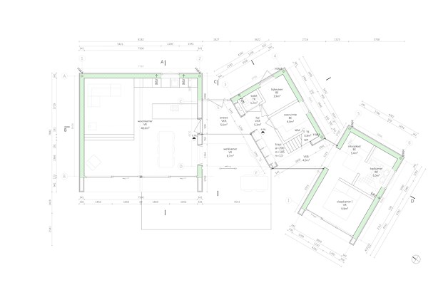
Begane grond
Copyright: Woonpioniers
Verdieping
Copyright: Woonpioniers
Woonpioniers ontwerpt huis van strategisch positioneerde 'blokken'
16 september 2024, 13:58
In de provincie Flevoland is kortgeleden het Blokhuis opgeleverd. Zoals de naam al aangeeft, is het huis opgebouwd uit verschillende 'blokken' die strategisch zijn gepositioneerd om zowel het uitzicht als de toetreding van daglicht in de woning te optimaliseren.
Woonpioniers
heeft het huis samen met de opdrachtgevers ontworpen.
Waar de blokken dankzij hun positionering in de koude maanden zoveel mogelijk warmte van de zon ‘oogsten’, weren ze de zon juist in de warmste periode. Het grootste blok is daarnaast voorzien van een overstek en een buitenzonwering.
De blokken zijn verbonden door glazen gangen, die optimaal zicht bieden op het landschap en zo de relatie tussen binnen en buiten versterken. In de tussenstukken zitten ramen, deuren en puien die kunnen worden geopend om het ‘lekker door te laten waaien’.
De woning is gerealiseerd in houtskeletbouw met een gevel in verduurzaamd en ecologisch gecoat vuren en isolatiemateriaal uit houtwol. Rond het huis zijn eveneens strategisch gepositioneerde bomen geplaatst die, als ze groot zijn, het huis verkoelen of juist zon doorlaten.
Trefwoorden
woonhuis
woningbouw
woonpioniers
Best gelezen
1
Genomineerden BNA Beste Gebouw van het Jaar 2026 bekend
dinsdag, 28 april
2
Architectenweb symposium: samenwerken op kantoor
dinsdag, 28 april
3
Bouwvergunning voor torens MVRDV op Tour & Taxis-terrein Brussel
donderdag, 30 april
4
MVRDV en Diamond Schmitt ontwerpen tweede gebouw voor universiteit Toronto
dinsdag, 28 april
5
Groosman heeft 'eigen' Coolse Poort in centrum Rotterdam gerenoveerd
woensdag, 29 april
Gerelateerde nieuwsberichten
Houten Stelthuis van Woonpioniers is aardbevings- en klimaatbestendig
18 maart
Bewoners houten villa kunnen ook concerten organiseren in huis
19 juli 2023
De Pleinmakers wint tender voor cultuurcluster Berlijnplein Utrecht
19 mei 2022
Nieuwe Gezichten: Woonpioniers
18 november 2021
Driehoekig Zuidhuis in Almere is ontworpen op dag- en seizoensritme
8 februari 2021
Houten Stelthuis van Woonpioniers is aardbevings- en klimaatbestendig
18 maart
Bewoners houten villa kunnen ook concerten organiseren in huis
19 juli 2023
De Pleinmakers wint tender voor cultuurcluster Berlijnplein Utrecht
19 mei 2022
Nieuwe Gezichten: Woonpioniers
18 november 2021
Driehoekig Zuidhuis in Almere is ontworpen op dag- en seizoensritme
8 februari 2021
Toon alles
Andere nieuwsberichten
'Stuttende' en contrasterende installatie voor Besiendershuis Nijmegen
Gisteren, 15:52
Bij het Besiendershuis in Nijmegen is afgelopen maand een door Frank Havermans ontworpen kunstinstallatie geopend. Het bouwwerk is gerealiseerd ter viering van het vijfhonderdjarig jubileum van het bijzondere huis in het centrum van de Keizerstad.
Specht architectuur en stedenbouw toont met meergeneratiehofje alledaagse woongemeenschappelijkheid
Gisteren, 14:25
Het meergeneratiehofje met sociale huurwoningen in Stedum is een bijdrage aan de zoektocht naar alledaagse gemeenschappelijkheid in het wonen in Nederland.
Mobiliteitshub van gerecycled tropisch hardhout voor Tholen
Gisteren, 11:41
In het Zeeuwse Tholen is een mobiliteitshub naar ontwerp van RO&AD Architecten opgeleverd. Het gebouw, dat is geheel is gemaakt van gerecycled tropisch hardhout, fungeert als knooppunt voor bussen en fietsers.
Kleurrijke textielinstallatie van Simone Post voor entreegebied Centraal Museum
Gisteren, 09:05
Voor Patchwork Post heeft ontwerper Simone Post objecten en kunstwerken uit de museumcollectie vertaald naar diverse werken in textiel.
Verzet natuurorganisaties tegen stroomkabel via Schiermonnikoog
Gisteren, 16:39
Negen natuurorganisaties maken zich grote zorgen over het plan om stroom van een nieuw windpark op de Noordzee via Schiermonnikoog aan land te brengen.
ING: huizenprijzen stijgen dit jaar niet verder door hoger aanbod
Gisteren, 13:03
Na jaren van groei is het voor het eerst in lange tijd dat een bank verwacht dat de huizenmarkt niet verder groeit.
TenneT mag datacenteraansluiting uitstellen om vol stroomnet
Gisteren, 10:11
Een projectontwikkelaar van een datacenter bij Schiphol klaagde hierover en spande een kort geding aan.
Brabant investeert 1,4 miljoen in waterfilter in Vlaanderen
30 april, 3:51
Het fosfaatfilter moet vervuild grondwater op een natuurlijke manier zuiveren voordat het naar het Nederlandse natuurgebied de Groote Meer bij Ossendrecht stroomt.
Rli: klimaat, vervuiling en groei bedreigen beschikbaarheid drinkwater
30 april, 12:20
De beschikbaarheid van drinkwater staat ernstig onder druk, waarschuwt de Raad voor de leefomgeving en infrastructuur.
ABN AMRO: huurwetaanpassingen stoppen uittocht beleggers niet
30 april, 9:04
Volgens de onderzoekers onderschat woonminister Boekholt de negatieve effecten van het huidige fiscale beleid.
Ga naar het nieuws-archief
Ronnie Weessies
Redacteur
0
0
0
0
Voor een optimale gebruikservaring plaatst Architectenweb functionele cookies. Wat de verschillende cookies precies doen leggen we uit in een
overzicht
. Cookies van social media kun je optioneel
aanzetten
.
Akkoord
Instellingen
Annuleren
OK
Sluiten
Doorgaan
Inloggen
Maak een gratis persoonlijk account aan
Feedback
Feedback
Wij horen graag jouw feedback. Laat je reactie achter en eventueel jouw e-mail adres.
Reactie
Verstuur