Projecten
Producten
Bedrijven
Vacatures
Agenda
Awards
Podcasts
more_horiz
Videos
Magazine
Favorieten
Profiel
Uitloggen
Abonneer je nu op onze nieuwsbrieven!
Abonneren
Nee, bedankt
Ja, denk met me mee rond de
materialisering van mijn project
Copyright: Studio Komma
Copyright: Studio Komma
Copyright: Studio Komma
Copyright: Studio Komma
Copyright: Studio Komma
Copyright: Studio Komma
Copyright: Studio Komma
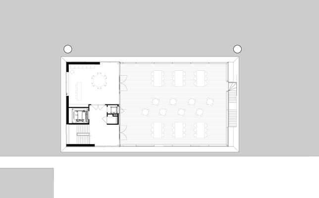
Drijvend en energieneutraal clubhuis voor Jachtclub Scheveningen
24 juni 2020, 14:41
Binnenkort wordt gestart met de bouw van een drijvend clubhuis voor de Jachtclub Scheveningen. Het gebouw in de Tweede Haven van de Zuid-Hollandse bad- en vissersplaats is ontworpen door
Studio Komma
en valt op door de witte horizontale banden, grote ramen en houtwerk in de gevel. Het energieneutrale gebouw wordt onder uitdagende omstandigheden gerealiseerd.
Het bouwwerk krijgt, inclusief drijfbak, een afmeting van 12 bij 22 meter. De combinatie van de asymmetrische opbouw en de ligging in een getijdenhaven met in- en uitstromend zeewater maken het noodzakelijk om nauwgezet gewicht te verdelen om zo scheefstand tegen te gaan, meldt Studio Komma.
Doordat het clubhuis in een zeehaven ligt, beweegt het gebouw enkele meters mee met het getij. Om die reden is het flexibel verankerd in de havenbodem met twee steigerpalen. Ook de installaties zijn via flexibele verbindingen met de wal verbonden.
Het gebouw wordt energieneutraal dankzij maatregelen als zonnepanelen op het dak en een warmtepomp die gebruikt maakt van de constante temperatuur van het zeewater. De gebruikte materialen zijn geselecteerd op duurzaamheid en de mate waarin ze bestand zijn tegen de specifieke weersomstandigheden op deze locatie aan de kust.
Donderdag wordt de drijfbak vanuit zijn bouwplaats in Diemen over zee verscheept naar zijn toekomstige vaste stek. Daarna begint de afbouw van het clubhuis, dat eind dit jaar klaar moet zijn.
Trefwoorden
studio komma
scheveningen
energieneutraal
den haag
drijvend bouwen
clubhuis
Locatie
Best gelezen
1
Woontoren Front door Monadnock wint tiende Architectuurprijs Nijmegen
donderdag, 9 april
2
SeARCH en Heutink Groep winnen tender voor woongebouw Sluisbuurt
vrijdag, 10 april
3
Architect Cees Dam op 93-jarige leeftijd overleden
dinsdag, 14 april
4
Padelhal vormt nieuwe kop van sportcomplex in Bussum
donderdag, 9 april
5
Powerhouse Company wint aanbesteding voor verbouwing Vista College Maastricht
dinsdag, 14 april
Gerelateerde nieuwsberichten
Impuls voor Nederlands onderzoek naar grootschalig drijvend bouwen
17 juli 2023
Maand van de Architectuur Den Haag over de publieke zaak
19 augustus 2020
Drijvend clubhuis voor Jachtclub Scheveningen opgeleverd
9 november 2021
Appartementen in voormalig kantoorgebouw Scheveningen
30 maart 2021
Bouw Het Boegbeeld op Scheveningen van start
1 mei 2020
Groen licht voor nieuwe bediencentrale haven Scheveningen
23 januari 2020
Materialen school hergebruikt voor villa's op dezelfde plek
10 januari 2020
Woonbuurt op oude plek school Capelle
11 juni 2019
Woongebouw geïnspireerd op grootzeil voor Scheveningen
5 april 2019
Studio Komma en RRog winnen tender Janninkkwartier Enschede met plan voor autovrije buurt
26 november 2018
KOW, Studio Komma en RRog winnen tender kazerneterrein Ede
24 april 2018
Posad, Shift en LOLA ontwerpen Beach City
10 oktober 2017
ZIP2516 winnend plan prijsvraag Binckhorst
9 maart 2017
Europan leidt tot strategie voor Schiekwartier
26 oktober 2016
Drie winnaars prijsvraag Ambyerveld Maastricht
20 maart 2015
Impuls voor Nederlands onderzoek naar grootschalig drijvend bouwen
17 juli 2023
Maand van de Architectuur Den Haag over de publieke zaak
19 augustus 2020
Drijvend clubhuis voor Jachtclub Scheveningen opgeleverd
9 november 2021
Appartementen in voormalig kantoorgebouw Scheveningen
30 maart 2021
Bouw Het Boegbeeld op Scheveningen van start
1 mei 2020
Groen licht voor nieuwe bediencentrale haven Scheveningen
23 januari 2020
Materialen school hergebruikt voor villa's op dezelfde plek
10 januari 2020
Woonbuurt op oude plek school Capelle
11 juni 2019
Woongebouw geïnspireerd op grootzeil voor Scheveningen
5 april 2019
Studio Komma en RRog winnen tender Janninkkwartier Enschede met plan voor autovrije buurt
26 november 2018
KOW, Studio Komma en RRog winnen tender kazerneterrein Ede
24 april 2018
Posad, Shift en LOLA ontwerpen Beach City
10 oktober 2017
ZIP2516 winnend plan prijsvraag Binckhorst
9 maart 2017
Europan leidt tot strategie voor Schiekwartier
26 oktober 2016
Drie winnaars prijsvraag Ambyerveld Maastricht
20 maart 2015
Toon alles
Andere nieuwsberichten
Woontoren Front vervult meerdere rollen in Hart van de Waalsprong
1 uur geleden
Vorige week werd de door Mondadnock ontworpen woontoren Front onderscheiden met de Architectuurprijs Nijmegen. Het achthoekige gebouw in Lent markeert het centrum van de stadsuitbreiding Hart van de Waalsprong.
Bijzonder erfgoed Fundatie van Renswoude Utrecht gered
2 uur geleden
Hendrick de Keyser Monumenten heeft de Fundatie van Renswoude in Utrecht, een bijzonder goed bewaard ensemble uit de 18e eeuw, verworven. Hiermee blijven gebouw, historisch interieur en collectie als een geheel behouden.
Studioninedots – Albert Herder vertrekt, Wouter Hermanns en Stijn de Jongh treden toe
3 uur geleden
De medeoprichter en partner van het bureau gaat verder als zelfstandig adviseur en supervisor. Wouter Hermanns en Stijn de Jongh zijn juist tot partner benoemd bij Studioninedots.
BURA, LOLA en Goudappel maken plan voor vernieuwing stationsgebied Haarlem
Vandaag, 12:11
De bureaus mogen onder meer een het busstation en de openbare ruimte herinrichten, de mogelijkheden voor fietsparkeren uitbreiden en een plan maken voor de sloop en nieuwbouw van het Beresteyncomplex tegenover het station.
ING: optoppen en splitsen van woningen steeds minder haalbaar
4 uur geleden
Het kabinet-Jetten gaat naar verwachting het doel van 15.000 extra woningen per jaar uit verbouwingen niet halen, stelt ING.
Geen rechtszaak over subsidie ministerie aan Van Gogh Museum
Vandaag, 10:02
De zaak draait om geld dat het museum nodig zegt te hebben voor een renovatie.
AFM: funderingsproblemen bij bijna 220.000 woningen
Gisteren, 13:25
De huizen van bijna een half miljoen woningeigenaren hebben een hoog risico op funderingsproblemen of een mogelijke kwetsbare fundering.
Oprichter omgevallen vastgoedconcern Evergrande bekent schuld
Gisteren, 09:17
Evergrande was ooit de grootste projectontwikkelaar van China, maar kwam in de problemen toen het zijn schulden niet kon terugbetalen.
Grote en kleine gemeenten balen van bouwregels Zuid-Holland
10 april, 4:31
Grote en kleine gemeenten in Zuid-Holland hebben hun zorgen geuit over nieuwe regels van de provincie, die volgens hen de woningbouw belemmeren.
Twijfels in Zuid-Holland over halen van doelen landelijk gebied
10 april, 12:18
De meeste partijen in de Zuid-Hollandse politiek hebben twijfels over de plannen die in zestien deelgebieden zijn gemaakt voor de aanpak van het landelijk gebied.
Ga naar het nieuws-archief
Ronnie Weessies
Redacteur
0
0
0
0
Voor een optimale gebruikservaring plaatst Architectenweb functionele cookies. Wat de verschillende cookies precies doen leggen we uit in een
overzicht
. Cookies van social media kun je optioneel
aanzetten
.
Akkoord
Instellingen
Annuleren
OK
Sluiten
Doorgaan
Inloggen
Maak een gratis persoonlijk account aan
Feedback
Feedback
Wij horen graag jouw feedback. Laat je reactie achter en eventueel jouw e-mail adres.
Reactie
Verstuur